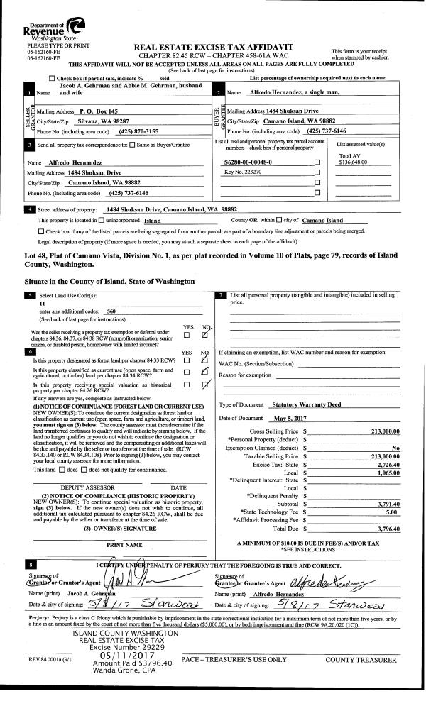
Property
Account |
| Property ID: | 738223 | Abbreviated Legal Description: | LOT 2 SP 50-95.32926.236-1690 V3 SP P79 AF#96005490 |
| Geographic ID: | R32926-220-1520 | Agent Code: | |
| Type: | Real | | |
| Tax Area: | 712 - APPRAISER-S Whid Schl Dist, outside Langley, improved, greater than 1 acre | Land Use Code | 11 |
| Open Space: | N | DFL | N |
| Historic Property: | N | Remodel Property: | N |
| Multi-Family Redevelopment: | N | | |
| Township: | 29 | Section: | 26 |
| Range: | R3 |
Location |
| Address: | 6632 MAPLE LEAF DR CLINTON, WA 98236 | Mapsco: | |
| Neighborhood: | Cycle 4 | Map ID: | 816 |
| Neighborhood CD: | 4 |
Owner |
| Name: | TAYLOR, KENT BRADSHAW | Owner ID: | 282059 |
| Mailing Address: | ALLYSS MARIE TAYLOR 27116 SR 525 UNIT B COUPEVILLE, WA 98239 | % Ownership: | 100.0000000000% |
| | | Exemptions: | |
Taxes and Assessment Details
Values
| (+) Improvement Homesite Value: | + | $0 | |
| (+) Improvement Non-Homesite Value: | + | $366,093 | |
| (+) Land Homesite Value: | + | $0 | |
| (+) Land Non-Homesite Value: | + | $280,000 | |
| (+) Curr Use (HS): | + | $0 | $0 |
| (+) Curr Use (NHS): | + | $0 | $0 |
| | | -------------------------- | |
| (=) Market Value: | = | $646,093 | |
| (–) Productivity Loss: | – | $0 | |
| | | -------------------------- | |
| (=) Subtotal: | = | $646,093 | |
| (+) Senior Appraised Value: | + | $0 | |
| (+) Non-Senior Appraised Value: | + | $646,093 | |
| | | -------------------------- | |
| (=) Total Appraised Value: | = | $646,093 | |
| (–) Senior Exemption Loss: | – | $0 | |
| (–) Exemption Loss: | – | $0 | |
| | | -------------------------- | |
| (=) Taxable Value: | = | $646,093 | |
Taxing Jurisdiction
| Owner: | TAYLOR, KENT BRADSHAW | | |
| % Ownership: | 100.0000000000% | | |
| Total Value: | $646,093 | | |
| Tax Area: | 712 - APPRAISER-S Whid Schl Dist, outside Langley, improved, greater than 1 acre |
| CF | Conservation Futures | 0.0316035091 | $646,093 | $646,093 | $20.42 | | |
| FIRE3 | Fire & Rescue Dist #3 S Whidbey GEN | 1.2004855531 | $646,093 | $646,093 | $775.63 | | |
| HOBOND | Hospital BOND | 0.1910887512 | $646,093 | $646,093 | $123.46 | | |
| HOGEN | Hospital GEN | 0.3902502903 | $646,093 | $646,093 | $252.14 | | |
| CE | County Current Expense | 0.3708482477 | $646,093 | $646,093 | $239.60 | | |
| CR | County Roads | 0.4584763726 | $646,093 | $646,093 | $296.22 | | |
| ISLANDEMS | Hospital GEN (EMS) | 0.5000000000 | $646,093 | $646,093 | $323.05 | | |
| LIB | Library Sno-Isle GEN | 0.3153421757 | $646,093 | $646,093 | $203.74 | | |
| PORTWHID | Port of S Whidbey GEN | 0.1094540357 | $646,093 | $646,093 | $70.72 | | |
| SCH206BOND | School 206 BOND | 0.3161759235 | $646,093 | $646,093 | $204.28 | | |
| SCH206MO | School 206 Enrichment | 0.4547169547 | $646,093 | $646,093 | $293.79 | | |
| ST | State School | 1.3035497053 | $646,093 | $646,093 | $842.21 | | |
| ST2 | State School Part 2 | 0.8169543533 | $646,093 | $646,093 | $527.83 | | |
| SWHIDPRBD | P & R S Whidbey BOND | 0.0152817568 | $646,093 | $646,093 | $9.87 | | |
| SWHIDPRBD2 | P & R S Whidbey BOND2 | 0.0138911264 | $646,093 | $646,093 | $8.97 | | |
| SWHIDPRMT | P & R S Whidbey GEN | 0.2053334452 | $646,093 | $646,093 | $132.66 | | |
| | Total Tax Rate: | 6.6934522006 | | | | | |
| | | | | Taxes w/Current Exemptions: | $4,324.59 | | |
| | | | | Taxes w/o Exemptions: | $4,324.59 | | |
Improvement / Building
| Improvement #1: | RESIDENTIAL | State Code: | Y | 2136.0 sqft | Value: | $366,093 |
| Bathrooms: | 2 | Bedrooms: | 3 | | Ceiling: | DRYWALL PAINTED | Cooling: | HEAT PUMP/CONV/V | | Exterior Wall/Cover: | CEMENT FIBER | Floor Covering: | CARPET/VINYL 60-40 | | Floor Structure: | WOOD W/SUBFLOOR | Foundation: | CONCRETE | | Interior Finish: | DRYWALL PAINT | Plumbing Fixture Cnt: | 12 | | Roof Slope: | 4" IN 12" | Roof Structure/Cover: | CJ ASPHALT |
|
| | Type | Description | Class CD | Sub Class CD | Year Built | Area |
| | BAS | BASE/MAIN FLOOR | 3 | 0 | 2019 | 2136.0 |
| | AGR | ATTACHED GARAGE | 3 | 0 | 2019 | 516.0 |
| | OWP | OPEN WOOD PORCH W/STEPS | 3 | 0 | 2019 | 150.0 |
| | OWP | OPEN WOOD PORCH W/STEPS | 3 | 0 | 2019 | 78.0 |
| | OWC | OPEN WOOD PORCH W/STEPS/ROOF/C | 3 | 0 | 2019 | 60.0 |
Sketch
| No sketches available for this property. |
Property Image
Land
| 1 | 17 | AC (01.01-02.00) | 1.9800 | 86248.80 | 0.00 | 0.00 | 1.00 | $280,000 | $0 |
Roll Value History
| 2026 | N/A | N/A | N/A | N/A | N/A |
| 2025 | $366,093 | $280,000 | $0 | $646,093 | $646,093 |
| 2024 | $369,045 | $270,000 | $0 | $639,045 | $639,045 |
| 2023 | $371,998 | $260,000 | $0 | $631,998 | $631,998 |
| 2022 | $339,530 | $250,000 | $0 | $589,530 | $589,530 |
| 2021 | $298,331 | $175,000 | $0 | $473,331 | $473,331 |
| 2020 | $312,434 | $165,000 | $0 | $477,434 | $477,434 |
| 2019 | $238,692 | $200,000 | $0 | $438,692 | $438,692 |
| 2018 | $0 | $100,000 | $0 | $100,000 | $100,000 |
| 2017 | $0 | $100,000 | $0 | $100,000 | $100,000 |
| 2016 | $0 | $80,000 | $0 | $80,000 | $80,000 |
| 2015 | $0 | $80,000 | $0 | $80,000 | $80,000 |
| 2014 | $0 | $59,500 | $0 | $59,500 | $59,500 |
| 2013 | $0 | $100,000 | $0 | $100,000 | $100,000 |
| 2012 | $0 | $100,000 | $0 | $100,000 | $100,000 |
| 2011 | $0 | $100,000 | $0 | $100,000 | $100,000 |
| 2010 | $0 | $100,000 | $0 | $100,000 | $100,000 |
| 2009 | $0 | $125,000 | $0 | $125,000 | $125,000 |
| 2008 | $0 | $150,000 | $0 | $150,000 | $150,000 |
| 2007 | $0 | $100,000 | $0 | $100,000 | $100,000 |
Deed and Sales History
| 1 | 09/18/2017 | WD | Warranty Deed | BALLESTRASSE, SEAN F | TAYLOR, KENT BRADSHAW | | | $85,000.00 | 31189 | 4430669 |
| 2 | 06/19/2017 | QCD | Quit Claim Deed | HANSEN, CHARLOTTE J | BALLESTRASSE, SEAN F | | | $0.00 | 29968 | 4425247 |
| 3 | 01/01/1995 | QCD | Quit Claim Deed | HANSEN, CHARLOTTE J | HANSEN, CHARLOTTE J | | | $0.00 | 61575 | 96007885 |
| 4 | 01/01/1900 | OTHER | Other - Misc. Documents | Unknown | HANSEN, CHARLOTTE J | | | $0.00 | 50699 | 95003248 |
Payout Agreement
| No payout information available.. |