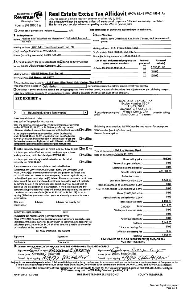
Property
Account |
| Property ID: | 738919 | Abbreviated Legal Description: | DRIFTWOOD HTS 1 LOT 8 |
| Geographic ID: | S6505-00-00008-0 | Agent Code: | |
| Type: | Real | | |
| Tax Area: | 510 - APPRAISER-Stan/Cam Schl Dist, improved & 1 acre or less | Land Use Code | 11 |
| Open Space: | N | DFL | N |
| Historic Property: | N | Remodel Property: | N |
| Multi-Family Redevelopment: | N | | |
| Township: | | Section: | |
| Range: | |
Location |
| Address: | | Mapsco: | |
| Neighborhood: | Cycle 5 | Map ID: | 922 |
| Neighborhood CD: | 5 |
Owner |
| Name: | MOORE-WITT CO LLC | Owner ID: | 180520 |
| Mailing Address: | 17248 NE 125TH ST REDMOND, WA 98052-2282 | % Ownership: | 100.0000000000% |
| | | Exemptions: | |
Taxes and Assessment Details
Values
| (+) Improvement Homesite Value: | + | $0 | |
| (+) Improvement Non-Homesite Value: | + | $307,477 | |
| (+) Land Homesite Value: | + | $0 | |
| (+) Land Non-Homesite Value: | + | $350,000 | |
| (+) Curr Use (HS): | + | $0 | $0 |
| (+) Curr Use (NHS): | + | $0 | $0 |
| | | -------------------------- | |
| (=) Market Value: | = | $657,477 | |
| (–) Productivity Loss: | – | $0 | |
| | | -------------------------- | |
| (=) Subtotal: | = | $657,477 | |
| (+) Senior Appraised Value: | + | $0 | |
| (+) Non-Senior Appraised Value: | + | $657,477 | |
| | | -------------------------- | |
| (=) Total Appraised Value: | = | $657,477 | |
| (–) Senior Exemption Loss: | – | $0 | |
| (–) Exemption Loss: | – | $0 | |
| | | -------------------------- | |
| (=) Taxable Value: | = | $657,477 | |
Taxing Jurisdiction
| Owner: | MOORE-WITT CO LLC | | |
| % Ownership: | 100.0000000000% | | |
| Total Value: | $657,477 | | |
| Tax Area: | 510 - APPRAISER-Stan/Cam Schl Dist, improved & 1 acre or less |
| CF | Conservation Futures | 0.0316035091 | $657,477 | $657,477 | $20.78 | | |
| EMS1 | Fire & Rescue Dist #1 Camano GEN (EMS) | 0.3677864386 | $657,477 | $657,477 | $241.81 | | |
| FIRE1 | Fire & Rescue Dist #1 Camano GEN | 1.2502910536 | $657,477 | $657,477 | $822.04 | | |
| FIRE1BOND | Fire & Rescue Dist #1 Camano BOND | 0.1570001679 | $657,477 | $657,477 | $103.22 | | |
| CE | County Current Expense | 0.3708482477 | $657,477 | $657,477 | $243.82 | | |
| CR | County Roads | 0.4584763726 | $657,477 | $657,477 | $301.44 | | |
| LCIB | Library Sno-Isle BOND (Camano Island) | 0.0396325772 | $657,477 | $657,477 | $26.06 | | |
| LIB | Library Sno-Isle GEN | 0.3153421757 | $657,477 | $657,477 | $207.33 | | |
| SCH205_401 | School 205-401 Enrichment | 1.2698420524 | $657,477 | $657,477 | $834.89 | | |
| SCH205BOND | School 205-401 BOND | 0.9396497583 | $657,477 | $657,477 | $617.80 | | |
| ST | State School | 1.3035497053 | $657,477 | $657,477 | $857.05 | | |
| ST2 | State School Part 2 | 0.8169543533 | $657,477 | $657,477 | $537.13 | | |
| | Total Tax Rate: | 7.3209764117 | | | | | |
| | | | | Taxes w/Current Exemptions: | $4,813.37 | | |
| | | | | Taxes w/o Exemptions: | $4,813.37 | | |
Improvement / Building
| Improvement #1: | RESIDENTIAL | State Code: | Y | 2224.0 sqft | Value: | $307,477 |
| Bathrooms: | 2 | Bedrooms: | 2 | | Ceiling: | TONGUE & GROOVE | Exterior Wall/Cover: | WOOD SIDING | | Floor Covering: | HARDWOOD/CARP 20-80 | Floor Structure: | WOOD W/SUBFLOOR | | Foundation: | CONCRETE | Heating: | FHA ELECTRIC | | Interior Finish: | DRYWALL PAINT | Plumbing Fixture Cnt: | 9 | | Roof Slope: | 12" IN 12" | Roof Structure/Cover: | CJ ALUMINIUM HEAVY |
|
| | Type | Description | Class CD | Sub Class CD | Year Built | Area |
| | BAS | BASE/MAIN FLOOR | 3 | 0 | 1978 | 960.0 |
| | OP1 | OPEN PORCH SLAB | 3 | 0 | 1978 | 192.0 |
| | OWP | OPEN WOOD PORCH W/STEPS | 3 | 0 | 1978 | 888.0 |
| | OWP | OPEN WOOD PORCH W/STEPS | 3 | 0 | 1978 | 880.0 |
| | LOF | LOFT | 3 | 0 | 1978 | 304.0 |
| | DWN | DOWNSTAIRS LIVING AREA | 3 | 0 | 1978 | 960.0 |
| | UTY | STORAGE/UTILITY | 3 | 0 | 1978 | 120.0 |
Sketch
Property Image
Land
| 1 | HB | HIGH BLUFF | 0.0000 | 0.00 | 0.00 | 0.00 | 1.00 | $350,000 | $0 |
Roll Value History
| 2026 | N/A | N/A | N/A | N/A | N/A |
| 2025 | $307,477 | $350,000 | $0 | $657,477 | $657,477 |
| 2024 | $311,359 | $350,000 | $0 | $661,359 | $661,359 |
| 2023 | $315,239 | $275,000 | $0 | $590,239 | $590,239 |
| 2022 | $288,961 | $250,000 | $0 | $538,961 | $538,961 |
| 2021 | $236,008 | $200,000 | $0 | $436,008 | $436,008 |
| 2020 | $230,836 | $200,000 | $0 | $430,836 | $430,836 |
| 2019 | $179,628 | $275,000 | $0 | $454,628 | $454,628 |
| 2018 | $180,193 | $250,000 | $0 | $430,193 | $430,193 |
| 2017 | $181,326 | $125,000 | $0 | $306,326 | $306,326 |
| 2016 | $183,593 | $125,000 | $0 | $308,593 | $308,593 |
| 2015 | $157,177 | $80,000 | $0 | $237,177 | $237,177 |
| 2014 | $159,325 | $80,000 | $0 | $239,325 | $239,325 |
| 2013 | $161,473 | $80,000 | $0 | $241,473 | $241,473 |
| 2012 | $163,621 | $80,000 | $0 | $243,621 | $243,621 |
| 2011 | $165,769 | $100,000 | $0 | $265,769 | $265,769 |
| 2010 | $173,828 | $100,000 | $0 | $273,828 | $273,828 |
| 2009 | $168,569 | $90,000 | $0 | $258,569 | $258,569 |
| 2008 | $171,094 | $175,000 | $0 | $346,094 | $346,094 |
| 2007 | $173,609 | $175,000 | $0 | $348,609 | $348,609 |
Deed and Sales History
| 1 | 07/01/1999 | WD | Warranty Deed | ARMSTRONG, MARY L | MOORE-WITT CO LLC, | | | $261,000.00 | 92709 | 99016144 |
| 2 | 09/01/1990 | DECREE | Divorce Decree/Legal Separation | ARMSTRONG, RICHARD | ARMSTRONG, MARY L | | | $0.00 | 5378 | 90017967 |
| 3 | 01/01/1900 | OTHER | Other - Misc. Documents | Unknown | ARMSTRONG, RICHARD | | | $0.00 | 0 | 0 |
Payout Agreement
| No payout information available.. |