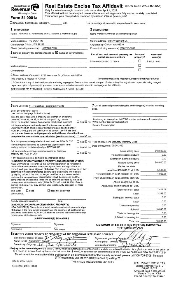
Property
Account |
| Property ID: | 739197 | Abbreviated Legal Description: | LOT 2 SP 44-95.33229.015-0650 V3 SP P75-6 AF#96004877 TGW & SUB EZ |
| Geographic ID: | R33229-015-0920 | Agent Code: | |
| Type: | Real | | |
| Tax Area: | 592 - APPRAISER-Stan/Cam Schl Dist, Special Dist, improved, greater than 1 acre | Land Use Code | 11 |
| Open Space: | N | DFL | N |
| Historic Property: | N | Remodel Property: | N |
| Multi-Family Redevelopment: | N | | |
| Township: | 32 | Section: | 29 |
| Range: | R3 |
Location |
| Address: | 467 GRACE CT CAMANO ISLAND, WA 98282 | Mapsco: | |
| Neighborhood: | Cycle 5 | Map ID: | 985 |
| Neighborhood CD: | 5 |
Owner |
| Name: | BALGOS, GENEROSO A | Owner ID: | 297456 |
| Mailing Address: | MARLENE P MONTOYA BALGOS 8327 20TH DR NE MARYSVILLE, WA 98270 | % Ownership: | 100.0000000000% |
| | | Exemptions: | |
Taxes and Assessment Details
Values
| (+) Improvement Homesite Value: | + | $0 | |
| (+) Improvement Non-Homesite Value: | + | $324,290 | |
| (+) Land Homesite Value: | + | $0 | |
| (+) Land Non-Homesite Value: | + | $300,000 | |
| (+) Curr Use (HS): | + | $0 | $0 |
| (+) Curr Use (NHS): | + | $0 | $0 |
| | | -------------------------- | |
| (=) Market Value: | = | $624,290 | |
| (–) Productivity Loss: | – | $0 | |
| | | -------------------------- | |
| (=) Subtotal: | = | $624,290 | |
| (+) Senior Appraised Value: | + | $0 | |
| (+) Non-Senior Appraised Value: | + | $624,290 | |
| | | -------------------------- | |
| (=) Total Appraised Value: | = | $624,290 | |
| (–) Senior Exemption Loss: | – | $0 | |
| (–) Exemption Loss: | – | $0 | |
| | | -------------------------- | |
| (=) Taxable Value: | = | $624,290 | |
Taxing Jurisdiction
| Owner: | BALGOS, GENEROSO A | | |
| % Ownership: | 100.0000000000% | | |
| Total Value: | $624,290 | | |
| Tax Area: | 592 - APPRAISER-Stan/Cam Schl Dist, Special Dist, improved, greater than 1 acre |
| CF | Conservation Futures | 0.0316035091 | $624,290 | $624,290 | $19.73 | | |
| EMS1 | Fire & Rescue Dist #1 Camano GEN (EMS) | 0.3677864386 | $624,290 | $624,290 | $229.61 | | |
| FIRE1 | Fire & Rescue Dist #1 Camano GEN | 1.2502910536 | $624,290 | $624,290 | $780.54 | | |
| FIRE1BOND | Fire & Rescue Dist #1 Camano BOND | 0.1570001679 | $624,290 | $624,290 | $98.01 | | |
| CE | County Current Expense | 0.3708482477 | $624,290 | $624,290 | $231.52 | | |
| CR | County Roads | 0.4584763726 | $624,290 | $624,290 | $286.22 | | |
| LCIB | Library Sno-Isle BOND (Camano Island) | 0.0396325772 | $624,290 | $624,290 | $24.74 | | |
| LIB | Library Sno-Isle GEN | 0.3153421757 | $624,290 | $624,290 | $196.86 | | |
| SCH205_401 | School 205-401 Enrichment | 1.2698420524 | $624,290 | $624,290 | $792.75 | | |
| SCH205BOND | School 205-401 BOND | 0.9396497583 | $624,290 | $624,290 | $586.61 | | |
| ST | State School | 1.3035497053 | $624,290 | $624,290 | $813.79 | | |
| ST2 | State School Part 2 | 0.8169543533 | $624,290 | $624,290 | $510.02 | | |
| | Total Tax Rate: | 7.3209764117 | | | | | |
| | | | | Taxes w/Current Exemptions: | $4,570.40 | | |
| | | | | Taxes w/o Exemptions: | $4,570.40 | | |
Improvement / Building
| Improvement #1: | RESIDENTIAL | State Code: | Y | 1758.8 sqft | Value: | $324,290 |
| Bathrooms: | 3 | Bedrooms: | 3 | | Ceiling: | DRYWALL PAINTED | Exterior Wall/Cover: | CEMENT FIBER | | Floor Covering: | HARDWOOD/CARP 20-80 | Floor Structure: | WOOD W/SUBFLOOR | | Foundation: | CONCRETE | Heating: | FHA GAS | | Interior Finish: | DRYWALL PAINT | Plumbing Fixture Cnt: | 12 | | Roof Slope: | 6" IN 12" | Roof Structure/Cover: | CJ ASPHALT |
|
| | Type | Description | Class CD | Sub Class CD | Year Built | Area |
| | BAS | BASE/MAIN FLOOR | 3 | 0 | 1998 | 918.3 |
| | OP4 | OPEN PORCH W/CEILING-ROOF | 3 | 0 | 1998 | 20.0 |
| | AGR | ATTACHED GARAGE | 3 | 0 | 1998 | 364.0 |
| | BIG | BUILT IN GARAGE | 3 | 0 | 1998 | 316.0 |
| | UPS | UPPER STORY | 3 | 0 | 1998 | 840.5 |
| | OWP | OPEN WOOD PORCH W/STEPS | 3 | 0 | 1998 | 318.0 |
Sketch
Property Image
Land
| 1 | 17 | AC (01.01-02.00) | 0.0000 | 0.00 | 0.00 | 0.00 | 1.00 | $300,000 | $0 |
Roll Value History
| 2026 | N/A | N/A | N/A | N/A | N/A |
| 2025 | $324,290 | $300,000 | $0 | $624,290 | $624,290 |
| 2024 | $328,332 | $290,000 | $0 | $618,332 | $618,332 |
| 2023 | $332,373 | $290,000 | $0 | $622,373 | $622,373 |
| 2022 | $304,637 | $260,000 | $0 | $564,637 | $564,637 |
| 2021 | $268,073 | $190,000 | $0 | $458,073 | $458,073 |
| 2020 | $260,929 | $150,000 | $0 | $410,929 | $410,929 |
| 2019 | $191,196 | $180,000 | $0 | $371,196 | $371,196 |
| 2018 | $191,750 | $150,000 | $0 | $341,750 | $341,750 |
| 2017 | $192,815 | $135,000 | $0 | $327,815 | $327,815 |
| 2016 | $195,031 | $135,000 | $0 | $330,031 | $330,031 |
| 2015 | $188,613 | $100,000 | $0 | $288,613 | $288,613 |
| 2014 | $190,912 | $100,000 | $0 | $290,912 | $290,912 |
| 2013 | $193,211 | $80,000 | $0 | $273,211 | $273,211 |
| 2012 | $195,512 | $80,000 | $0 | $275,512 | $275,512 |
| 2011 | $197,813 | $100,000 | $0 | $297,813 | $297,813 |
| 2010 | $207,101 | $100,000 | $0 | $307,101 | $307,101 |
| 2009 | $215,923 | $100,000 | $0 | $315,923 | $315,923 |
| 2008 | $218,442 | $108,000 | $0 | $326,442 | $326,442 |
| 2007 | $220,953 | $108,000 | $0 | $328,953 | $328,953 |
Deed and Sales History
| 1 | 12/16/2020 | WD | Warranty Deed | INMAN, ROBERT L | BALGOS, GENEROSO A | | | $550,000.00 | 46242 | 4506030 |
| 2 | 01/22/2016 | WD | Warranty Deed | BLOOM, DONNA J | INMAN, ROBERT L | | | $330,000.00 | 22916 | 4392992 |
| 3 | 09/14/2012 | ESTSEPPROP | Establish Separate Property | BLOOM, FREDERICK S | BLOOM, DONNA J | | | $0.00 | 8964 | 4323845 |
| 4 | 12/05/1998 | WD | Warranty Deed | HERIGSTAD, SCOTT J | BLOOM, FREDERICK S | | | $186,500.00 | 85170 | 98028312 |
| 5 | 01/01/1900 | OTHER | Other - Misc. Documents | Unknown | HERIGSTAD, SCOTT J | | | $0.00 | 41871 | 94011010 |
Payout Agreement
| No payout information available.. |