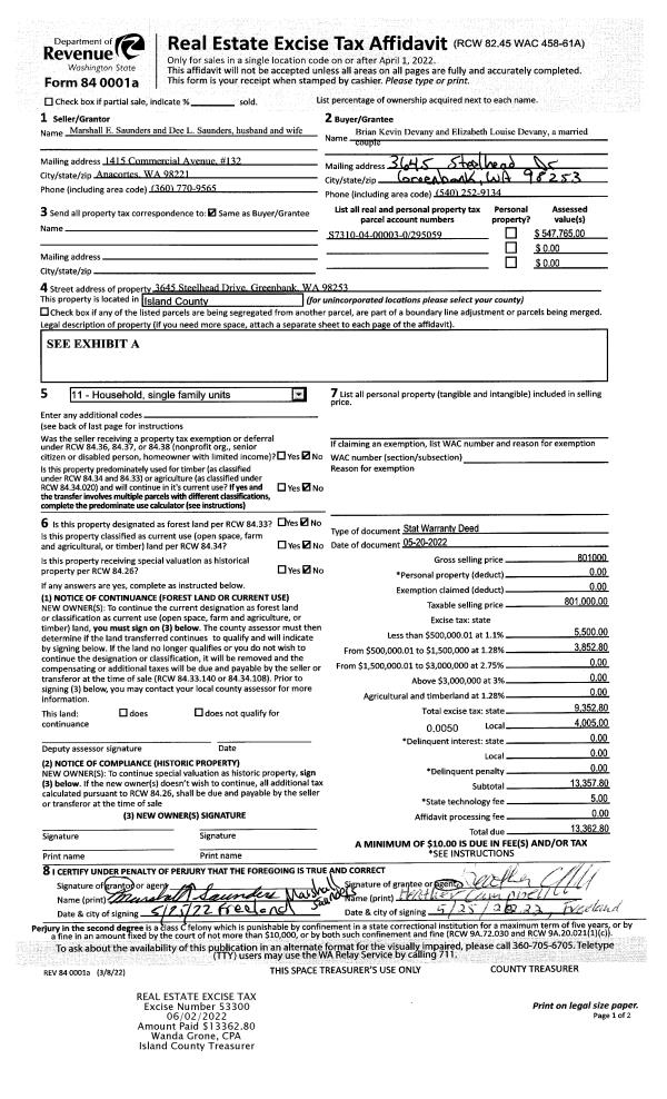
Property
Account |
| Property ID: | 739213 | Abbreviated Legal Description: | LOT 4 SP 44-95.33229.015-0650 V3 SP P75-6 AF#96004877 TGW & SUB EZ |
| Geographic ID: | R33229-015-0320 | Agent Code: | |
| Type: | Real | | |
| Tax Area: | 592 - APPRAISER-Stan/Cam Schl Dist, Special Dist, improved, greater than 1 acre | Land Use Code | 11 |
| Open Space: | N | DFL | N |
| Historic Property: | N | Remodel Property: | N |
| Multi-Family Redevelopment: | N | | |
| Township: | 32 | Section: | 29 |
| Range: | R3 |
Location |
| Address: | | Mapsco: | |
| Neighborhood: | Cycle 5 | Map ID: | 985 |
| Neighborhood CD: | 5 |
Owner |
| Name: | HERIGSTAD, SCOTT J / GRACE R | Owner ID: | 143797 |
| Mailing Address: | PO BOX 734 STANWOOD, WA 98292-0734 | % Ownership: | 100.0000000000% |
| | | Exemptions: | |
Taxes and Assessment Details
Values
| (+) Improvement Homesite Value: | + | $0 | |
| (+) Improvement Non-Homesite Value: | + | $815,353 | |
| (+) Land Homesite Value: | + | $0 | |
| (+) Land Non-Homesite Value: | + | $360,000 | |
| (+) Curr Use (HS): | + | $0 | $0 |
| (+) Curr Use (NHS): | + | $0 | $0 |
| | | -------------------------- | |
| (=) Market Value: | = | $1,175,353 | |
| (–) Productivity Loss: | – | $0 | |
| | | -------------------------- | |
| (=) Subtotal: | = | $1,175,353 | |
| (+) Senior Appraised Value: | + | $0 | |
| (+) Non-Senior Appraised Value: | + | $1,175,353 | |
| | | -------------------------- | |
| (=) Total Appraised Value: | = | $1,175,353 | |
| (–) Senior Exemption Loss: | – | $0 | |
| (–) Exemption Loss: | – | $0 | |
| | | -------------------------- | |
| (=) Taxable Value: | = | $1,175,353 | |
Taxing Jurisdiction
| Owner: | HERIGSTAD, SCOTT J / GRACE R | | |
| % Ownership: | 100.0000000000% | | |
| Total Value: | $1,175,353 | | |
| Tax Area: | 592 - APPRAISER-Stan/Cam Schl Dist, Special Dist, improved, greater than 1 acre |
| CF | Conservation Futures | 0.0316035091 | $1,175,353 | $1,175,353 | $37.15 | | |
| EMS1 | Fire & Rescue Dist #1 Camano GEN (EMS) | 0.3677864386 | $1,175,353 | $1,175,353 | $432.28 | | |
| FIRE1 | Fire & Rescue Dist #1 Camano GEN | 1.2502910536 | $1,175,353 | $1,175,353 | $1,469.53 | | |
| FIRE1BOND | Fire & Rescue Dist #1 Camano BOND | 0.1570001679 | $1,175,353 | $1,175,353 | $184.53 | | |
| CE | County Current Expense | 0.3708482477 | $1,175,353 | $1,175,353 | $435.88 | | |
| CR | County Roads | 0.4584763726 | $1,175,353 | $1,175,353 | $538.87 | | |
| LCIB | Library Sno-Isle BOND (Camano Island) | 0.0396325772 | $1,175,353 | $1,175,353 | $46.58 | | |
| LIB | Library Sno-Isle GEN | 0.3153421757 | $1,175,353 | $1,175,353 | $370.64 | | |
| SCH205_401 | School 205-401 Enrichment | 1.2698420524 | $1,175,353 | $1,175,353 | $1,492.51 | | |
| SCH205BOND | School 205-401 BOND | 0.9396497583 | $1,175,353 | $1,175,353 | $1,104.42 | | |
| ST | State School | 1.3035497053 | $1,175,353 | $1,175,353 | $1,532.13 | | |
| ST2 | State School Part 2 | 0.8169543533 | $1,175,353 | $1,175,353 | $960.21 | | |
| | Total Tax Rate: | 7.3209764117 | | | | | |
| | | | | Taxes w/Current Exemptions: | $8,604.73 | | |
| | | | | Taxes w/o Exemptions: | $8,604.73 | | |
Improvement / Building
| Improvement #1: | RESIDENTIAL | State Code: | Y | 2534.6 sqft | Value: | $592,697 |
| Bathrooms: | 2.5 | Bedrooms: | 4 | | Ceiling: | DRYWALL PAINTED | Exterior Wall/Cover: | CEMENT FIBER | | Floor Covering: | HARDWOOD/CARP 60-40 | Floor Structure: | WOOD W/SUBFLOOR | | Foundation: | CONCRETE | Heating: | FHA GAS | | Interior Finish: | DRYWALL PAINT | Plumbing Fixture Cnt: | 14 | | Roof Slope: | 6" IN 12" | Roof Structure/Cover: | CJ ASPHALT |
|
| | Type | Description | Class CD | Sub Class CD | Year Built | Area |
| | BAS | BASE/MAIN FLOOR | 4 | 0 | 1995 | 1381.8 |
| | OP1 | OPEN PORCH SLAB | 4 | 0 | 1995 | 934.0 |
| | OP4 | OPEN PORCH W/CEILING-ROOF | 4 | 0 | 1995 | 345.1 |
| | AGR | ATTACHED GARAGE | 4 | 0 | 1995 | 832.0 |
| | UPS | UPPER STORY | 4 | 0 | 1995 | 1152.8 |
| | OWC | OPEN WOOD PORCH W/STEPS/ROOF/C | 4 | 0 | 1995 | 106.0 |
| | oOBD | Out Buildings | 4 | 0 | 1995 | 0.0 |
| Improvement #2: | RESIDENTIAL | State Code: | Y | 1008.0 sqft | Value: | $222,656 |
| Bathrooms: | 2 | Bedrooms: | 2 | | Ceiling: | DRYWALL PAINTED | Exterior Wall/Cover: | CEMENT FIBER | | Floor Covering: | COLORED CONCRETE | Floor Structure: | SLAB ON GRADE | | Foundation: | CONCRETE | Heating: | RADIANT FLOOR | | Interior Finish: | DRYWALL PAINT | Plumbing Fixture Cnt: | 11 | | Roof Slope: | 5" IN 12" | Roof Structure/Cover: | CJ ASPHALT |
|
| | Type | Description | Class CD | Sub Class CD | Year Built | Area |
| | BAS | BASE/MAIN FLOOR | 3 | 0 | 2006 | 1008.0 |
| | OP3 | OPEN PORCH W/ROOF | 3 | 0 | 2006 | 64.0 |
| | AGR | ATTACHED GARAGE | 3 | 0 | 2006 | 543.0 |
Sketch
Property Image
Land
| 1 | 32 | AC (03.01-09.99) | 4.8200 | 0.00 | 0.00 | 0.00 | 1.00 | $360,000 | $0 |
Roll Value History
| 2026 | N/A | N/A | N/A | N/A | N/A |
| 2025 | $815,353 | $360,000 | $0 | $1,175,353 | $1,175,353 |
| 2024 | $824,772 | $340,000 | $0 | $1,164,772 | $1,164,772 |
| 2023 | $834,194 | $320,000 | $0 | $1,154,194 | $1,154,194 |
| 2022 | $768,610 | $300,000 | $0 | $1,068,610 | $1,068,610 |
| 2021 | $676,866 | $230,000 | $0 | $906,866 | $906,866 |
| 2020 | $659,635 | $190,000 | $0 | $849,635 | $849,635 |
| 2019 | $497,350 | $220,000 | $0 | $717,350 | $717,350 |
| 2018 | $498,642 | $190,000 | $0 | $688,642 | $688,642 |
| 2017 | $501,099 | $150,000 | $0 | $651,099 | $651,099 |
| 2016 | $506,267 | $135,000 | $0 | $641,267 | $641,267 |
| 2015 | $470,350 | $135,000 | $0 | $605,350 | $605,350 |
| 2014 | $475,274 | $135,000 | $0 | $610,274 | $610,274 |
| 2013 | $480,198 | $107,968 | $0 | $588,166 | $588,166 |
| 2012 | $514,245 | $107,968 | $0 | $622,213 | $622,213 |
| 2011 | $519,169 | $134,960 | $0 | $654,129 | $654,129 |
| 2010 | $504,084 | $134,960 | $0 | $639,044 | $639,044 |
| 2009 | $523,855 | $154,240 | $0 | $678,095 | $678,095 |
| 2008 | $531,716 | $168,700 | $0 | $700,416 | $700,416 |
| 2007 | $540,041 | $152,319 | $0 | $692,360 | $692,360 |
Deed and Sales History
| 1 | 01/01/1900 | OTHER | Other - Misc. Documents | Unknown | HERIGSTAD, SCOTT J | | | $0.00 | 41871 | 94011010 |
Payout Agreement
| No payout information available.. |