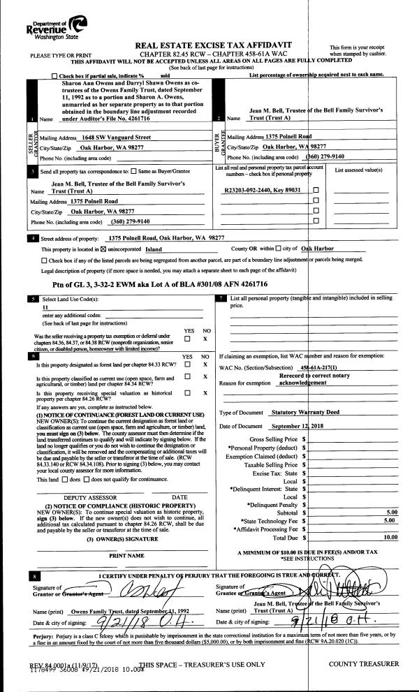
Property
Account |
| Property ID: | 740078 | Abbreviated Legal Description: | FIRESIDE #3 LOT 23 |
| Geographic ID: | S6632-03-00023-0 | Agent Code: | |
| Type: | Real | | |
| Tax Area: | 100 - APPRAISER-OH Schl Dist, in OH | Land Use Code | 11 |
| Open Space: | N | DFL | N |
| Historic Property: | N | Remodel Property: | N |
| Multi-Family Redevelopment: | N | | |
| Township: | | Section: | |
| Range: | |
Location |
| Address: | 1540 SW 17TH AVE OAK HARBOR, WA 98277 | Mapsco: | |
| Neighborhood: | Cycle 1 | Map ID: | 90 |
| Neighborhood CD: | 1 |
Owner |
| Name: | RICHARD, EDOUARD D | Owner ID: | 188611 |
| Mailing Address: | HEIDI S RICHARD 1540 SW 17TH AVE OAK HARBOR, WA 98277-7112 | % Ownership: | 100.0000000000% |
| | | Exemptions: | |
Taxes and Assessment Details
Values
| (+) Improvement Homesite Value: | + | $0 | |
| (+) Improvement Non-Homesite Value: | + | $314,165 | |
| (+) Land Homesite Value: | + | $0 | |
| (+) Land Non-Homesite Value: | + | $200,000 | |
| (+) Curr Use (HS): | + | $0 | $0 |
| (+) Curr Use (NHS): | + | $0 | $0 |
| | | -------------------------- | |
| (=) Market Value: | = | $514,165 | |
| (–) Productivity Loss: | – | $0 | |
| | | -------------------------- | |
| (=) Subtotal: | = | $514,165 | |
| (+) Senior Appraised Value: | + | $0 | |
| (+) Non-Senior Appraised Value: | + | $514,165 | |
| | | -------------------------- | |
| (=) Total Appraised Value: | = | $514,165 | |
| (–) Senior Exemption Loss: | – | $0 | |
| (–) Exemption Loss: | – | $0 | |
| | | -------------------------- | |
| (=) Taxable Value: | = | $514,165 | |
Taxing Jurisdiction
| Owner: | RICHARD, EDOUARD D | | |
| % Ownership: | 100.0000000000% | | |
| Total Value: | $514,165 | | |
| Tax Area: | 100 - APPRAISER-OH Schl Dist, in OH |
| CF | Conservation Futures | 0.0316035091 | $514,165 | $514,165 | $16.25 | | |
| CEM1 | Cemetery #1 | 0.0040320932 | $514,165 | $514,165 | $2.07 | | |
| COH | City of Oak Harbor | 2.3001546061 | $514,165 | $514,165 | $1,182.66 | | |
| OAKBOND | City of Oak Harbor BOND | 0.1926904192 | $514,165 | $514,165 | $99.07 | | |
| HOBOND | Hospital BOND | 0.1910887512 | $514,165 | $514,165 | $98.25 | | |
| HOGEN | Hospital GEN | 0.3902502903 | $514,165 | $514,165 | $200.65 | | |
| CE | County Current Expense | 0.3708482477 | $514,165 | $514,165 | $190.68 | | |
| ISLANDEMS | Hospital GEN (EMS) | 0.5000000000 | $514,165 | $514,165 | $257.08 | | |
| LIB | Library Sno-Isle GEN | 0.3153421757 | $514,165 | $514,165 | $162.14 | | |
| NWHIDPRMT | P & R N Whidbey GEN | 0.2004466701 | $514,165 | $514,165 | $103.06 | | |
| SCH201MO | School 201 Enrichment | 1.8559231640 | $514,165 | $514,165 | $954.25 | | |
| ST | State School | 1.3035497053 | $514,165 | $514,165 | $670.24 | | |
| ST2 | State School Part 2 | 0.8169543533 | $514,165 | $514,165 | $420.05 | | |
| | Total Tax Rate: | 8.4728839852 | | | | | |
| | | | | Taxes w/Current Exemptions: | $4,356.45 | | |
| | | | | Taxes w/o Exemptions: | $4,356.45 | | |
Improvement / Building
| Improvement #1: | RESIDENTIAL | State Code: | Y | 2024.0 sqft | Value: | $314,165 |
| Bathrooms: | 2 | Bedrooms: | 3 | | Ceiling: | DRYWALL PAINTED | Exterior Wall/Cover: | VINYL | | Floor Covering: | CARPET/VINYL 80-20 | Floor Structure: | WOOD W/SUBFLOOR | | Foundation: | CONCRETE | Heating: | FHA GAS | | Interior Finish: | DRYWALL PAINT | Plumbing Fixture Cnt: | 9 | | Roof Slope: | 5" IN 12" | Roof Structure/Cover: | CJ ASPHALT |
|
| | Type | Description | Class CD | Sub Class CD | Year Built | Area |
| | BAS | BASE/MAIN FLOOR | 3 | 0 | 2002 | 2024.0 |
| | AGR | ATTACHED GARAGE | 3 | 0 | 2002 | 528.0 |
| | OWP | OPEN WOOD PORCH W/STEPS | 3 | 0 | 2002 | 240.0 |
| | OWC | OPEN WOOD PORCH W/STEPS/ROOF/C | 3 | 0 | 2002 | 110.0 |
Sketch
Property Image
Land
| 1 | 15 | SQ (12001-21780) | 0.0000 | 0.00 | 0.00 | 0.00 | 1.00 | $200,000 | $0 |
Roll Value History
| 2026 | N/A | N/A | N/A | N/A | N/A |
| 2025 | $314,165 | $200,000 | $0 | $514,165 | $514,165 |
| 2024 | $317,985 | $190,000 | $0 | $507,985 | $507,985 |
| 2023 | $314,165 | $180,000 | $0 | $494,165 | $494,165 |
| 2022 | $287,936 | $160,000 | $0 | $447,936 | $447,936 |
| 2021 | $253,396 | $130,000 | $0 | $383,396 | $383,396 |
| 2020 | $247,341 | $100,000 | $0 | $347,341 | $347,341 |
| 2019 | $189,994 | $150,000 | $0 | $339,994 | $339,994 |
| 2018 | $190,546 | $130,000 | $0 | $320,546 | $320,546 |
| 2017 | $191,647 | $120,000 | $0 | $311,647 | $311,647 |
| 2016 | $193,850 | $90,000 | $0 | $283,850 | $283,850 |
| 2015 | $196,052 | $70,000 | $0 | $266,052 | $266,052 |
| 2014 | $198,255 | $65,000 | $0 | $263,255 | $263,255 |
| 2013 | $200,457 | $65,000 | $0 | $265,457 | $265,457 |
| 2012 | $202,660 | $65,000 | $0 | $267,660 | $267,660 |
| 2011 | $219,117 | $45,000 | $0 | $264,117 | $264,117 |
| 2010 | $224,642 | $45,000 | $0 | $269,642 | $269,642 |
| 2009 | $231,785 | $75,000 | $0 | $306,785 | $306,785 |
| 2008 | $234,536 | $95,000 | $0 | $329,536 | $329,536 |
| 2007 | $239,720 | $95,000 | $0 | $334,720 | $334,720 |
Deed and Sales History
| 1 | 07/01/2005 | WD | Warranty Deed | NASH, JAMES R | RICHARD, EDOUARD D | | | $289,900.00 | 53391 | 4140701 |
| 2 | 09/10/2002 | WD | Warranty Deed | HOMESTEAD NW DEV CO, | NASH, JAMES R | | | $220,938.00 | 23631 | 4030999 |
| 3 | 05/08/2002 | WD | Warranty Deed | KRIEG, DEVELOPMENT G | HOMESTEAD NW DEV CO, | | | $45,000.00 | 21829 | 4020107 |
| 4 | 01/01/1900 | OTHER | Other - Misc. Documents | Unknown | KRIEG, DEVELOPMENT G | | | $0.00 | 31700 | 93008751 |
Payout Agreement
| No payout information available.. |