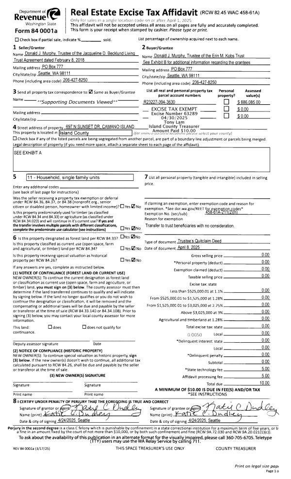
Property
Account |
| Property ID: | 740087 | Abbreviated Legal Description: | FIRESIDE #3 LOT 24 |
| Geographic ID: | S6632-03-00024-0 | Agent Code: | |
| Type: | Real | | |
| Tax Area: | 100 - APPRAISER-OH Schl Dist, in OH | Land Use Code | 11 |
| Open Space: | N | DFL | N |
| Historic Property: | N | Remodel Property: | N |
| Multi-Family Redevelopment: | N | | |
| Township: | | Section: | |
| Range: | |
Location |
| Address: | 1530 SW 17TH AVE OAK HARBOR, WA 98277 | Mapsco: | |
| Neighborhood: | Cycle 1 | Map ID: | 90 |
| Neighborhood CD: | 1 |
Owner |
| Name: | 17TH AVE OH, LLC | Owner ID: | 314056 |
| Mailing Address: | 2226 HASTIE LAKE RD OAK HARBOR, WA 98277 | % Ownership: | 100.0000000000% |
| | | Exemptions: | |
Taxes and Assessment Details
Values
| (+) Improvement Homesite Value: | + | $0 | |
| (+) Improvement Non-Homesite Value: | + | $327,826 | |
| (+) Land Homesite Value: | + | $0 | |
| (+) Land Non-Homesite Value: | + | $200,000 | |
| (+) Curr Use (HS): | + | $0 | $0 |
| (+) Curr Use (NHS): | + | $0 | $0 |
| | | -------------------------- | |
| (=) Market Value: | = | $527,826 | |
| (–) Productivity Loss: | – | $0 | |
| | | -------------------------- | |
| (=) Subtotal: | = | $527,826 | |
| (+) Senior Appraised Value: | + | $0 | |
| (+) Non-Senior Appraised Value: | + | $527,826 | |
| | | -------------------------- | |
| (=) Total Appraised Value: | = | $527,826 | |
| (–) Senior Exemption Loss: | – | $0 | |
| (–) Exemption Loss: | – | $0 | |
| | | -------------------------- | |
| (=) Taxable Value: | = | $527,826 | |
Taxing Jurisdiction
| Owner: | 17TH AVE OH, LLC | | |
| % Ownership: | 100.0000000000% | | |
| Total Value: | $527,826 | | |
| Tax Area: | 100 - APPRAISER-OH Schl Dist, in OH |
| CF | Conservation Futures | 0.0316035091 | $527,826 | $527,826 | $16.68 | | |
| CEM1 | Cemetery #1 | 0.0040320932 | $527,826 | $527,826 | $2.13 | | |
| COH | City of Oak Harbor | 2.3001546061 | $527,826 | $527,826 | $1,214.08 | | |
| OAKBOND | City of Oak Harbor BOND | 0.1926904192 | $527,826 | $527,826 | $101.71 | | |
| HOBOND | Hospital BOND | 0.1910887512 | $527,826 | $527,826 | $100.86 | | |
| HOGEN | Hospital GEN | 0.3902502903 | $527,826 | $527,826 | $205.98 | | |
| CE | County Current Expense | 0.3708482477 | $527,826 | $527,826 | $195.74 | | |
| ISLANDEMS | Hospital GEN (EMS) | 0.5000000000 | $527,826 | $527,826 | $263.91 | | |
| LIB | Library Sno-Isle GEN | 0.3153421757 | $527,826 | $527,826 | $166.45 | | |
| NWHIDPRMT | P & R N Whidbey GEN | 0.2004466701 | $527,826 | $527,826 | $105.80 | | |
| SCH201MO | School 201 Enrichment | 1.8559231640 | $527,826 | $527,826 | $979.60 | | |
| ST | State School | 1.3035497053 | $527,826 | $527,826 | $688.05 | | |
| ST2 | State School Part 2 | 0.8169543533 | $527,826 | $527,826 | $431.21 | | |
| | Total Tax Rate: | 8.4728839852 | | | | | |
| | | | | Taxes w/Current Exemptions: | $4,472.20 | | |
| | | | | Taxes w/o Exemptions: | $4,472.20 | | |
Improvement / Building
| Improvement #1: | RESIDENTIAL | State Code: | Y | 2018.0 sqft | Value: | $327,826 |
| Bathrooms: | 2 | Bedrooms: | 3 | | Ceiling: | DRYWALL PAINTED | Exterior Wall/Cover: | CEMENT FIBER | | Floor Covering: | CARPET/VINYL 20-80 | Floor Structure: | WOOD W/SUBFLOOR | | Foundation: | CONCRETE | Heating: | FHA GAS | | Interior Finish: | DRYWALL PAINT | Plumbing Fixture Cnt: | 11 | | Roof Slope: | 8" IN 12" | Roof Structure/Cover: | CJ ASPHALT |
|
| | Type | Description | Class CD | Sub Class CD | Year Built | Area |
| | BAS | BASE/MAIN FLOOR | 3 | 0 | 2002 | 1230.0 |
| | AGR | ATTACHED GARAGE | 3 | 0 | 2002 | 448.0 |
| | UPS | UPPER STORY | 3 | 0 | 2002 | 788.0 |
| | OWP | OPEN WOOD PORCH W/STEPS | 3 | 0 | 2002 | 120.0 |
| | OWC | OPEN WOOD PORCH W/STEPS/ROOF/C | 3 | 0 | 2002 | 156.0 |
Sketch
| No sketches available for this property. |
Property Image
Land
| 1 | 15 | SQ (12001-21780) | 0.0000 | 0.00 | 0.00 | 0.00 | 1.00 | $200,000 | $0 |
Roll Value History
| 2026 | N/A | N/A | N/A | N/A | N/A |
| 2025 | $327,826 | $200,000 | $0 | $527,826 | $527,826 |
| 2024 | $342,433 | $190,000 | $0 | $532,433 | $532,433 |
| 2023 | $334,207 | $180,000 | $0 | $514,207 | $514,207 |
| 2022 | $308,397 | $160,000 | $0 | $468,397 | $468,397 |
| 2021 | $271,432 | $130,000 | $0 | $401,432 | $401,432 |
| 2020 | $264,900 | $100,000 | $0 | $364,900 | $364,900 |
| 2019 | $203,934 | $150,000 | $0 | $353,934 | $353,934 |
| 2018 | $204,532 | $130,000 | $0 | $334,532 | $334,532 |
| 2017 | $196,718 | $120,000 | $0 | $316,718 | $316,718 |
| 2016 | $198,954 | $90,000 | $0 | $288,954 | $288,954 |
| 2015 | $201,190 | $70,000 | $0 | $271,190 | $271,190 |
| 2014 | $203,426 | $65,000 | $0 | $268,426 | $268,426 |
| 2013 | $205,660 | $65,000 | $0 | $270,660 | $270,660 |
| 2012 | $207,896 | $65,000 | $0 | $272,896 | $272,896 |
| 2011 | $220,805 | $45,000 | $0 | $265,805 | $265,805 |
| 2010 | $226,970 | $45,000 | $0 | $271,970 | $271,970 |
| 2009 | $236,482 | $75,000 | $0 | $311,482 | $311,482 |
| 2008 | $241,536 | $95,000 | $0 | $336,536 | $336,536 |
| 2007 | $241,676 | $95,000 | $0 | $336,676 | $336,676 |
Deed and Sales History
| 1 | 09/24/2024 | WD | Warranty Deed | PENDLETON, KATHLEEN A | 17TH AVE OH, LLC | | | $505,250.00 | 61432 | 4577705 |
| 2 | 01/13/2023 | QCD | Quit Claim Deed | PENDLETON, JOHN M | PENDLETON, KATHLEEN A | | | $0.00 | 55648 | 4555848 |
| 3 | 11/12/2002 | WD | Warranty Deed | HOMESTEAD NW DEV CO, | PENDLETON, JOHN M | | | $204,950.00 | 24623 | 4037867 |
| 4 | 04/01/2002 | WD | Warranty Deed | KRIEG, DEVELOPMENT G | HOMESTEAD NW DEV CO, | | | $45,000.00 | 21327 | 4016503 |
| 5 | 01/01/1900 | OTHER | Other - Misc. Documents | Unknown | KRIEG, DEVELOPMENT G | | | $0.00 | 31700 | 93008751 |
Payout Agreement
| No payout information available.. |