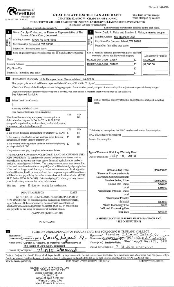
Property
Account |
| Property ID: | 741291 | Abbreviated Legal Description: | BUENA VISTA 3 LOT 4 BLK 7 |
| Geographic ID: | S6195-03-07004-0 | Agent Code: | |
| Type: | Real | | |
| Tax Area: | 590 - APPRAISER-Stan/Cam Schl Dist, Special Dist, improved & less than 1 acre | Land Use Code | 11 |
| Open Space: | N | DFL | N |
| Historic Property: | N | Remodel Property: | N |
| Multi-Family Redevelopment: | N | | |
| Township: | | Section: | |
| Range: | |
Location |
| Address: | 19 VISTA DEL MAR ST CAMANO ISLAND, WA 98282 | Mapsco: | |
| Neighborhood: | North Camano | Map ID: | 962 |
| Neighborhood CD: | 06-C |
Owner |
| Name: | SCHUFREIDER, CHARLES S | Owner ID: | 286228 |
| Mailing Address: | ELLEN E SCHUFREIDER 19 VISTA DEL MAR CAMANO ISLAND, WA 98282 | % Ownership: | 100.0000000000% |
| | | Exemptions: | |
Taxes and Assessment Details
Values
| (+) Improvement Homesite Value: | + | $0 | |
| (+) Improvement Non-Homesite Value: | + | $355,735 | |
| (+) Land Homesite Value: | + | $0 | |
| (+) Land Non-Homesite Value: | + | $380,000 | |
| (+) Curr Use (HS): | + | $0 | $0 |
| (+) Curr Use (NHS): | + | $0 | $0 |
| | | -------------------------- | |
| (=) Market Value: | = | $735,735 | |
| (–) Productivity Loss: | – | $0 | |
| | | -------------------------- | |
| (=) Subtotal: | = | $735,735 | |
| (+) Senior Appraised Value: | + | $0 | |
| (+) Non-Senior Appraised Value: | + | $735,735 | |
| | | -------------------------- | |
| (=) Total Appraised Value: | = | $735,735 | |
| (–) Senior Exemption Loss: | – | $0 | |
| (–) Exemption Loss: | – | $0 | |
| | | -------------------------- | |
| (=) Taxable Value: | = | $735,735 | |
Taxing Jurisdiction
| Owner: | SCHUFREIDER, CHARLES S | | |
| % Ownership: | 100.0000000000% | | |
| Total Value: | $735,735 | | |
| Tax Area: | 590 - APPRAISER-Stan/Cam Schl Dist, Special Dist, improved & less than 1 acre |
| CF | Conservation Futures | 0.0316035091 | $735,735 | $735,735 | $23.25 | | |
| EMS1 | Fire & Rescue Dist #1 Camano GEN (EMS) | 0.3677864386 | $735,735 | $735,735 | $270.59 | | |
| FIRE1 | Fire & Rescue Dist #1 Camano GEN | 1.2502910536 | $735,735 | $735,735 | $919.88 | | |
| FIRE1BOND | Fire & Rescue Dist #1 Camano BOND | 0.1570001679 | $735,735 | $735,735 | $115.51 | | |
| CE | County Current Expense | 0.3708482477 | $735,735 | $735,735 | $272.85 | | |
| CR | County Roads | 0.4584763726 | $735,735 | $735,735 | $337.32 | | |
| LCIB | Library Sno-Isle BOND (Camano Island) | 0.0396325772 | $735,735 | $735,735 | $29.16 | | |
| LIB | Library Sno-Isle GEN | 0.3153421757 | $735,735 | $735,735 | $232.01 | | |
| SCH205_401 | School 205-401 Enrichment | 1.2698420524 | $735,735 | $735,735 | $934.27 | | |
| SCH205BOND | School 205-401 BOND | 0.9396497583 | $735,735 | $735,735 | $691.33 | | |
| ST | State School | 1.3035497053 | $735,735 | $735,735 | $959.07 | | |
| ST2 | State School Part 2 | 0.8169543533 | $735,735 | $735,735 | $601.06 | | |
| | Total Tax Rate: | 7.3209764117 | | | | | |
| | | | | Taxes w/Current Exemptions: | $5,386.30 | | |
| | | | | Taxes w/o Exemptions: | $5,386.30 | | |
Improvement / Building
| Improvement #1: | RESIDENTIAL | State Code: | Y | 2366.0 sqft | Value: | $355,735 |
| Bathrooms: | 2 | Bedrooms: | 3 | | Ceiling: | DRYWALL PAINTED | Cooling: | HEAT PUMP/CONV/V | | Exterior Wall/Cover: | VINYL | Floor Covering: | HARDWOOD/CARP 80-20 | | Floor Structure: | WOOD W/SUBFLOOR | Foundation: | CONCRETE | | Interior Finish: | DRYWALL PAINT | Plumbing Fixture Cnt: | 11 | | Roof Slope: | 4" IN 12" | Roof Structure/Cover: | CJ ASPHALT |
|
| | Type | Description | Class CD | Sub Class CD | Year Built | Area |
| | BAS | BASE/MAIN FLOOR | 3 | 0 | 1977 | 1376.0 |
| | OP1 | OPEN PORCH SLAB | 3 | 0 | 1977 | 488.0 |
| | OP1 | OPEN PORCH SLAB | 3 | 0 | 1977 | 440.0 |
| | AGR | ATTACHED GARAGE | 3 | 0 | 1977 | 528.0 |
| | OWP | OPEN WOOD PORCH W/STEPS | 3 | 0 | 1977 | 288.0 |
| | DWN | DOWNSTAIRS LIVING AREA | 3 | 0 | 1977 | 990.0 |
Sketch
Property Image
Land
| 1 | 14 | SQ (08001-12000) | 0.0000 | 0.00 | 0.00 | 0.00 | 1.00 | $380,000 | $0 |
Roll Value History
| 2026 | N/A | N/A | N/A | N/A | N/A |
| 2025 | $355,735 | $380,000 | $0 | $735,735 | $735,735 |
| 2024 | $360,401 | $370,000 | $0 | $730,401 | $730,401 |
| 2023 | $365,067 | $370,000 | $0 | $735,067 | $735,067 |
| 2022 | $330,588 | $340,000 | $0 | $670,588 | $670,588 |
| 2021 | $291,149 | $220,000 | $0 | $511,149 | $511,149 |
| 2020 | $284,427 | $220,000 | $0 | $504,427 | $504,427 |
| 2019 | $220,969 | $290,000 | $0 | $510,969 | $510,969 |
| 2018 | $193,168 | $200,000 | $0 | $393,168 | $393,168 |
| 2017 | $194,448 | $180,000 | $0 | $374,448 | $374,448 |
| 2016 | $178,848 | $175,000 | $0 | $353,848 | $353,848 |
| 2015 | $181,366 | $100,000 | $0 | $281,366 | $281,366 |
| 2014 | $183,886 | $100,000 | $0 | $283,886 | $283,886 |
| 2013 | $186,405 | $100,000 | $0 | $286,405 | $286,405 |
| 2012 | $188,924 | $108,000 | $0 | $296,924 | $296,924 |
| 2011 | $191,442 | $135,000 | $0 | $326,442 | $326,442 |
| 2010 | $181,256 | $135,000 | $0 | $316,256 | $316,256 |
| 2009 | $189,227 | $250,000 | $0 | $439,227 | $439,227 |
| 2008 | $191,736 | $250,000 | $0 | $441,736 | $441,736 |
| 2007 | $194,246 | $250,000 | $0 | $444,246 | $444,246 |
Deed and Sales History
| 1 | 07/23/2018 | WD | Warranty Deed | DEGROOT, PAUL M | SCHUFREIDER, CHARLES S | | | $516,000.00 | 35238 | 4449017 |
| 2 | 10/22/2002 | WD | Warranty Deed | ANDERSON ET AL, RUSSELL | DEGROOT, PAUL M | | | $210,500.00 | 24575 | 4037501 |
| 3 | 04/09/2001 | OTHER | Other - Misc. Documents | HALL - LIFE EST, BERTHA L | ANDERSON ET AL, RUSSELL | | | $0.00 | 69001 | 20026951 |
| 4 | 08/09/1999 | PRD | Personal Representatives Deed | HALL, BERTHA L | HALL - LIFE EST, BERTHA L | | | $0.00 | 93390 | 99019500 |
| 5 | 05/01/1996 | OTHER | Other - Misc. Documents | ANDERSON, GORDON T | HALL, BERTHA L | | | $0.00 | 66907 | 0 |
| 6 | 01/01/1900 | OTHER | Other - Misc. Documents | Unknown | ANDERSON, GORDON T | | | $0.00 | 0 | 0 |
Payout Agreement
| No payout information available.. |