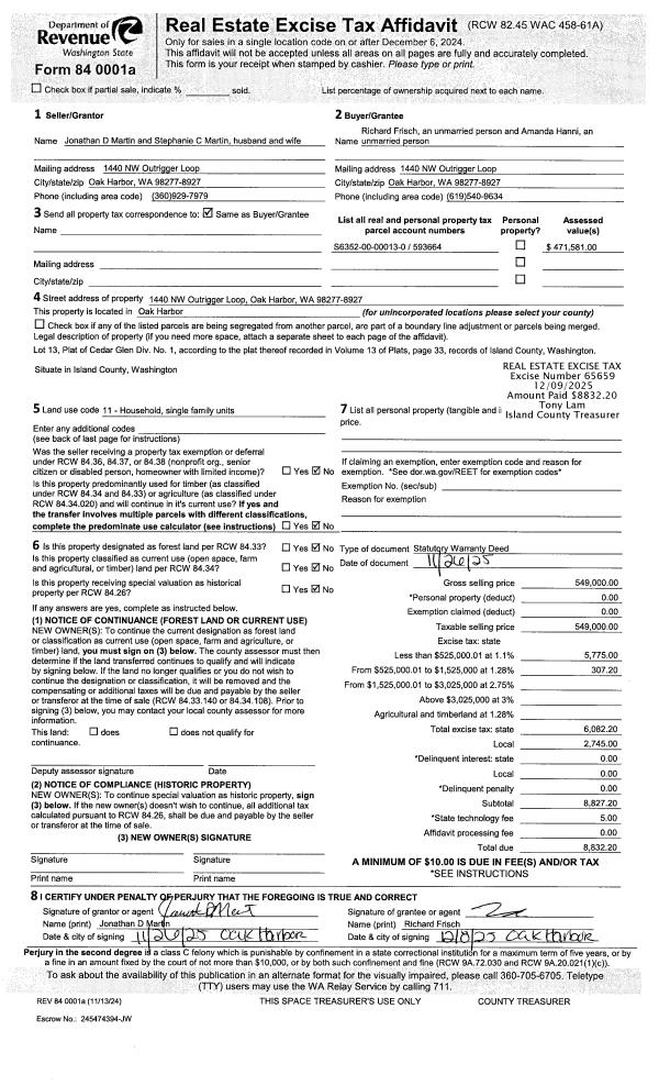
Property
Account |
| Property ID: | 74172 | Abbreviated Legal Description: | 12-3 - IN GL5: BG NWCR GL5 N11*E495.58' S84*E188.82' S73*E83.25' S73*E226.79' S87*E87.52' TPB S554.60' E199.45' N546.29' N87*W199 .575' TPB TGW & SUB EZS TGW 1 WATER SHARE |
| Geographic ID: | R23107-185-2230 | Agent Code: | |
| Type: | Real | | |
| Tax Area: | 312 - APPRAISER-Cpvl Schl Dist, outside Cpvl, improved, greater than 1 acre | Land Use Code | 11 |
| Open Space: | N | DFL | N |
| Historic Property: | N | Remodel Property: | N |
| Multi-Family Redevelopment: | N | | |
| Township: | 31 | Section: | 07 |
| Range: | R2 |
Location |
| Address: | 156 DENNEBOOM RD COUPEVILLE, WA 98239 | Mapsco: | |
| Neighborhood: | Cycle 2 | Map ID: | 462 |
| Neighborhood CD: | 2 |
Owner |
| Name: | WEAVER, KARLA | Owner ID: | 52826 |
| Mailing Address: | 52 RICKARLA CIRCLE PORT ANGELES, WA 98363 | % Ownership: | 100.0000000000% |
| | | Exemptions: | |
Taxes and Assessment Details
Values
| (+) Improvement Homesite Value: | + | $0 | |
| (+) Improvement Non-Homesite Value: | + | $369,701 | |
| (+) Land Homesite Value: | + | $0 | |
| (+) Land Non-Homesite Value: | + | $308,125 | |
| (+) Curr Use (HS): | + | $0 | $0 |
| (+) Curr Use (NHS): | + | $0 | $0 |
| | | -------------------------- | |
| (=) Market Value: | = | $677,826 | |
| (–) Productivity Loss: | – | $0 | |
| | | -------------------------- | |
| (=) Subtotal: | = | $677,826 | |
| (+) Senior Appraised Value: | + | $0 | |
| (+) Non-Senior Appraised Value: | + | $677,826 | |
| | | -------------------------- | |
| (=) Total Appraised Value: | = | $677,826 | |
| (–) Senior Exemption Loss: | – | $0 | |
| (–) Exemption Loss: | – | $0 | |
| | | -------------------------- | |
| (=) Taxable Value: | = | $677,826 | |
Taxing Jurisdiction
| Owner: | WEAVER, KARLA | | |
| % Ownership: | 100.0000000000% | | |
| Total Value: | $677,826 | | |
| Tax Area: | 312 - APPRAISER-Cpvl Schl Dist, outside Cpvl, improved, greater than 1 acre |
| CF | Conservation Futures | 0.0316035091 | $677,826 | $677,826 | $21.42 | | |
| CEM2 | Cemetery #2 | 0.0095056933 | $677,826 | $677,826 | $6.44 | | |
| FIRE5 | Fire & Rescue Dist #5 C Whidbey GEN | 1.2008080668 | $677,826 | $677,826 | $813.94 | | |
| FIRE5BOND | Fire & Rescue Dist #5 C Whidbey BOND | 0.1400090713 | $677,826 | $677,826 | $94.90 | | |
| HOBOND | Hospital BOND | 0.1910887512 | $677,826 | $677,826 | $129.52 | | |
| HOGEN | Hospital GEN | 0.3902502903 | $677,826 | $677,826 | $264.52 | | |
| CE | County Current Expense | 0.3708482477 | $677,826 | $677,826 | $251.37 | | |
| CR | County Roads | 0.4584763726 | $677,826 | $677,826 | $310.77 | | |
| ISLANDEMS | Hospital GEN (EMS) | 0.5000000000 | $677,826 | $677,826 | $338.91 | | |
| LIB | Library Sno-Isle GEN | 0.3153421757 | $677,826 | $677,826 | $213.75 | | |
| LIBCAP | Library Sno-Isle BOND (Cap Fac Imp Area) | 0.0543427938 | $677,826 | $677,826 | $36.83 | | |
| POCOUP | Port of Coupeville GEN | 0.1093371703 | $677,826 | $677,826 | $74.11 | | |
| POCOUPIDD | Port of Coupeville IDD | 0.3409740022 | $677,826 | $677,826 | $231.12 | | |
| COUPSDTECH | School 204 CP (TECH) | 0.7545480007 | $677,826 | $677,826 | $511.45 | | |
| SCH204MO | School 204 Enrichment | 0.6716186034 | $677,826 | $677,826 | $455.24 | | |
| ST | State School | 1.3035497053 | $677,826 | $677,826 | $883.58 | | |
| ST2 | State School Part 2 | 0.8169543533 | $677,826 | $677,826 | $553.75 | | |
| | Total Tax Rate: | 7.6592568070 | | | | | |
| | | | | Taxes w/Current Exemptions: | $5,191.62 | | |
| | | | | Taxes w/o Exemptions: | $5,191.62 | | |
Improvement / Building
| Improvement #1: | RESIDENTIAL | State Code: | Y | 2652.0 sqft | Value: | $369,701 |
| Bathrooms: | 3 | Bedrooms: | 4 | | Ceiling: | DRYWALL PAINTED | Exterior Wall/Cover: | CEMENT FIBER | | Floor Covering: | CERAMIC TILE/HWD 40/60 | Floor Structure: | WOOD W/SUBFLOOR | | Foundation: | CONCRETE | Heating: | FHA GAS | | Interior Finish: | DRYWALL PAINT | Plumbing Fixture Cnt: | 12 | | Roof Slope: | 4" IN 12" | Roof Structure/Cover: | CJ ASPHALT |
|
| | Type | Description | Class CD | Sub Class CD | Year Built | Area |
| | BAS | BASE/MAIN FLOOR | 3 | 0 | 1978 | 1772.0 |
| | OP2 | OPEN PORCH W/STEPS | 3 | 0 | 1978 | 88.8 |
| | UPS | UPPER STORY | 3 | 0 | 1978 | 880.0 |
| | AGR | ATTACHED GARAGE | 3 | 0 | 1978 | 416.0 |
| | OWP | OPEN WOOD PORCH W/STEPS | 3 | 0 | 1978 | 413.1 |
Sketch
Property Image
Land
| 1 | HS | HOMESITE | 1.0000 | 43560.00 | 0.00 | 0.00 | 1.00 | $220,000 | $0 |
| 2 | 91 | UNDEVELOPED LAND-METES AND BOUNDS | 1.5000 | 65340.00 | 0.00 | 0.00 | 1.00 | $88,125 | $0 |
Roll Value History
| 2026 | N/A | N/A | N/A | N/A | N/A |
| 2025 | $369,701 | $308,125 | $0 | $677,826 | $677,826 |
| 2024 | $360,252 | $280,000 | $0 | $640,252 | $640,252 |
| 2023 | $364,975 | $270,000 | $0 | $634,975 | $634,975 |
| 2022 | $334,758 | $250,000 | $0 | $584,758 | $584,758 |
| 2021 | $294,820 | $150,000 | $0 | $444,820 | $444,820 |
| 2020 | $288,063 | $150,000 | $0 | $438,063 | $438,063 |
| 2019 | $226,446 | $180,000 | $0 | $406,446 | $406,446 |
| 2018 | $219,234 | $160,000 | $0 | $379,234 | $379,234 |
| 2017 | $220,657 | $130,000 | $0 | $350,657 | $350,657 |
| 2016 | $223,522 | $125,000 | $0 | $348,522 | $348,522 |
| 2015 | $226,389 | $90,000 | $0 | $316,389 | $316,389 |
| 2014 | $229,254 | $100,000 | $0 | $329,254 | $329,254 |
| 2013 | $232,121 | $100,000 | $0 | $332,121 | $332,121 |
| 2012 | $234,986 | $100,000 | $0 | $334,986 | $334,986 |
| 2011 | $144,827 | $100,000 | $0 | $244,827 | $244,827 |
| 2010 | $64,260 | $100,000 | $0 | $164,260 | $164,260 |
| 2009 | $66,243 | $125,000 | $0 | $191,243 | $191,243 |
| 2008 | $207,528 | $125,000 | $0 | $332,528 | $332,528 |
| 2007 | $201,375 | $125,000 | $0 | $326,375 | $326,375 |
Deed and Sales History
| 1 | 03/29/2010 | ESTSEPPROP | Establish Separate Property | WEAVER, RICKEY G | WEAVER, KARLA | | | $0.00 | 683 | 4271074 |
| 2 | 03/27/2009 | TRUSTEED | Trustee's Deed | THE BANK OF NEW YORK, | WEAVER, RICKEY G | | | $183,500.00 | 90782 | 4248548 |
| 3 | 05/16/2008 | TRUSTEED | Trustee's Deed | WILLIAMSON, MICHAEL A | THE BANK OF NEW YORK, | | | $328,368.00 | 81309 | 4229240 |
| 4 | 04/10/2000 | WD | Warranty Deed | FEDERAL NATIONAL MTG ASSOC., C | WILLIAMSON, MICHAEL A | | | $174,000.00 | 1431 | 20006997 |
| 5 | 02/10/2000 | TRUSTEED | Trustee's Deed | HEFFLEY, RALPH E | FEDERAL NATIONAL MTG ASSOC., C | | | $155,437.00 | 529 | 20002848 |
| 6 | 06/01/1990 | QCD | Quit Claim Deed | HEFFLEY, RALPH E | HEFFLEY, RALPH E | | | $0.00 | 3404 | 90011105 |
| 7 | 12/01/1977 | TRUSTEED | Trustee's Deed | SWENSON, MARY F | HEFFLEY, RALPH E | | | $0.00 | 75514 | 0 |
| 8 | 01/01/1900 | OTHER | Other - Misc. Documents | Unknown | SWENSON, MARY F | | | $0.00 | 0 | 0 |
Payout Agreement
| No payout information available.. |