Property
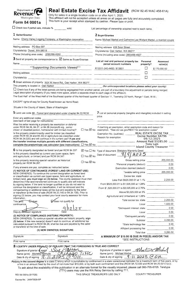
Account |
| Property ID: | 741790 | Abbreviated Legal Description: | IN GL2 & 3: E452.32'OF FOLL DESC: BG SWCR LOT 3 SP 40- 91 S01*W886.95'TP 1980' S OF NWCR GL 3 S88*E1056' N01*E967' N88*W430' S01*W80 .44' N88*W626'TPB FR 246-3800 |
| Geographic ID: | R13101-246-4070 | Agent Code: | |
| Type: | Real | | |
| Tax Area: | 312 - APPRAISER-Cpvl Schl Dist, outside Cpvl, improved, greater than 1 acre | Land Use Code | 11 |
| Open Space: | N | DFL | N |
| Historic Property: | N | Remodel Property: | N |
| Multi-Family Redevelopment: | N | | |
| Township: | 31 | Section: | 01 |
| Range: | R1 |
Location |
| Address: | 189 PERCHERON LN COUPEVILLE, WA 98239 | Mapsco: | |
| Neighborhood: | Cycle 2 | Map ID: | 18 |
| Neighborhood CD: | 2 |
Owner |
| Name: | HOFFMAN, DENNIS L | Owner ID: | 287267 |
| Mailing Address: | 102 N PHEASANT RUN RD COUPEVILLE, WA 98239 | % Ownership: | 100.0000000000% |
| | | Exemptions: | |
Taxes and Assessment Details
Values
| (+) Improvement Homesite Value: | + | $0 | |
| (+) Improvement Non-Homesite Value: | + | $260,961 | |
| (+) Land Homesite Value: | + | $0 | |
| (+) Land Non-Homesite Value: | + | $267,000 | |
| (+) Curr Use (HS): | + | $0 | $0 |
| (+) Curr Use (NHS): | + | $0 | $0 |
| | | -------------------------- | |
| (=) Market Value: | = | $527,961 | |
| (–) Productivity Loss: | – | $0 | |
| | | -------------------------- | |
| (=) Subtotal: | = | $527,961 | |
| (+) Senior Appraised Value: | + | $0 | |
| (+) Non-Senior Appraised Value: | + | $527,961 | |
| | | -------------------------- | |
| (=) Total Appraised Value: | = | $527,961 | |
| (–) Senior Exemption Loss: | – | $0 | |
| (–) Exemption Loss: | – | $0 | |
| | | -------------------------- | |
| (=) Taxable Value: | = | $527,961 | |
Taxing Jurisdiction
| Owner: | HOFFMAN, DENNIS L | | |
| % Ownership: | 100.0000000000% | | |
| Total Value: | $527,961 | | |
| Tax Area: | 312 - APPRAISER-Cpvl Schl Dist, outside Cpvl, improved, greater than 1 acre |
| CF | Conservation Futures | 0.0316035091 | $527,961 | $527,961 | $16.69 | | |
| CEM2 | Cemetery #2 | 0.0095056933 | $527,961 | $527,961 | $5.02 | | |
| FIRE5 | Fire & Rescue Dist #5 C Whidbey GEN | 1.2008080668 | $527,961 | $527,961 | $633.98 | | |
| FIRE5BOND | Fire & Rescue Dist #5 C Whidbey BOND | 0.1400090713 | $527,961 | $527,961 | $73.92 | | |
| HOBOND | Hospital BOND | 0.1910887512 | $527,961 | $527,961 | $100.89 | | |
| HOGEN | Hospital GEN | 0.3902502903 | $527,961 | $527,961 | $206.04 | | |
| CE | County Current Expense | 0.3708482477 | $527,961 | $527,961 | $195.79 | | |
| CR | County Roads | 0.4584763726 | $527,961 | $527,961 | $242.06 | | |
| ISLANDEMS | Hospital GEN (EMS) | 0.5000000000 | $527,961 | $527,961 | $263.98 | | |
| LIB | Library Sno-Isle GEN | 0.3153421757 | $527,961 | $527,961 | $166.49 | | |
| LIBCAP | Library Sno-Isle BOND (Cap Fac Imp Area) | 0.0543427938 | $527,961 | $527,961 | $28.69 | | |
| POCOUP | Port of Coupeville GEN | 0.1093371703 | $527,961 | $527,961 | $57.73 | | |
| POCOUPIDD | Port of Coupeville IDD | 0.3409740022 | $527,961 | $527,961 | $180.02 | | |
| COUPSDTECH | School 204 CP (TECH) | 0.7545480007 | $527,961 | $527,961 | $398.37 | | |
| SCH204MO | School 204 Enrichment | 0.6716186034 | $527,961 | $527,961 | $354.59 | | |
| ST | State School | 1.3035497053 | $527,961 | $527,961 | $688.22 | | |
| ST2 | State School Part 2 | 0.8169543533 | $527,961 | $527,961 | $431.32 | | |
| | Total Tax Rate: | 7.6592568070 | | | | | |
| | | | | Taxes w/Current Exemptions: | $4,043.80 | | |
| | | | | Taxes w/o Exemptions: | $4,043.80 | | |
Improvement / Building
| Improvement #1: | RESIDENTIAL | State Code: | Y | 0.0 sqft | Value: | $260,961 |
| | Type | Description | Class CD | Sub Class CD | Year Built | Area |
| | oARN | ARENA | 2 | 0 | 2021 | 8400.0 |
| | oCAR | CARPORT | 3 | 0 | 2021 | 612.0 |
| | oSTA | STABLE | 4 | 0 | 2021 | 1296.0 |
Sketch
Property Image
Land
| 1 | 98 | OTHER IMPROVED LAND | 1.0000 | 43560.00 | 0.00 | 0.00 | 1.00 | $132,000 | $0 |
| 2 | 91 | UNDEVELOPED LAND-METES AND BOUNDS | 9.0000 | 392040.00 | 0.00 | 0.00 | 1.00 | $135,000 | $0 |
Roll Value History
| 2026 | N/A | N/A | N/A | N/A | N/A |
| 2025 | $260,961 | $267,000 | $0 | $527,961 | $527,961 |
| 2024 | $258,000 | $250,000 | $0 | $508,000 | $508,000 |
| 2023 | $258,000 | $240,000 | $0 | $498,000 | $498,000 |
| 2022 | $258,000 | $200,000 | $0 | $458,000 | $458,000 |
| 2021 | $258,000 | $170,000 | $0 | $428,000 | $428,000 |
| 2020 | $0 | $150,000 | $0 | $150,000 | $150,000 |
| 2019 | $0 | $150,000 | $0 | $150,000 | $150,000 |
| 2018 | $0 | $150,000 | $0 | $150,000 | $150,000 |
| 2017 | $0 | $135,000 | $2,429 | $2,429 | $2,429 |
| 2016 | $0 | $125,000 | $2,429 | $2,429 | $2,429 |
| 2015 | $0 | $110,500 | $2,429 | $2,429 | $2,429 |
| 2014 | $0 | $110,500 | $2,429 | $2,429 | $2,429 |
| 2013 | $0 | $110,500 | $2,429 | $2,429 | $2,429 |
| 2012 | $0 | $110,500 | $2,429 | $2,429 | $2,429 |
| 2011 | $0 | $130,000 | $2,429 | $2,429 | $2,429 |
| 2010 | $0 | $130,000 | $2,429 | $2,429 | $2,429 |
| 2009 | $0 | $200,000 | $2,429 | $2,429 | $2,429 |
| 2008 | $0 | $170,000 | $2,429 | $2,429 | $2,429 |
| 2007 | $0 | $110,000 | $2,429 | $2,429 | $2,429 |
Deed and Sales History
| 1 | 10/16/2018 | WD | Warranty Deed | HALSTEAD, ROBERT L | HOFFMAN, DENNIS L | | | $160,000.00 | 36387 | 4453820 |
| 2 | 09/15/2009 | EZ | Easement | HALSTEAD, ROBERT L | HALSTEAD, ROBERT L | | | $1,167.00 | 92566 | 4262303 |
| 3 | 06/01/1996 | OTHER | Other - Misc. Documents | HALSTEAD, ROBERT L | HALSTEAD, ROBERT L | | | $0.00 | 66980 | 0 |
| 4 | 01/01/1900 | OTHER | Other - Misc. Documents | Unknown | HALSTEAD, ROBERT L | | | $0.00 | 11893 | 91008060 |
Payout Agreement
| No payout information available.. |