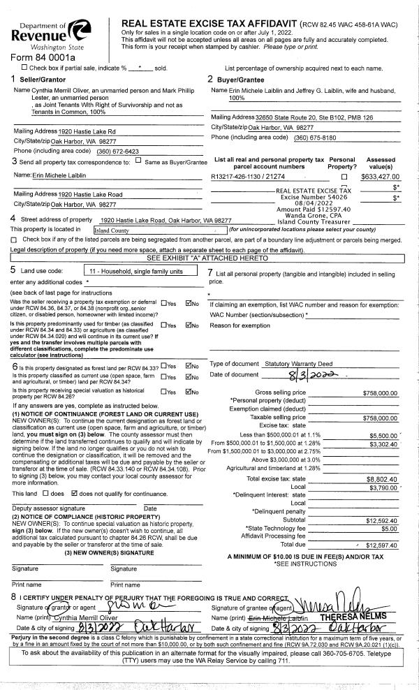
Property
Account |
| Property ID: | 741816 | Abbreviated Legal Description: | LOT 1 SP 74-90.03213.175-3780 V3 SP P81 AF#96007521 |
| Geographic ID: | R03213-156-3730 | Agent Code: | |
| Type: | Real | | |
| Tax Area: | 119 - APPRAISER-OH Schl Dist, outside OH, vacant & 50 acres or less | Land Use Code | 91 |
| Open Space: | N | DFL | N |
| Historic Property: | N | Remodel Property: | N |
| Multi-Family Redevelopment: | N | | |
| Township: | 32 | Section: | 13 |
| Range: | R0 |
Location |
| Address: | | Mapsco: | |
| Neighborhood: | Area 2 Waterfront Westside Residential | Map ID: | 1 |
| Neighborhood CD: | 2WFW01R |
Owner |
| Name: | YIN, HUIDE | Owner ID: | 297341 |
| Mailing Address: | XIN BIAN 3517 148TH ST SE MILL CREEK, WA 98012 | % Ownership: | 100.0000000000% |
| | | Exemptions: | |
Taxes and Assessment Details
Values
| (+) Improvement Homesite Value: | + | $0 | |
| (+) Improvement Non-Homesite Value: | + | $0 | |
| (+) Land Homesite Value: | + | $0 | |
| (+) Land Non-Homesite Value: | + | $240,000 | |
| (+) Curr Use (HS): | + | $0 | $0 |
| (+) Curr Use (NHS): | + | $0 | $0 |
| | | -------------------------- | |
| (=) Market Value: | = | $240,000 | |
| (–) Productivity Loss: | – | $0 | |
| | | -------------------------- | |
| (=) Subtotal: | = | $240,000 | |
| (+) Senior Appraised Value: | + | $0 | |
| (+) Non-Senior Appraised Value: | + | $240,000 | |
| | | -------------------------- | |
| (=) Total Appraised Value: | = | $240,000 | |
| (–) Senior Exemption Loss: | – | $0 | |
| (–) Exemption Loss: | – | $0 | |
| | | -------------------------- | |
| (=) Taxable Value: | = | $240,000 | |
Taxing Jurisdiction
| Owner: | YIN, HUIDE | | |
| % Ownership: | 100.0000000000% | | |
| Total Value: | $240,000 | | |
| Tax Area: | 119 - APPRAISER-OH Schl Dist, outside OH, vacant & 50 acres or less |
| CF | Conservation Futures | 0.0316035091 | $240,000 | $240,000 | $7.58 | | |
| CEM1 | Cemetery #1 | 0.0040320932 | $240,000 | $240,000 | $0.97 | | |
| HOBOND | Hospital BOND | 0.1910887512 | $240,000 | $240,000 | $45.86 | | |
| HOGEN | Hospital GEN | 0.3902502903 | $240,000 | $240,000 | $93.66 | | |
| CE | County Current Expense | 0.3708482477 | $240,000 | $240,000 | $89.00 | | |
| CR | County Roads | 0.4584763726 | $240,000 | $240,000 | $110.03 | | |
| ISLANDEMS | Hospital GEN (EMS) | 0.5000000000 | $240,000 | $240,000 | $120.00 | | |
| LIB | Library Sno-Isle GEN | 0.3153421757 | $240,000 | $240,000 | $75.68 | | |
| NWHIDPRMT | P & R N Whidbey GEN | 0.2004466701 | $240,000 | $240,000 | $48.11 | | |
| SCH201MO | School 201 Enrichment | 1.8559231640 | $240,000 | $240,000 | $445.42 | | |
| ST | State School | 1.3035497053 | $240,000 | $240,000 | $312.85 | | |
| ST2 | State School Part 2 | 0.8169543533 | $240,000 | $240,000 | $196.07 | | |
| | Total Tax Rate: | 6.4385153325 | | | | | |
| | | | | Taxes w/Current Exemptions: | $1,545.23 | | |
| | | | | Taxes w/o Exemptions: | $1,545.23 | | |
Improvement / Building
Sketch
| No sketches available for this property. |
Property Image
Land
| 1 | HB | HIGH BLUFF | 1.2000 | 52272.00 | 103.00 | 0.00 | 1.00 | $240,000 | $0 |
Roll Value History
| 2026 | N/A | N/A | N/A | N/A | N/A |
| 2025 | $0 | $240,000 | $0 | $240,000 | $240,000 |
| 2024 | $0 | $240,000 | $0 | $240,000 | $240,000 |
| 2023 | $0 | $240,000 | $0 | $240,000 | $240,000 |
| 2022 | $0 | $240,000 | $0 | $240,000 | $240,000 |
| 2021 | $0 | $220,000 | $0 | $220,000 | $220,000 |
| 2020 | $0 | $220,000 | $0 | $220,000 | $220,000 |
| 2019 | $0 | $220,000 | $0 | $220,000 | $220,000 |
| 2018 | $0 | $200,000 | $0 | $200,000 | $200,000 |
| 2017 | $0 | $200,000 | $0 | $200,000 | $200,000 |
| 2016 | $0 | $200,000 | $0 | $200,000 | $200,000 |
| 2015 | $0 | $200,000 | $0 | $200,000 | $200,000 |
| 2014 | $0 | $200,000 | $0 | $200,000 | $200,000 |
| 2013 | $0 | $185,612 | $0 | $185,612 | $185,612 |
| 2012 | $0 | $185,612 | $0 | $185,612 | $185,612 |
| 2011 | $0 | $185,612 | $0 | $185,612 | $185,612 |
| 2010 | $0 | $185,612 | $0 | $185,612 | $185,612 |
| 2009 | $0 | $224,361 | $0 | $224,361 | $224,361 |
| 2008 | $0 | $248,420 | $0 | $248,420 | $248,420 |
| 2007 | $0 | $244,650 | $0 | $244,650 | $244,650 |
Deed and Sales History
| 1 | 12/03/2021 | WD | Warranty Deed | TAFT, BARRETT P | YIN, HUIDE | | | $1,160,000.00 | 51353 | 4536092 |
|   | |
| 2 | 10/01/2007 | WD | Warranty Deed | WALKER, MICHAEL A | TAFT, BARRETT P | | | $250,000.00 | 73421 | 4213922 |
| 3 | 05/28/2004 | WD | Warranty Deed | MASSEY, WILLIAM L | WALKER, MICHAEL A | | | $156,000.00 | 42330 | 4102292 |
| 4 | 01/01/1900 | OTHER | Other - Misc. Documents | Unknown | MASSEY, WILLIAM L | | | $0.00 | 11448 | 91006109 |
Payout Agreement
| No payout information available.. |