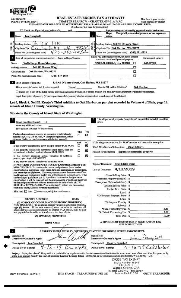
Property
Account |
| Property ID: | 741941 | Abbreviated Legal Description: | IN GL 1 & NW NE: BG MST WLY CR LOT 6 CORNET BAY HTS #1 N25*E60' TPB N64*W93.81' N25*E149' S64*E93.81' S25*W149' TPB TGW NWLY 20' LOT 74 CORNET BAY HTS #5 TGW ADJ PT OF NWLY 20' LOT 6 CORNET BAY HTS #1 ALSO TGW: BG MST WLY CR LOT 6 CORNET BAY HTS #1 N64*W |
| Geographic ID: | R13436-497-2730 | Agent Code: | |
| Type: | Real | | |
| Tax Area: | 110 - APPRAISER-OH Schl Dist, outside OH, improved & 1 acre or less | Land Use Code | 11 |
| Open Space: | N | DFL | N |
| Historic Property: | N | Remodel Property: | N |
| Multi-Family Redevelopment: | N | | |
| Township: | 34 | Section: | 36 |
| Range: | R1 |
Location |
| Address: | 211 CORNET BAY RD OAK HARBOR, WA 98277 | Mapsco: | |
| Neighborhood: | Cycle 6 | Map ID: | 280 |
| Neighborhood CD: | 6 |
Owner |
| Name: | KING, CARI M | Owner ID: | 289736 |
| Mailing Address: | 211 CORNET BAY RD OAK HARBOR, WA 98277 | % Ownership: | 100.0000000000% |
| | | Exemptions: | |
Taxes and Assessment Details
Values
| (+) Improvement Homesite Value: | + | $0 | |
| (+) Improvement Non-Homesite Value: | + | $413,201 | |
| (+) Land Homesite Value: | + | $0 | |
| (+) Land Non-Homesite Value: | + | $290,000 | |
| (+) Curr Use (HS): | + | $0 | $0 |
| (+) Curr Use (NHS): | + | $0 | $0 |
| | | -------------------------- | |
| (=) Market Value: | = | $703,201 | |
| (–) Productivity Loss: | – | $0 | |
| | | -------------------------- | |
| (=) Subtotal: | = | $703,201 | |
| (+) Senior Appraised Value: | + | $0 | |
| (+) Non-Senior Appraised Value: | + | $703,201 | |
| | | -------------------------- | |
| (=) Total Appraised Value: | = | $703,201 | |
| (–) Senior Exemption Loss: | – | $0 | |
| (–) Exemption Loss: | – | $0 | |
| | | -------------------------- | |
| (=) Taxable Value: | = | $703,201 | |
Taxing Jurisdiction
| Owner: | KING, CARI M | | |
| % Ownership: | 100.0000000000% | | |
| Total Value: | $703,201 | | |
| Tax Area: | 110 - APPRAISER-OH Schl Dist, outside OH, improved & 1 acre or less |
| CF | Conservation Futures | 0.0316035091 | $703,201 | $703,201 | $22.22 | | |
| CEM1 | Cemetery #1 | 0.0040320932 | $703,201 | $703,201 | $2.84 | | |
| FIRE2 | Fire & Rescue Dist #2 N Whidbey GEN | 0.5475949600 | $703,201 | $703,201 | $385.07 | | |
| HOBOND | Hospital BOND | 0.1910887512 | $703,201 | $703,201 | $134.37 | | |
| HOGEN | Hospital GEN | 0.3902502903 | $703,201 | $703,201 | $274.42 | | |
| CE | County Current Expense | 0.3708482477 | $703,201 | $703,201 | $260.78 | | |
| CR | County Roads | 0.4584763726 | $703,201 | $703,201 | $322.40 | | |
| ISLANDEMS | Hospital GEN (EMS) | 0.5000000000 | $703,201 | $703,201 | $351.60 | | |
| LIB | Library Sno-Isle GEN | 0.3153421757 | $703,201 | $703,201 | $221.75 | | |
| NWHIDPRMT | P & R N Whidbey GEN | 0.2004466701 | $703,201 | $703,201 | $140.95 | | |
| SCH201MO | School 201 Enrichment | 1.8559231640 | $703,201 | $703,201 | $1,305.09 | | |
| ST | State School | 1.3035497053 | $703,201 | $703,201 | $916.66 | | |
| ST2 | State School Part 2 | 0.8169543533 | $703,201 | $703,201 | $574.48 | | |
| | Total Tax Rate: | 6.9861102925 | | | | | |
| | | | | Taxes w/Current Exemptions: | $4,912.63 | | |
| | | | | Taxes w/o Exemptions: | $4,912.63 | | |
Improvement / Building
| Improvement #1: | RESIDENTIAL | State Code: | Y | 1726.9 sqft | Value: | $413,201 |
| Bathrooms: | 2 | Bedrooms: | 3 | | Ceiling: | TONGUE & GROOVE | Cooling: | HEAT PUMP/CONV/V | | Exterior Wall/Cover: | PLY/HARDBOARD T-111 | Floor Covering: | HARDWOOD 100% | | Floor Structure: | WOOD W/SUBFLOOR | Foundation: | CONCRETE | | Interior Finish: | DRYWALL PAINT | Plumbing Fixture Cnt: | 9 | | Roof Slope: | 4" IN 12" | Roof Structure/Cover: | CJ ALUMINIUM HEAVY |
|
| | Type | Description | Class CD | Sub Class CD | Year Built | Area |
| | BAS | BASE/MAIN FLOOR | 3 | 0 | 1967 | 1726.9 |
| | UB8 | BASEMENT UNFINISHED 8" | 3 | 0 | 1967 | 474.7 |
| | UB8 | BASEMENT UNFINISHED 8" | 3 | 0 | 1967 | 1094.0 |
| | OP2 | OPEN PORCH W/STEPS | 3 | 0 | 1967 | 88.0 |
| | OCP | OPEN CARPORT | 3 | 0 | 1967 | 440.0 |
| | OWP | OPEN WOOD PORCH W/STEPS | 3 | 0 | 1967 | 375.6 |
| | OWP | OPEN WOOD PORCH W/STEPS | 3 | 0 | 1967 | 286.3 |
Sketch
Property Image
Land
| 1 | 16 | AC (00.51-01.00) | 0.6100 | 26571.60 | 0.00 | 0.00 | 1.00 | $290,000 | $0 |
Roll Value History
| 2026 | N/A | N/A | N/A | N/A | N/A |
| 2025 | $413,201 | $290,000 | $0 | $703,201 | $703,201 |
| 2024 | $418,164 | $270,000 | $0 | $688,164 | $688,164 |
| 2023 | $423,128 | $270,000 | $0 | $693,128 | $693,128 |
| 2022 | $364,137 | $150,000 | $0 | $514,137 | $514,137 |
| 2021 | $320,386 | $110,000 | $0 | $430,386 | $430,386 |
| 2020 | $312,538 | $95,000 | $0 | $407,538 | $407,538 |
| 2019 | $231,817 | $125,000 | $0 | $356,817 | $356,817 |
| 2018 | $203,254 | $125,000 | $0 | $328,254 | $328,254 |
| 2017 | $204,584 | $125,000 | $0 | $329,584 | $329,584 |
| 2016 | $170,428 | $100,000 | $0 | $270,428 | $270,428 |
| 2015 | $172,830 | $104,538 | $0 | $277,368 | $277,368 |
| 2014 | $175,229 | $104,538 | $0 | $279,767 | $279,767 |
| 2013 | $167,975 | $104,538 | $0 | $272,513 | $272,513 |
| 2012 | $167,975 | $104,538 | $0 | $272,513 | $272,513 |
| 2011 | $167,975 | $104,538 | $0 | $272,513 | $272,513 |
| 2010 | $181,596 | $104,538 | $0 | $286,134 | $286,134 |
| 2009 | $189,795 | $125,020 | $0 | $314,815 | $314,815 |
| 2008 | $192,491 | $131,670 | $0 | $324,161 | $324,161 |
| 2007 | $195,186 | $131,670 | $0 | $326,856 | $326,856 |
Deed and Sales History
| 1 | 05/01/2019 | WD | Warranty Deed | WAX, JAMES PAUL | KING, CARI M | | | $479,000.00 | 38485 | 4463245 |
| 2 | 05/31/2013 | WD | Warranty Deed | FOLEY, RONALD J | WAX, JAMES PAUL | | | $309,000.00 | 11788 | 4342707 |
| 3 | 01/29/2010 | WD | Warranty Deed | KRAHN, TIMOTHY S | FOLEY, RONALD J | | | $297,000.00 | 248 | 4268154 |
| 4 | 04/11/2003 | WD | Warranty Deed | JONES, RICHARD A | KRAHN, TIMOTHY S | | | $220,000.00 | 31647 | 4056010 |
| 5 | 07/24/2000 | WD | Warranty Deed | MALONEY, MARY V TRUSTEE | JONES, RICHARD A | | | $190,000.00 | 2819 | 20013262 |
| 6 | 06/01/1996 | OTHER | Other - Misc. Documents | MALONEY, MARY V | MALONEY, MARY V | | | $0.00 | 67025 | 96010866 |
| 7 | 01/01/1900 | OTHER | Other - Misc. Documents | Unknown | MALONEY, MARY V | | | $0.00 | 23824 | 92018537 |
| 8 | 01/01/1900 | OTHER | Other - Misc. Documents | MALONEY, MARY V | MALONEY, MARY V TRUSTEE | | | $0.00 | 0 | 0 |
Payout Agreement
| No payout information available.. |