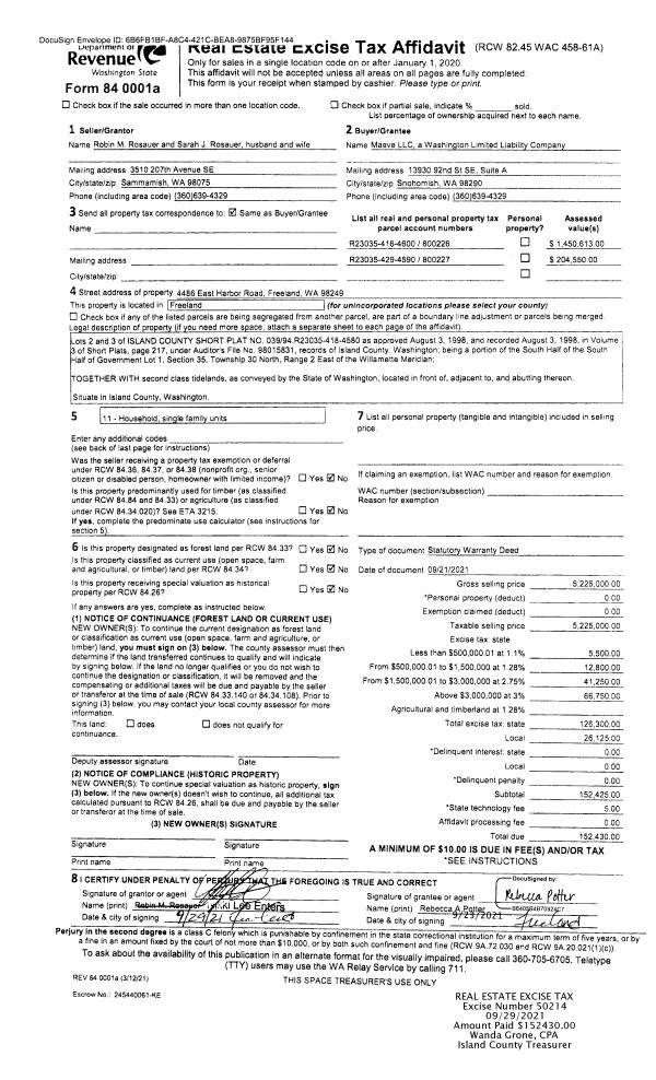
Property
Account |
| Property ID: | 742030 | Abbreviated Legal Description: | MELSEN LOTS 6 & 7 EX W5'FOR ST AKA RE-PLAT MELSENS ADDITION TO TOWN OF LANGLEY |
| Geographic ID: | S7500-00-00006-1 | Agent Code: | |
| Type: | Real | | |
| Tax Area: | 700 - APPRAISER-S Whid Schl Dist, in town of Langley | Land Use Code | 11 |
| Open Space: | N | DFL | N |
| Historic Property: | N | Remodel Property: | N |
| Multi-Family Redevelopment: | N | | |
| Township: | | Section: | |
| Range: | |
Location |
| Address: | 426 PARK AVE LANGLEY, WA 98260 | Mapsco: | |
| Neighborhood: | City of Langley | Map ID: | 912 |
| Neighborhood CD: | 04-L |
Owner |
| Name: | FORD, STEVEN M | Owner ID: | 268133 |
| Mailing Address: | ELLEN P NELSON BOX 817 LANGLEY, WA 98260 | % Ownership: | 100.0000000000% |
| | | Exemptions: | |
Taxes and Assessment Details
Values
| (+) Improvement Homesite Value: | + | $0 | |
| (+) Improvement Non-Homesite Value: | + | $344,635 | |
| (+) Land Homesite Value: | + | $0 | |
| (+) Land Non-Homesite Value: | + | $370,000 | |
| (+) Curr Use (HS): | + | $0 | $0 |
| (+) Curr Use (NHS): | + | $0 | $0 |
| | | -------------------------- | |
| (=) Market Value: | = | $714,635 | |
| (–) Productivity Loss: | – | $0 | |
| | | -------------------------- | |
| (=) Subtotal: | = | $714,635 | |
| (+) Senior Appraised Value: | + | $0 | |
| (+) Non-Senior Appraised Value: | + | $714,635 | |
| | | -------------------------- | |
| (=) Total Appraised Value: | = | $714,635 | |
| (–) Senior Exemption Loss: | – | $0 | |
| (–) Exemption Loss: | – | $0 | |
| | | -------------------------- | |
| (=) Taxable Value: | = | $714,635 | |
Taxing Jurisdiction
| Owner: | FORD, STEVEN M | | |
| % Ownership: | 100.0000000000% | | |
| Total Value: | $714,635 | | |
| Tax Area: | 700 - APPRAISER-S Whid Schl Dist, in town of Langley |
| CF | Conservation Futures | 0.0316035091 | $714,635 | $714,635 | $22.58 | | |
| LANG | City of Langley | 1.0093520762 | $714,635 | $714,635 | $721.32 | | |
| LANGBOND | City of Langley BOND | 1.0326110892 | $714,635 | $714,635 | $737.94 | | |
| FIRE3 | Fire & Rescue Dist #3 S Whidbey GEN | 1.2004855531 | $714,635 | $714,635 | $857.91 | | |
| HOBOND | Hospital BOND | 0.1910887512 | $714,635 | $714,635 | $136.56 | | |
| HOGEN | Hospital GEN | 0.3902502903 | $714,635 | $714,635 | $278.89 | | |
| CE | County Current Expense | 0.3708482477 | $714,635 | $714,635 | $265.02 | | |
| ISLANDEMS | Hospital GEN (EMS) | 0.5000000000 | $714,635 | $714,635 | $357.32 | | |
| LIB | Library Sno-Isle GEN | 0.3153421757 | $714,635 | $714,635 | $225.35 | | |
| PORTWHID | Port of S Whidbey GEN | 0.1094540357 | $714,635 | $714,635 | $78.22 | | |
| SCH206BOND | School 206 BOND | 0.3161759235 | $714,635 | $714,635 | $225.95 | | |
| SCH206MO | School 206 Enrichment | 0.4547169547 | $714,635 | $714,635 | $324.96 | | |
| ST | State School | 1.3035497053 | $714,635 | $714,635 | $931.56 | | |
| ST2 | State School Part 2 | 0.8169543533 | $714,635 | $714,635 | $583.82 | | |
| SWHIDPRBD | P & R S Whidbey BOND | 0.0152817568 | $714,635 | $714,635 | $10.92 | | |
| SWHIDPRBD2 | P & R S Whidbey BOND2 | 0.0138911264 | $714,635 | $714,635 | $9.93 | | |
| SWHIDPRMT | P & R S Whidbey GEN | 0.2053334452 | $714,635 | $714,635 | $146.74 | | |
| | Total Tax Rate: | 8.2769389934 | | | | | |
| | | | | Taxes w/Current Exemptions: | $5,914.99 | | |
| | | | | Taxes w/o Exemptions: | $5,914.99 | | |
Improvement / Building
| Improvement #1: | RESIDENTIAL | State Code: | Y | 1663.0 sqft | Value: | $344,635 |
| Bathrooms: | 1.75 | Bedrooms: | 3 | | Ceiling: | DRYWALL PAINTED | Cooling: | HEAT PUMP/CONV/V | | Exterior Wall/Cover: | WOOD SIDING | Floor Covering: | HARDWOOD 100% | | Floor Structure: | WOOD W/SUBFLOOR | Foundation: | CONCRETE | | Interior Finish: | DRYWALL PAINT | Plumbing Fixture Cnt: | 11 | | Roof Slope: | 4" IN 12" | Roof Structure/Cover: | CJ ASPHALT |
|
| | Type | Description | Class CD | Sub Class CD | Year Built | Area |
| | BAS | BASE/MAIN FLOOR | 3 | 0 | 1973 | 1663.0 |
| | OP1 | OPEN PORCH SLAB | 3 | 0 | 1973 | 204.0 |
| | OP3 | OPEN PORCH W/ROOF | 3 | 0 | 1973 | 168.0 |
| | AGR | ATTACHED GARAGE | 3 | 0 | 1973 | 357.0 |
| | OCP | OPEN CARPORT | 3 | 0 | 1973 | 240.0 |
| | UTY | STORAGE/UTILITY | 3 | 0 | 1973 | 80.0 |
| | OWR | OPEN WOOD PORCH W/STEPS/ROOF | 3 | 0 | 1973 | 184.0 |
| | UTY | STORAGE/UTILITY | 3 | 0 | 1973 | 160.0 |
Sketch
Property Image
Land
| 1 | 15 | SQ (12001-21780) | 0.3824 | 16657.34 | 0.00 | 0.00 | 1.00 | $370,000 | $0 |
Roll Value History
| 2026 | N/A | N/A | N/A | N/A | N/A |
| 2025 | $344,635 | $370,000 | $0 | $714,635 | $714,635 |
| 2024 | $349,095 | $370,000 | $0 | $719,095 | $719,095 |
| 2023 | $353,557 | $370,000 | $0 | $723,557 | $723,557 |
| 2022 | $324,195 | $300,000 | $0 | $624,195 | $624,195 |
| 2021 | $285,411 | $285,000 | $0 | $570,411 | $570,411 |
| 2020 | $259,197 | $285,000 | $0 | $544,197 | $544,197 |
| 2019 | $189,369 | $340,000 | $0 | $529,369 | $529,369 |
| 2018 | $189,951 | $300,000 | $0 | $489,951 | $489,951 |
| 2017 | $181,485 | $250,000 | $0 | $431,485 | $431,485 |
| 2016 | $183,698 | $220,000 | $0 | $403,698 | $403,698 |
| 2015 | $185,910 | $220,000 | $0 | $405,910 | $405,910 |
| 2014 | $136,926 | $161,000 | $0 | $297,926 | $297,926 |
| 2013 | $143,781 | $161,000 | $0 | $304,781 | $304,781 |
| 2012 | $145,794 | $161,000 | $0 | $306,794 | $306,794 |
| 2011 | $147,808 | $175,000 | $0 | $322,808 | $322,808 |
| 2010 | $159,311 | $183,000 | $0 | $342,311 | $342,311 |
| 2009 | $150,585 | $200,000 | $0 | $350,585 | $350,585 |
| 2008 | $148,035 | $250,000 | $0 | $398,035 | $398,035 |
| 2007 | $149,886 | $250,000 | $0 | $399,886 | $399,886 |
Deed and Sales History
| 1 | 10/16/2014 | WD | Warranty Deed | TRAVER, GEORGE ANDREW | FORD, STEVEN M | | | $435,000.00 | 17272 | 4367348 |
| 2 | 05/09/2014 | WD | Warranty Deed | ARNDT, ROBERT | TRAVER, GEORGE ANDREW | | | $325,000.00 | 15267 | 4359315 |
| 3 | 05/03/2013 | WD | Warranty Deed | LOUDON, DEBORAH K | ARNDT, ROBERT | | | $345,000.00 | 11208 | 4339224 |
| 4 | 01/19/2005 | WD | Warranty Deed | WATERS, ROBERT E | LOUDON, DEBORAH K | | | $289,000.00 | 50430 | 4124706 |
| 5 | 05/01/1997 | WD | Warranty Deed | HEDGCOCK, ELIZABETH B | WATERS, ROBERT E | | | $136,000.00 | 71937 | 97008893 |
| 6 | 02/01/1996 | OTHER | Other - Misc. Documents | Unknown | HEDGCOCK, ELIZABETH B | | | $0.00 | 66801 | 95011455 |
Payout Agreement
| No payout information available.. |