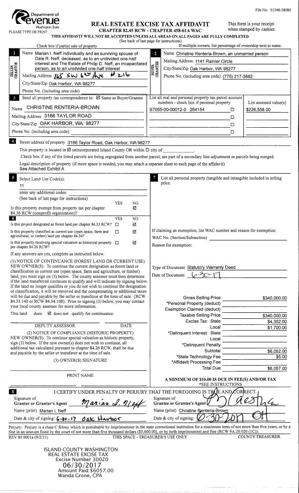
Property
Account |
| Property ID: | 742094 | Abbreviated Legal Description: | MADRONA HEIGHTS CONDO PH II UNIT D4 2.32% INT |
| Geographic ID: | S7446-02-000D4-0 | Agent Code: | |
| Type: | Real | | |
| Tax Area: | 100 - APPRAISER-OH Schl Dist, in OH | Land Use Code | 14 |
| Open Space: | N | DFL | N |
| Historic Property: | N | Remodel Property: | N |
| Multi-Family Redevelopment: | N | | |
| Township: | | Section: | |
| Range: | |
Location |
| Address: | 30875 SR20 UNIT D4 OAK HARBOR, WA 98277 | Mapsco: | |
| Neighborhood: | 11*OH-madrona hgt | Map ID: | 91 |
| Neighborhood CD: | 11*OHmdhgt |
Owner |
| Name: | WILLIAMSON JTWROS, KASEY | Owner ID: | 315764 |
| Mailing Address: | JERRY LIGGETT JTWROS KATHRYN L LIGGETT JTWROS 30875 SR 20, UNIT D4 OAK HARBOR, WA 98277 | % Ownership: | 100.0000000000% |
| | | Exemptions: | |
Taxes and Assessment Details
Values
| (+) Improvement Homesite Value: | + | $0 | |
| (+) Improvement Non-Homesite Value: | + | $221,709 | |
| (+) Land Homesite Value: | + | $0 | |
| (+) Land Non-Homesite Value: | + | $100,000 | |
| (+) Curr Use (HS): | + | $0 | $0 |
| (+) Curr Use (NHS): | + | $0 | $0 |
| | | -------------------------- | |
| (=) Market Value: | = | $321,709 | |
| (–) Productivity Loss: | – | $0 | |
| | | -------------------------- | |
| (=) Subtotal: | = | $321,709 | |
| (+) Senior Appraised Value: | + | $0 | |
| (+) Non-Senior Appraised Value: | + | $321,709 | |
| | | -------------------------- | |
| (=) Total Appraised Value: | = | $321,709 | |
| (–) Senior Exemption Loss: | – | $0 | |
| (–) Exemption Loss: | – | $0 | |
| | | -------------------------- | |
| (=) Taxable Value: | = | $321,709 | |
Taxing Jurisdiction
| Owner: | WILLIAMSON JTWROS, KASEY | | |
| % Ownership: | 100.0000000000% | | |
| Total Value: | $321,709 | | |
| Tax Area: | 100 - APPRAISER-OH Schl Dist, in OH |
| CF | Conservation Futures | 0.0316035091 | $321,709 | $321,709 | $10.17 | | |
| CEM1 | Cemetery #1 | 0.0040320932 | $321,709 | $321,709 | $1.30 | | |
| COH | City of Oak Harbor | 2.3001546061 | $321,709 | $321,709 | $739.98 | | |
| OAKBOND | City of Oak Harbor BOND | 0.1926904192 | $321,709 | $321,709 | $61.99 | | |
| HOBOND | Hospital BOND | 0.1910887512 | $321,709 | $321,709 | $61.47 | | |
| HOGEN | Hospital GEN | 0.3902502903 | $321,709 | $321,709 | $125.55 | | |
| CE | County Current Expense | 0.3708482477 | $321,709 | $321,709 | $119.31 | | |
| ISLANDEMS | Hospital GEN (EMS) | 0.5000000000 | $321,709 | $321,709 | $160.85 | | |
| LIB | Library Sno-Isle GEN | 0.3153421757 | $321,709 | $321,709 | $101.45 | | |
| NWHIDPRMT | P & R N Whidbey GEN | 0.2004466701 | $321,709 | $321,709 | $64.49 | | |
| SCH201MO | School 201 Enrichment | 1.8559231640 | $321,709 | $321,709 | $597.07 | | |
| ST | State School | 1.3035497053 | $321,709 | $321,709 | $419.36 | | |
| ST2 | State School Part 2 | 0.8169543533 | $321,709 | $321,709 | $262.82 | | |
| | Total Tax Rate: | 8.4728839852 | | | | | |
| | | | | Taxes w/Current Exemptions: | $2,725.81 | | |
| | | | | Taxes w/o Exemptions: | $2,725.81 | | |
Improvement / Building
| Improvement #1: | RESIDENTIAL | State Code: | Y | 1397.6 sqft | Value: | $221,709 |
| Bathrooms: | 2.5 | Bedrooms: | 3 | | Ceiling: | DRYWALL PAINTED | Exterior Wall/Cover: | CEMENT FIBER | | Floor Covering: | CARPET/VINYL 80-20 | Floor Structure: | WOOD W/SUBFLOOR | | Foundation: | CONCRETE | Heating: | FHA GAS | | Interior Finish: | DRYWALL PAINT | Plumbing Fixture Cnt: | 11 | | Roof Slope: | 5" IN 12" | Roof Structure/Cover: | CJ ASPHALT |
|
| | Type | Description | Class CD | Sub Class CD | Year Built | Area |
| | BAS | BASE/MAIN FLOOR | 3 | 0 | 1996 | 549.6 |
| | BIG | BUILT IN GARAGE | 3 | 0 | 1996 | 242.0 |
| | UPS | UPPER STORY | 3 | 0 | 1996 | 848.0 |
| | oPV1 | PV/ASPH 2" | 3 | 0 | 1996 | 0.0 |
| | OP1 | OPEN PORCH SLAB | 3 | 0 | 1996 | 80.0 |
Sketch
Property Image
Land
| 1 | 61 | MULTIPLE RESIDENCES | 0.0000 | 2800.00 | 0.00 | 0.00 | 1.00 | $100,000 | $0 |
Roll Value History
| 2026 | N/A | N/A | N/A | N/A | N/A |
| 2025 | $221,709 | $100,000 | $0 | $321,709 | $321,709 |
| 2024 | $224,431 | $100,000 | $0 | $324,431 | $324,431 |
| 2023 | $216,265 | $100,000 | $0 | $316,265 | $316,265 |
| 2022 | $198,349 | $100,000 | $0 | $298,349 | $298,349 |
| 2021 | $174,707 | $70,000 | $0 | $244,707 | $244,707 |
| 2020 | $169,893 | $45,000 | $0 | $214,893 | $214,893 |
| 2019 | $120,182 | $90,000 | $0 | $210,182 | $210,182 |
| 2018 | $120,541 | $65,000 | $0 | $185,541 | $185,541 |
| 2017 | $149,925 | $8,600 | $0 | $158,525 | $158,525 |
| 2016 | $151,841 | $8,600 | $0 | $160,441 | $160,441 |
| 2015 | $130,106 | $8,600 | $0 | $138,706 | $138,706 |
| 2014 | $98,197 | $8,600 | $0 | $106,797 | $106,797 |
| 2013 | $99,407 | $8,600 | $0 | $108,007 | $108,007 |
| 2012 | $125,297 | $8,600 | $0 | $133,897 | $133,897 |
| 2011 | $125,297 | $18,284 | $0 | $143,581 | $143,581 |
| 2010 | $131,432 | $18,284 | $0 | $149,716 | $149,716 |
| 2009 | $137,113 | $39,200 | $0 | $176,313 | $176,313 |
| 2008 | $138,831 | $47,600 | $0 | $186,431 | $186,431 |
| 2007 | $140,557 | $56,000 | $0 | $196,557 | $196,557 |
Deed and Sales History
| 1 | 03/13/2025 | WD | Warranty Deed | BOGGS, BRIANNA F | WILLIAMSON JTWROS, KASEY | | | $350,000.00 | 62806 | 4583245 |
| 2 | 06/13/2017 | WD | Warranty Deed | BOGGS, BRIANNA F | BOGGS, BRIANNA F | | | $0.00 | 30153 | 4426062 |
| 3 | 06/13/2017 | WD | Warranty Deed | ALLEN, COLIN S | BOGGS, BRIANNA F | | | $212,000.00 | 29923 | 4425031 |
| 4 | 05/03/2004 | WD | Warranty Deed | ALSINA, FRANCISCO J | ALLEN, COLIN S | | | $133,500.00 | 41882 | 4099589 |
| 5 | 01/10/2000 | WD | Warranty Deed | ELLIS, MICHAEL S | ALSINA, FRANCISCO J | | | $115,571.00 | 157 | 20000918 |
| 6 | 11/01/1997 | WD | Warranty Deed | MANOR, PROPERTIES I | ELLIS, MICHAEL S | | | $113,000.00 | 74119 | 97019792 |
| 7 | 01/01/1900 | OTHER | Other - Misc. Documents | Unknown | MANOR, PROPERTIES I | | | $0.00 | 61501 | 96007516 |
| 8 | 01/01/1900 | OTHER | Other - Misc. Documents | ELLIS, MICHAEL S | ELLIS, MICHAEL S | | | $0.00 | 0 | 0 |
Payout Agreement
| No payout information available.. |