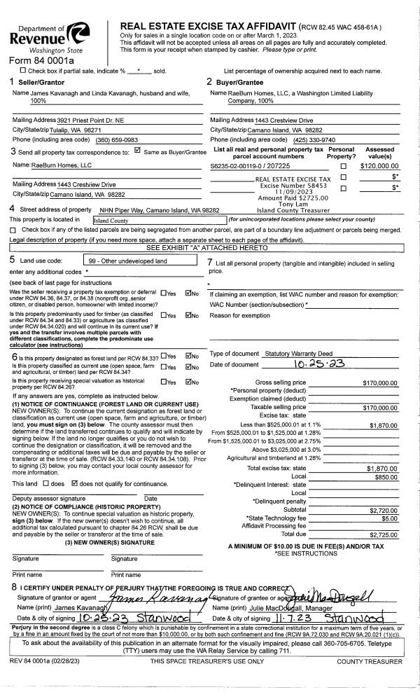
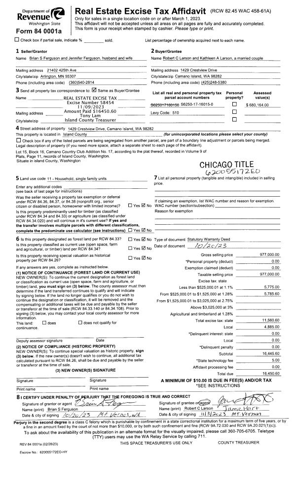
Property
Account |
| Property ID: | 742352 | Abbreviated Legal Description: | LOT 2 SP 32-94.23130.356-0990 V3 SP P93 AF#96010986 EX S8.14' |
| Geographic ID: | R23130-363-0990 | Agent Code: | |
| Type: | Real | | |
| Tax Area: | 312 - APPRAISER-Cpvl Schl Dist, outside Cpvl, improved, greater than 1 acre | Land Use Code | 11 |
| Open Space: | N | DFL | N |
| Historic Property: | N | Remodel Property: | N |
| Multi-Family Redevelopment: | N | | |
| Township: | 31 | Section: | 30 |
| Range: | R2 |
Location |
| Address: | | Mapsco: | |
| Neighborhood: | Area 2 Waterfront Westside Residential | Map ID: | 522 |
| Neighborhood CD: | 2WFW01R |
Owner |
| Name: | LUKAS JR, RONALD E | Owner ID: | 308612 |
| Mailing Address: | KARI KRISTIN LUKAS 72 DONAHEY RD COOUPEVILLE, WA 98239 | % Ownership: | 100.0000000000% |
| | | Exemptions: | |
Taxes and Assessment Details
Values
| (+) Improvement Homesite Value: | + | $0 | |
| (+) Improvement Non-Homesite Value: | + | $592,215 | |
| (+) Land Homesite Value: | + | $0 | |
| (+) Land Non-Homesite Value: | + | $650,000 | |
| (+) Curr Use (HS): | + | $0 | $0 |
| (+) Curr Use (NHS): | + | $0 | $0 |
| | | -------------------------- | |
| (=) Market Value: | = | $1,242,215 | |
| (–) Productivity Loss: | – | $0 | |
| | | -------------------------- | |
| (=) Subtotal: | = | $1,242,215 | |
| (+) Senior Appraised Value: | + | $0 | |
| (+) Non-Senior Appraised Value: | + | $1,242,215 | |
| | | -------------------------- | |
| (=) Total Appraised Value: | = | $1,242,215 | |
| (–) Senior Exemption Loss: | – | $0 | |
| (–) Exemption Loss: | – | $0 | |
| | | -------------------------- | |
| (=) Taxable Value: | = | $1,242,215 | |
Taxing Jurisdiction
| Owner: | LUKAS JR, RONALD E | | |
| % Ownership: | 100.0000000000% | | |
| Total Value: | $1,242,215 | | |
| Tax Area: | 312 - APPRAISER-Cpvl Schl Dist, outside Cpvl, improved, greater than 1 acre |
| CF | Conservation Futures | 0.0316035091 | $1,242,215 | $1,242,215 | $39.26 | | |
| CEM2 | Cemetery #2 | 0.0095056933 | $1,242,215 | $1,242,215 | $11.81 | | |
| FIRE5 | Fire & Rescue Dist #5 C Whidbey GEN | 1.2008080668 | $1,242,215 | $1,242,215 | $1,491.66 | | |
| FIRE5BOND | Fire & Rescue Dist #5 C Whidbey BOND | 0.1400090713 | $1,242,215 | $1,242,215 | $173.92 | | |
| HOBOND | Hospital BOND | 0.1910887512 | $1,242,215 | $1,242,215 | $237.37 | | |
| HOGEN | Hospital GEN | 0.3902502903 | $1,242,215 | $1,242,215 | $484.77 | | |
| CE | County Current Expense | 0.3708482477 | $1,242,215 | $1,242,215 | $460.67 | | |
| CR | County Roads | 0.4584763726 | $1,242,215 | $1,242,215 | $569.53 | | |
| ISLANDEMS | Hospital GEN (EMS) | 0.5000000000 | $1,242,215 | $1,242,215 | $621.11 | | |
| LIB | Library Sno-Isle GEN | 0.3153421757 | $1,242,215 | $1,242,215 | $391.72 | | |
| LIBCAP | Library Sno-Isle BOND (Cap Fac Imp Area) | 0.0543427938 | $1,242,215 | $1,242,215 | $67.51 | | |
| POCOUP | Port of Coupeville GEN | 0.1093371703 | $1,242,215 | $1,242,215 | $135.82 | | |
| POCOUPIDD | Port of Coupeville IDD | 0.3409740022 | $1,242,215 | $1,242,215 | $423.56 | | |
| COUPSDTECH | School 204 CP (TECH) | 0.7545480007 | $1,242,215 | $1,242,215 | $937.31 | | |
| SCH204MO | School 204 Enrichment | 0.6716186034 | $1,242,215 | $1,242,215 | $834.29 | | |
| ST | State School | 1.3035497053 | $1,242,215 | $1,242,215 | $1,619.29 | | |
| ST2 | State School Part 2 | 0.8169543533 | $1,242,215 | $1,242,215 | $1,014.83 | | |
| | Total Tax Rate: | 7.6592568070 | | | | | |
| | | | | Taxes w/Current Exemptions: | $9,514.43 | | |
| | | | | Taxes w/o Exemptions: | $9,514.43 | | |
Improvement / Building
| Improvement #1: | RESIDENTIAL | State Code: | Y | 1983.4 sqft | Value: | $435,742 |
| Bathrooms: | 2 | Bedrooms: | 2 | | Ceiling: | DRYWALL PAINTED | Exterior Wall/Cover: | WOOD SIDING | | Floor Covering: | CARPET/VINYL 80-20 | Floor Structure: | WOOD W/SUBFLOOR | | Foundation: | CONCRETE | Heating: | RADIANT FLOOR | | Interior Finish: | DRYWALL PAINT | Plumbing Fixture Cnt: | 9 | | Roof Slope: | 4" IN 12" | Roof Structure/Cover: | CJ ASPHALT |
|
| | Type | Description | Class CD | Sub Class CD | Year Built | Area |
| | BAS | BASE/MAIN FLOOR | 4 | 0 | 2005 | 1983.4 |
| | OP4 | OPEN PORCH W/CEILING-ROOF | 4 | 0 | 2005 | 82.2 |
| | DGR | DETACHED GARAGE | 4 | 0 | 2005 | 1020.8 |
| | OCP | OPEN CARPORT | 4 | 0 | 2005 | 508.2 |
| | OWP | OPEN WOOD PORCH W/STEPS | 4 | 0 | 2005 | 36.0 |
| | OWP | OPEN WOOD PORCH W/STEPS | 4 | 0 | 2005 | 101.8 |
| | OWC | OPEN WOOD PORCH W/STEPS/ROOF/C | 4 | 0 | 2005 | 253.7 |
| Improvement #2: | RESIDENTIAL | State Code: | Y | 960.0 sqft | Value: | $156,473 |
| Bathrooms: | 1 | Bedrooms: | 1 | | Ceiling: | DRYWALL PAINTED | Exterior Wall/Cover: | PLY/HARDBOARD T-111 | | Floor Covering: | VINYL 100% | Floor Structure: | WOOD W/SUBFLOOR | | Foundation: | CONCRETE | Heating: | BASEBOARD ELECTRIC | | Interior Finish: | DRYWALL PAINT | Plumbing Fixture Cnt: | 5 | | Roof Slope: | 4" IN 12" | Roof Structure/Cover: | CJ ASPHALT |
|
| | Type | Description | Class CD | Sub Class CD | Year Built | Area |
| | BAS | BASE/MAIN FLOOR | 3 | 0 | 2006 | 960.0 |
| | CPD | OPEN CARPORT DIRT FLOOR | 3 | 0 | 2006 | 336.0 |
Sketch
Property Image
Land
| 1 | HB | HIGH BLUFF | 2.5400 | 110642.40 | 150.00 | 0.00 | 1.00 | $650,000 | $0 |
Roll Value History
| 2026 | N/A | N/A | N/A | N/A | N/A |
| 2025 | $592,215 | $650,000 | $0 | $1,242,215 | $1,242,215 |
| 2024 | $602,780 | $600,000 | $0 | $1,202,780 | $1,202,780 |
| 2023 | $421,319 | $575,000 | $0 | $996,319 | $996,319 |
| 2022 | $386,147 | $575,000 | $0 | $961,147 | $961,147 |
| 2021 | $339,818 | $575,000 | $0 | $914,818 | $914,818 |
| 2020 | $331,690 | $520,000 | $0 | $851,690 | $851,690 |
| 2019 | $254,148 | $550,000 | $0 | $804,148 | $804,148 |
| 2018 | $293,128 | $400,000 | $0 | $693,128 | $693,128 |
| 2017 | $294,627 | $400,000 | $0 | $694,627 | $694,627 |
| 2016 | $297,565 | $400,000 | $0 | $697,565 | $697,565 |
| 2015 | $300,502 | $400,000 | $0 | $700,502 | $700,502 |
| 2014 | $303,442 | $400,000 | $0 | $703,442 | $703,442 |
| 2013 | $306,381 | $368,364 | $0 | $674,745 | $674,745 |
| 2012 | $311,261 | $368,364 | $0 | $679,625 | $679,625 |
| 2011 | $314,200 | $368,364 | $0 | $682,564 | $682,564 |
| 2010 | $322,339 | $368,364 | $0 | $690,703 | $690,703 |
| 2009 | $332,263 | $443,792 | $0 | $776,055 | $776,055 |
| 2008 | $336,463 | $496,414 | $0 | $832,877 | $832,877 |
| 2007 | $340,725 | $496,414 | $0 | $837,139 | $837,139 |
Deed and Sales History
| 1 | 04/07/2023 | QCD | Quit Claim Deed | JOHNSON, INGRI STANG | LUKAS JR, RONALD E | | | $0.00 | 56713 | 4559973 |
| 2 | 04/07/2023 | PRD | Personal Representatives Deed | JOHNSON, RICHARD A | JOHNSON, INGRI STANG | | | $0.00 | 56712 | 4559972 |
| 3 | 04/01/1997 | BLA | DNU - Boundary Line Adjustment | JOHNSON, RICHARD A | JOHNSON, RICHARD A | | | $0.00 | 67341 | 96021846 |
| 4 | 01/01/1900 | OTHER | Other - Misc. Documents | Unknown | JOHNSON, RICHARD A | | | $0.00 | 0 | 0 |
Payout Agreement
| No payout information available.. |