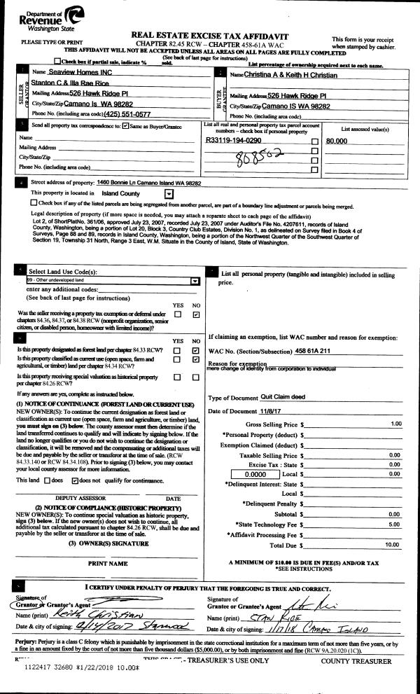
Property
Account |
| Property ID: | 742548 | Abbreviated Legal Description: | LOT 4 SP 36-94.23327.168-3370 V3 SP P99 AF#96012796 |
| Geographic ID: | R23327-168-3870 | Agent Code: | |
| Type: | Real | | |
| Tax Area: | 112 - APPRAISER-OH Schl Dist, outside OH, improved, greater than 1 acre | Land Use Code | 11 |
| Open Space: | N | DFL | N |
| Historic Property: | N | Remodel Property: | N |
| Multi-Family Redevelopment: | N | | |
| Township: | 33 | Section: | 27 |
| Range: | R2 |
Location |
| Address: | 1487 SCULLY LN OAK HARBOR, WA 98277 | Mapsco: | |
| Neighborhood: | Cycle 6 | Map ID: | 628 |
| Neighborhood CD: | 6 |
Owner |
| Name: | ROSE, JUSTIN R | Owner ID: | 292908 |
| Mailing Address: | MEGAN L ROSE 1487 SCULLY LANE OAK HARBOR, WA 98277 | % Ownership: | 100.0000000000% |
| | | Exemptions: | |
Taxes and Assessment Details
Values
| (+) Improvement Homesite Value: | + | $0 | |
| (+) Improvement Non-Homesite Value: | + | $463,378 | |
| (+) Land Homesite Value: | + | $0 | |
| (+) Land Non-Homesite Value: | + | $300,000 | |
| (+) Curr Use (HS): | + | $0 | $0 |
| (+) Curr Use (NHS): | + | $0 | $0 |
| | | -------------------------- | |
| (=) Market Value: | = | $763,378 | |
| (–) Productivity Loss: | – | $0 | |
| | | -------------------------- | |
| (=) Subtotal: | = | $763,378 | |
| (+) Senior Appraised Value: | + | $0 | |
| (+) Non-Senior Appraised Value: | + | $763,378 | |
| | | -------------------------- | |
| (=) Total Appraised Value: | = | $763,378 | |
| (–) Senior Exemption Loss: | – | $0 | |
| (–) Exemption Loss: | – | $0 | |
| | | -------------------------- | |
| (=) Taxable Value: | = | $763,378 | |
Taxing Jurisdiction
| Owner: | ROSE, JUSTIN R | | |
| % Ownership: | 100.0000000000% | | |
| Total Value: | $763,378 | | |
| Tax Area: | 112 - APPRAISER-OH Schl Dist, outside OH, improved, greater than 1 acre |
| CF | Conservation Futures | 0.0316035091 | $763,378 | $763,378 | $24.13 | | |
| CEM1 | Cemetery #1 | 0.0040320932 | $763,378 | $763,378 | $3.08 | | |
| FIRE2 | Fire & Rescue Dist #2 N Whidbey GEN | 0.5475949600 | $763,378 | $763,378 | $418.02 | | |
| HOBOND | Hospital BOND | 0.1910887512 | $763,378 | $763,378 | $145.87 | | |
| HOGEN | Hospital GEN | 0.3902502903 | $763,378 | $763,378 | $297.91 | | |
| CE | County Current Expense | 0.3708482477 | $763,378 | $763,378 | $283.10 | | |
| CR | County Roads | 0.4584763726 | $763,378 | $763,378 | $349.99 | | |
| ISLANDEMS | Hospital GEN (EMS) | 0.5000000000 | $763,378 | $763,378 | $381.69 | | |
| LIB | Library Sno-Isle GEN | 0.3153421757 | $763,378 | $763,378 | $240.73 | | |
| NWHIDPRMT | P & R N Whidbey GEN | 0.2004466701 | $763,378 | $763,378 | $153.02 | | |
| SCH201MO | School 201 Enrichment | 1.8559231640 | $763,378 | $763,378 | $1,416.77 | | |
| ST | State School | 1.3035497053 | $763,378 | $763,378 | $995.10 | | |
| ST2 | State School Part 2 | 0.8169543533 | $763,378 | $763,378 | $623.64 | | |
| | Total Tax Rate: | 6.9861102925 | | | | | |
| | | | | Taxes w/Current Exemptions: | $5,333.05 | | |
| | | | | Taxes w/o Exemptions: | $5,333.05 | | |
Improvement / Building
| Improvement #1: | RESIDENTIAL | State Code: | Y | 2224.0 sqft | Value: | $463,378 |
| Bathrooms: | 2 | Bedrooms: | 3 | | Ceiling: | DRYWALL PAINTED | Cooling: | HEAT PUMP/CONV/V | | Exterior Wall/Cover: | CEMENT FIBER | Floor Covering: | VINYL TILE | | Floor Structure: | WOOD W/SUBFLOOR | Foundation: | CONCRETE | | Interior Finish: | DRYWALL PAINT | Plumbing Fixture Cnt: | 11 | | Roof Slope: | 4" IN 12" | Roof Structure/Cover: | CJ ASPHALT |
|
| | Type | Description | Class CD | Sub Class CD | Year Built | Area |
| | BAS | BASE/MAIN FLOOR | 3 | 0 | 2021 | 2224.0 |
| | AGR | ATTACHED GARAGE | 3 | 0 | 2021 | 828.0 |
| | OWP | OPEN WOOD PORCH W/STEPS | 3 | 0 | 2021 | 456.0 |
| | OWC | OPEN WOOD PORCH W/STEPS/ROOF/C | 3 | 0 | 2021 | 140.0 |
Sketch
Property Image
Land
| 1 | 32 | AC (03.01-09.99) | 4.6800 | 0.00 | 0.00 | 0.00 | 1.00 | $300,000 | $0 |
Roll Value History
| 2026 | N/A | N/A | N/A | N/A | N/A |
| 2025 | $463,378 | $300,000 | $0 | $763,378 | $763,378 |
| 2024 | $467,056 | $280,000 | $0 | $747,056 | $747,056 |
| 2023 | $471,959 | $270,000 | $0 | $741,959 | $741,959 |
| 2022 | $428,588 | $240,000 | $0 | $668,588 | $668,588 |
| 2021 | $364,779 | $160,000 | $0 | $524,779 | $524,779 |
| 2020 | $176,657 | $90,000 | $0 | $266,657 | $266,657 |
| 2019 | $0 | $110,000 | $0 | $110,000 | $110,000 |
| 2018 | $0 | $110,000 | $0 | $110,000 | $110,000 |
| 2017 | $0 | $65,000 | $0 | $65,000 | $65,000 |
| 2016 | $0 | $60,000 | $0 | $60,000 | $60,000 |
| 2015 | $0 | $60,000 | $0 | $60,000 | $60,000 |
| 2014 | $0 | $50,000 | $0 | $50,000 | $50,000 |
| 2013 | $0 | $50,000 | $0 | $50,000 | $50,000 |
| 2012 | $0 | $44,400 | $0 | $44,400 | $44,400 |
| 2011 | $0 | $44,400 | $0 | $44,400 | $44,400 |
| 2010 | $0 | $44,400 | $0 | $44,400 | $44,400 |
| 2009 | $0 | $60,000 | $0 | $60,000 | $60,000 |
| 2008 | $0 | $126,360 | $0 | $126,360 | $126,360 |
| 2007 | $0 | $85,664 | $0 | $85,664 | $85,664 |
Deed and Sales History
| 1 | 12/13/2019 | QCD | Quit Claim Deed | BERG, ROBERT L / HARRIET | ROSE, JUSTIN R | | | $0.00 | 41473 | 4477585 |
| 2 | 04/16/2018 | WD | Warranty Deed | LUBIN, ARTHUR M & EMILY | BERG, ROBERT L / HARRIET | | | $95,000.00 | 33795 | 4443115 |
| 3 | 01/01/1900 | OTHER | Other - Misc. Documents | Unknown | LUBIN, ARTHUR M | | | $0.00 | 44180 | 94021561 |
Payout Agreement
| No payout information available.. |