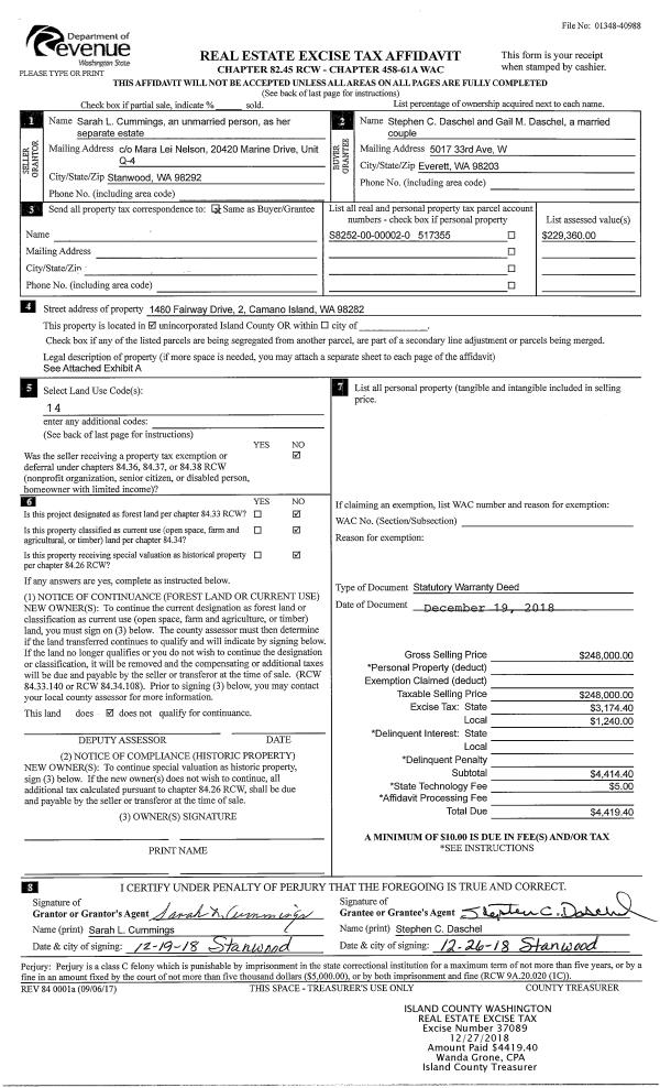
Property
Account |
| Property ID: | 742735 | Abbreviated Legal Description: | IN GL 2: BG MC 1320'S & 834 .30'W OF NECR GL 2 NLY FR SD MC 401.60'TPB E245.10' N100' W TO ML SLY ALG ML 100.90' E25'M/L TPB INCL ADJ TIDES AKA LOTS 7 & 8 BLK 1 UNREC MAXWELTON BEACH & FARM TRS FR 438-4440 & 443-4440 |
| Geographic ID: | R32808-442-4440 | Agent Code: | |
| Type: | Real | | |
| Tax Area: | 710 - APPRAISER-S Whid Schl Dist, outside Langley, improved & 1 acre or less | Land Use Code | 11 |
| Open Space: | N | DFL | N |
| Historic Property: | N | Remodel Property: | N |
| Multi-Family Redevelopment: | N | | |
| Township: | 28 | Section: | 08 |
| Range: | R3 |
Location |
| Address: | 7665 MAXWELTON RD CLINTON, WA 98236 | Mapsco: | |
| Neighborhood: | Cycle 4 | Map ID: | 692 |
| Neighborhood CD: | 4 |
Owner |
| Name: | KOCHER TTEE, GARY J | Owner ID: | 314209 |
| Mailing Address: | 3011 68TH AVE SE MERCER ISLAND, WA 98040 | % Ownership: | 100.0000000000% |
| | | Exemptions: | |
Taxes and Assessment Details
Values
| (+) Improvement Homesite Value: | + | $0 | |
| (+) Improvement Non-Homesite Value: | + | $622,568 | |
| (+) Land Homesite Value: | + | $0 | |
| (+) Land Non-Homesite Value: | + | $1,051,000 | |
| (+) Curr Use (HS): | + | $0 | $0 |
| (+) Curr Use (NHS): | + | $0 | $0 |
| | | -------------------------- | |
| (=) Market Value: | = | $1,673,568 | |
| (–) Productivity Loss: | – | $0 | |
| | | -------------------------- | |
| (=) Subtotal: | = | $1,673,568 | |
| (+) Senior Appraised Value: | + | $0 | |
| (+) Non-Senior Appraised Value: | + | $1,673,568 | |
| | | -------------------------- | |
| (=) Total Appraised Value: | = | $1,673,568 | |
| (–) Senior Exemption Loss: | – | $0 | |
| (–) Exemption Loss: | – | $0 | |
| | | -------------------------- | |
| (=) Taxable Value: | = | $1,673,568 | |
Taxing Jurisdiction
| Owner: | KOCHER TTEE, GARY J | | |
| % Ownership: | 100.0000000000% | | |
| Total Value: | $1,673,568 | | |
| Tax Area: | 710 - APPRAISER-S Whid Schl Dist, outside Langley, improved & 1 acre or less |
| CF | Conservation Futures | 0.0316035091 | $1,673,568 | $1,673,568 | $52.89 | | |
| FIRE3 | Fire & Rescue Dist #3 S Whidbey GEN | 1.2004855531 | $1,673,568 | $1,673,568 | $2,009.09 | | |
| HOBOND | Hospital BOND | 0.1910887512 | $1,673,568 | $1,673,568 | $319.80 | | |
| HOGEN | Hospital GEN | 0.3902502903 | $1,673,568 | $1,673,568 | $653.11 | | |
| CE | County Current Expense | 0.3708482477 | $1,673,568 | $1,673,568 | $620.64 | | |
| CR | County Roads | 0.4584763726 | $1,673,568 | $1,673,568 | $767.29 | | |
| ISLANDEMS | Hospital GEN (EMS) | 0.5000000000 | $1,673,568 | $1,673,568 | $836.78 | | |
| LIB | Library Sno-Isle GEN | 0.3153421757 | $1,673,568 | $1,673,568 | $527.75 | | |
| PORTWHID | Port of S Whidbey GEN | 0.1094540357 | $1,673,568 | $1,673,568 | $183.18 | | |
| SCH206BOND | School 206 BOND | 0.3161759235 | $1,673,568 | $1,673,568 | $529.14 | | |
| SCH206MO | School 206 Enrichment | 0.4547169547 | $1,673,568 | $1,673,568 | $761.00 | | |
| ST | State School | 1.3035497053 | $1,673,568 | $1,673,568 | $2,181.58 | | |
| ST2 | State School Part 2 | 0.8169543533 | $1,673,568 | $1,673,568 | $1,367.23 | | |
| SWHIDPRBD | P & R S Whidbey BOND | 0.0152817568 | $1,673,568 | $1,673,568 | $25.58 | | |
| SWHIDPRBD2 | P & R S Whidbey BOND2 | 0.0138911264 | $1,673,568 | $1,673,568 | $23.25 | | |
| SWHIDPRMT | P & R S Whidbey GEN | 0.2053334452 | $1,673,568 | $1,673,568 | $343.64 | | |
| | Total Tax Rate: | 6.6934522006 | | | | | |
| | | | | Taxes w/Current Exemptions: | $11,201.95 | | |
| | | | | Taxes w/o Exemptions: | $11,201.95 | | |
Improvement / Building
| Improvement #1: | RESIDENTIAL | State Code: | Y | 2132.8 sqft | Value: | $622,568 |
| Bathrooms: | 2.5 | Bedrooms: | 2 | | Ceiling: | TONGUE & GROOVE | Cooling: | HEAT PUMP/CONV/V | | Exterior Wall/Cover: | SHINGLE | Floor Covering: | CERAMIC TILE/HWD 40/60 | | Floor Structure: | WOOD W/SUBFLOOR | Foundation: | CONCRETE | | Interior Finish: | TONGUE & GROOVE DRYWALL 40/60 | Plumbing Fixture Cnt: | 12 | | Roof Slope: | 4" IN 12" | Roof Structure/Cover: | BEAM ALUMINUM HEAVY |
|
| | Type | Description | Class CD | Sub Class CD | Year Built | Area |
| | BAS | BASE/MAIN FLOOR | 5 | 0 | 1957 | 1539.1 |
| | OWP | OPEN WOOD PORCH W/STEPS | 5 | 0 | 1957 | 979.1 |
| | UPH | HALF STORY | 5 | 0 | 1957 | 593.7 |
| | DGR | DETACHED GARAGE | 5 | 0 | 1957 | 508.0 |
Sketch
Property Image
Land
| 1 | LB | LOW BANK | 0.7400 | 32234.40 | 100.00 | 0.00 | 1.00 | $1,050,000 | $0 |
| 2 | 55 | TIDES | 0.0000 | 0.00 | 100.00 | 0.00 | 1.00 | $1,000 | $0 |
Roll Value History
| 2026 | N/A | N/A | N/A | N/A | N/A |
| 2025 | $622,568 | $1,051,000 | $0 | $1,673,568 | $1,673,568 |
| 2024 | $526,376 | $1,051,000 | $0 | $1,577,376 | $1,577,376 |
| 2023 | $532,944 | $1,051,000 | $0 | $1,583,944 | $1,583,944 |
| 2022 | $490,954 | $1,051,000 | $0 | $1,541,954 | $1,541,954 |
| 2021 | $435,405 | $921,000 | $0 | $1,356,405 | $1,356,405 |
| 2020 | $425,365 | $921,000 | $0 | $1,346,365 | $1,346,365 |
| 2019 | $341,025 | $966,000 | $0 | $1,307,025 | $1,307,025 |
| 2018 | $341,995 | $701,000 | $0 | $1,042,995 | $1,042,995 |
| 2017 | $343,937 | $701,000 | $0 | $1,044,937 | $1,044,937 |
| 2016 | $347,819 | $701,000 | $0 | $1,048,819 | $1,048,819 |
| 2015 | $351,703 | $701,000 | $0 | $1,052,703 | $1,052,703 |
| 2014 | $189,991 | $1,001,000 | $0 | $1,190,991 | $1,190,991 |
| 2013 | $192,284 | $1,138,120 | $0 | $1,330,404 | $1,330,404 |
| 2012 | $194,577 | $1,138,120 | $0 | $1,332,697 | $1,332,697 |
| 2011 | $196,870 | $1,138,120 | $0 | $1,334,990 | $1,334,990 |
| 2010 | $208,606 | $1,138,120 | $0 | $1,346,726 | $1,346,726 |
| 2009 | $216,690 | $1,422,400 | $0 | $1,639,090 | $1,639,090 |
| 2008 | $206,551 | $1,422,400 | $0 | $1,628,951 | $1,628,951 |
| 2007 | $209,306 | $1,080,564 | $0 | $1,289,870 | $1,289,870 |
Deed and Sales History
| 1 | 10/10/2024 | WD | Warranty Deed | MARASTELLA LLC | KOCHER TTEE, GARY J | | | $1,694,720.00 | 61554 | 4578199 |
| 2 | 02/16/2018 | QCD | Quit Claim Deed | URASHAN | MARASTELLA LLC | | | $0.00 | 36164 | 4452864 |
| 3 | 07/14/2014 | WD | Warranty Deed | URASHAN | DALY, JAMES P | | | $1,150,000.00 | 16043 | 4362435 |
|   | |
| 4 | 07/14/2014 | WD | Warranty Deed | POCOCK, STANLEY R | URASHAN | | | $1,150,000.00 | 16043 | 4362435 |
| 5 | 12/01/1997 | WD | Warranty Deed | KIRK, CHRISTOPHER | POCOCK, STANLEY R | | | $383,885.00 | 80163 | 98000722 |
| 6 | 08/01/1996 | BLA | DNU - Boundary Line Adjustment | KIRK, CHRISTOPHER | KIRK, CHRISTOPHER | | | $0.00 | 67086 | 96013867 |
| 7 | 01/01/1900 | OTHER | Other - Misc. Documents | Unknown | KIRK, CHRISTOPHER | | | $0.00 | 0 | 0 |
Payout Agreement
| No payout information available.. |