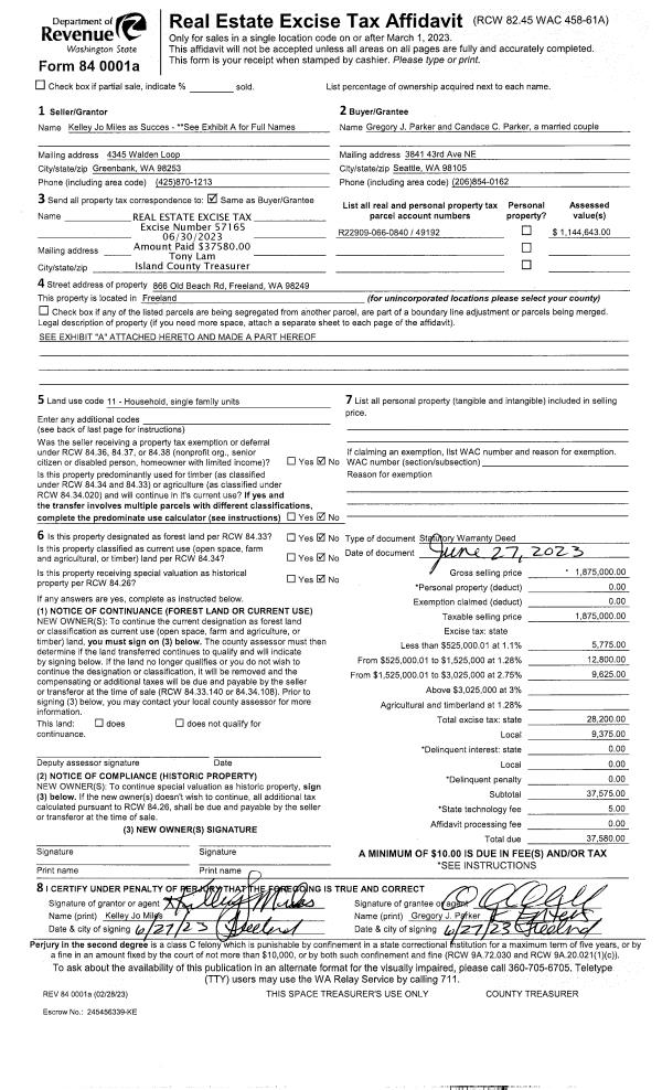
Property
Account |
| Property ID: | 742940 | Abbreviated Legal Description: | WHIDBEY HEIGHTS LOT 1 |
| Geographic ID: | S8413-00-00001-0 | Agent Code: | |
| Type: | Real | | |
| Tax Area: | 110 - APPRAISER-OH Schl Dist, outside OH, improved & 1 acre or less | Land Use Code | 11 |
| Open Space: | N | DFL | N |
| Historic Property: | N | Remodel Property: | N |
| Multi-Family Redevelopment: | N | | |
| Township: | | Section: | |
| Range: | |
Location |
| Address: | 2942 STRAWBERRY POINT RD OAK HARBOR, WA 98277 | Mapsco: | |
| Neighborhood: | Cycle 6 | Map ID: | 624 |
| Neighborhood CD: | 6 |
Owner |
| Name: | SMITH, MARK | Owner ID: | 192365 |
| Mailing Address: | YUMI SMITH 2942 STRAWBERRY POINT RD OAK HARBOR, WA 98277-9004 | % Ownership: | 100.0000000000% |
| | | Exemptions: | |
Taxes and Assessment Details
Values
| (+) Improvement Homesite Value: | + | $0 | |
| (+) Improvement Non-Homesite Value: | + | $395,592 | |
| (+) Land Homesite Value: | + | $0 | |
| (+) Land Non-Homesite Value: | + | $460,000 | |
| (+) Curr Use (HS): | + | $0 | $0 |
| (+) Curr Use (NHS): | + | $0 | $0 |
| | | -------------------------- | |
| (=) Market Value: | = | $855,592 | |
| (–) Productivity Loss: | – | $0 | |
| | | -------------------------- | |
| (=) Subtotal: | = | $855,592 | |
| (+) Senior Appraised Value: | + | $0 | |
| (+) Non-Senior Appraised Value: | + | $855,592 | |
| | | -------------------------- | |
| (=) Total Appraised Value: | = | $855,592 | |
| (–) Senior Exemption Loss: | – | $0 | |
| (–) Exemption Loss: | – | $0 | |
| | | -------------------------- | |
| (=) Taxable Value: | = | $855,592 | |
Taxing Jurisdiction
| Owner: | SMITH, MARK | | |
| % Ownership: | 100.0000000000% | | |
| Total Value: | $855,592 | | |
| Tax Area: | 110 - APPRAISER-OH Schl Dist, outside OH, improved & 1 acre or less |
| CF | Conservation Futures | 0.0316035091 | $855,592 | $855,592 | $27.04 | | |
| CEM1 | Cemetery #1 | 0.0040320932 | $855,592 | $855,592 | $3.45 | | |
| FIRE2 | Fire & Rescue Dist #2 N Whidbey GEN | 0.5475949600 | $855,592 | $855,592 | $468.52 | | |
| HOBOND | Hospital BOND | 0.1910887512 | $855,592 | $855,592 | $163.49 | | |
| HOGEN | Hospital GEN | 0.3902502903 | $855,592 | $855,592 | $333.90 | | |
| CE | County Current Expense | 0.3708482477 | $855,592 | $855,592 | $317.29 | | |
| CR | County Roads | 0.4584763726 | $855,592 | $855,592 | $392.27 | | |
| ISLANDEMS | Hospital GEN (EMS) | 0.5000000000 | $855,592 | $855,592 | $427.80 | | |
| LIB | Library Sno-Isle GEN | 0.3153421757 | $855,592 | $855,592 | $269.80 | | |
| NWHIDPRMT | P & R N Whidbey GEN | 0.2004466701 | $855,592 | $855,592 | $171.50 | | |
| SCH201MO | School 201 Enrichment | 1.8559231640 | $855,592 | $855,592 | $1,587.91 | | |
| ST | State School | 1.3035497053 | $855,592 | $855,592 | $1,115.31 | | |
| ST2 | State School Part 2 | 0.8169543533 | $855,592 | $855,592 | $698.98 | | |
| | Total Tax Rate: | 6.9861102925 | | | | | |
| | | | | Taxes w/Current Exemptions: | $5,977.26 | | |
| | | | | Taxes w/o Exemptions: | $5,977.26 | | |
Improvement / Building
| Improvement #1: | RESIDENTIAL | State Code: | Y | 2435.1 sqft | Value: | $395,592 |
| Bathrooms: | 2.5 | Bedrooms: | 3 | | Ceiling: | DRYWALL PAINTED | Cooling: | HEAT PUMP/CONV/V | | Exterior Wall/Cover: | CEMENT FIBER | Floor Covering: | CARPET/VINYL 60-40 | | Floor Structure: | WOOD W/SUBFLOOR | Foundation: | CONCRETE | | Interior Finish: | DRYWALL PAINT | Plumbing Fixture Cnt: | 12 | | Roof Slope: | 5" IN 12" | Roof Structure/Cover: | CJ ASPHALT |
|
| | Type | Description | Class CD | Sub Class CD | Year Built | Area |
| | BAS | BASE/MAIN FLOOR | 3 | 0 | 2005 | 1315.1 |
| | OP4 | OPEN PORCH W/CEILING-ROOF | 3 | 0 | 2005 | 49.5 |
| | AGR | ATTACHED GARAGE | 3 | 0 | 2005 | 371.0 |
| | BIG | BUILT IN GARAGE | 3 | 0 | 2005 | 259.0 |
| | UPS | UPPER STORY | 3 | 0 | 2005 | 1120.0 |
| | BAW | BALCONY WOOD RAIL | 3 | 0 | 2005 | 50.0 |
| | OWP | OPEN WOOD PORCH W/STEPS | 3 | 0 | 2005 | 475.3 |
Sketch
Property Image
Land
| 1 | HB | HIGH BLUFF | 0.0000 | 0.00 | 90.00 | 0.00 | 1.00 | $460,000 | $0 |
Roll Value History
| 2026 | N/A | N/A | N/A | N/A | N/A |
| 2025 | $395,592 | $460,000 | $0 | $855,592 | $855,592 |
| 2024 | $400,232 | $425,000 | $0 | $825,232 | $825,232 |
| 2023 | $404,871 | $400,000 | $0 | $804,871 | $804,871 |
| 2022 | $358,450 | $350,000 | $0 | $708,450 | $708,450 |
| 2021 | $315,345 | $275,000 | $0 | $590,345 | $590,345 |
| 2020 | $307,509 | $225,000 | $0 | $532,509 | $532,509 |
| 2019 | $237,842 | $275,000 | $0 | $512,842 | $512,842 |
| 2018 | $238,516 | $200,000 | $0 | $438,516 | $438,516 |
| 2017 | $239,863 | $200,000 | $0 | $439,863 | $439,863 |
| 2016 | $237,131 | $200,000 | $0 | $437,131 | $437,131 |
| 2015 | $239,765 | $200,000 | $0 | $439,765 | $439,765 |
| 2014 | $242,398 | $200,000 | $0 | $442,398 | $442,398 |
| 2013 | $245,034 | $191,945 | $0 | $436,979 | $436,979 |
| 2012 | $249,540 | $191,945 | $0 | $441,485 | $441,485 |
| 2011 | $252,251 | $191,945 | $0 | $444,196 | $444,196 |
| 2010 | $268,989 | $191,945 | $0 | $460,934 | $460,934 |
| 2009 | $277,486 | $191,945 | $0 | $469,431 | $469,431 |
| 2008 | $282,011 | $161,298 | $0 | $443,309 | $443,309 |
| 2007 | $285,326 | $116,126 | $0 | $401,452 | $401,452 |
Deed and Sales History
| 1 | 03/26/2004 | WD | Warranty Deed | Unknown | SMITH, MARK | | | $130,000.00 | 41199 | 4095542 |
| 2 | 01/01/1900 | OTHER | Other - Misc. Documents | Unknown | NEWHOUSE, JEFFREY A | | | $0.00 | 64697 | 0 |
Payout Agreement
| No payout information available.. |