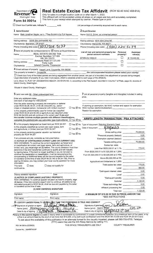
Property
Account |
| Property ID: | 742995 | Abbreviated Legal Description: | WHIDBEY HEIGHTS LOT 6 INCL ADJ TIDES |
| Geographic ID: | S8413-00-00006-0 | Agent Code: | |
| Type: | Real | | |
| Tax Area: | 112 - APPRAISER-OH Schl Dist, outside OH, improved, greater than 1 acre | Land Use Code | 11 |
| Open Space: | N | DFL | N |
| Historic Property: | N | Remodel Property: | N |
| Multi-Family Redevelopment: | N | | |
| Township: | | Section: | |
| Range: | |
Location |
| Address: | 2910 STRAWBERRY POINT RD OAK HARBOR, WA 98277 | Mapsco: | |
| Neighborhood: | Cycle 6 | Map ID: | 624 |
| Neighborhood CD: | 6 |
Owner |
| Name: | WATSON, JON C | Owner ID: | 193526 |
| Mailing Address: | FUMEI C WATSON 2910 STRAWBERRY POINT RD OAK HARBOR, WA 98277-9004 | % Ownership: | 100.0000000000% |
| | | Exemptions: | |
Taxes and Assessment Details
Values
| (+) Improvement Homesite Value: | + | $0 | |
| (+) Improvement Non-Homesite Value: | + | $332,294 | |
| (+) Land Homesite Value: | + | $0 | |
| (+) Land Non-Homesite Value: | + | $585,000 | |
| (+) Curr Use (HS): | + | $0 | $0 |
| (+) Curr Use (NHS): | + | $0 | $0 |
| | | -------------------------- | |
| (=) Market Value: | = | $917,294 | |
| (–) Productivity Loss: | – | $0 | |
| | | -------------------------- | |
| (=) Subtotal: | = | $917,294 | |
| (+) Senior Appraised Value: | + | $0 | |
| (+) Non-Senior Appraised Value: | + | $917,294 | |
| | | -------------------------- | |
| (=) Total Appraised Value: | = | $917,294 | |
| (–) Senior Exemption Loss: | – | $0 | |
| (–) Exemption Loss: | – | $0 | |
| | | -------------------------- | |
| (=) Taxable Value: | = | $917,294 | |
Taxing Jurisdiction
| Owner: | WATSON, JON C | | |
| % Ownership: | 100.0000000000% | | |
| Total Value: | $917,294 | | |
| Tax Area: | 112 - APPRAISER-OH Schl Dist, outside OH, improved, greater than 1 acre |
| CF | Conservation Futures | 0.0316035091 | $917,294 | $917,294 | $28.99 | | |
| CEM1 | Cemetery #1 | 0.0040320932 | $917,294 | $917,294 | $3.70 | | |
| FIRE2 | Fire & Rescue Dist #2 N Whidbey GEN | 0.5475949600 | $917,294 | $917,294 | $502.31 | | |
| HOBOND | Hospital BOND | 0.1910887512 | $917,294 | $917,294 | $175.28 | | |
| HOGEN | Hospital GEN | 0.3902502903 | $917,294 | $917,294 | $357.97 | | |
| CE | County Current Expense | 0.3708482477 | $917,294 | $917,294 | $340.18 | | |
| CR | County Roads | 0.4584763726 | $917,294 | $917,294 | $420.56 | | |
| ISLANDEMS | Hospital GEN (EMS) | 0.5000000000 | $917,294 | $917,294 | $458.65 | | |
| LIB | Library Sno-Isle GEN | 0.3153421757 | $917,294 | $917,294 | $289.26 | | |
| NWHIDPRMT | P & R N Whidbey GEN | 0.2004466701 | $917,294 | $917,294 | $183.87 | | |
| SCH201MO | School 201 Enrichment | 1.8559231640 | $917,294 | $917,294 | $1,702.43 | | |
| ST | State School | 1.3035497053 | $917,294 | $917,294 | $1,195.74 | | |
| ST2 | State School Part 2 | 0.8169543533 | $917,294 | $917,294 | $749.39 | | |
| | Total Tax Rate: | 6.9861102925 | | | | | |
| | | | | Taxes w/Current Exemptions: | $6,408.33 | | |
| | | | | Taxes w/o Exemptions: | $6,408.33 | | |
Improvement / Building
| Improvement #1: | RESIDENTIAL | State Code: | Y | 2079.4 sqft | Value: | $332,294 |
| Bathrooms: | 2 | Bedrooms: | 3 | | Ceiling: | DRYWALL PAINTED | Cooling: | HEAT PUMP/CONV/V | | Exterior Wall/Cover: | CEMENT FIBER | Floor Covering: | CARPET/VINYL 80-20 | | Floor Structure: | WOOD W/SUBFLOOR | Foundation: | CONCRETE | | Interior Finish: | DRYWALL PAINT | Plumbing Fixture Cnt: | 10 | | Roof Slope: | 4" IN 12" | Roof Structure/Cover: | CJ ASPHALT |
|
| | Type | Description | Class CD | Sub Class CD | Year Built | Area |
| | BAS | BASE/MAIN FLOOR | 3 | 0 | 2006 | 2079.4 |
| | OP4 | OPEN PORCH W/CEILING-ROOF | 3 | 0 | 2006 | 26.8 |
| | AGR | ATTACHED GARAGE | 3 | 0 | 2006 | 535.2 |
| | OWP | OPEN WOOD PORCH W/STEPS | 3 | 0 | 2006 | 128.0 |
| | OP2 | OPEN PORCH W/STEPS | 4 | 0 | 2006 | 328.0 |
Sketch
Property Image
Land
| 1 | HB | HIGH BLUFF | 1.1648 | 50738.69 | 114.00 | 0.00 | 1.00 | $585,000 | $0 |
Roll Value History
| 2026 | N/A | N/A | N/A | N/A | N/A |
| 2025 | $332,294 | $585,000 | $0 | $917,294 | $917,294 |
| 2024 | $336,286 | $550,000 | $0 | $886,286 | $886,286 |
| 2023 | $335,930 | $525,000 | $0 | $860,930 | $860,930 |
| 2022 | $293,370 | $475,000 | $0 | $768,370 | $768,370 |
| 2021 | $258,130 | $350,000 | $0 | $608,130 | $608,130 |
| 2020 | $251,733 | $300,000 | $0 | $551,733 | $551,733 |
| 2019 | $192,427 | $350,000 | $0 | $542,427 | $542,427 |
| 2018 | $192,978 | $260,000 | $0 | $452,978 | $452,978 |
| 2017 | $194,081 | $200,000 | $0 | $394,081 | $394,081 |
| 2016 | $192,204 | $200,000 | $0 | $392,204 | $392,204 |
| 2015 | $194,363 | $200,000 | $0 | $394,363 | $394,363 |
| 2014 | $196,523 | $200,000 | $0 | $396,523 | $396,523 |
| 2013 | $198,683 | $331,872 | $0 | $530,555 | $530,555 |
| 2012 | $200,842 | $331,872 | $0 | $532,714 | $532,714 |
| 2011 | $203,001 | $331,872 | $0 | $534,873 | $534,873 |
| 2010 | $203,489 | $331,872 | $0 | $535,361 | $535,361 |
| 2009 | $211,927 | $331,872 | $0 | $543,799 | $543,799 |
| 2008 | $214,100 | $266,335 | $0 | $480,435 | $480,435 |
| 2007 | $214,129 | $200,783 | $0 | $414,912 | $414,912 |
Deed and Sales History
| 1 | 10/18/2004 | WD | Warranty Deed | NEWHOUSE, JEFFREY A | WATSON, JON C | | | $130,000.00 | 44979 | 4116248 |
| 2 | 01/01/1900 | OTHER | Other - Misc. Documents | Unknown | NEWHOUSE, JEFFREY A | | | $0.00 | 64697 | 0 |
Payout Agreement
| No payout information available.. |