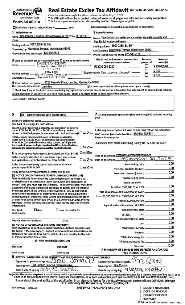
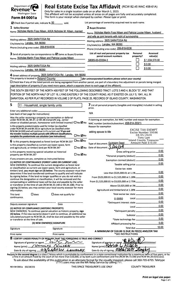
Property
Account |
| Property ID: | 743039 | Abbreviated Legal Description: | CHARDONNAY PLACE LOT 3 |
| Geographic ID: | S6364-00-00003-0 | Agent Code: | |
| Type: | Real | | |
| Tax Area: | 542 - APPRAISER-Stan/Cam Schl Dist, Special Dist, improved, greater than 1 acre | Land Use Code | 11 |
| Open Space: | N | DFL | N |
| Historic Property: | N | Remodel Property: | N |
| Multi-Family Redevelopment: | N | | |
| Township: | | Section: | |
| Range: | |
Location |
| Address: | 1023 CHARDONNAY PLACE CAMANO ISLAND, WA 98282 | Mapsco: | |
| Neighborhood: | Cycle 5 | Map ID: | 852 |
| Neighborhood CD: | 5 |
Owner |
| Name: | VARGAS, FERNANDO | Owner ID: | 316281 |
| Mailing Address: | CARMEN SOTO 1023 CHARDONNAY PL CAMANO ISLAND, WA 98282 | % Ownership: | 100.0000000000% |
| | | Exemptions: | |
Taxes and Assessment Details
Values
| (+) Improvement Homesite Value: | + | $0 | |
| (+) Improvement Non-Homesite Value: | + | $260,264 | |
| (+) Land Homesite Value: | + | $0 | |
| (+) Land Non-Homesite Value: | + | $260,000 | |
| (+) Curr Use (HS): | + | $0 | $0 |
| (+) Curr Use (NHS): | + | $0 | $0 |
| | | -------------------------- | |
| (=) Market Value: | = | $520,264 | |
| (–) Productivity Loss: | – | $0 | |
| | | -------------------------- | |
| (=) Subtotal: | = | $520,264 | |
| (+) Senior Appraised Value: | + | $0 | |
| (+) Non-Senior Appraised Value: | + | $520,264 | |
| | | -------------------------- | |
| (=) Total Appraised Value: | = | $520,264 | |
| (–) Senior Exemption Loss: | – | $0 | |
| (–) Exemption Loss: | – | $0 | |
| | | -------------------------- | |
| (=) Taxable Value: | = | $520,264 | |
Taxing Jurisdiction
| Owner: | VARGAS, FERNANDO | | |
| % Ownership: | 100.0000000000% | | |
| Total Value: | $520,264 | | |
| Tax Area: | 542 - APPRAISER-Stan/Cam Schl Dist, Special Dist, improved, greater than 1 acre |
| CF | Conservation Futures | 0.0316035091 | $520,264 | $520,264 | $16.44 | | |
| EMS1 | Fire & Rescue Dist #1 Camano GEN (EMS) | 0.3677864386 | $520,264 | $520,264 | $191.35 | | |
| FIRE1 | Fire & Rescue Dist #1 Camano GEN | 1.2502910536 | $520,264 | $520,264 | $650.48 | | |
| FIRE1BOND | Fire & Rescue Dist #1 Camano BOND | 0.1570001679 | $520,264 | $520,264 | $81.68 | | |
| CE | County Current Expense | 0.3708482477 | $520,264 | $520,264 | $192.94 | | |
| CR | County Roads | 0.4584763726 | $520,264 | $520,264 | $238.53 | | |
| LCIB | Library Sno-Isle BOND (Camano Island) | 0.0396325772 | $520,264 | $520,264 | $20.62 | | |
| LIB | Library Sno-Isle GEN | 0.3153421757 | $520,264 | $520,264 | $164.06 | | |
| SCH205_401 | School 205-401 Enrichment | 1.2698420524 | $520,264 | $520,264 | $660.65 | | |
| SCH205BOND | School 205-401 BOND | 0.9396497583 | $520,264 | $520,264 | $488.87 | | |
| ST | State School | 1.3035497053 | $520,264 | $520,264 | $678.19 | | |
| ST2 | State School Part 2 | 0.8169543533 | $520,264 | $520,264 | $425.03 | | |
| | Total Tax Rate: | 7.3209764117 | | | | | |
| | | | | Taxes w/Current Exemptions: | $3,808.84 | | |
| | | | | Taxes w/o Exemptions: | $3,808.84 | | |
Improvement / Building
| Improvement #1: | RESIDENTIAL | State Code: | Y | 1248.0 sqft | Value: | $260,264 |
| Bathrooms: | 2 | Bedrooms: | 3 | | Ceiling: | DRYWALL PAINTED | Exterior Wall/Cover: | WOOD SIDING | | Floor Covering: | LAMINATE/LVP | Floor Structure: | WOOD W/SUBFLOOR | | Foundation: | CONCRETE | Heating: | FHA ELECTRIC | | Interior Finish: | DRYWALL PAINT | Plumbing Fixture Cnt: | 10 | | Roof Slope: | 6" IN 12" | Roof Structure/Cover: | CJ ASPHALT |
|
| | Type | Description | Class CD | Sub Class CD | Year Built | Area |
| | BAS | BASE/MAIN FLOOR | 3 | 0 | 1997 | 1248.0 |
| | AGR | ATTACHED GARAGE | 3 | 0 | 1997 | 672.0 |
| | OWP | OPEN WOOD PORCH W/STEPS | 3 | 0 | 1997 | 224.0 |
| | OWR | OPEN WOOD PORCH W/STEPS/ROOF | 3 | 0 | 1997 | 96.0 |
| | OCP | OPEN CARPORT | 3 | 0 | 1997 | 364.0 |
Sketch
Property Image
Land
| 1 | 17 | AC (01.01-02.00) | 1.3500 | 58806.00 | 0.00 | 0.00 | 1.00 | $260,000 | $0 |
Roll Value History
| 2026 | N/A | N/A | N/A | N/A | N/A |
| 2025 | $260,264 | $260,000 | $0 | $520,264 | $520,264 |
| 2024 | $240,651 | $220,000 | $0 | $460,651 | $460,651 |
| 2023 | $243,807 | $220,000 | $0 | $463,807 | $463,807 |
| 2022 | $223,624 | $200,000 | $0 | $423,624 | $423,624 |
| 2021 | $197,481 | $170,000 | $0 | $367,481 | $367,481 |
| 2020 | $192,211 | $150,000 | $0 | $342,211 | $342,211 |
| 2019 | $136,858 | $200,000 | $0 | $336,858 | $336,858 |
| 2018 | $137,279 | $120,000 | $0 | $257,279 | $257,279 |
| 2017 | $138,120 | $75,000 | $0 | $213,120 | $213,120 |
| 2016 | $139,807 | $75,000 | $0 | $214,807 | $214,807 |
| 2015 | $133,942 | $40,000 | $0 | $173,942 | $173,942 |
| 2014 | $135,586 | $40,000 | $0 | $175,586 | $175,586 |
| 2013 | $137,231 | $40,000 | $0 | $177,231 | $177,231 |
| 2012 | $138,876 | $74,400 | $0 | $213,276 | $213,276 |
| 2011 | $140,522 | $93,000 | $0 | $233,522 | $233,522 |
| 2010 | $145,903 | $93,000 | $0 | $238,903 | $238,903 |
| 2009 | $151,416 | $120,000 | $0 | $271,416 | $271,416 |
| 2008 | $153,201 | $85,000 | $0 | $238,201 | $238,201 |
| 2007 | $154,978 | $85,000 | $0 | $239,978 | $239,978 |
Deed and Sales History
| 1 | 04/30/2025 | WD | Warranty Deed | ZWEEGMAN, TANYA A | VARGAS, FERNANDO | | | $556,650.00 | 63315 | 4585180 |
| 2 | 11/01/2023 | QCD | Quit Claim Deed | ZWEEGMAN, TANYA A | ZWEEGMAN, TANYA A | | | $160,982.00 | 58433 | 4566448 |
| 3 | 11/01/2023 | QCD | Quit Claim Deed | ZWEEGMAN, RAYMOND E | ZWEEGMAN, TANYA A | | | $0.00 | 58432 | 4566447 |
| 4 | 08/21/2014 | WD | Warranty Deed | HUGHES, DONALD W / BARBARA A | ZWEEGMAN, RAYMOND E | | | $239,950.00 | 16549 | 4364537 |
| 5 | 12/01/1996 | WD | Warranty Deed | COSTER, RONALD N | HUGHES, DONALD W | | | $38,000.00 | 64419 | 96021575 |
| 6 | 01/01/1900 | OTHER | Other - Misc. Documents | Unknown | COSTER, RONALD N | | | $0.00 | 52144 | 95010036 |
Payout Agreement
| No payout information available.. |