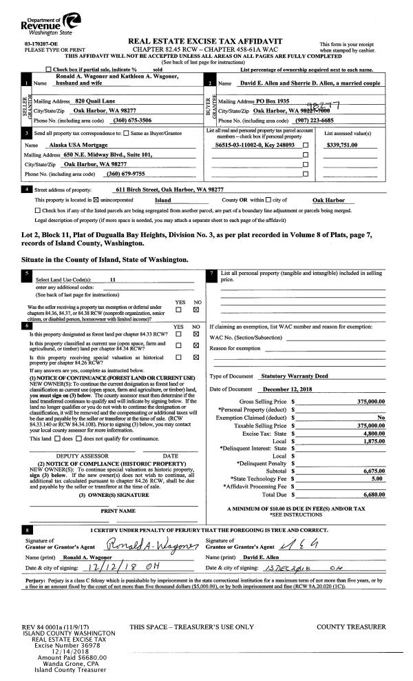
Property
Account |
| Property ID: | 743280 | Abbreviated Legal Description: | IDLEWOOD 1 LOT 16 |
| Geographic ID: | S7220-00-00016-0 | Agent Code: | |
| Type: | Real | | |
| Tax Area: | 540 - APPRAISER-Stan/Cam Schl Dist, Special Dist, improved & less than 1 acre | Land Use Code | 11 |
| Open Space: | N | DFL | N |
| Historic Property: | N | Remodel Property: | N |
| Multi-Family Redevelopment: | N | | |
| Township: | | Section: | |
| Range: | |
Location |
| Address: | 2795 MAPLE TREE LN CAMANO ISLAND, WA 98282 | Mapsco: | |
| Neighborhood: | Cycle 5 | Map ID: | 852 |
| Neighborhood CD: | 5 |
Owner |
| Name: | JONES, PATRICK | Owner ID: | 315558 |
| Mailing Address: | 2795 MAPLE TREE LN CAMANO ISLAND, WA 98282 | % Ownership: | 100.0000000000% |
| | | Exemptions: | |
Taxes and Assessment Details
Values
| (+) Improvement Homesite Value: | + | $0 | |
| (+) Improvement Non-Homesite Value: | + | $230,794 | |
| (+) Land Homesite Value: | + | $0 | |
| (+) Land Non-Homesite Value: | + | $210,000 | |
| (+) Curr Use (HS): | + | $0 | $0 |
| (+) Curr Use (NHS): | + | $0 | $0 |
| | | -------------------------- | |
| (=) Market Value: | = | $440,794 | |
| (–) Productivity Loss: | – | $0 | |
| | | -------------------------- | |
| (=) Subtotal: | = | $440,794 | |
| (+) Senior Appraised Value: | + | $0 | |
| (+) Non-Senior Appraised Value: | + | $440,794 | |
| | | -------------------------- | |
| (=) Total Appraised Value: | = | $440,794 | |
| (–) Senior Exemption Loss: | – | $0 | |
| (–) Exemption Loss: | – | $0 | |
| | | -------------------------- | |
| (=) Taxable Value: | = | $440,794 | |
Taxing Jurisdiction
| Owner: | JONES, PATRICK | | |
| % Ownership: | 100.0000000000% | | |
| Total Value: | $440,794 | | |
| Tax Area: | 540 - APPRAISER-Stan/Cam Schl Dist, Special Dist, improved & less than 1 acre |
| CF | Conservation Futures | 0.0316035091 | $440,794 | $440,794 | $13.93 | | |
| EMS1 | Fire & Rescue Dist #1 Camano GEN (EMS) | 0.3677864386 | $440,794 | $440,794 | $162.12 | | |
| FIRE1 | Fire & Rescue Dist #1 Camano GEN | 1.2502910536 | $440,794 | $440,794 | $551.12 | | |
| FIRE1BOND | Fire & Rescue Dist #1 Camano BOND | 0.1570001679 | $440,794 | $440,794 | $69.20 | | |
| CE | County Current Expense | 0.3708482477 | $440,794 | $440,794 | $163.47 | | |
| CR | County Roads | 0.4584763726 | $440,794 | $440,794 | $202.09 | | |
| LCIB | Library Sno-Isle BOND (Camano Island) | 0.0396325772 | $440,794 | $440,794 | $17.47 | | |
| LIB | Library Sno-Isle GEN | 0.3153421757 | $440,794 | $440,794 | $139.00 | | |
| SCH205_401 | School 205-401 Enrichment | 1.2698420524 | $440,794 | $440,794 | $559.74 | | |
| SCH205BOND | School 205-401 BOND | 0.9396497583 | $440,794 | $440,794 | $414.19 | | |
| ST | State School | 1.3035497053 | $440,794 | $440,794 | $574.60 | | |
| ST2 | State School Part 2 | 0.8169543533 | $440,794 | $440,794 | $360.11 | | |
| | Total Tax Rate: | 7.3209764117 | | | | | |
| | | | | Taxes w/Current Exemptions: | $3,227.04 | | |
| | | | | Taxes w/o Exemptions: | $3,227.04 | | |
Improvement / Building
| Improvement #1: | MANUFACTURED HOME | State Code: | Y | 2574.7 sqft | Value: | $230,794 |
| Bathrooms: | 2 | Bedrooms: | 2 | | Ceiling: | PLASTER PAINTED | Cooling: | EVAP NO DUCT | | Exterior Wall/Cover: | VINYL | Floor Covering: | CARPET 100% | | Floor Structure: | SLAB ON GRADE | Foundation: | SLAB | | Heating: | FHA ELECTRIC | Interior Finish: | PLASTER | | Plumbing Fixture Cnt: | 1 | Roof Slope: | FLAT | | Roof Structure/Cover: | CJ ALUMINIUM HEAVY |   |   |
|
| | Type | Description | Class CD | Sub Class CD | Year Built | Area |
| | BAS | BASE/MAIN FLOOR | 5 | 0 | 1991 | 2574.7 |
| | OWR | OPEN WOOD PORCH W/STEPS/ROOF | 5 | 0 | 1991 | 112.0 |
| | CPD | OPEN CARPORT DIRT FLOOR | 5 | 0 | 1991 | 256.0 |
Sketch
| No sketches available for this property. |
Property Image
Land
| 1 | 15 | SQ (12001-21780) | 0.0000 | 0.00 | 0.00 | 0.00 | 1.00 | $210,000 | $0 |
Roll Value History
| 2026 | N/A | N/A | N/A | N/A | N/A |
| 2025 | $230,794 | $210,000 | $0 | $440,794 | $440,794 |
| 2024 | $221,535 | $200,000 | $0 | $421,535 | $421,535 |
| 2023 | $176,059 | $190,000 | $0 | $366,059 | $366,059 |
| 2022 | $163,786 | $180,000 | $0 | $343,786 | $260,353 |
| 2021 | $200,353 | $130,000 | $0 | $330,353 | $260,353 |
| 2020 | $199,582 | $90,000 | $0 | $289,582 | $289,582 |
| 2019 | $161,181 | $130,000 | $0 | $291,181 | $291,181 |
| 2018 | $93,418 | $120,000 | $0 | $213,418 | $213,418 |
| 2017 | $95,668 | $75,000 | $0 | $170,668 | $63,268 |
| 2016 | $96,794 | $50,000 | $0 | $146,794 | $58,718 |
| 2015 | $85,469 | $40,000 | $0 | $125,469 | $50,188 |
| 2014 | $87,569 | $40,000 | $0 | $127,569 | $51,028 |
| 2013 | $89,670 | $40,000 | $0 | $129,670 | $51,868 |
| 2012 | $91,771 | $66,400 | $0 | $158,171 | $63,268 |
| 2011 | $93,872 | $83,000 | $0 | $176,872 | $176,872 |
| 2010 | $100,306 | $83,000 | $0 | $183,306 | $183,306 |
| 2009 | $108,977 | $80,000 | $0 | $188,977 | $188,977 |
| 2008 | $110,841 | $105,000 | $0 | $215,841 | $215,841 |
| 2007 | $112,638 | $116,000 | $0 | $228,638 | $228,638 |
Deed and Sales History
| 1 | 02/17/2025 | WD | Warranty Deed | LEWIS, ROBBY A. | JONES, PATRICK | | | $450,000.00 | 62638 | 4582533 |
| 2 | 06/23/2023 | WD | Warranty Deed | LOVE, RODERICK R | LEWIS, ROBBY A. | | | $400,000.00 | 57132 | 4561580 |
| 3 | 01/07/2019 | WD | Warranty Deed | HOLIEN, CLARENCE A. | LOVE, RODERICK R | | | $282,500.00 | 37291 | 4457783 |
| 4 | 06/11/2015 | QCD | Quit Claim Deed | HOLIEN, LANCE | HOLIEN, CLARENCE A. | | | $0.00 | 20261 | 4381241 |
| 5 | 04/03/2012 | WD | Warranty Deed | SECRETARY OF VETERANS AFFAIRS | HOLIEN, LANCE | | | $72,950.00 | 7335 | 4313278 |
| 6 | 12/21/2010 | WD | Warranty Deed | FLAGSTAR BANK F S B | SECRETARY OF VETERANS AFFAIRS | | | $0.00 | 4271 | 4294332 |
| 7 | 12/06/2010 | TRUSTEED | Trustee's Deed | STEPHENS, DALE S | FLAGSTAR BANK F S B | | | $145,415.00 | 3104 | 4286657 |
| 8 | 09/21/2007 | WD | Warranty Deed | LOYD, MICHAEL J | STEPHENS, DALE S | | | $217,000.00 | 73270 | 4212990 |
| 9 | 06/16/2003 | ESTSEPPROP | Establish Separate Property | LOYD, MICHAEL J | LOYD, MICHAEL J | | | $0.00 | 32698 | 4064081 |
| 10 | 06/16/2003 | WD | Warranty Deed | BARTLETT, RICHARD C | LOYD, MICHAEL J | | | $176,460.00 | 32696 | 4064080 |
| 11 | 09/01/1990 | OTHER | Other - Misc. Documents | Unknown | BARTLETT, RICHARD C | | | $61,365.00 | 11111111 | 0 |
| 12 | 07/01/1990 | WD | Warranty Deed | WILLIAMS, DOUGLAS M | BARTLETT, RICHARD C | | | $27,500.00 | 4455 | 90014686 |
| 13 | 06/01/1990 | WD | Warranty Deed | MORRICE, DOUGLAS R | WILLIAMS, DOUGLAS M | | | $15,000.00 | 3972 | 90012939 |
| 14 | 10/01/1979 | CD | DNU - Correction Deed | LALONDE, NORMAN E | MORRICE, DOUGLAS R | | | $4,744.00 | 95271 | 0 |
| 15 | 10/01/1978 | OTHER | Other - Misc. Documents | BARTLETT, RICHARD C | LALONDE, NORMAN E | | | $3,500.00 | 854610 | 3426220 |
Payout Agreement
| No payout information available.. |