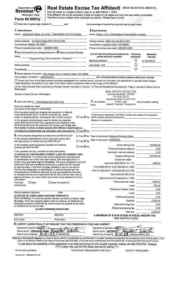
Property
Account |
| Property ID: | 743324 | Abbreviated Legal Description: | LOT 2 SP 3-93.23307.200-1610 V3 SP P105-6 AF#96015780 TGW 5' R/W AF#96015780 DRAINFIELD FOR 207-1610 AF#96015780 |
| Geographic ID: | R23307-191-1610 | Agent Code: | |
| Type: | Real | | |
| Tax Area: | 112 - APPRAISER-OH Schl Dist, outside OH, improved, greater than 1 acre | Land Use Code | 12 |
| Open Space: | N | DFL | N |
| Historic Property: | N | Remodel Property: | N |
| Multi-Family Redevelopment: | N | | |
| Township: | 33 | Section: | 07 |
| Range: | R2 |
Location |
| Address: | 4149 KIMBERLY WAY OAK HARBOR, WA 98277 | Mapsco: | |
| Neighborhood: | 61cRR-jones road | Map ID: | 591 |
| Neighborhood CD: | 61cRRjones |
Owner |
| Name: | RAYAPUREDDY, MANIKANTA | Owner ID: | 301935 |
| Mailing Address: | PRISCILLA PARKER 541 EASY ST OAK HARBOR, WA 98277 | % Ownership: | 100.0000000000% |
| | | Exemptions: | |
Taxes and Assessment Details
Values
| (+) Improvement Homesite Value: | + | $0 | |
| (+) Improvement Non-Homesite Value: | + | $304,068 | |
| (+) Land Homesite Value: | + | $0 | |
| (+) Land Non-Homesite Value: | + | $270,000 | |
| (+) Curr Use (HS): | + | $0 | $0 |
| (+) Curr Use (NHS): | + | $0 | $0 |
| | | -------------------------- | |
| (=) Market Value: | = | $574,068 | |
| (–) Productivity Loss: | – | $0 | |
| | | -------------------------- | |
| (=) Subtotal: | = | $574,068 | |
| (+) Senior Appraised Value: | + | $0 | |
| (+) Non-Senior Appraised Value: | + | $574,068 | |
| | | -------------------------- | |
| (=) Total Appraised Value: | = | $574,068 | |
| (–) Senior Exemption Loss: | – | $0 | |
| (–) Exemption Loss: | – | $0 | |
| | | -------------------------- | |
| (=) Taxable Value: | = | $574,068 | |
Taxing Jurisdiction
| Owner: | RAYAPUREDDY, MANIKANTA | | |
| % Ownership: | 100.0000000000% | | |
| Total Value: | $574,068 | | |
| Tax Area: | 112 - APPRAISER-OH Schl Dist, outside OH, improved, greater than 1 acre |
| CF | Conservation Futures | 0.0316035091 | $574,068 | $574,068 | $18.14 | | |
| CEM1 | Cemetery #1 | 0.0040320932 | $574,068 | $574,068 | $2.31 | | |
| FIRE2 | Fire & Rescue Dist #2 N Whidbey GEN | 0.5475949600 | $574,068 | $574,068 | $314.36 | | |
| HOBOND | Hospital BOND | 0.1910887512 | $574,068 | $574,068 | $109.70 | | |
| HOGEN | Hospital GEN | 0.3902502903 | $574,068 | $574,068 | $224.03 | | |
| CE | County Current Expense | 0.3708482477 | $574,068 | $574,068 | $212.89 | | |
| CR | County Roads | 0.4584763726 | $574,068 | $574,068 | $263.20 | | |
| ISLANDEMS | Hospital GEN (EMS) | 0.5000000000 | $574,068 | $574,068 | $287.03 | | |
| LIB | Library Sno-Isle GEN | 0.3153421757 | $574,068 | $574,068 | $181.03 | | |
| NWHIDPRMT | P & R N Whidbey GEN | 0.2004466701 | $574,068 | $574,068 | $115.07 | | |
| SCH201MO | School 201 Enrichment | 1.8559231640 | $574,068 | $574,068 | $1,065.43 | | |
| ST | State School | 1.3035497053 | $574,068 | $574,068 | $748.33 | | |
| ST2 | State School Part 2 | 0.8169543533 | $574,068 | $574,068 | $468.99 | | |
| | Total Tax Rate: | 6.9861102925 | | | | | |
| | | | | Taxes w/Current Exemptions: | $4,010.51 | | |
| | | | | Taxes w/o Exemptions: | $4,010.51 | | |
Improvement / Building
| Improvement #1: | MISC | State Code: | B1 | 2648.0 sqft | Value: | $304,068 |
| Bathrooms: | 4 | Bedrooms: | 6 | | Ceiling: | DRY WALL SPRAYED | Exterior Wall/Cover: | PLY/HARDBOARD T-111 | | Floor Covering: | CARPET/VINYL 80-20 | Floor Structure: | WOOD W/SUBFLOOR | | Foundation: | CONCRETE | Heating: | BASEBOARD ELECTRIC | | Interior Finish: | DRYWALL PAINT | Plumbing Fixture Cnt: | 20 | | Roof Slope: | 4" IN 12" | Roof Structure/Cover: | CJ ASPHALT |
|
Sketch
Property Image
Land
| 1 | 61 | MULTIPLE RESIDENCES | 1.1500 | 50094.00 | 0.00 | 0.00 | 1.00 | $270,000 | $0 |
Roll Value History
| 2026 | N/A | N/A | N/A | N/A | N/A |
| 2025 | $304,068 | $270,000 | $0 | $574,068 | $574,068 |
| 2024 | $314,626 | $270,000 | $0 | $584,626 | $584,626 |
| 2023 | $319,236 | $270,000 | $0 | $589,236 | $589,236 |
| 2022 | $293,245 | $270,000 | $0 | $563,245 | $563,245 |
| 2021 | $216,593 | $270,000 | $0 | $486,593 | $486,593 |
| 2020 | $211,510 | $270,000 | $0 | $481,510 | $481,510 |
| 2019 | $158,873 | $160,000 | $0 | $318,873 | $318,873 |
| 2018 | $159,482 | $160,000 | $0 | $319,482 | $319,482 |
| 2017 | $160,699 | $100,188 | $0 | $260,887 | $260,887 |
| 2016 | $156,774 | $112,712 | $0 | $269,486 | $269,486 |
| 2015 | $156,774 | $112,712 | $0 | $269,486 | $269,486 |
| 2014 | $156,774 | $112,712 | $0 | $269,486 | $269,486 |
| 2013 | $156,774 | $112,712 | $0 | $269,486 | $269,486 |
| 2012 | $156,774 | $112,712 | $0 | $269,486 | $269,486 |
| 2011 | $156,774 | $112,712 | $0 | $269,486 | $269,486 |
| 2010 | $157,782 | $112,712 | $0 | $270,494 | $270,494 |
| 2009 | $159,994 | $123,231 | $0 | $283,225 | $283,225 |
| 2008 | $162,206 | $129,743 | $0 | $291,949 | $291,949 |
| 2007 | $164,418 | $129,743 | $0 | $294,161 | $294,161 |
Deed and Sales History
| 1 | 10/20/2021 | WD | Warranty Deed | PRITCHETT, DANIEL M | RAYAPUREDDY, MANIKANTA | | | $640,000.00 | 50853 | 4533656 |
| 2 | 03/17/1999 | WD | Warranty Deed | MIDWAY, EAST L | PRITCHETT, DANIEL M | | | $168,000.00 | 91032 | 99007126 |
| 3 | 10/01/1986 | WD | Warranty Deed | ALPHA, GROUP I | MIDWAY, EAST L | | | $0.00 | 72663 | 97012566 |
| 4 | 01/01/1900 | OTHER | Other - Misc. Documents | Unknown | ALPHA, GROUP I | | | $0.00 | 61316 | 96006708 |
Payout Agreement
| No payout information available.. |