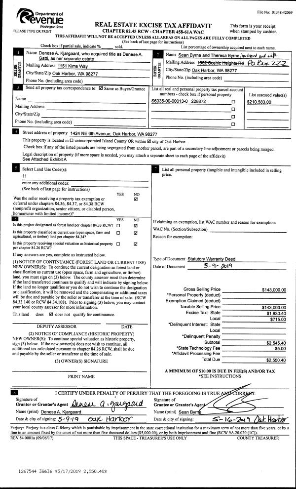
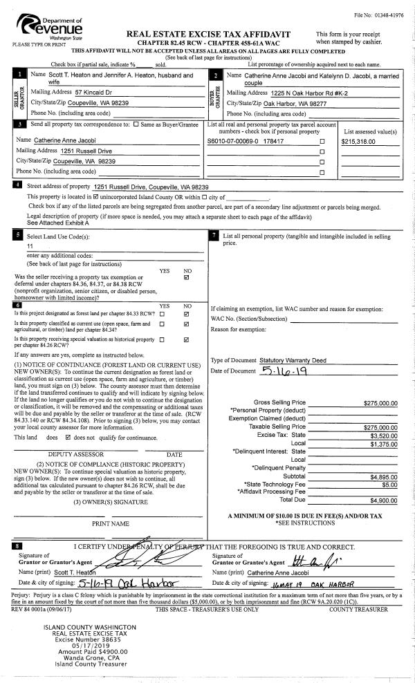
Property
Account |
| Property ID: | 743333 | Abbreviated Legal Description: | W/2 LOTS A-1 & A-2 SP 84-97.13311.332-0990 V1 SP P396 AF#85011986 FR PT 340-0980 & PT 325-0980 TGW & SUB EZ AF#96015882 |
| Geographic ID: | R13311-331-0810 | Agent Code: | |
| Type: | Real | | |
| Tax Area: | 112 - APPRAISER-OH Schl Dist, outside OH, improved, greater than 1 acre | Land Use Code | 11 |
| Open Space: | N | DFL | N |
| Historic Property: | N | Remodel Property: | N |
| Multi-Family Redevelopment: | N | | |
| Township: | 33 | Section: | 11 |
| Range: | R1 |
Location |
| Address: | 4252 HOLLYDALE LN OAK HARBOR, WA 98277 | Mapsco: | |
| Neighborhood: | Cycle 6 | Map ID: | 202 |
| Neighborhood CD: | 6 |
Owner |
| Name: | LARSEN, JACKIELYNN | Owner ID: | 289754 |
| Mailing Address: | 901 24TH ST ANACORTES, WA 98221 | % Ownership: | 100.0000000000% |
| | | Exemptions: | |
Taxes and Assessment Details
Values
| (+) Improvement Homesite Value: | + | $0 | |
| (+) Improvement Non-Homesite Value: | + | $371,845 | |
| (+) Land Homesite Value: | + | $0 | |
| (+) Land Non-Homesite Value: | + | $250,000 | |
| (+) Curr Use (HS): | + | $0 | $0 |
| (+) Curr Use (NHS): | + | $0 | $0 |
| | | -------------------------- | |
| (=) Market Value: | = | $621,845 | |
| (–) Productivity Loss: | – | $0 | |
| | | -------------------------- | |
| (=) Subtotal: | = | $621,845 | |
| (+) Senior Appraised Value: | + | $0 | |
| (+) Non-Senior Appraised Value: | + | $621,845 | |
| | | -------------------------- | |
| (=) Total Appraised Value: | = | $621,845 | |
| (–) Senior Exemption Loss: | – | $0 | |
| (–) Exemption Loss: | – | $0 | |
| | | -------------------------- | |
| (=) Taxable Value: | = | $621,845 | |
Taxing Jurisdiction
| Owner: | LARSEN, JACKIELYNN | | |
| % Ownership: | 100.0000000000% | | |
| Total Value: | $621,845 | | |
| Tax Area: | 112 - APPRAISER-OH Schl Dist, outside OH, improved, greater than 1 acre |
| CF | Conservation Futures | 0.0316035091 | $621,845 | $621,845 | $19.65 | | |
| CEM1 | Cemetery #1 | 0.0040320932 | $621,845 | $621,845 | $2.51 | | |
| FIRE2 | Fire & Rescue Dist #2 N Whidbey GEN | 0.5475949600 | $621,845 | $621,845 | $340.52 | | |
| HOBOND | Hospital BOND | 0.1910887512 | $621,845 | $621,845 | $118.83 | | |
| HOGEN | Hospital GEN | 0.3902502903 | $621,845 | $621,845 | $242.68 | | |
| CE | County Current Expense | 0.3708482477 | $621,845 | $621,845 | $230.61 | | |
| CR | County Roads | 0.4584763726 | $621,845 | $621,845 | $285.10 | | |
| ISLANDEMS | Hospital GEN (EMS) | 0.5000000000 | $621,845 | $621,845 | $310.92 | | |
| LIB | Library Sno-Isle GEN | 0.3153421757 | $621,845 | $621,845 | $196.09 | | |
| NWHIDPRMT | P & R N Whidbey GEN | 0.2004466701 | $621,845 | $621,845 | $124.65 | | |
| SCH201MO | School 201 Enrichment | 1.8559231640 | $621,845 | $621,845 | $1,154.10 | | |
| ST | State School | 1.3035497053 | $621,845 | $621,845 | $810.61 | | |
| ST2 | State School Part 2 | 0.8169543533 | $621,845 | $621,845 | $508.02 | | |
| | Total Tax Rate: | 6.9861102925 | | | | | |
| | | | | Taxes w/Current Exemptions: | $4,344.29 | | |
| | | | | Taxes w/o Exemptions: | $4,344.29 | | |
Improvement / Building
| Improvement #1: | RESIDENTIAL | State Code: | Y | 1702.0 sqft | Value: | $371,845 |
| Bathrooms: | 2.5 | Bedrooms: | 3 | | Ceiling: | DRYWALL PAINTED | Cooling: | HEAT PUMP/CONV/V | | Exterior Wall/Cover: | PLY/HARDBOARD T-111 | Floor Covering: | CERAMIC TILE/CPT 40-60 | | Floor Structure: | WOOD W/SUBFLOOR | Foundation: | CONCRETE | | Interior Finish: | DRYWALL PAINT | Plumbing Fixture Cnt: | 11 | | Roof Slope: | 4" IN 12" | Roof Structure/Cover: | CJ ALUMINIUM HEAVY |
|
| | Type | Description | Class CD | Sub Class CD | Year Built | Area |
| | BAS | BASE/MAIN FLOOR | 3 | 0 | 1990 | 1360.8 |
| | OCP | OPEN CARPORT | 3 | 0 | 1990 | 160.0 |
| | OP3 | OPEN PORCH W/ROOF | 3 | 0 | 1990 | 225.0 |
| | OP4 | OPEN PORCH W/CEILING-ROOF | 3 | 0 | 1990 | 54.0 |
| | AGR | ATTACHED GARAGE | 3 | 0 | 1990 | 412.7 |
| | LOF | LOFT | 3 | 0 | 1990 | 341.2 |
| | DGR | DETACHED GARAGE | 3 | 0 | 1990 | 900.0 |
| | DGR | DETACHED GARAGE | 3 | 0 | 1990 | 384.0 |
Sketch
Property Image
Land
| 1 | 18 | AC (02.01-03.00) | 2.5100 | 109335.60 | 0.00 | 0.00 | 1.00 | $250,000 | $0 |
Roll Value History
| 2026 | N/A | N/A | N/A | N/A | N/A |
| 2025 | $371,845 | $250,000 | $0 | $621,845 | $621,845 |
| 2024 | $376,423 | $230,000 | $0 | $606,423 | $606,423 |
| 2023 | $381,000 | $220,000 | $0 | $601,000 | $601,000 |
| 2022 | $332,564 | $210,000 | $0 | $542,564 | $542,564 |
| 2021 | $292,782 | $160,000 | $0 | $452,782 | $452,782 |
| 2020 | $267,068 | $130,000 | $0 | $397,068 | $397,068 |
| 2019 | $195,722 | $180,000 | $0 | $375,722 | $375,722 |
| 2018 | $196,340 | $170,000 | $0 | $366,340 | $366,340 |
| 2017 | $197,575 | $150,000 | $0 | $347,575 | $347,575 |
| 2016 | $175,350 | $120,000 | $0 | $295,350 | $295,350 |
| 2015 | $177,751 | $100,000 | $0 | $277,751 | $277,751 |
| 2014 | $180,154 | $70,000 | $0 | $250,154 | $250,154 |
| 2013 | $182,554 | $70,000 | $0 | $252,554 | $252,554 |
| 2012 | $184,956 | $76,500 | $0 | $261,456 | $261,456 |
| 2011 | $187,359 | $90,000 | $0 | $277,359 | $277,359 |
| 2010 | $206,840 | $90,000 | $0 | $296,840 | $296,840 |
| 2009 | $215,334 | $77,500 | $0 | $292,834 | $292,834 |
| 2008 | $222,911 | $118,000 | $0 | $340,911 | $340,911 |
| 2007 | $226,282 | $118,000 | $0 | $344,282 | $344,282 |
Deed and Sales History
| 1 | 04/18/2019 | QCD | Quit Claim Deed | LARSEN, SHANA | LARSEN, JACKIELYNN | | | $0.00 | 38505 | 4463347 |
| 2 | 04/29/2019 | WD | Warranty Deed | CONSTANTINO, PAUL A / BARBARA | LARSEN, JACKIELYNN | | | $359,900.00 | 38504 | 4463346 |
| 3 | 10/01/1996 | WD | Warranty Deed | DENNEY, CLEON L | CONSTANTINO, PAUL A | | | $164,500.00 | 63759 | 96018208 |
| 4 | 09/01/1996 | BLA | DNU - Boundary Line Adjustment | DENNEY, CLEON L | DENNEY, CLEON L | | | $0.00 | 67121 | 96015880 |
| 5 | 01/01/1900 | OTHER | Other - Misc. Documents | Unknown | DENNEY, CLEON L | | | $0.00 | 6545 | 90022773 |
Payout Agreement
| No payout information available.. |