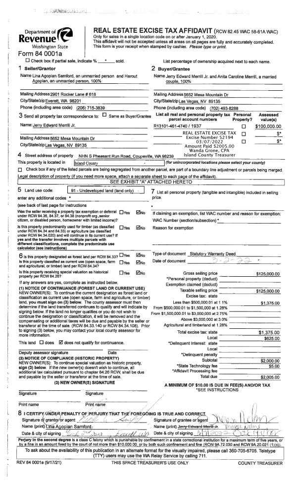
Property
Account |
| Property ID: | 743351 | Abbreviated Legal Description: | W270.97' MEAS ALG NLN SE SW LY N OF N CAMANO DR & W OF TR 15D110 TGW E195.54 MEAS PERP/TO ELN SW SW LY N OF N CAMANO DR TGW & SUB EZ AF#89004004 FR 120-1470 & PT FR 120-1000 |
| Geographic ID: | R33220-116-1360 | Agent Code: | |
| Type: | Real | | |
| Tax Area: | 592 - APPRAISER-Stan/Cam Schl Dist, Special Dist, improved, greater than 1 acre | Land Use Code | 67 |
| Open Space: | N | DFL | N |
| Historic Property: | N | Remodel Property: | N |
| Multi-Family Redevelopment: | N | | |
| Township: | 32 | Section: | 20 |
| Range: | R3 |
Location |
| Address: | 525 E NORTH CAMANO DR CAMANO ISLAND, WA 98282 | Mapsco: | |
| Neighborhood: | 51cRR-highway 532 | Map ID: | 964 |
| Neighborhood CD: | 51cRRhw532 |
Owner |
| Name: | ISLAND COUNTY FIRE DIST #1 | Owner ID: | 143620 |
| Mailing Address: | 811 N SUNRISE BLVD CAMANO ISLAND, WA 98282-7295 | % Ownership: | 100.0000000000% |
| | | Exemptions: | EX |
Taxes and Assessment Details
Values
| (+) Improvement Homesite Value: | + | $0 | |
| (+) Improvement Non-Homesite Value: | + | $789,181 | |
| (+) Land Homesite Value: | + | $0 | |
| (+) Land Non-Homesite Value: | + | $410,000 | |
| (+) Curr Use (HS): | + | $0 | $0 |
| (+) Curr Use (NHS): | + | $0 | $0 |
| | | -------------------------- | |
| (=) Market Value: | = | $1,199,181 | |
| (–) Productivity Loss: | – | $0 | |
| | | -------------------------- | |
| (=) Subtotal: | = | $1,199,181 | |
| (+) Senior Appraised Value: | + | $0 | |
| (+) Non-Senior Appraised Value: | + | $1,199,181 | |
| | | -------------------------- | |
| (=) Total Appraised Value: | = | $1,199,181 | |
| (–) Senior Exemption Loss: | – | $0 | |
| (–) Exemption Loss: | – | $1,199,181 | |
| | | -------------------------- | |
| (=) Taxable Value: | = | $0 | |
Taxing Jurisdiction
| Owner: | ISLAND COUNTY FIRE DIST #1 | | |
| % Ownership: | 100.0000000000% | | |
| Total Value: | $1,199,181 | | |
| Tax Area: | 592 - APPRAISER-Stan/Cam Schl Dist, Special Dist, improved, greater than 1 acre |
| CF | Conservation Futures | 0.0316035091 | $1,199,181 | $0 | $0.00 | | |
| EMS1 | Fire & Rescue Dist #1 Camano GEN (EMS) | 0.3677864386 | $1,199,181 | $0 | $0.00 | | |
| FIRE1 | Fire & Rescue Dist #1 Camano GEN | 1.2502910536 | $1,199,181 | $0 | $0.00 | | |
| FIRE1BOND | Fire & Rescue Dist #1 Camano BOND | 0.1570001679 | $1,199,181 | $0 | $0.00 | | |
| CE | County Current Expense | 0.3708482477 | $1,199,181 | $0 | $0.00 | | |
| CR | County Roads | 0.4584763726 | $1,199,181 | $0 | $0.00 | | |
| LCIB | Library Sno-Isle BOND (Camano Island) | 0.0396325772 | $1,199,181 | $0 | $0.00 | | |
| LIB | Library Sno-Isle GEN | 0.3153421757 | $1,199,181 | $0 | $0.00 | | |
| SCH205_401 | School 205-401 Enrichment | 1.2698420524 | $1,199,181 | $0 | $0.00 | | |
| SCH205BOND | School 205-401 BOND | 0.9396497583 | $1,199,181 | $0 | $0.00 | | |
| ST | State School | 1.3035497053 | $1,199,181 | $0 | $0.00 | | |
| ST2 | State School Part 2 | 0.8169543533 | $1,199,181 | $0 | $0.00 | | |
| | Total Tax Rate: | 7.3209764117 | | | | | |
| | | | | Taxes w/Current Exemptions: | $0.00 | | |
| | | | | Taxes w/o Exemptions: | $8,779.18 | | |
Improvement / Building
| Improvement #1: | COMMERCIAL | State Code: | F1 | 6180.0 sqft | Value: | $789,181 |
| Bathrooms: | 0 | Bedrooms: | 0 | | Ceiling: | DRYWALL PAINTED | Cooling: | HEAT PUMP/CONV/V | | Exterior Wall/Cover: | CEMENT FIBER | Floor Covering: | CARPET 100% | | Floor Structure: | CONCRETE ON GROUND | Foundation: | SLAB | | Interior Finish: | VOLUNTEER FIRE STATION | Plumbing Fixture Cnt: | 1 | | Roof Structure/Cover: | BEAM ASPHALT |   |   |
|
| | Type | Description | Class CD | Sub Class CD | Year Built | Area |
| | BAS | BASE/MAIN FLOOR | 3 | 0 | 1980 | 5880.0 |
| | OP4 | OPEN PORCH W/CEILING-ROOF | 3 | 0 | 1980 | 182.0 |
| | UTY | STORAGE/UTILITY | 3 | 0 | 1980 | 960.0 |
| | OP1 | OPEN PORCH SLAB | 3 | 0 | 1980 | 1200.0 |
| | UPS | UPPER STORY | 3 | 0 | 1980 | 300.0 |
| | oPV1 | PV/ASPH 2" | 3 | 0 | 1980 | 0.0 |
| | DGR | DETACHED GARAGE | 3 | 0 | 1980 | 2400.0 |
Sketch
Property Image
Land
| 1 | 32 | AC (03.01-09.99) | 3.3200 | 144619.20 | 0.00 | 0.00 | 1.00 | $410,000 | $0 |
Roll Value History
| 2026 | N/A | N/A | N/A | N/A | N/A |
| 2025 | $789,181 | $410,000 | $0 | $1,199,181 | $0 |
| 2024 | $808,516 | $390,000 | $0 | $1,198,516 | $0 |
| 2023 | $829,281 | $290,000 | $0 | $1,119,281 | $0 |
| 2022 | $658,081 | $290,000 | $0 | $948,081 | $0 |
| 2021 | $490,437 | $240,000 | $0 | $730,437 | $0 |
| 2020 | $488,594 | $220,000 | $0 | $708,594 | $0 |
| 2019 | $476,464 | $190,000 | $0 | $666,464 | $0 |
| 2018 | $464,372 | $116,200 | $0 | $580,572 | $0 |
| 2017 | $464,747 | $116,200 | $0 | $580,947 | $0 |
| 2016 | $465,495 | $116,200 | $0 | $581,695 | $0 |
| 2015 | $357,400 | $144,619 | $0 | $502,019 | $0 |
| 2014 | $361,242 | $144,619 | $0 | $505,861 | $0 |
| 2013 | $365,085 | $144,619 | $0 | $509,704 | $0 |
| 2012 | $368,928 | $129,163 | $0 | $498,091 | $0 |
| 2011 | $374,774 | $129,163 | $0 | $503,937 | $0 |
| 2010 | $371,869 | $129,163 | $0 | $501,032 | $0 |
| 2009 | $381,833 | $141,161 | $0 | $522,994 | $0 |
| 2008 | $392,570 | $148,591 | $0 | $541,161 | $0 |
| 2007 | $402,535 | $148,591 | $0 | $551,126 | $0 |
Deed and Sales History
| 1 | 09/01/1996 | BLA | DNU - Boundary Line Adjustment | FIRE, PROTECTION D | FIRE, PROTECTION D | | | $0.00 | 67123 | 96016041 |
| 2 | 07/01/1996 | WD | Warranty Deed | FIRE, PROTECTION D | ISLAND, COUNTY F | | | $32,000.00 | 62501 | 96012443 |
| 3 | 01/01/1900 | OTHER | Other - Misc. Documents | Unknown | FIRE, PROTECTION D | | | $0.00 | 0 | 0 |
Payout Agreement
| No payout information available.. |