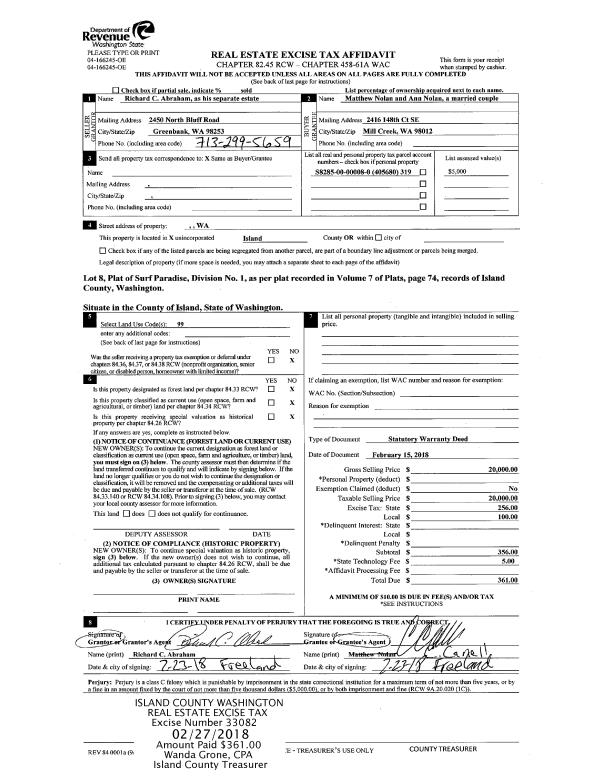
Property
Account |
| Property ID: | 743468 | Abbreviated Legal Description: | 1974 PEERLESS 14X66 TPO @10769 VIN# P0S506 FROM K-457428 |
| Geographic ID: | M91300000003-1 | Agent Code: | |
| Type: | Mobile Home | | |
| Tax Area: | 300 - APPRAISER-Cpvl Schl Dist, in Cpvl | Land Use Code | 11 |
| Open Space: | N | DFL | N |
| Historic Property: | N | Remodel Property: | N |
| Multi-Family Redevelopment: | N | | |
| Township: | | Section: | |
| Range: | |
Location |
| Address: | 204 SW TERRY RD # 3 COUPEVILLE, WA 98239 | Mapsco: | |
| Neighborhood: | Cycle 2 | Map ID: | |
| Neighborhood CD: | 2 |
Owner |
| Name: | TODD, CASSANDRA | Owner ID: | 283782 |
| Mailing Address: | 204 SW TERRY RD #3 COUPEVILLE, WA 98239 | % Ownership: | 100.0000000000% |
| | | Exemptions: | |
Taxes and Assessment Details
Values
| (+) Improvement Homesite Value: | + | $0 | |
| (+) Improvement Non-Homesite Value: | + | $18,135 | |
| (+) Land Homesite Value: | + | $0 | |
| (+) Land Non-Homesite Value: | + | $0 | |
| (+) Curr Use (HS): | + | $0 | $0 |
| (+) Curr Use (NHS): | + | $0 | $0 |
| | | -------------------------- | |
| (=) Market Value: | = | $18,135 | |
| (–) Productivity Loss: | – | $0 | |
| | | -------------------------- | |
| (=) Subtotal: | = | $18,135 | |
| (+) Senior Appraised Value: | + | $0 | |
| (+) Non-Senior Appraised Value: | + | $18,135 | |
| | | -------------------------- | |
| (=) Total Appraised Value: | = | $18,135 | |
| (–) Senior Exemption Loss: | – | $0 | |
| (–) Exemption Loss: | – | $0 | |
| | | -------------------------- | |
| (=) Taxable Value: | = | $18,135 | |
Taxing Jurisdiction
| Owner: | TODD, CASSANDRA | | |
| % Ownership: | 100.0000000000% | | |
| Total Value: | $18,135 | | |
| Tax Area: | 300 - APPRAISER-Cpvl Schl Dist, in Cpvl |
| CF | Conservation Futures | 0.0316035091 | $18,135 | $18,135 | $0.57 | | |
| CEM2 | Cemetery #2 | 0.0095056933 | $18,135 | $18,135 | $0.17 | | |
| COUP | City: Town of Coupeville | 0.8426414490 | $18,135 | $18,135 | $15.28 | | |
| FIRE5 | Fire & Rescue Dist #5 C Whidbey GEN | 1.2008080668 | $18,135 | $18,135 | $21.78 | | |
| FIRE5BOND | Fire & Rescue Dist #5 C Whidbey BOND | 0.1400090713 | $18,135 | $18,135 | $2.54 | | |
| HOBOND | Hospital BOND | 0.1910887512 | $18,135 | $18,135 | $3.47 | | |
| HOGEN | Hospital GEN | 0.3902502903 | $18,135 | $18,135 | $7.08 | | |
| CE | County Current Expense | 0.3708482477 | $18,135 | $18,135 | $6.73 | | |
| ISLANDEMS | Hospital GEN (EMS) | 0.5000000000 | $18,135 | $18,135 | $9.07 | | |
| LIB | Library Sno-Isle GEN | 0.3153421757 | $18,135 | $18,135 | $5.72 | | |
| LIBCAP | Library Sno-Isle BOND (Cap Fac Imp Area) | 0.0543427938 | $18,135 | $18,135 | $0.99 | | |
| POCOUP | Port of Coupeville GEN | 0.1093371703 | $18,135 | $18,135 | $1.98 | | |
| POCOUPIDD | Port of Coupeville IDD | 0.3409740022 | $18,135 | $18,135 | $6.18 | | |
| COUPSDTECH | School 204 CP (TECH) | 0.7545480007 | $18,135 | $18,135 | $13.68 | | |
| SCH204MO | School 204 Enrichment | 0.6716186034 | $18,135 | $18,135 | $12.18 | | |
| ST | State School | 1.3035497053 | $18,135 | $18,135 | $23.64 | | |
| ST2 | State School Part 2 | 0.8169543533 | $18,135 | $18,135 | $14.82 | | |
| | Total Tax Rate: | 8.0434218834 | | | | | |
| | | | | Taxes w/Current Exemptions: | $145.88 | | |
| | | | | Taxes w/o Exemptions: | $145.88 | | |
Improvement / Building
| Improvement #1: | MANUFACTURED HOME | State Code: | Y | 896.0 sqft | Value: | $18,135 |
| Bathrooms: | 0 | Bedrooms: | 0 | | Ceiling: | PLASTER PAINTED | Cooling: | EVAP NO DUCT | | Exterior Wall/Cover: | VINYL | Floor Covering: | CARPET 100% | | Floor Structure: | SLAB ON GRADE | Foundation: | SLAB | | Heating: | FHA ELECTRIC | Interior Finish: | PLASTER | | Plumbing Fixture Cnt: | 1 | Roof Slope: | FLAT | | Roof Structure/Cover: | CJ ALUMINIUM HEAVY |   |   |
|
Sketch
Property Image
Land
No land segments exist for this property.
Roll Value History
| 2026 | N/A | N/A | N/A | N/A | N/A |
| 2025 | $18,135 | $0 | $0 | $18,135 | $18,135 |
| 2024 | $21,282 | $0 | $0 | $21,282 | $21,282 |
| 2023 | $8,693 | $0 | $0 | $8,693 | $8,693 |
| 2022 | $8,347 | $0 | $0 | $8,347 | $8,347 |
| 2021 | $7,881 | $0 | $0 | $7,881 | $7,881 |
| 2020 | $8,053 | $0 | $0 | $8,053 | $8,053 |
| 2019 | $6,661 | $0 | $0 | $6,661 | $6,661 |
| 2018 | $6,840 | $0 | $0 | $6,840 | $6,840 |
| 2017 | $7,179 | $0 | $0 | $7,179 | $7,179 |
| 2016 | $7,521 | $0 | $0 | $7,521 | $7,521 |
| 2015 | $7,863 | $0 | $0 | $7,863 | $7,863 |
| 2014 | $8,205 | $0 | $0 | $8,205 | $8,205 |
| 2013 | $8,718 | $0 | $0 | $8,718 | $8,718 |
| 2012 | $8,119 | $0 | $0 | $8,119 | $8,119 |
| 2011 | $19,780 | $0 | $0 | $19,780 | $19,780 |
| 2010 | $20,205 | $0 | $0 | $20,205 | $20,205 |
| 2009 | $20,724 | $0 | $0 | $20,724 | $20,724 |
| 2008 | $21,377 | $0 | $0 | $21,377 | $21,377 |
| 2007 | $22,017 | $0 | $0 | $22,017 | $22,017 |
Deed and Sales History
| 1 | 02/01/2018 | MANHOME | Manufactured Home | SANTANA-IRIZARRY, ZUHLAYMIE | TODD, CASSANDRA | | | $0.00 | 32815 | |
| 2 | 03/20/2015 | MANHOME | Manufactured Home | BECERRIL, MAXIMO PINA | SANTANA-IRIZARRY, ZUHLAYMIE | | | $4,999.00 | 19157 | |
| 3 | 02/21/2007 | OTHER | Other - Misc. Documents | RICHARDSON, NATALIA | BECERRIL, MAXIMO PINA | | | $8,000.00 | 70558 | 0 |
| 4 | 03/27/2001 | OTHER | Other - Misc. Documents | LEE, VICTORIA L | RICHARDSON, ALANA | | | $8,000.00 | 11050 | 0 |
| 5 | 12/28/1999 | OTHER | Other - Misc. Documents | PAULEY, VICTORIA L | LEE, VICTORIA L | | | $0.00 | 95240 | 0 |
| 6 | 12/01/1996 | DECREE | Divorce Decree/Legal Separation | PAULEY, MICHAEL / | PAULEY, VICTORIA L | | | $0.00 | 64515 | 0 |
| 7 | 07/01/1993 | OTHER | Other - Misc. Documents | Unknown | PAULEY, MICHAEL / | | | $1,200.00 | 32631 | 0 |
| 8 | 01/01/1900 | QCD | Quit Claim Deed | RICHARDSON, ALANA | RICHARDSON, NATALIA | | | $0.00 | 30913 | 0 |
Payout Agreement
| No payout information available.. |