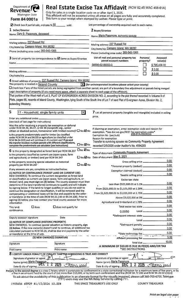
Property
Account |
| Property ID: | 743556 | Abbreviated Legal Description: | EXEMPT N205' OF W1023' OF S/2 NW NE EX RD FR 434-3390 |
| Geographic ID: | R23017-456-3250 | Agent Code: | |
| Type: | Real | | |
| Tax Area: | 312 - APPRAISER-Cpvl Schl Dist, outside Cpvl, improved, greater than 1 acre | Land Use Code | 67 |
| Open Space: | N | DFL | N |
| Historic Property: | N | Remodel Property: | N |
| Multi-Family Redevelopment: | N | | |
| Township: | 30 | Section: | 17 |
| Range: | R2 |
Location |
| Address: | 3253 DAY RD GREENBANK, WA 98253 | Mapsco: | |
| Neighborhood: | 31cRR-highway 525 | Map ID: | 387 |
| Neighborhood CD: | 31cRRhw525 |
Owner |
| Name: | CENTRAL WHIDBEY ISLAND FIRE & RESCUE | Owner ID: | 121099 |
| Mailing Address: | 1164 RACE RD COUPEVILLE, WA 98239-9528 | % Ownership: | 100.0000000000% |
| | | Exemptions: | EX |
Taxes and Assessment Details
Values
| (+) Improvement Homesite Value: | + | $0 | |
| (+) Improvement Non-Homesite Value: | + | $289,266 | |
| (+) Land Homesite Value: | + | $0 | |
| (+) Land Non-Homesite Value: | + | $370,000 | |
| (+) Curr Use (HS): | + | $0 | $0 |
| (+) Curr Use (NHS): | + | $0 | $0 |
| | | -------------------------- | |
| (=) Market Value: | = | $659,266 | |
| (–) Productivity Loss: | – | $0 | |
| | | -------------------------- | |
| (=) Subtotal: | = | $659,266 | |
| (+) Senior Appraised Value: | + | $0 | |
| (+) Non-Senior Appraised Value: | + | $659,266 | |
| | | -------------------------- | |
| (=) Total Appraised Value: | = | $659,266 | |
| (–) Senior Exemption Loss: | – | $0 | |
| (–) Exemption Loss: | – | $659,266 | |
| | | -------------------------- | |
| (=) Taxable Value: | = | $0 | |
Taxing Jurisdiction
| Owner: | CENTRAL WHIDBEY ISLAND FIRE & RESCUE | | |
| % Ownership: | 100.0000000000% | | |
| Total Value: | $659,266 | | |
| Tax Area: | 312 - APPRAISER-Cpvl Schl Dist, outside Cpvl, improved, greater than 1 acre |
| CF | Conservation Futures | 0.0316035091 | $659,266 | $0 | $0.00 | | |
| CEM2 | Cemetery #2 | 0.0095056933 | $659,266 | $0 | $0.00 | | |
| FIRE5 | Fire & Rescue Dist #5 C Whidbey GEN | 1.2008080668 | $659,266 | $0 | $0.00 | | |
| FIRE5BOND | Fire & Rescue Dist #5 C Whidbey BOND | 0.1400090713 | $659,266 | $0 | $0.00 | | |
| HOBOND | Hospital BOND | 0.1910887512 | $659,266 | $0 | $0.00 | | |
| HOGEN | Hospital GEN | 0.3902502903 | $659,266 | $0 | $0.00 | | |
| CE | County Current Expense | 0.3708482477 | $659,266 | $0 | $0.00 | | |
| CR | County Roads | 0.4584763726 | $659,266 | $0 | $0.00 | | |
| ISLANDEMS | Hospital GEN (EMS) | 0.5000000000 | $659,266 | $0 | $0.00 | | |
| LIB | Library Sno-Isle GEN | 0.3153421757 | $659,266 | $0 | $0.00 | | |
| LIBCAP | Library Sno-Isle BOND (Cap Fac Imp Area) | 0.0543427938 | $659,266 | $0 | $0.00 | | |
| POCOUP | Port of Coupeville GEN | 0.1093371703 | $659,266 | $0 | $0.00 | | |
| POCOUPIDD | Port of Coupeville IDD | 0.3409740022 | $659,266 | $0 | $0.00 | | |
| COUPSDTECH | School 204 CP (TECH) | 0.7545480007 | $659,266 | $0 | $0.00 | | |
| SCH204MO | School 204 Enrichment | 0.6716186034 | $659,266 | $0 | $0.00 | | |
| ST | State School | 1.3035497053 | $659,266 | $0 | $0.00 | | |
| ST2 | State School Part 2 | 0.8169543533 | $659,266 | $0 | $0.00 | | |
| | Total Tax Rate: | 7.6592568070 | | | | | |
| | | | | Taxes w/Current Exemptions: | $0.00 | | |
| | | | | Taxes w/o Exemptions: | $5,049.50 | | |
Improvement / Building
| Improvement #1: | COMMERCIAL | State Code: | F1 | 1280.0 sqft | Value: | $289,266 |
| Bathrooms: | 0 | Bedrooms: | 0 | | Ceiling: | DRYWALL PAINTED | Exterior Wall/Cover: | STL/ALUM/SINGWL ST F | | Floor Covering: | VINYL TILE | Floor Structure: | CONCRETE ON GROUND | | Foundation: | SLAB | Heating: | FHA ELECTRIC | | Interior Finish: | VOLUNTEER FIRE STATION | Plumbing Fixture Cnt: | 1 | | Roof Structure/Cover: | METAL/OPEN STEEL |   |   |
|
| | Type | Description | Class CD | Sub Class CD | Year Built | Area |
| | BAS | BASE/MAIN FLOOR | 3 | 0 | 1999 | 1280.0 |
| | AGR | ATTACHED GARAGE | 3 | 0 | 1999 | 2400.0 |
| | OP1 | OPEN PORCH SLAB | 3 | 0 | 1999 | 700.0 |
| | oPV1 | PV/ASPH 2" | 3 | 0 | 1999 | 73000.0 |
| | oLIT | LITE POLE | 3 | 0 | 1999 | 7.0 |
Sketch
Property Image
Land
| 1 | 32 | AC (03.01-09.99) | 4.6700 | 203425.20 | 0.00 | 0.00 | 1.00 | $370,000 | $0 |
Roll Value History
| 2026 | N/A | N/A | N/A | N/A | N/A |
| 2025 | $289,266 | $370,000 | $0 | $659,266 | $0 |
| 2024 | $296,914 | $350,000 | $0 | $646,914 | $0 |
| 2023 | $304,565 | $230,000 | $0 | $534,565 | $0 |
| 2022 | $282,745 | $230,000 | $0 | $512,745 | $0 |
| 2021 | $261,109 | $230,000 | $0 | $491,109 | $0 |
| 2020 | $258,365 | $180,000 | $0 | $438,365 | $0 |
| 2019 | $175,805 | $140,100 | $0 | $315,905 | $0 |
| 2018 | $176,096 | $140,100 | $0 | $316,196 | $0 |
| 2017 | $176,678 | $140,100 | $0 | $316,778 | $0 |
| 2016 | $177,841 | $140,100 | $0 | $317,941 | $0 |
| 2015 | $182,433 | $152,569 | $0 | $335,002 | $0 |
| 2014 | $186,039 | $152,569 | $0 | $338,608 | $0 |
| 2013 | $190,629 | $203,425 | $0 | $394,054 | $0 |
| 2012 | $192,705 | $180,612 | $0 | $373,317 | $0 |
| 2011 | $216,434 | $180,612 | $0 | $397,046 | $0 |
| 2010 | $230,677 | $180,612 | $0 | $411,289 | $0 |
| 2009 | $235,300 | $198,475 | $0 | $433,775 | $0 |
| 2008 | $239,924 | $198,475 | $0 | $438,399 | $0 |
| 2007 | $244,548 | $198,475 | $0 | $443,023 | $0 |
Deed and Sales History
| 1 | 10/01/1996 | WD | Warranty Deed | TALLMAN, JACK G | CENTRAL, WHIDBEY I | | | $45,000.00 | 63570 | 96017466 |
| 2 | 09/01/1996 | SEG | DNU - Segregation | TALLMAN, JACK G | TALLMAN, JACK G | | | $0.00 | 67128 | 0 |
| 3 | 01/01/1900 | OTHER | Other - Misc. Documents | Unknown | TALLMAN, JACK G | | | $0.00 | 5731 | 90019298 |
Payout Agreement
| No payout information available.. |