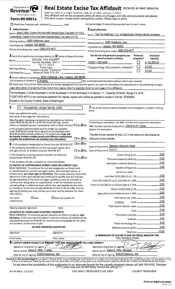
Property
Account |
| Property ID: | 743636 | Abbreviated Legal Description: | LOT 1 SP 319-95.23320.376-0740 V3 SP P107 AF#96016317 |
| Geographic ID: | R23320-374-0220 | Agent Code: | |
| Type: | Real | | |
| Tax Area: | 112 - APPRAISER-OH Schl Dist, outside OH, improved, greater than 1 acre | Land Use Code | 11 |
| Open Space: | N | DFL | N |
| Historic Property: | N | Remodel Property: | N |
| Multi-Family Redevelopment: | N | | |
| Township: | 33 | Section: | 20 |
| Range: | R2 |
Location |
| Address: | 411 VOLUNTEER RD OAK HARBOR, WA 98277 | Mapsco: | |
| Neighborhood: | Cycle 6 | Map ID: | 614 |
| Neighborhood CD: | 6 |
Owner |
| Name: | RUDD, DAVID CHRISTIAN | Owner ID: | 264724 |
| Mailing Address: | KATHRYN LEE RUDD 411 VOLUNTEER RD OAK HARBOR, WA 98277 | % Ownership: | 100.0000000000% |
| | | Exemptions: | |
Taxes and Assessment Details
Values
| (+) Improvement Homesite Value: | + | $0 | |
| (+) Improvement Non-Homesite Value: | + | $699,070 | |
| (+) Land Homesite Value: | + | $0 | |
| (+) Land Non-Homesite Value: | + | $300,000 | |
| (+) Curr Use (HS): | + | $0 | $0 |
| (+) Curr Use (NHS): | + | $0 | $0 |
| | | -------------------------- | |
| (=) Market Value: | = | $999,070 | |
| (–) Productivity Loss: | – | $0 | |
| | | -------------------------- | |
| (=) Subtotal: | = | $999,070 | |
| (+) Senior Appraised Value: | + | $0 | |
| (+) Non-Senior Appraised Value: | + | $999,070 | |
| | | -------------------------- | |
| (=) Total Appraised Value: | = | $999,070 | |
| (–) Senior Exemption Loss: | – | $0 | |
| (–) Exemption Loss: | – | $0 | |
| | | -------------------------- | |
| (=) Taxable Value: | = | $999,070 | |
Taxing Jurisdiction
| Owner: | RUDD, DAVID CHRISTIAN | | |
| % Ownership: | 100.0000000000% | | |
| Total Value: | $999,070 | | |
| Tax Area: | 112 - APPRAISER-OH Schl Dist, outside OH, improved, greater than 1 acre |
| CF | Conservation Futures | 0.0316035091 | $999,070 | $999,070 | $31.57 | | |
| CEM1 | Cemetery #1 | 0.0040320932 | $999,070 | $999,070 | $4.03 | | |
| FIRE2 | Fire & Rescue Dist #2 N Whidbey GEN | 0.5475949600 | $999,070 | $999,070 | $547.09 | | |
| HOBOND | Hospital BOND | 0.1910887512 | $999,070 | $999,070 | $190.91 | | |
| HOGEN | Hospital GEN | 0.3902502903 | $999,070 | $999,070 | $389.89 | | |
| CE | County Current Expense | 0.3708482477 | $999,070 | $999,070 | $370.50 | | |
| CR | County Roads | 0.4584763726 | $999,070 | $999,070 | $458.05 | | |
| ISLANDEMS | Hospital GEN (EMS) | 0.5000000000 | $999,070 | $999,070 | $499.54 | | |
| LIB | Library Sno-Isle GEN | 0.3153421757 | $999,070 | $999,070 | $315.05 | | |
| NWHIDPRMT | P & R N Whidbey GEN | 0.2004466701 | $999,070 | $999,070 | $200.26 | | |
| SCH201MO | School 201 Enrichment | 1.8559231640 | $999,070 | $999,070 | $1,854.20 | | |
| ST | State School | 1.3035497053 | $999,070 | $999,070 | $1,302.34 | | |
| ST2 | State School Part 2 | 0.8169543533 | $999,070 | $999,070 | $816.19 | | |
| | Total Tax Rate: | 6.9861102925 | | | | | |
| | | | | Taxes w/Current Exemptions: | $6,979.62 | | |
| | | | | Taxes w/o Exemptions: | $6,979.62 | | |
Improvement / Building
| Improvement #1: | RESIDENTIAL | State Code: | Y | 4859.0 sqft | Value: | $699,070 |
| Bathrooms: | 3.5 | Bedrooms: | 4 | | Ceiling: | BEAM PAINTED | Exterior Wall/Cover: | SHINGLE | | Floor Covering: | HARDWOOD/CARP 20-80 | Floor Structure: | WOOD W/SUBFLOOR | | Foundation: | CONCRETE | Heating: | BASEBOARD ELECTRIC | | Interior Finish: | DRYWALL PAINT | Plumbing Fixture Cnt: | 17 | | Roof Slope: | 10" IN 12" | Roof Structure/Cover: | BEAM ASPHALT |
|
| | Type | Description | Class CD | Sub Class CD | Year Built | Area |
| | BAS | BASE/MAIN FLOOR | 5 | 0 | 1996 | 3204.2 |
| | OP3 | OPEN PORCH W/ROOF | 5 | 0 | 1996 | 260.0 |
| | OP4 | OPEN PORCH W/CEILING-ROOF | 5 | 0 | 1996 | 347.4 |
| | AGR | ATTACHED GARAGE | 5 | 0 | 1996 | 1069.8 |
| | UTY | STORAGE/UTILITY | 5 | 0 | 1996 | 72.0 |
| | UTY | STORAGE/UTILITY | 5 | 0 | 1996 | 294.0 |
| | UPS | UPPER STORY | 5 | 0 | 1996 | 1654.8 |
| | OWP | OPEN WOOD PORCH W/STEPS | 5 | 0 | 1996 | 163.5 |
| | OWP | OPEN WOOD PORCH W/STEPS | 5 | 0 | 1996 | 250.0 |
| | OWC | OPEN WOOD PORCH W/STEPS/ROOF/C | 5 | 0 | 1996 | 663.6 |
| | UTY | STORAGE/UTILITY | 5 | 0 | 1996 | 52.6 |
Sketch
Property Image
Land
| 1 | 32 | AC (03.01-09.99) | 4.6100 | 0.00 | 0.00 | 0.00 | 1.00 | $300,000 | $0 |
Roll Value History
| 2026 | N/A | N/A | N/A | N/A | N/A |
| 2025 | $699,070 | $300,000 | $0 | $999,070 | $999,070 |
| 2024 | $710,176 | $280,000 | $0 | $990,176 | $990,176 |
| 2023 | $719,249 | $270,000 | $0 | $989,249 | $989,249 |
| 2022 | $651,302 | $240,000 | $0 | $891,302 | $891,302 |
| 2021 | $573,505 | $175,000 | $0 | $748,505 | $748,505 |
| 2020 | $560,294 | $150,000 | $0 | $710,294 | $710,294 |
| 2019 | $512,651 | $185,000 | $0 | $697,651 | $697,651 |
| 2018 | $514,207 | $170,000 | $0 | $684,207 | $684,207 |
| 2017 | $517,284 | $150,000 | $0 | $667,284 | $667,284 |
| 2016 | $453,740 | $130,000 | $0 | $583,740 | $583,740 |
| 2015 | $459,448 | $120,000 | $0 | $579,448 | $579,448 |
| 2014 | $465,159 | $100,000 | $0 | $565,159 | $565,159 |
| 2013 | $470,864 | $91,278 | $0 | $562,142 | $562,142 |
| 2012 | $476,575 | $91,278 | $0 | $567,853 | $567,853 |
| 2011 | $482,283 | $101,420 | $0 | $583,703 | $583,703 |
| 2010 | $407,080 | $101,420 | $0 | $508,500 | $508,500 |
| 2009 | $425,547 | $115,250 | $0 | $540,797 | $540,797 |
| 2008 | $376,485 | $133,690 | $0 | $510,175 | $510,175 |
| 2007 | $381,574 | $120,183 | $0 | $501,757 | $501,757 |
Deed and Sales History
| 1 | 12/27/2013 | WD | Warranty Deed | STRATTON, DOUGLAS A | RUDD, DAVID CHRISTIAN | | | $480,000.00 | 13875 | 4353279 |
| 2 | 10/01/1996 | WD | Warranty Deed | JENSEN, JERALD D | STRATTON, DOUGLAS A | | | $20,000.00 | 63663 | 96017803 |
| 3 | 01/01/1900 | OTHER | Other - Misc. Documents | Unknown | JENSEN, JERALD D | | | $0.00 | 0 | 0 |
Payout Agreement
| No payout information available.. |