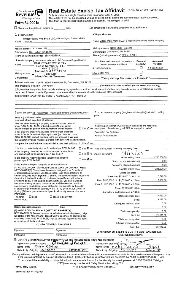
Property
Account |
| Property ID: | 74467 | Abbreviated Legal Description: | 20-2 - LOT 20 BLK 2 SUR VOL 4 P84-85 FMLY TL 20 7-31-2E |
| Geographic ID: | R23107-358-0570 | Agent Code: | |
| Type: | Real | | |
| Tax Area: | 319 - APPRAISER-Cpvl Schl Dist, outside Cpvl, vacant & 50 acres or less | Land Use Code | 91 |
| Open Space: | N | DFL | N |
| Historic Property: | N | Remodel Property: | N |
| Multi-Family Redevelopment: | N | | |
| Township: | 31 | Section: | 07 |
| Range: | R2 |
Location |
| Address: | | Mapsco: | |
| Neighborhood: | Cycle 2 | Map ID: | 464 |
| Neighborhood CD: | 2 |
Owner |
| Name: | JONES, MATTHEW ARTHUR | Owner ID: | 253962 |
| Mailing Address: | 19339 PRAIRIE RD SEDRO WOOLLEY, WA 98284 | % Ownership: | 100.0000000000% |
| | | Exemptions: | |
Taxes and Assessment Details
Values
| (+) Improvement Homesite Value: | + | $0 | |
| (+) Improvement Non-Homesite Value: | + | $0 | |
| (+) Land Homesite Value: | + | $0 | |
| (+) Land Non-Homesite Value: | + | $162,779 | |
| (+) Curr Use (HS): | + | $0 | $0 |
| (+) Curr Use (NHS): | + | $0 | $0 |
| | | -------------------------- | |
| (=) Market Value: | = | $162,779 | |
| (–) Productivity Loss: | – | $0 | |
| | | -------------------------- | |
| (=) Subtotal: | = | $162,779 | |
| (+) Senior Appraised Value: | + | $0 | |
| (+) Non-Senior Appraised Value: | + | $162,779 | |
| | | -------------------------- | |
| (=) Total Appraised Value: | = | $162,779 | |
| (–) Senior Exemption Loss: | – | $0 | |
| (–) Exemption Loss: | – | $0 | |
| | | -------------------------- | |
| (=) Taxable Value: | = | $162,779 | |
Taxing Jurisdiction
| Owner: | JONES, MATTHEW ARTHUR | | |
| % Ownership: | 100.0000000000% | | |
| Total Value: | $162,779 | | |
| Tax Area: | 319 - APPRAISER-Cpvl Schl Dist, outside Cpvl, vacant & 50 acres or less |
| CF | Conservation Futures | 0.0316035091 | $162,779 | $162,779 | $5.14 | | |
| CEM2 | Cemetery #2 | 0.0095056933 | $162,779 | $162,779 | $1.55 | | |
| HOBOND | Hospital BOND | 0.1910887512 | $162,779 | $162,779 | $31.11 | | |
| HOGEN | Hospital GEN | 0.3902502903 | $162,779 | $162,779 | $63.52 | | |
| CE | County Current Expense | 0.3708482477 | $162,779 | $162,779 | $60.37 | | |
| CR | County Roads | 0.4584763726 | $162,779 | $162,779 | $74.63 | | |
| ISLANDEMS | Hospital GEN (EMS) | 0.5000000000 | $162,779 | $162,779 | $81.39 | | |
| LIB | Library Sno-Isle GEN | 0.3153421757 | $162,779 | $162,779 | $51.33 | | |
| LIBCAP | Library Sno-Isle BOND (Cap Fac Imp Area) | 0.0543427938 | $162,779 | $162,779 | $8.85 | | |
| POCOUP | Port of Coupeville GEN | 0.1093371703 | $162,779 | $162,779 | $17.80 | | |
| POCOUPIDD | Port of Coupeville IDD | 0.3409740022 | $162,779 | $162,779 | $55.50 | | |
| COUPSDTECH | School 204 CP (TECH) | 0.7545480007 | $162,779 | $162,779 | $122.82 | | |
| SCH204MO | School 204 Enrichment | 0.6716186034 | $162,779 | $162,779 | $109.33 | | |
| ST | State School | 1.3035497053 | $162,779 | $162,779 | $212.19 | | |
| ST2 | State School Part 2 | 0.8169543533 | $162,779 | $162,779 | $132.98 | | |
| | Total Tax Rate: | 6.3184396689 | | | | | |
| | | | | Taxes w/Current Exemptions: | $1,028.51 | | |
| | | | | Taxes w/o Exemptions: | $1,028.51 | | |
Improvement / Building
Sketch
| No sketches available for this property. |
Property Image
Land
| 1 | 32 | AC (03.01-09.99) | 6.5600 | 0.00 | 0.00 | 0.00 | 1.00 | $162,779 | $0 |
Roll Value History
| 2026 | N/A | N/A | N/A | N/A | N/A |
| 2025 | $0 | $162,779 | $0 | $162,779 | $162,779 |
| 2024 | $0 | $140,000 | $0 | $140,000 | $140,000 |
| 2023 | $0 | $140,000 | $0 | $140,000 | $140,000 |
| 2022 | $0 | $130,000 | $0 | $130,000 | $130,000 |
| 2021 | $0 | $130,000 | $0 | $130,000 | $130,000 |
| 2020 | $0 | $120,000 | $0 | $120,000 | $120,000 |
| 2019 | $0 | $100,000 | $0 | $100,000 | $100,000 |
| 2018 | $0 | $100,000 | $0 | $100,000 | $100,000 |
| 2017 | $0 | $100,000 | $0 | $100,000 | $100,000 |
| 2016 | $0 | $75,000 | $0 | $75,000 | $75,000 |
| 2015 | $0 | $131,200 | $0 | $131,200 | $131,200 |
| 2014 | $0 | $131,200 | $0 | $131,200 | $131,200 |
| 2013 | $0 | $131,200 | $0 | $131,200 | $131,200 |
| 2012 | $0 | $131,200 | $0 | $131,200 | $131,200 |
| 2011 | $0 | $131,200 | $0 | $131,200 | $131,200 |
| 2010 | $0 | $131,200 | $0 | $131,200 | $131,200 |
| 2009 | $0 | $160,720 | $0 | $160,720 | $160,720 |
| 2008 | $0 | $170,560 | $0 | $170,560 | $170,560 |
| 2007 | $0 | $150,880 | $0 | $150,880 | $150,880 |
Deed and Sales History
| 1 | 11/02/2010 | QCD | Quit Claim Deed | JONES, MATTHEW ARTHUR | JONES, MATTHEW ARTHUR | | | $0.00 | 2974 | 4285877 |
| 2 | 11/02/2010 | ESTSEPPROP | Establish Separate Property | JONES, THEODORE | JONES, MATTHEW ARTHUR | | | $0.00 | 2973 | 4285876 |
| 3 | 03/27/1997 | DECREE | Divorce Decree/Legal Separation | JONES, THEODORE A | JONES, THEODORE | | | $0.00 | 2972 | 4285874 |
| 4 | 10/01/1978 | OTHER | Other - Misc. Documents | Unknown | JONES, THEODORE A | | | $17,000.00 | 85070 | 341325 |
Payout Agreement
| No payout information available.. |