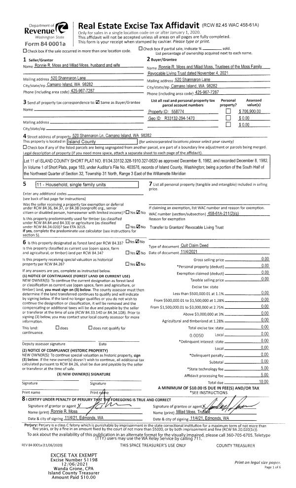
Property
Account |
| Property ID: | 745536 | Abbreviated Legal Description: | LOT 1 SP 40-96.33119.018-4080 V3 SP P115 AF#96018557 |
| Geographic ID: | R33119-022-4140 | Agent Code: | |
| Type: | Real | | |
| Tax Area: | 512 - APPRAISER-Stan/Cam Schl Dist, improved, greater than 1 acre | Land Use Code | 11 |
| Open Space: | N | DFL | N |
| Historic Property: | N | Remodel Property: | N |
| Multi-Family Redevelopment: | N | | |
| Township: | 31 | Section: | 19 |
| Range: | R3 |
Location |
| Address: | 296 TERESA ST CAMANO ISLAND, WA 98282 | Mapsco: | |
| Neighborhood: | Cycle 5 | Map ID: | 930 |
| Neighborhood CD: | 5 |
Owner |
| Name: | HARNDEN JTWROS, JEFFREY | Owner ID: | 300453 |
| Mailing Address: | SARAH L REMICK JTWROS 296 TERESA ST CAMANO ISLAND, WA 98282 | % Ownership: | 100.0000000000% |
| | | Exemptions: | |
Taxes and Assessment Details
Values
| (+) Improvement Homesite Value: | + | $0 | |
| (+) Improvement Non-Homesite Value: | + | $277,474 | |
| (+) Land Homesite Value: | + | $0 | |
| (+) Land Non-Homesite Value: | + | $330,000 | |
| (+) Curr Use (HS): | + | $0 | $0 |
| (+) Curr Use (NHS): | + | $0 | $0 |
| | | -------------------------- | |
| (=) Market Value: | = | $607,474 | |
| (–) Productivity Loss: | – | $0 | |
| | | -------------------------- | |
| (=) Subtotal: | = | $607,474 | |
| (+) Senior Appraised Value: | + | $0 | |
| (+) Non-Senior Appraised Value: | + | $607,474 | |
| | | -------------------------- | |
| (=) Total Appraised Value: | = | $607,474 | |
| (–) Senior Exemption Loss: | – | $0 | |
| (–) Exemption Loss: | – | $0 | |
| | | -------------------------- | |
| (=) Taxable Value: | = | $607,474 | |
Taxing Jurisdiction
| Owner: | HARNDEN JTWROS, JEFFREY | | |
| % Ownership: | 100.0000000000% | | |
| Total Value: | $607,474 | | |
| Tax Area: | 512 - APPRAISER-Stan/Cam Schl Dist, improved, greater than 1 acre |
| CF | Conservation Futures | 0.0316035091 | $607,474 | $607,474 | $19.20 | | |
| EMS1 | Fire & Rescue Dist #1 Camano GEN (EMS) | 0.3677864386 | $607,474 | $607,474 | $223.42 | | |
| FIRE1 | Fire & Rescue Dist #1 Camano GEN | 1.2502910536 | $607,474 | $607,474 | $759.52 | | |
| FIRE1BOND | Fire & Rescue Dist #1 Camano BOND | 0.1570001679 | $607,474 | $607,474 | $95.37 | | |
| CE | County Current Expense | 0.3708482477 | $607,474 | $607,474 | $225.28 | | |
| CR | County Roads | 0.4584763726 | $607,474 | $607,474 | $278.51 | | |
| LCIB | Library Sno-Isle BOND (Camano Island) | 0.0396325772 | $607,474 | $607,474 | $24.08 | | |
| LIB | Library Sno-Isle GEN | 0.3153421757 | $607,474 | $607,474 | $191.56 | | |
| SCH205_401 | School 205-401 Enrichment | 1.2698420524 | $607,474 | $607,474 | $771.40 | | |
| SCH205BOND | School 205-401 BOND | 0.9396497583 | $607,474 | $607,474 | $570.81 | | |
| ST | State School | 1.3035497053 | $607,474 | $607,474 | $791.87 | | |
| ST2 | State School Part 2 | 0.8169543533 | $607,474 | $607,474 | $496.28 | | |
| | Total Tax Rate: | 7.3209764117 | | | | | |
| | | | | Taxes w/Current Exemptions: | $4,447.30 | | |
| | | | | Taxes w/o Exemptions: | $4,447.30 | | |
Improvement / Building
| Improvement #1: | RESIDENTIAL | State Code: | Y | 1704.0 sqft | Value: | $277,474 |
| Bathrooms: | 2 | Bedrooms: | 2 | | Ceiling: | DRYWALL PAINTED | Exterior Wall/Cover: | WOOD SIDING | | Floor Covering: | CARPET/VINYL 80-20 | Floor Structure: | WOOD W/SUBFLOOR | | Foundation: | CONCRETE | Heating: | WALL HEAT ELECTRIC | | Interior Finish: | DRYWALL PAINT | Plumbing Fixture Cnt: | 9 | | Roof Slope: | 4" IN 12" | Roof Structure/Cover: | CJ ASPHALT |
|
| | Type | Description | Class CD | Sub Class CD | Year Built | Area |
| | BAS | BASE/MAIN FLOOR | 3 | 0 | 1989 | 1704.0 |
| | OP2 | OPEN PORCH W/STEPS | 3 | 0 | 1989 | 36.0 |
| | AGR | ATTACHED GARAGE | 3 | 0 | 1989 | 792.0 |
| | OWP | OPEN WOOD PORCH W/STEPS | 3 | 0 | 1989 | 419.0 |
| | UTY | STORAGE/UTILITY | 3 | 0 | 1989 | 120.0 |
| | UTY | STORAGE/UTILITY | 3 | 0 | 1989 | 120.0 |
Sketch
Property Image
Land
| 1 | 32 | AC (03.01-09.99) | 3.5500 | 0.00 | 0.00 | 0.00 | 1.00 | $330,000 | $0 |
Roll Value History
| 2026 | N/A | N/A | N/A | N/A | N/A |
| 2025 | $277,474 | $330,000 | $0 | $607,474 | $607,474 |
| 2024 | $281,163 | $300,000 | $0 | $581,163 | $581,163 |
| 2023 | $284,850 | $290,000 | $0 | $574,850 | $574,850 |
| 2022 | $261,275 | $290,000 | $0 | $551,275 | $551,275 |
| 2021 | $215,583 | $190,000 | $0 | $405,583 | $405,583 |
| 2020 | $210,481 | $160,000 | $0 | $370,481 | $370,481 |
| 2019 | $155,003 | $230,000 | $0 | $385,003 | $385,003 |
| 2018 | $155,509 | $190,000 | $0 | $345,509 | $345,509 |
| 2017 | $156,527 | $150,000 | $0 | $306,527 | $306,527 |
| 2016 | $158,560 | $100,000 | $0 | $258,560 | $103,424 |
| 2015 | $143,517 | $95,000 | $0 | $238,517 | $95,407 |
| 2014 | $145,437 | $95,000 | $0 | $240,437 | $96,175 |
| 2013 | $147,357 | $76,680 | $0 | $224,037 | $89,615 |
| 2012 | $149,275 | $76,680 | $0 | $225,955 | $90,382 |
| 2011 | $151,194 | $95,850 | $0 | $247,044 | $98,818 |
| 2010 | $158,055 | $95,850 | $0 | $253,905 | $101,562 |
| 2009 | $170,233 | $142,000 | $0 | $312,233 | $124,893 |
| 2008 | $173,045 | $141,583 | $0 | $314,628 | $125,851 |
| 2007 | $175,092 | $152,650 | $0 | $327,742 | $327,742 |
Deed and Sales History
| 1 | 07/26/2021 | WD | Warranty Deed | DANGEL, STEVEN | HARNDEN JTWROS, JEFFREY | | | $600,000.00 | 49440 | 4525877 |
| 2 | 11/04/2017 | WD | Warranty Deed | DANGEL, VIRGINIA C | DANGEL, STEVEN | | | $190,000.00 | 31846 | 4433767 |
| 3 | 01/22/2007 | CD | DNU - Correction Deed | DANGEL, WILLIAM S | DANGEL, VIRGINIA C | | | $0.00 | 81205 | 0 |
| 4 | 01/01/1900 | OTHER | Other - Misc. Documents | Unknown | DANGEL, WILLIAM S | | | $0.00 | 0 | 0 |
Payout Agreement
| No payout information available.. |