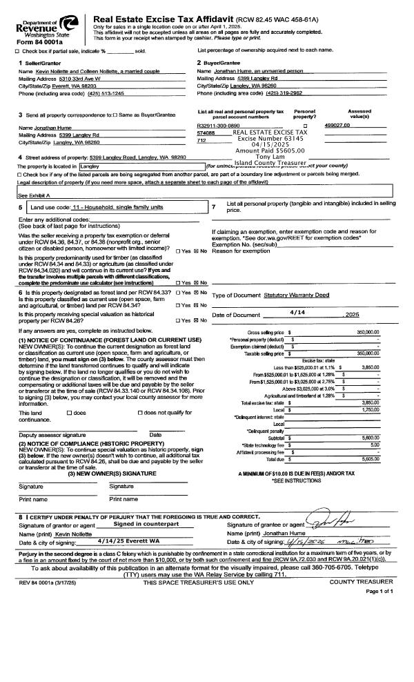
Property
Account |
| Property ID: | 74617 | Abbreviated Legal Description: | 5-2 - IN GL8: BG NWCR SEC 7 S88*E559.59' S781' TPB S392 S88*E557.95' N391.99' N88*W 558.5' TPB TGW & SUB EZ FMLY TL 5 7-31-2E |
| Geographic ID: | R23107-429-0820 | Agent Code: | |
| Type: | Real | | |
| Tax Area: | 312 - APPRAISER-Cpvl Schl Dist, outside Cpvl, improved, greater than 1 acre | Land Use Code | 11 |
| Open Space: | N | DFL | N |
| Historic Property: | N | Remodel Property: | N |
| Multi-Family Redevelopment: | N | | |
| Township: | 31 | Section: | 07 |
| Range: | R2 |
Location |
| Address: | 497 STILLMEADOW RD COUPEVILLE, WA 98239 | Mapsco: | |
| Neighborhood: | Cycle 2 | Map ID: | 464 |
| Neighborhood CD: | 2 |
Owner |
| Name: | SUMNICHT TRUSTEE, GARY E | Owner ID: | 197673 |
| Mailing Address: | KARIN E N SUMNICHT TRUSTEE 3755 MOUNT EVEREST BLVD SAN DIEGO, CA 92111-3943 | % Ownership: | 100.0000000000% |
| | | Exemptions: | |
Taxes and Assessment Details
Values
| (+) Improvement Homesite Value: | + | $0 | |
| (+) Improvement Non-Homesite Value: | + | $122,234 | |
| (+) Land Homesite Value: | + | $0 | |
| (+) Land Non-Homesite Value: | + | $340,148 | |
| (+) Curr Use (HS): | + | $0 | $0 |
| (+) Curr Use (NHS): | + | $0 | $0 |
| | | -------------------------- | |
| (=) Market Value: | = | $462,382 | |
| (–) Productivity Loss: | – | $0 | |
| | | -------------------------- | |
| (=) Subtotal: | = | $462,382 | |
| (+) Senior Appraised Value: | + | $0 | |
| (+) Non-Senior Appraised Value: | + | $462,382 | |
| | | -------------------------- | |
| (=) Total Appraised Value: | = | $462,382 | |
| (–) Senior Exemption Loss: | – | $0 | |
| (–) Exemption Loss: | – | $0 | |
| | | -------------------------- | |
| (=) Taxable Value: | = | $462,382 | |
Taxing Jurisdiction
| Owner: | SUMNICHT TRUSTEE, GARY E | | |
| % Ownership: | 100.0000000000% | | |
| Total Value: | $462,382 | | |
| Tax Area: | 312 - APPRAISER-Cpvl Schl Dist, outside Cpvl, improved, greater than 1 acre |
| CF | Conservation Futures | 0.0316035091 | $462,382 | $462,382 | $14.61 | | |
| CEM2 | Cemetery #2 | 0.0095056933 | $462,382 | $462,382 | $4.40 | | |
| FIRE5 | Fire & Rescue Dist #5 C Whidbey GEN | 1.2008080668 | $462,382 | $462,382 | $555.23 | | |
| FIRE5BOND | Fire & Rescue Dist #5 C Whidbey BOND | 0.1400090713 | $462,382 | $462,382 | $64.74 | | |
| HOBOND | Hospital BOND | 0.1910887512 | $462,382 | $462,382 | $88.36 | | |
| HOGEN | Hospital GEN | 0.3902502903 | $462,382 | $462,382 | $180.44 | | |
| CE | County Current Expense | 0.3708482477 | $462,382 | $462,382 | $171.47 | | |
| CR | County Roads | 0.4584763726 | $462,382 | $462,382 | $211.99 | | |
| ISLANDEMS | Hospital GEN (EMS) | 0.5000000000 | $462,382 | $462,382 | $231.19 | | |
| LIB | Library Sno-Isle GEN | 0.3153421757 | $462,382 | $462,382 | $145.81 | | |
| LIBCAP | Library Sno-Isle BOND (Cap Fac Imp Area) | 0.0543427938 | $462,382 | $462,382 | $25.13 | | |
| POCOUP | Port of Coupeville GEN | 0.1093371703 | $462,382 | $462,382 | $50.56 | | |
| POCOUPIDD | Port of Coupeville IDD | 0.3409740022 | $462,382 | $462,382 | $157.66 | | |
| COUPSDTECH | School 204 CP (TECH) | 0.7545480007 | $462,382 | $462,382 | $348.89 | | |
| SCH204MO | School 204 Enrichment | 0.6716186034 | $462,382 | $462,382 | $310.54 | | |
| ST | State School | 1.3035497053 | $462,382 | $462,382 | $602.74 | | |
| ST2 | State School Part 2 | 0.8169543533 | $462,382 | $462,382 | $377.74 | | |
| | Total Tax Rate: | 7.6592568070 | | | | | |
| | | | | Taxes w/Current Exemptions: | $3,541.50 | | |
| | | | | Taxes w/o Exemptions: | $3,541.50 | | |
Improvement / Building
| Improvement #1: | MANUFACTURED HOME | State Code: | Y | 1812.0 sqft | Value: | $122,234 |
| Bathrooms: | 0 | Bedrooms: | 0 | | Ceiling: | PLASTER PAINTED | Cooling: | EVAP NO DUCT | | Exterior Wall/Cover: | VINYL | Floor Covering: | CARPET 100% | | Floor Structure: | SLAB ON GRADE | Foundation: | SLAB | | Heating: | FHA ELECTRIC | Interior Finish: | PLASTER | | Plumbing Fixture Cnt: | 1 | Roof Slope: | FLAT | | Roof Structure/Cover: | CJ ALUMINIUM HEAVY |   |   |
|
| | Type | Description | Class CD | Sub Class CD | Year Built | Area |
| | BAS | BASE/MAIN FLOOR | 5 | 0 | 1989 | 1812.0 |
| | OWP | OPEN WOOD PORCH W/STEPS | 5 | 0 | 1989 | 168.0 |
| | DGR | DETACHED GARAGE | 5 | 0 | 1989 | 480.0 |
| | OWP | OPEN WOOD PORCH W/STEPS | 5 | 0 | 1989 | 45.0 |
Sketch
| No sketches available for this property. |
Property Image
Land
| 1 | HS | HOMESITE | 1.0000 | 43560.00 | 0.00 | 0.00 | 1.00 | $220,000 | $0 |
| 2 | 91 | UNDEVELOPED LAND-METES AND BOUNDS | 4.0300 | 175546.80 | 0.00 | 0.00 | 1.00 | $120,148 | $0 |
Roll Value History
| 2026 | N/A | N/A | N/A | N/A | N/A |
| 2025 | $122,234 | $340,148 | $0 | $462,382 | $462,382 |
| 2024 | $105,741 | $290,000 | $0 | $395,741 | $395,741 |
| 2023 | $97,700 | $270,000 | $0 | $367,700 | $367,700 |
| 2022 | $91,937 | $250,000 | $0 | $341,937 | $341,937 |
| 2021 | $82,969 | $170,000 | $0 | $252,969 | $252,969 |
| 2020 | $83,473 | $160,000 | $0 | $243,473 | $243,473 |
| 2019 | $69,213 | $230,000 | $0 | $299,213 | $299,213 |
| 2018 | $70,278 | $200,000 | $0 | $270,278 | $270,278 |
| 2017 | $72,061 | $200,000 | $0 | $272,061 | $272,061 |
| 2016 | $73,845 | $140,000 | $0 | $213,845 | $213,845 |
| 2015 | $75,627 | $140,000 | $0 | $215,627 | $215,627 |
| 2014 | $77,410 | $140,000 | $0 | $217,410 | $217,410 |
| 2013 | $79,194 | $140,000 | $0 | $219,194 | $219,194 |
| 2012 | $87,859 | $122,229 | $0 | $210,088 | $210,088 |
| 2011 | $89,618 | $135,810 | $0 | $225,428 | $225,428 |
| 2010 | $94,062 | $135,810 | $0 | $229,872 | $229,872 |
| 2009 | $99,446 | $150,900 | $0 | $250,346 | $250,346 |
| 2008 | $100,865 | $168,505 | $0 | $269,370 | $269,370 |
| 2007 | $102,252 | $150,900 | $0 | $253,152 | $253,152 |
Deed and Sales History
| 1 | 09/11/2006 | 5 | DNU - Marriage License/Name Change | NORGARD, KARIN E | SUMNICHT TRUSTEE, GARY E | | | $0.00 | 64502 | 4184653 |
| 2 | 11/01/2001 | 5 | DNU - Marriage License/Name Change | NORGARD, CHARLES G | NORGARD, KARIN E | | | $0.00 | 69178 | 0 |
| 3 | 11/01/2001 | 5 | DNU - Marriage License/Name Change | NORGARD, CHARLES G | NORGARD, CHARLES G | | | $0.00 | 69178 | 0 |
| 4 | 08/01/1989 | QCD | Quit Claim Deed | NORGARD, CHARLES G | NORGARD, CHARLES G | | | $0.00 | 93222 | 89010817 |
| 5 | 05/01/1989 | OTHER | Other - Misc. Documents | NORGARD, CHARLES G | NORGARD, CHARLES G | | | $49,125.00 | 11111111 | 0 |
| 6 | 01/01/1900 | OTHER | Other - Misc. Documents | Unknown | NORGARD, CHARLES G | | | $0.00 | 0 | 0 |
Payout Agreement
| No payout information available.. |