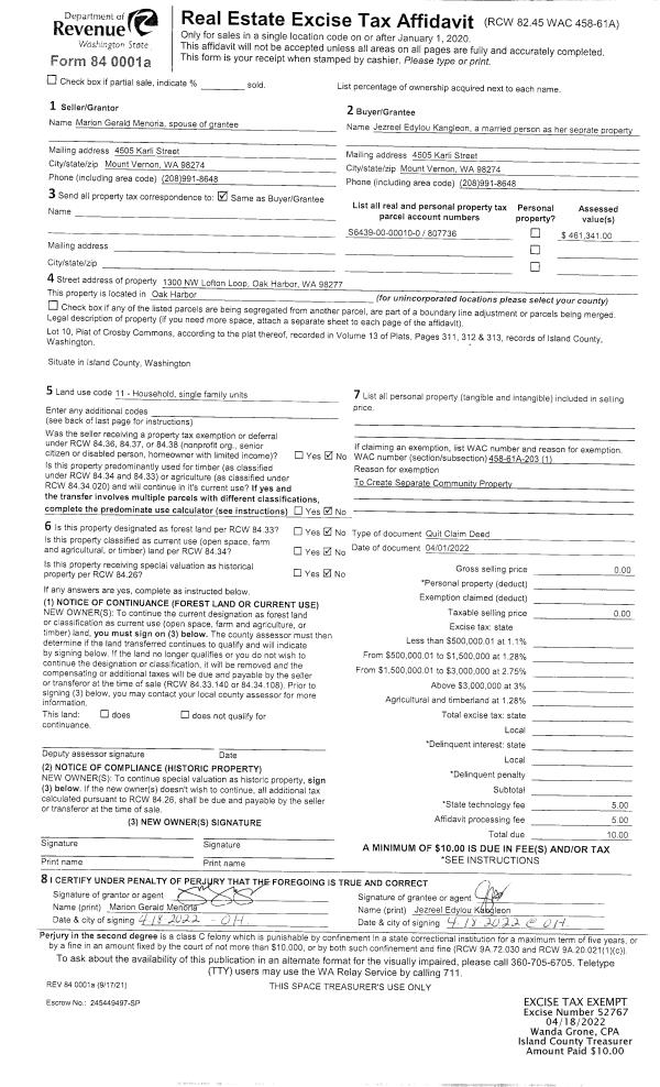
Property
Account |
| Property ID: | 746321 | Abbreviated Legal Description: | 29 - S/2 E/2 NE SW SW EX |
| Geographic ID: | R33232-083-1160 | Agent Code: | |
| Type: | Real | | |
| Tax Area: | 592 - APPRAISER-Stan/Cam Schl Dist, Special Dist, improved, greater than 1 acre | Land Use Code | 11 |
| Open Space: | N | DFL | N |
| Historic Property: | N | Remodel Property: | N |
| Multi-Family Redevelopment: | N | | |
| Township: | 32 | Section: | 32 |
| Range: | R3 |
Location |
| Address: | 485 E LAKE GROVE RD CAMANO ISLAND, WA 98282 | Mapsco: | |
| Neighborhood: | Cycle 5 | Map ID: | 996 |
| Neighborhood CD: | 5 |
Owner |
| Name: | REDMOND, STEPHEN M | Owner ID: | 281756 |
| Mailing Address: | DIANA M REDMOND 233 N LAKE GROVE RD CAMANO ISLAND, WA 98282 | % Ownership: | 100.0000000000% |
| | | Exemptions: | |
Taxes and Assessment Details
Values
| (+) Improvement Homesite Value: | + | $0 | |
| (+) Improvement Non-Homesite Value: | + | $689,158 | |
| (+) Land Homesite Value: | + | $0 | |
| (+) Land Non-Homesite Value: | + | $310,000 | |
| (+) Curr Use (HS): | + | $0 | $0 |
| (+) Curr Use (NHS): | + | $0 | $0 |
| | | -------------------------- | |
| (=) Market Value: | = | $999,158 | |
| (–) Productivity Loss: | – | $0 | |
| | | -------------------------- | |
| (=) Subtotal: | = | $999,158 | |
| (+) Senior Appraised Value: | + | $0 | |
| (+) Non-Senior Appraised Value: | + | $999,158 | |
| | | -------------------------- | |
| (=) Total Appraised Value: | = | $999,158 | |
| (–) Senior Exemption Loss: | – | $0 | |
| (–) Exemption Loss: | – | $0 | |
| | | -------------------------- | |
| (=) Taxable Value: | = | $999,158 | |
Taxing Jurisdiction
| Owner: | REDMOND, STEPHEN M | | |
| % Ownership: | 100.0000000000% | | |
| Total Value: | $999,158 | | |
| Tax Area: | 592 - APPRAISER-Stan/Cam Schl Dist, Special Dist, improved, greater than 1 acre |
| CF | Conservation Futures | 0.0316035091 | $999,158 | $999,158 | $31.58 | | |
| EMS1 | Fire & Rescue Dist #1 Camano GEN (EMS) | 0.3677864386 | $999,158 | $999,158 | $367.48 | | |
| FIRE1 | Fire & Rescue Dist #1 Camano GEN | 1.2502910536 | $999,158 | $999,158 | $1,249.24 | | |
| FIRE1BOND | Fire & Rescue Dist #1 Camano BOND | 0.1570001679 | $999,158 | $999,158 | $156.87 | | |
| CE | County Current Expense | 0.3708482477 | $999,158 | $999,158 | $370.54 | | |
| CR | County Roads | 0.4584763726 | $999,158 | $999,158 | $458.09 | | |
| LCIB | Library Sno-Isle BOND (Camano Island) | 0.0396325772 | $999,158 | $999,158 | $39.60 | | |
| LIB | Library Sno-Isle GEN | 0.3153421757 | $999,158 | $999,158 | $315.08 | | |
| SCH205_401 | School 205-401 Enrichment | 1.2698420524 | $999,158 | $999,158 | $1,268.77 | | |
| SCH205BOND | School 205-401 BOND | 0.9396497583 | $999,158 | $999,158 | $938.86 | | |
| ST | State School | 1.3035497053 | $999,158 | $999,158 | $1,302.45 | | |
| ST2 | State School Part 2 | 0.8169543533 | $999,158 | $999,158 | $816.27 | | |
| | Total Tax Rate: | 7.3209764117 | | | | | |
| | | | | Taxes w/Current Exemptions: | $7,314.83 | | |
| | | | | Taxes w/o Exemptions: | $7,314.83 | | |
Improvement / Building
| Improvement #1: | RESIDENTIAL | State Code: | Y | 2264.8 sqft | Value: | $401,233 |
| Bathrooms: | 3 | Bedrooms: | 3 | | Ceiling: | DRYWALL PAINTED | Cooling: | HEAT PUMP/CONV/V | | Exterior Wall/Cover: | CEMENT FIBER | Floor Covering: | CARPET/VINYL 80-20 | | Floor Structure: | WOOD W/SUBFLOOR | Foundation: | CONCRETE | | Interior Finish: | DRYWALL PAINT | Plumbing Fixture Cnt: | 12 | | Roof Slope: | 5" IN 12" | Roof Structure/Cover: | CJ ASPHALT |
|
| | Type | Description | Class CD | Sub Class CD | Year Built | Area |
| | BAS | BASE/MAIN FLOOR | 3 | 0 | 1995 | 2264.8 |
| | AGR | ATTACHED GARAGE | 3 | 0 | 1995 | 840.0 |
| | OWP | OPEN WOOD PORCH W/STEPS | 3 | 0 | 1995 | 200.0 |
| | OWP | OPEN WOOD PORCH W/STEPS | 3 | 0 | 1995 | 640.0 |
| | OWC | OPEN WOOD PORCH W/STEPS/ROOF/C | 3 | 0 | 1995 | 140.0 |
| Improvement #2: | RESIDENTIAL | State Code: | Y | 1224.0 sqft | Value: | $287,925 |
| Bathrooms: | 1 | Bedrooms: | 1 | | Ceiling: | DRYWALL PAINTED | Cooling: | HEAT PUMP/CONV/V | | Exterior Wall/Cover: | CEMENT FIBER | Floor Covering: | VINYL 100% | | Floor Structure: | WOOD W/SUBFLOOR | Foundation: | CONCRETE | | Interior Finish: | DRYWALL PAINT | Plumbing Fixture Cnt: | 7 | | Roof Slope: | 4" IN 12" | Roof Structure/Cover: | CJ ASPHALT |
|
| | Type | Description | Class CD | Sub Class CD | Year Built | Area |
| | BAS | BASE/MAIN FLOOR | 3 | 0 | 2024 | 1224.0 |
| | AGR | ATTACHED GARAGE | 3 | 0 | 2024 | 936.0 |
| | OWC | OPEN WOOD PORCH W/STEPS/ROOF/C | 3 | 0 | 2024 | 78.0 |
Sketch
Property Image
Land
| 1 | 18 | AC (02.01-03.00) | 0.0000 | 0.00 | 0.00 | 0.00 | 1.00 | $310,000 | $0 |
Roll Value History
| 2026 | N/A | N/A | N/A | N/A | N/A |
| 2025 | $689,158 | $310,000 | $0 | $999,158 | $999,158 |
| 2024 | $699,854 | $300,000 | $0 | $999,854 | $999,854 |
| 2023 | $666,560 | $300,000 | $0 | $966,560 | $966,560 |
| 2022 | $515,657 | $260,000 | $0 | $775,657 | $775,657 |
| 2021 | $296,956 | $190,000 | $0 | $486,956 | $486,956 |
| 2020 | $289,714 | $150,000 | $0 | $439,714 | $439,714 |
| 2019 | $222,417 | $190,000 | $0 | $412,417 | $412,417 |
| 2018 | $223,103 | $180,000 | $0 | $403,103 | $403,103 |
| 2017 | $224,422 | $135,000 | $0 | $359,422 | $359,422 |
| 2016 | $227,159 | $135,000 | $0 | $362,159 | $93,882 |
| 2015 | $238,053 | $100,000 | $0 | $338,053 | $93,882 |
| 2014 | $240,967 | $100,000 | $0 | $340,967 | $93,882 |
| 2013 | $243,881 | $80,000 | $0 | $323,881 | $93,882 |
| 2012 | $246,796 | $80,000 | $0 | $326,796 | $93,882 |
| 2011 | $249,709 | $100,000 | $0 | $349,709 | $93,882 |
| 2010 | $258,281 | $100,000 | $0 | $358,281 | $93,882 |
| 2009 | $270,331 | $99,985 | $0 | $370,316 | $93,881 |
| 2008 | $272,761 | $100,884 | $0 | $373,645 | $93,881 |
| 2007 | $275,162 | $101,772 | $0 | $376,934 | $93,881 |
Deed and Sales History
| 1 | 08/25/2017 | QCD | Quit Claim Deed | REDMOND, STEPHEN M | REDMOND, STEPHEN M | | | $165,000.00 | 30932 | 4429439 |
| 2 | 07/31/2017 | PRD | Personal Representatives Deed | REDMOND, RUTH G | REDMOND, STEPHEN M | | | $0.00 | 30734 | 4428659 |
| 3 | 01/01/1994 | WD | Warranty Deed | REDMOND, RUTH G | REDMOND, RUTH G | | | $32,000.00 | 40102 | 94000542 |
| 4 | 01/01/1994 | WD | Warranty Deed | GRAPE, WESLEY W | REDMOND, RUTH G | | | $0.00 | 70229 | 97000857 |
| 5 | 01/01/1900 | OTHER | Other - Misc. Documents | Unknown | GRAPE, WESLEY W | | | $0.00 | 0 | 0 |
Payout Agreement
| No payout information available.. |