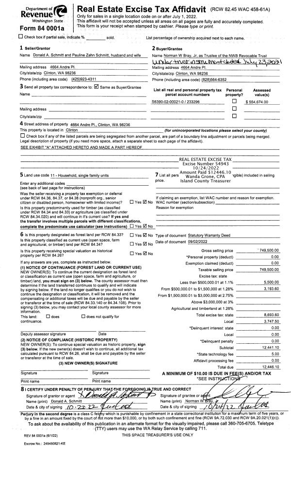
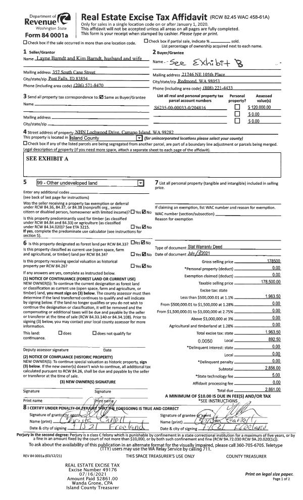
Property
Account |
| Property ID: | 746358 | Abbreviated Legal Description: | P HILLCR 4 LOT 125 |
| Geographic ID: | S7685-04-00125-0 | Agent Code: | |
| Type: | Real | | |
| Tax Area: | 110 - APPRAISER-OH Schl Dist, outside OH, improved & 1 acre or less | Land Use Code | 11 |
| Open Space: | N | DFL | N |
| Historic Property: | N | Remodel Property: | N |
| Multi-Family Redevelopment: | N | | |
| Township: | | Section: | |
| Range: | |
Location |
| Address: | 2451 OLYMPIC DR OAK HARBOR, WA 98277 | Mapsco: | |
| Neighborhood: | Cycle 1 | Map ID: | 249 |
| Neighborhood CD: | 1 |
Owner |
| Name: | SPICER, CASSIE D | Owner ID: | 303687 |
| Mailing Address: | ADAM L SPIACER 2451 OLYMPIC DR OAK HARBOR, WA 98277 | % Ownership: | 100.0000000000% |
| | | Exemptions: | |
Taxes and Assessment Details
Values
| (+) Improvement Homesite Value: | + | $0 | |
| (+) Improvement Non-Homesite Value: | + | $293,673 | |
| (+) Land Homesite Value: | + | $0 | |
| (+) Land Non-Homesite Value: | + | $210,000 | |
| (+) Curr Use (HS): | + | $0 | $0 |
| (+) Curr Use (NHS): | + | $0 | $0 |
| | | -------------------------- | |
| (=) Market Value: | = | $503,673 | |
| (–) Productivity Loss: | – | $0 | |
| | | -------------------------- | |
| (=) Subtotal: | = | $503,673 | |
| (+) Senior Appraised Value: | + | $0 | |
| (+) Non-Senior Appraised Value: | + | $503,673 | |
| | | -------------------------- | |
| (=) Total Appraised Value: | = | $503,673 | |
| (–) Senior Exemption Loss: | – | $0 | |
| (–) Exemption Loss: | – | $0 | |
| | | -------------------------- | |
| (=) Taxable Value: | = | $503,673 | |
Taxing Jurisdiction
| Owner: | SPICER, CASSIE D | | |
| % Ownership: | 100.0000000000% | | |
| Total Value: | $503,673 | | |
| Tax Area: | 110 - APPRAISER-OH Schl Dist, outside OH, improved & 1 acre or less |
| CF | Conservation Futures | 0.0316035091 | $503,673 | $503,673 | $15.92 | | |
| CEM1 | Cemetery #1 | 0.0040320932 | $503,673 | $503,673 | $2.03 | | |
| FIRE2 | Fire & Rescue Dist #2 N Whidbey GEN | 0.5475949600 | $503,673 | $503,673 | $275.81 | | |
| HOBOND | Hospital BOND | 0.1910887512 | $503,673 | $503,673 | $96.25 | | |
| HOGEN | Hospital GEN | 0.3902502903 | $503,673 | $503,673 | $196.56 | | |
| CE | County Current Expense | 0.3708482477 | $503,673 | $503,673 | $186.79 | | |
| CR | County Roads | 0.4584763726 | $503,673 | $503,673 | $230.92 | | |
| ISLANDEMS | Hospital GEN (EMS) | 0.5000000000 | $503,673 | $503,673 | $251.84 | | |
| LIB | Library Sno-Isle GEN | 0.3153421757 | $503,673 | $503,673 | $158.83 | | |
| NWHIDPRMT | P & R N Whidbey GEN | 0.2004466701 | $503,673 | $503,673 | $100.96 | | |
| SCH201MO | School 201 Enrichment | 1.8559231640 | $503,673 | $503,673 | $934.78 | | |
| ST | State School | 1.3035497053 | $503,673 | $503,673 | $656.56 | | |
| ST2 | State School Part 2 | 0.8169543533 | $503,673 | $503,673 | $411.48 | | |
| | Total Tax Rate: | 6.9861102925 | | | | | |
| | | | | Taxes w/Current Exemptions: | $3,518.73 | | |
| | | | | Taxes w/o Exemptions: | $3,518.73 | | |
Improvement / Building
| Improvement #1: | RESIDENTIAL | State Code: | Y | 1555.0 sqft | Value: | $293,673 |
| Bathrooms: | 2 | Bedrooms: | 3 | | Ceiling: | DRY WALL SPRAYED | Cooling: | HEAT PUMP/CONV/V | | Exterior Wall/Cover: | PLY/HARDBOARD T-111 | Floor Covering: | HARDWOOD 100% | | Floor Structure: | WOOD W/SUBFLOOR | Foundation: | CONCRETE | | Interior Finish: | DRYWALL PAINT | Plumbing Fixture Cnt: | 9 | | Roof Slope: | 4" IN 12" | Roof Structure/Cover: | CJ ASPHALT |
|
| | Type | Description | Class CD | Sub Class CD | Year Built | Area |
| | BAS | BASE/MAIN FLOOR | 3 | 0 | 1976 | 1555.0 |
| | AGR | ATTACHED GARAGE | 3 | 0 | 1976 | 414.0 |
| | OWP | OPEN WOOD PORCH W/STEPS | 3 | 0 | 1976 | 155.9 |
| | OWP | OPEN WOOD PORCH W/STEPS | 3 | 0 | 1976 | 902.0 |
Sketch
Property Image
Land
| 1 | 15 | SQ (12001-21780) | 0.0000 | 0.00 | 0.00 | 0.00 | 1.00 | $210,000 | $0 |
Roll Value History
| 2026 | N/A | N/A | N/A | N/A | N/A |
| 2025 | $293,673 | $210,000 | $0 | $503,673 | $503,673 |
| 2024 | $297,380 | $190,000 | $0 | $487,380 | $487,380 |
| 2023 | $301,084 | $190,000 | $0 | $491,084 | $491,084 |
| 2022 | $248,788 | $180,000 | $0 | $428,788 | $428,788 |
| 2021 | $219,106 | $135,000 | $0 | $354,106 | $354,106 |
| 2020 | $213,645 | $100,000 | $0 | $313,645 | $313,645 |
| 2019 | $156,072 | $150,000 | $0 | $306,072 | $306,072 |
| 2018 | $137,343 | $130,000 | $0 | $267,343 | $267,343 |
| 2017 | $113,237 | $110,000 | $0 | $223,237 | $223,237 |
| 2016 | $115,124 | $90,000 | $0 | $205,124 | $205,124 |
| 2015 | $117,011 | $70,000 | $0 | $187,011 | $187,011 |
| 2014 | $118,898 | $55,000 | $0 | $173,898 | $173,898 |
| 2013 | $120,786 | $55,000 | $0 | $175,786 | $175,786 |
| 2012 | $122,672 | $60,000 | $0 | $182,672 | $182,672 |
| 2011 | $127,939 | $50,000 | $0 | $177,939 | $177,939 |
| 2010 | $139,658 | $50,000 | $0 | $189,658 | $189,658 |
| 2009 | $145,745 | $92,000 | $0 | $237,745 | $237,745 |
| 2008 | $147,693 | $98,000 | $0 | $245,693 | $245,693 |
| 2007 | $149,640 | $98,000 | $0 | $247,640 | $247,640 |
Deed and Sales History
| 1 | 04/01/2022 | WD | Warranty Deed | GHOLSON, KIRK ANTHONY | SPICER, CASSIE D | | | $502,000.00 | 52611 | 4542836 |
| 2 | 01/22/2021 | WD | Warranty Deed | GOMEZ, KAYLEE L D'ARMAS | GHOLSON, KIRK ANTHONY | | | $403,000.00 | 46721 | 4509346 |
| 3 | 11/03/2020 | QCD | Quit Claim Deed | GOMEZ, KAYLEE L D'ARMAS | GOMEZ, KAYLEE L D'ARMAS | | | $0.00 | 45650 | 4502133 |
| 4 | 05/29/2019 | WD | Warranty Deed | JOHNSON, COREY L | GOMEZ, KAYLEE L D'ARMAS | | | $310,000.00 | 38778 | 4464535 |
| 5 | 06/02/2015 | DECREE | Divorce Decree/Legal Separation | JOHNSON, COREY | JOHNSON, COREY L | | | $0.00 | 19866 | 4379589 |
| 6 | 05/23/2012 | WD | Warranty Deed | CITIBANK NA | JOHNSON, COREY | | | $105,199.00 | 7914 | 4317115 |
| 7 | 05/23/2012 | QCD | Quit Claim Deed | LITTON LOAN SERVICING LP | CITIBANK NA | | | $0.00 | 7913 | 4317114 |
| 8 | 05/31/2011 | GRANTD | Grant Deed | GOLDMAN, LISA K | LITTON LOAN SERVICING LP | | | $182,000.00 | 4723 | 4296902 |
| 9 | 12/10/2001 | ESTSEPPROP | Establish Separate Property | GOLDMAN, RICKY D | GOLDMAN, LISA K | | | $0.00 | 14705 | 4005625 |
| 10 | 07/01/1995 | WD | Warranty Deed | BUGG, RONALD L | GOLDMAN, RICKY D | | | $139,000.00 | 52624 | 95012068 |
| 11 | 12/01/1993 | WD | Warranty Deed | HULST, DONALD J | BUGG, RONALD L | | | $125,000.00 | 34843 | 93025317 |
| 12 | 07/01/1989 | WD | Warranty Deed | NICOLLE, RAND W | HULST, DONALD J | | | $75,500.00 | 92807 | 89009442 |
| 13 | 12/01/1985 | WD | Warranty Deed | CHANEY, DAVID F | NICOLLE, RAND W | | | $69,900.00 | 53553 | 85014068 |
| 14 | 01/01/1900 | OTHER | Other - Misc. Documents | Unknown | CHANEY, DAVID F | | | $0.00 | 0 | 0 |
Payout Agreement
| No payout information available.. |