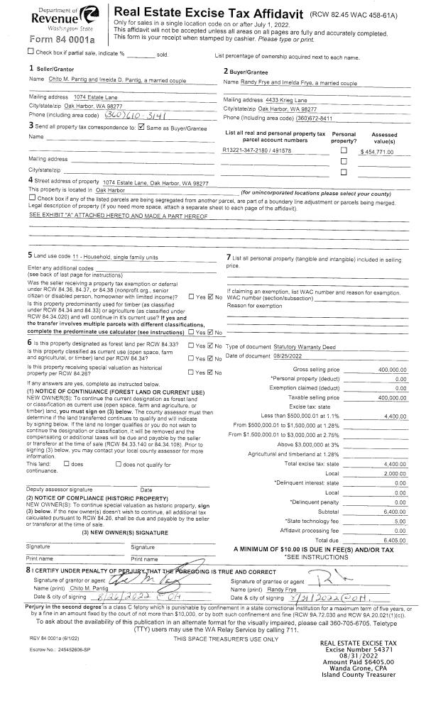
Property
Account |
| Property ID: | 746401 | Abbreviated Legal Description: | 3 - IN SE: BG SWCR SE SE E495' N355' TPB N325' E165' |
| Geographic ID: | R33010-052-4540 | Agent Code: | |
| Type: | Real | | |
| Tax Area: | 562 - APPRAISER-Stan/Cam Schl Dist, Special Dist, improved, greater than 1 acre | Land Use Code | 11 |
| Open Space: | N | DFL | N |
| Historic Property: | N | Remodel Property: | N |
| Multi-Family Redevelopment: | N | | |
| Township: | 30 | Section: | 10 |
| Range: | R3 |
Location |
| Address: | 3165 GOLDBERRY LN CAMANO ISLAND, WA 98282 | Mapsco: | |
| Neighborhood: | 58NofTamarackS | Map ID: | 864 |
| Neighborhood CD: | 58RntamS |
Owner |
| Name: | SAUVE, JOEL GAYLEN | Owner ID: | 289397 |
| Mailing Address: | ASHLEY MARIE PORTER 3165 GOLDBERRY LN CAMANO ISLAND, WA 98282 | % Ownership: | 100.0000000000% |
| | | Exemptions: | |
Taxes and Assessment Details
Values
| (+) Improvement Homesite Value: | + | $0 | |
| (+) Improvement Non-Homesite Value: | + | $190,221 | |
| (+) Land Homesite Value: | + | $0 | |
| (+) Land Non-Homesite Value: | + | $250,000 | |
| (+) Curr Use (HS): | + | $0 | $0 |
| (+) Curr Use (NHS): | + | $0 | $0 |
| | | -------------------------- | |
| (=) Market Value: | = | $440,221 | |
| (–) Productivity Loss: | – | $0 | |
| | | -------------------------- | |
| (=) Subtotal: | = | $440,221 | |
| (+) Senior Appraised Value: | + | $0 | |
| (+) Non-Senior Appraised Value: | + | $440,221 | |
| | | -------------------------- | |
| (=) Total Appraised Value: | = | $440,221 | |
| (–) Senior Exemption Loss: | – | $0 | |
| (–) Exemption Loss: | – | $0 | |
| | | -------------------------- | |
| (=) Taxable Value: | = | $440,221 | |
Taxing Jurisdiction
| Owner: | SAUVE, JOEL GAYLEN | | |
| % Ownership: | 100.0000000000% | | |
| Total Value: | $440,221 | | |
| Tax Area: | 562 - APPRAISER-Stan/Cam Schl Dist, Special Dist, improved, greater than 1 acre |
| CF | Conservation Futures | 0.0316035091 | $440,221 | $440,221 | $13.91 | | |
| EMS1 | Fire & Rescue Dist #1 Camano GEN (EMS) | 0.3677864386 | $440,221 | $440,221 | $161.91 | | |
| FIRE1 | Fire & Rescue Dist #1 Camano GEN | 1.2502910536 | $440,221 | $440,221 | $550.40 | | |
| FIRE1BOND | Fire & Rescue Dist #1 Camano BOND | 0.1570001679 | $440,221 | $440,221 | $69.11 | | |
| CE | County Current Expense | 0.3708482477 | $440,221 | $440,221 | $163.26 | | |
| CR | County Roads | 0.4584763726 | $440,221 | $440,221 | $201.83 | | |
| LCIB | Library Sno-Isle BOND (Camano Island) | 0.0396325772 | $440,221 | $440,221 | $17.45 | | |
| LIB | Library Sno-Isle GEN | 0.3153421757 | $440,221 | $440,221 | $138.82 | | |
| SCH205_401 | School 205-401 Enrichment | 1.2698420524 | $440,221 | $440,221 | $559.01 | | |
| SCH205BOND | School 205-401 BOND | 0.9396497583 | $440,221 | $440,221 | $413.65 | | |
| ST | State School | 1.3035497053 | $440,221 | $440,221 | $573.85 | | |
| ST2 | State School Part 2 | 0.8169543533 | $440,221 | $440,221 | $359.64 | | |
| | Total Tax Rate: | 7.3209764117 | | | | | |
| | | | | Taxes w/Current Exemptions: | $3,222.84 | | |
| | | | | Taxes w/o Exemptions: | $3,222.84 | | |
Improvement / Building
| Improvement #1: | MANUFACTURED HOME | State Code: | Y | 1857.0 sqft | Value: | $190,221 |
| Bathrooms: | 2 | Bedrooms: | 3 | | Ceiling: | PLASTER PAINTED | Cooling: | EVAP NO DUCT | | Exterior Wall/Cover: | VINYL | Floor Covering: | CARPET 100% | | Floor Structure: | SLAB ON GRADE | Foundation: | SLAB | | Heating: | FHA ELECTRIC | Interior Finish: | PLASTER | | Roof Slope: | FLAT | Roof Structure/Cover: | CJ ALUMINIUM HEAVY |
|
| | Type | Description | Class CD | Sub Class CD | Year Built | Area |
| | BAS | BASE/MAIN FLOOR | 4 | 0 | 2018 | 1857.0 |
| | OWC | OPEN WOOD PORCH W/STEPS/ROOF/C | 4 | 0 | 2018 | 84.0 |
| | OWP | OPEN WOOD PORCH W/STEPS | 4 | 0 | 2018 | 44.9 |
| | OWP | OPEN WOOD PORCH W/STEPS | 4 | 0 | 2018 | 28.0 |
Sketch
Property Image
Land
| 1 | 17 | AC (01.01-02.00) | 1.2300 | 53578.80 | 0.00 | 0.00 | 1.00 | $250,000 | $0 |
Roll Value History
| 2026 | N/A | N/A | N/A | N/A | N/A |
| 2025 | $190,221 | $250,000 | $0 | $440,221 | $440,221 |
| 2024 | $192,267 | $220,000 | $0 | $412,267 | $412,267 |
| 2023 | $170,754 | $220,000 | $0 | $390,754 | $390,754 |
| 2022 | $156,236 | $200,000 | $0 | $356,236 | $356,236 |
| 2021 | $136,223 | $150,000 | $0 | $286,223 | $286,223 |
| 2020 | $133,554 | $140,000 | $0 | $273,554 | $273,554 |
| 2019 | $105,269 | $170,000 | $0 | $275,269 | $275,269 |
| 2018 | $94,651 | $150,000 | $0 | $244,651 | $244,651 |
| 2017 | $56,335 | $135,000 | $0 | $191,335 | $191,335 |
| 2016 | $57,216 | $75,000 | $0 | $132,216 | $132,216 |
| 2015 | $40,631 | $50,000 | $0 | $90,631 | $90,631 |
| 2014 | $41,238 | $50,000 | $0 | $91,238 | $91,238 |
| 2013 | $48,623 | $50,000 | $0 | $98,623 | $98,623 |
| 2012 | $49,231 | $74,400 | $0 | $123,631 | $123,631 |
| 2011 | $49,677 | $93,000 | $0 | $142,677 | $142,677 |
| 2010 | $49,677 | $93,000 | $0 | $142,677 | $142,677 |
| 2009 | $51,865 | $108,900 | $0 | $160,765 | $160,765 |
| 2008 | $52,916 | $99,000 | $0 | $151,916 | $151,916 |
| 2007 | $53,971 | $86,000 | $0 | $139,971 | $139,971 |
Deed and Sales History
| 1 | 04/23/2019 | WD | Warranty Deed | OPTT, LLC | SAUVE, JOEL GAYLEN | | | $335,000.00 | 38126 | 4461635 |
| 2 | 01/04/2017 | TTAXD | Treasurer's Tax Deed | JENSON, INGRID | OPTT, LLC | | | $45,500.00 | 27604 | 4414545 |
| 3 | 06/01/1995 | OTHER | Other - Misc. Documents | JENSEN, LEONARD E | JENSON, INGRID | | | $0.00 | 66474 | 95008833 |
| 4 | 07/01/1974 | EXECUTORD | Executor Deed | SHEMET, D W | JENSEN, LEONARD E | | | $0.00 | 53176 | 0 |
Payout Agreement
| No payout information available.. |