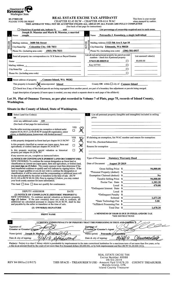
Property
Account |
| Property ID: | 746526 | Abbreviated Legal Description: | 72 - N/2 E/2 NW NE NW TGW |
| Geographic ID: | R13221-511-1850 | Agent Code: | |
| Type: | Real | | |
| Tax Area: | 112 - APPRAISER-OH Schl Dist, outside OH, improved, greater than 1 acre | Land Use Code | 11 |
| Open Space: | N | DFL | N |
| Historic Property: | N | Remodel Property: | N |
| Multi-Family Redevelopment: | N | | |
| Township: | 32 | Section: | 21 |
| Range: | R1 |
Location |
| Address: | 1181 MEMORY LN OAK HARBOR, WA 98277 | Mapsco: | |
| Neighborhood: | Cycle 2 | Map ID: | 151 |
| Neighborhood CD: | 2 |
Owner |
| Name: | BAKER, COREY | Owner ID: | 178688 |
| Mailing Address: | 1181 MEMORY LN OAK HARBOR, WA 98277-8203 | % Ownership: | 100.0000000000% |
| | | Exemptions: | SNR/DSBL |
Taxes and Assessment Details
Values
| (+) Improvement Homesite Value: | + | $369,280 | |
| (+) Improvement Non-Homesite Value: | + | $0 | |
| (+) Land Homesite Value: | + | $308,125 | |
| (+) Land Non-Homesite Value: | + | $0 | |
| (+) Curr Use (HS): | + | $0 | $0 |
| (+) Curr Use (NHS): | + | $0 | $0 |
| | | -------------------------- | |
| (=) Market Value: | = | $677,405 | |
| (–) Productivity Loss: | – | $0 | |
| | | -------------------------- | |
| (=) Subtotal: | = | $677,405 | |
| (+) Senior Appraised Value: | + | $387,404 | |
| (+) Non-Senior Appraised Value: | + | $0 | |
| | | -------------------------- | |
| (=) Total Appraised Value: | = | $387,404 | |
| (–) Senior Exemption Loss: | – | $232,442 | |
| (–) Exemption Loss: | – | $0 | |
| | | -------------------------- | |
| (=) Taxable Value: | = | $154,962 | |
Taxing Jurisdiction
| Owner: | BAKER, COREY | | |
| % Ownership: | 100.0000000000% | | |
| Total Value: | $677,405 | | |
| Tax Area: | 112 - APPRAISER-OH Schl Dist, outside OH, improved, greater than 1 acre |
| CF | Conservation Futures | 0.0316035091 | $677,405 | $154,962 | $4.90 | | |
| CEM1 | Cemetery #1 | 0.0040320932 | $677,405 | $154,962 | $0.62 | | |
| FIRE2 | Fire & Rescue Dist #2 N Whidbey GEN | 0.5475949600 | $677,405 | $154,962 | $84.86 | | |
| HOBOND | Hospital BOND | 0.0000000000 | $677,405 | $0 | $0.00 | | |
| HOGEN | Hospital GEN | 0.3902502903 | $677,405 | $154,962 | $60.47 | | |
| CE | County Current Expense | 0.3708482477 | $677,405 | $154,962 | $57.47 | | |
| CR | County Roads | 0.4584763726 | $677,405 | $154,962 | $71.05 | | |
| ISLANDEMS | Hospital GEN (EMS) | 0.5000000000 | $677,405 | $154,962 | $77.48 | | |
| LIB | Library Sno-Isle GEN | 0.3153421757 | $677,405 | $154,962 | $48.87 | | |
| NWHIDPRMT | P & R N Whidbey GEN | 0.2004466701 | $677,405 | $154,962 | $31.06 | | |
| SCH201MO | School 201 Enrichment | 0.0000000000 | $677,405 | $0 | $0.00 | | |
| ST | State School | 1.3035497053 | $677,405 | $154,962 | $202.00 | | |
| ST2 | State School Part 2 | 0.0000000000 | $677,405 | $0 | $0.00 | | |
| | Total Tax Rate: | 4.1221440240 | | | | | |
| | | | | Taxes w/Current Exemptions: | $638.78 | | |
| | | | | Taxes w/o Exemptions: | $4,732.40 | | |
Improvement / Building
| Improvement #1: | RESIDENTIAL | State Code: | Y | 1684.0 sqft | Value: | $369,280 |
| Bathrooms: | 2 | Bedrooms: | 3 | | Ceiling: | DRYWALL PAINTED | Cooling: | HEAT PUMP/CONV/V | | Exterior Wall/Cover: | VINYL | Floor Covering: | CARPET/VINYL 60-40 | | Floor Structure: | WOOD W/SUBFLOOR | Foundation: | CONCRETE | | Interior Finish: | DRYWALL PAINT | Plumbing Fixture Cnt: | 10 | | Roof Slope: | 4" IN 12" | Roof Structure/Cover: | CJ ASPHALT |
|
| | Type | Description | Class CD | Sub Class CD | Year Built | Area |
| | BAS | BASE/MAIN FLOOR | 3 | 0 | 2008 | 1684.0 |
| | OP3 | OPEN PORCH W/ROOF | 3 | 0 | 2008 | 240.0 |
| | OP4 | OPEN PORCH W/CEILING-ROOF | 3 | 0 | 2008 | 96.0 |
| | AGR | ATTACHED GARAGE | 3 | 0 | 2008 | 440.0 |
| | CPD | OPEN CARPORT DIRT FLOOR | 3 | 0 | 2008 | 324.0 |
| | CPD | OPEN CARPORT DIRT FLOOR | 3 | 0 | 2008 | 280.0 |
| | UTY | STORAGE/UTILITY | 3 | 0 | 2008 | 864.0 |
| | UTY | STORAGE/UTILITY | 3 | 0 | 2008 | 416.0 |
| | UTY | STORAGE/UTILITY | 3 | 0 | 2008 | 96.0 |
Sketch
Property Image
Land
| 1 | HS | HOMESITE | 1.0000 | 43560.00 | 0.00 | 0.00 | 1.00 | $220,000 | $0 |
| 2 | 91 | UNDEVELOPED LAND-METES AND BOUNDS | 1.5000 | 65340.00 | 0.00 | 0.00 | 1.00 | $88,125 | $0 |
Roll Value History
| 2026 | N/A | N/A | N/A | N/A | N/A |
| 2025 | $369,280 | $308,125 | $0 | $677,405 | $154,962 |
| 2024 | $356,582 | $300,000 | $0 | $656,582 | $154,962 |
| 2023 | $360,816 | $270,000 | $0 | $630,816 | $154,962 |
| 2022 | $330,553 | $250,000 | $0 | $580,553 | $317,404 |
| 2021 | $290,772 | $170,000 | $0 | $460,772 | $317,404 |
| 2020 | $283,192 | $150,000 | $0 | $433,192 | $387,404 |
| 2019 | $207,404 | $180,000 | $0 | $387,404 | $387,404 |
| 2018 | $197,775 | $170,000 | $0 | $367,775 | $367,775 |
| 2017 | $198,780 | $150,000 | $0 | $348,780 | $348,780 |
| 2016 | $200,786 | $120,000 | $0 | $320,786 | $320,786 |
| 2015 | $202,794 | $90,000 | $0 | $292,794 | $292,794 |
| 2014 | $204,799 | $90,000 | $0 | $294,799 | $294,799 |
| 2013 | $206,805 | $102,000 | $0 | $308,805 | $308,805 |
| 2012 | $208,748 | $102,000 | $0 | $310,748 | $310,748 |
| 2011 | $210,753 | $120,000 | $0 | $330,753 | $330,753 |
| 2010 | $216,162 | $120,000 | $0 | $336,162 | $336,162 |
| 2009 | $225,083 | $105,000 | $0 | $330,083 | $330,083 |
| 2008 | $38,700 | $110,148 | $0 | $148,848 | $148,848 |
| 2007 | $42,593 | $115,159 | $0 | $157,752 | $157,752 |
Deed and Sales History
| 1 | 02/07/2002 | WD | Warranty Deed | STARKER, DIANE D | BAKER, COREY | | | $103,000.00 | 20636 | 4011901 |
| 2 | 10/26/2000 | DECREE | Divorce Decree/Legal Separation | BERGDOLL, RICHARD D | STARKER, DIANE D | | | $0.00 | 4498 | 20020723 |
| 3 | 11/03/1998 | OTHER | Other - Misc. Documents | Unknown | BERGDOLL, RICHARD D / DIANE D | | | $20,000.00 | 84414 | 0 |
| 4 | 10/27/1998 | WD | Warranty Deed | OSBORNE, EDWARD R | BERGDOLL, RICHARD D | | | $70,000.00 | 84413 | 98023965 |
| 5 | 06/01/1978 | OTHER | Other - Misc. Documents | BERGDOLL, RICHARD D / DIANE D | OSBORNE, EDWARD R | | | $13,500.00 | 82568 | 333942 |
Payout Agreement
| No payout information available.. |