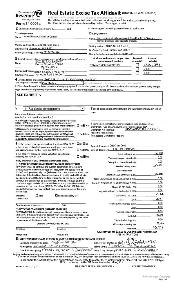
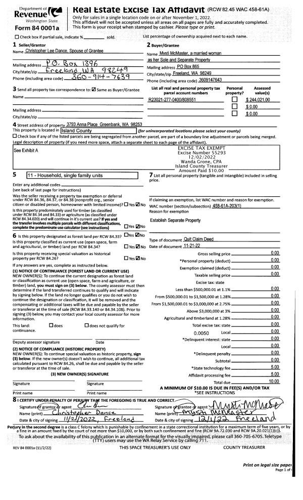
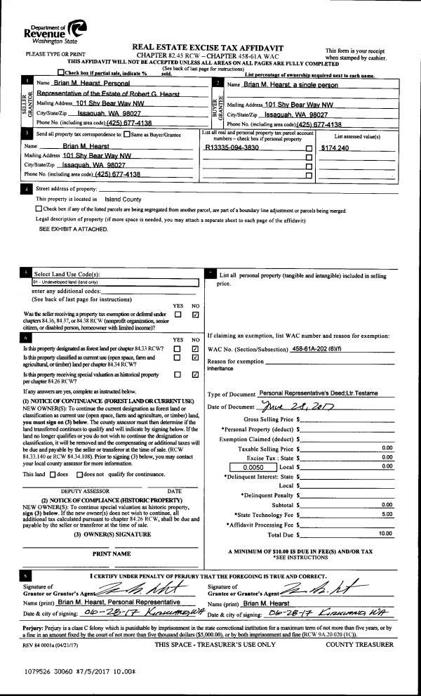
Property
Account |
| Property ID: | 746768 | Abbreviated Legal Description: | CHANNEL VIEW - PRD LOT 3 |
| Geographic ID: | S6363-00-00003-0 | Agent Code: | |
| Type: | Real | | |
| Tax Area: | 112 - APPRAISER-OH Schl Dist, outside OH, improved, greater than 1 acre | Land Use Code | 11 |
| Open Space: | N | DFL | N |
| Historic Property: | N | Remodel Property: | N |
| Multi-Family Redevelopment: | N | | |
| Township: | | Section: | |
| Range: | |
Location |
| Address: | 3750 DOVE LN OAK HARBOR, WA 98277 | Mapsco: | |
| Neighborhood: | Cycle 6 | Map ID: | 600 |
| Neighborhood CD: | 6 |
Owner |
| Name: | GARDNER TTEE, SCOTT A | Owner ID: | 313933 |
| Mailing Address: | SUZANNE M GARDNER TTEE 3750 DOVE LN OAK HARBOR, WA 98277 | % Ownership: | 100.0000000000% |
| | | Exemptions: | |
Taxes and Assessment Details
Values
| (+) Improvement Homesite Value: | + | $0 | |
| (+) Improvement Non-Homesite Value: | + | $621,287 | |
| (+) Land Homesite Value: | + | $0 | |
| (+) Land Non-Homesite Value: | + | $290,000 | |
| (+) Curr Use (HS): | + | $0 | $0 |
| (+) Curr Use (NHS): | + | $0 | $0 |
| | | -------------------------- | |
| (=) Market Value: | = | $911,287 | |
| (–) Productivity Loss: | – | $0 | |
| | | -------------------------- | |
| (=) Subtotal: | = | $911,287 | |
| (+) Senior Appraised Value: | + | $0 | |
| (+) Non-Senior Appraised Value: | + | $911,287 | |
| | | -------------------------- | |
| (=) Total Appraised Value: | = | $911,287 | |
| (–) Senior Exemption Loss: | – | $0 | |
| (–) Exemption Loss: | – | $0 | |
| | | -------------------------- | |
| (=) Taxable Value: | = | $911,287 | |
Taxing Jurisdiction
| Owner: | GARDNER TTEE, SCOTT A | | |
| % Ownership: | 100.0000000000% | | |
| Total Value: | $911,287 | | |
| Tax Area: | 112 - APPRAISER-OH Schl Dist, outside OH, improved, greater than 1 acre |
| CF | Conservation Futures | 0.0316035091 | $911,287 | $911,287 | $28.80 | | |
| CEM1 | Cemetery #1 | 0.0040320932 | $911,287 | $911,287 | $3.67 | | |
| FIRE2 | Fire & Rescue Dist #2 N Whidbey GEN | 0.5475949600 | $911,287 | $911,287 | $499.02 | | |
| HOBOND | Hospital BOND | 0.1910887512 | $911,287 | $911,287 | $174.14 | | |
| HOGEN | Hospital GEN | 0.3902502903 | $911,287 | $911,287 | $355.63 | | |
| CE | County Current Expense | 0.3708482477 | $911,287 | $911,287 | $337.95 | | |
| CR | County Roads | 0.4584763726 | $911,287 | $911,287 | $417.80 | | |
| ISLANDEMS | Hospital GEN (EMS) | 0.5000000000 | $911,287 | $911,287 | $455.64 | | |
| LIB | Library Sno-Isle GEN | 0.3153421757 | $911,287 | $911,287 | $287.37 | | |
| NWHIDPRMT | P & R N Whidbey GEN | 0.2004466701 | $911,287 | $911,287 | $182.66 | | |
| SCH201MO | School 201 Enrichment | 1.8559231640 | $911,287 | $911,287 | $1,691.28 | | |
| ST | State School | 1.3035497053 | $911,287 | $911,287 | $1,187.91 | | |
| ST2 | State School Part 2 | 0.8169543533 | $911,287 | $911,287 | $744.48 | | |
| | Total Tax Rate: | 6.9861102925 | | | | | |
| | | | | Taxes w/Current Exemptions: | $6,366.35 | | |
| | | | | Taxes w/o Exemptions: | $6,366.35 | | |
Improvement / Building
| Improvement #1: | RESIDENTIAL | State Code: | Y | 4174.8 sqft | Value: | $621,287 |
| Bathrooms: | 2.5 | Bedrooms: | 3 | | Ceiling: | DRYWALL PAINTED | Cooling: | HEAT PUMP/CONV/V | | Exterior Wall/Cover: | PLY/HARDBOARD T-111 | Floor Covering: | CARPET/VINYL 80-20 | | Floor Structure: | WOOD W/SUBFLOOR | Foundation: | CONCRETE | | Interior Finish: | DRYWALL PAINT | Plumbing Fixture Cnt: | 12 | | Roof Slope: | 5" IN 12" | Roof Structure/Cover: | CJ ASPHALT |
|
| | Type | Description | Class CD | Sub Class CD | Year Built | Area |
| | BAS | BASE/MAIN FLOOR | 4 | 0 | 1998 | 3031.8 |
| | OP4 | OPEN PORCH W/CEILING-ROOF | 4 | 0 | 1998 | 67.5 |
| | OP4 | OPEN PORCH W/CEILING-ROOF | 4 | 0 | 1998 | 304.5 |
| | AGR | ATTACHED GARAGE | 4 | 0 | 1998 | 1087.5 |
| | UPS | UPPER STORY | 4 | 0 | 1998 | 1143.0 |
| | OWP | OPEN WOOD PORCH W/STEPS | 4 | 0 | 1998 | 1209.5 |
| | UTY | STORAGE/UTILITY | 4 | 0 | 1998 | 168.0 |
Sketch
Property Image
Land
| 1 | 18 | AC (02.01-03.00) | 2.5500 | 111078.00 | 0.00 | 0.00 | 1.00 | $290,000 | $0 |
Roll Value History
| 2026 | N/A | N/A | N/A | N/A | N/A |
| 2025 | $621,287 | $290,000 | $0 | $911,287 | $911,287 |
| 2024 | $628,750 | $280,000 | $0 | $908,750 | $908,750 |
| 2023 | $636,212 | $280,000 | $0 | $916,212 | $916,212 |
| 2022 | $555,831 | $220,000 | $0 | $775,831 | $775,831 |
| 2021 | $489,222 | $160,000 | $0 | $649,222 | $649,222 |
| 2020 | $478,452 | $150,000 | $0 | $628,452 | $628,452 |
| 2019 | $398,145 | $160,000 | $0 | $558,145 | $558,145 |
| 2018 | $399,314 | $150,000 | $0 | $549,314 | $549,314 |
| 2017 | $401,650 | $135,000 | $0 | $536,650 | $536,650 |
| 2016 | $383,009 | $130,000 | $0 | $513,009 | $513,009 |
| 2015 | $387,736 | $130,000 | $0 | $517,736 | $517,736 |
| 2014 | $392,465 | $100,000 | $0 | $492,465 | $492,465 |
| 2013 | $397,195 | $102,000 | $0 | $499,195 | $499,195 |
| 2012 | $401,923 | $102,000 | $0 | $503,923 | $503,923 |
| 2011 | $406,650 | $120,000 | $0 | $526,650 | $526,650 |
| 2010 | $428,570 | $120,000 | $0 | $548,570 | $548,570 |
| 2009 | $446,917 | $130,000 | $0 | $576,917 | $576,917 |
| 2008 | $452,756 | $118,000 | $0 | $570,756 | $570,756 |
| 2007 | $458,123 | $89,500 | $0 | $547,623 | $547,623 |
Deed and Sales History
| 1 | 09/06/2024 | WD | Warranty Deed | LANAKILA, NEDRRA | GARDNER TTEE, SCOTT A | | | $1,045,000.00 | 61315 | 4577279 |
| 2 | 03/23/2022 | WD | Warranty Deed | GARNHART TRUSTEE, GORDON D | LANAKILA, NEDRRA | | | $995,000.00 | 52779 | 4543672 |
| 3 | 06/06/2017 | QCD | Quit Claim Deed | GARNHART, GORDON & SHIRLEY | GARNHART TRUSTEE, GORDON D | | | $0.00 | 29627 | 4423850 |
| 4 | 12/01/1996 | QCD | Quit Claim Deed | PREDER, GARY E | GARNHART, GORDON & | | | $0.00 | 64360 | 96021344 |
| 5 | 01/01/1900 | OTHER | Other - Misc. Documents | Unknown | PREDER, GARY E | | | $0.00 | 40225 | 94001378 |
Payout Agreement
| No payout information available.. |