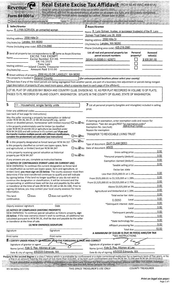
Property
Account |
| Property ID: | 74699 | Abbreviated Legal Description: | 24-2 - IN GL8:BG NW CR SEC 7 S88*E559.59' S390' TPB S391' S88*E558.5' N390.99' N88*W559.04' TPB TGW & SUB EZ |
| Geographic ID: | R23107-469-0820 | Agent Code: | |
| Type: | Real | | |
| Tax Area: | 312 - APPRAISER-Cpvl Schl Dist, outside Cpvl, improved, greater than 1 acre | Land Use Code | 11 |
| Open Space: | N | DFL | N |
| Historic Property: | N | Remodel Property: | N |
| Multi-Family Redevelopment: | N | | |
| Township: | 31 | Section: | 07 |
| Range: | R2 |
Location |
| Address: | 447 STILLMEADOW RD COUPEVILLE, WA 98239 | Mapsco: | |
| Neighborhood: | Cycle 2 | Map ID: | 464 |
| Neighborhood CD: | 2 |
Owner |
| Name: | THORSON, TODD THOMAS | Owner ID: | 290023 |
| Mailing Address: | 447 STILLMEADOW RD COUPEVILLE, WA 98239 | % Ownership: | 100.0000000000% |
| | | Exemptions: | |
Taxes and Assessment Details
Values
| (+) Improvement Homesite Value: | + | $0 | |
| (+) Improvement Non-Homesite Value: | + | $427,225 | |
| (+) Land Homesite Value: | + | $0 | |
| (+) Land Non-Homesite Value: | + | $340,100 | |
| (+) Curr Use (HS): | + | $0 | $0 |
| (+) Curr Use (NHS): | + | $0 | $0 |
| | | -------------------------- | |
| (=) Market Value: | = | $767,325 | |
| (–) Productivity Loss: | – | $0 | |
| | | -------------------------- | |
| (=) Subtotal: | = | $767,325 | |
| (+) Senior Appraised Value: | + | $0 | |
| (+) Non-Senior Appraised Value: | + | $767,325 | |
| | | -------------------------- | |
| (=) Total Appraised Value: | = | $767,325 | |
| (–) Senior Exemption Loss: | – | $0 | |
| (–) Exemption Loss: | – | $0 | |
| | | -------------------------- | |
| (=) Taxable Value: | = | $767,325 | |
Taxing Jurisdiction
| Owner: | THORSON, TODD THOMAS | | |
| % Ownership: | 100.0000000000% | | |
| Total Value: | $767,325 | | |
| Tax Area: | 312 - APPRAISER-Cpvl Schl Dist, outside Cpvl, improved, greater than 1 acre |
| CF | Conservation Futures | 0.0316035091 | $767,325 | $767,325 | $24.25 | | |
| CEM2 | Cemetery #2 | 0.0095056933 | $767,325 | $767,325 | $7.29 | | |
| FIRE5 | Fire & Rescue Dist #5 C Whidbey GEN | 1.2008080668 | $767,325 | $767,325 | $921.41 | | |
| FIRE5BOND | Fire & Rescue Dist #5 C Whidbey BOND | 0.1400090713 | $767,325 | $767,325 | $107.43 | | |
| HOBOND | Hospital BOND | 0.1910887512 | $767,325 | $767,325 | $146.63 | | |
| HOGEN | Hospital GEN | 0.3902502903 | $767,325 | $767,325 | $299.45 | | |
| CE | County Current Expense | 0.3708482477 | $767,325 | $767,325 | $284.56 | | |
| CR | County Roads | 0.4584763726 | $767,325 | $767,325 | $351.80 | | |
| ISLANDEMS | Hospital GEN (EMS) | 0.5000000000 | $767,325 | $767,325 | $383.66 | | |
| LIB | Library Sno-Isle GEN | 0.3153421757 | $767,325 | $767,325 | $241.97 | | |
| LIBCAP | Library Sno-Isle BOND (Cap Fac Imp Area) | 0.0543427938 | $767,325 | $767,325 | $41.70 | | |
| POCOUP | Port of Coupeville GEN | 0.1093371703 | $767,325 | $767,325 | $83.90 | | |
| POCOUPIDD | Port of Coupeville IDD | 0.3409740022 | $767,325 | $767,325 | $261.64 | | |
| COUPSDTECH | School 204 CP (TECH) | 0.7545480007 | $767,325 | $767,325 | $578.98 | | |
| SCH204MO | School 204 Enrichment | 0.6716186034 | $767,325 | $767,325 | $515.35 | | |
| ST | State School | 1.3035497053 | $767,325 | $767,325 | $1,000.25 | | |
| ST2 | State School Part 2 | 0.8169543533 | $767,325 | $767,325 | $626.87 | | |
| | Total Tax Rate: | 7.6592568070 | | | | | |
| | | | | Taxes w/Current Exemptions: | $5,877.14 | | |
| | | | | Taxes w/o Exemptions: | $5,877.14 | | |
Improvement / Building
| Improvement #1: | RESIDENTIAL | State Code: | Y | 1825.5 sqft | Value: | $427,225 |
| Bathrooms: | 2 | Bedrooms: | 2 | | Ceiling: | DRYWALL PAINTED | Cooling: | HEAT PUMP/CONV/V | | Exterior Wall/Cover: | CEMENT FIBER | Floor Covering: | CARPET/VINYL 60-40 | | Floor Structure: | WOOD W/SUBFLOOR | Foundation: | CONCRETE | | Interior Finish: | DRYWALL PAINT | Plumbing Fixture Cnt: | 11 | | Roof Slope: | 6" IN 12" | Roof Structure/Cover: | CJ ASPHALT |
|
| | Type | Description | Class CD | Sub Class CD | Year Built | Area |
| | BAS | BASE/MAIN FLOOR | 3 | 0 | 2022 | 1825.5 |
| | AGR | ATTACHED GARAGE | 3 | 0 | 2022 | 486.5 |
| | OWC | OPEN WOOD PORCH W/STEPS/ROOF/C | 3 | 0 | 2022 | 192.0 |
| | OWC | OPEN WOOD PORCH W/STEPS/ROOF/C | 3 | 0 | 2022 | 152.0 |
| | OWP | OPEN WOOD PORCH W/STEPS | 3 | 0 | 2022 | 130.0 |
| | OWP | OPEN WOOD PORCH W/STEPS | 3 | 0 | 2022 | 264.0 |
| | oGAR | GARAGE | 3 | 0 | 2025 | 512.0 |
Sketch
| No sketches available for this property. |
Property Image
Land
| 1 | HS | HOMESITE | 1.0000 | 43560.00 | 0.00 | 0.00 | 1.00 | $220,000 | $0 |
| 2 | 91 | UNDEVELOPED LAND-METES AND BOUNDS | 4.0200 | 175111.20 | 0.00 | 0.00 | 1.00 | $120,100 | $0 |
Roll Value History
| 2026 | N/A | N/A | N/A | N/A | N/A |
| 2025 | $427,225 | $340,100 | $0 | $767,325 | $767,325 |
| 2024 | $395,871 | $290,000 | $0 | $685,871 | $685,871 |
| 2023 | $403,068 | $270,000 | $0 | $673,068 | $673,068 |
| 2022 | $372,433 | $250,000 | $0 | $622,433 | $622,433 |
| 2021 | $20,000 | $130,000 | $0 | $150,000 | $150,000 |
| 2020 | $0 | $120,000 | $0 | $120,000 | $120,000 |
| 2019 | $0 | $100,000 | $0 | $100,000 | $100,000 |
| 2018 | $0 | $100,000 | $0 | $100,000 | $100,000 |
| 2017 | $0 | $100,000 | $0 | $100,000 | $100,000 |
| 2016 | $0 | $75,000 | $0 | $75,000 | $75,000 |
| 2015 | $0 | $100,400 | $0 | $100,400 | $100,400 |
| 2014 | $0 | $100,400 | $0 | $100,400 | $100,400 |
| 2013 | $0 | $100,400 | $0 | $100,400 | $100,400 |
| 2012 | $0 | $100,400 | $0 | $100,400 | $100,400 |
| 2011 | $0 | $100,400 | $0 | $100,400 | $100,400 |
| 2010 | $0 | $100,400 | $0 | $100,400 | $100,400 |
| 2009 | $0 | $122,990 | $0 | $122,990 | $122,990 |
| 2008 | $0 | $130,520 | $0 | $130,520 | $130,520 |
| 2007 | $0 | $115,460 | $0 | $115,460 | $115,460 |
Deed and Sales History
| 1 | 05/24/2019 | WD | Warranty Deed | MAIER TRUSTEE, ALBERT | THORSON, TODD THOMAS | | | $70,000.00 | 38766 | 4464466 |
| 2 | 11/17/2011 | QCD | Quit Claim Deed | MAIER, ALBERT | MAIER TRUSTEE, ALBERT | | | $0.00 | 6149 | 4304902 |
Payout Agreement
| No payout information available.. |