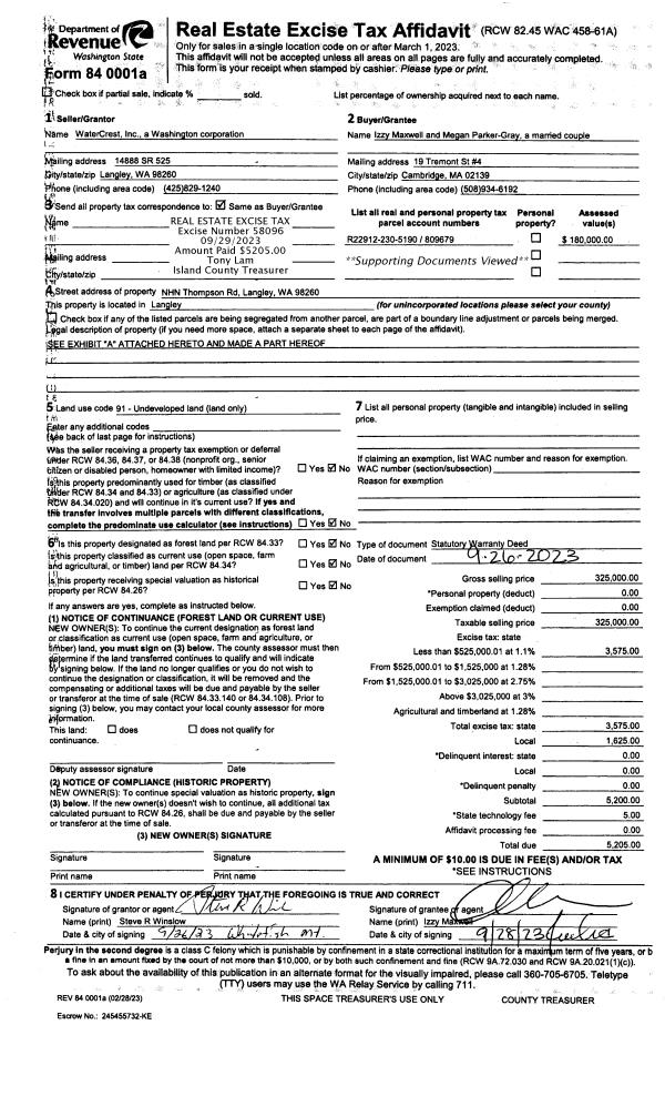
Property
Account |
| Property ID: | 747375 | Abbreviated Legal Description: | 1973 MARLETTE 14X72 LENGTH INCLUDES 8X12 TIPOUT VIN# 4270FKK13X30532 TPO #98581 FROM K-535460 |
| Geographic ID: | M91100000165-1 | Agent Code: | |
| Type: | Mobile Home | | |
| Tax Area: | 100 - APPRAISER-OH Schl Dist, in OH | Land Use Code | 11 |
| Open Space: | N | DFL | N |
| Historic Property: | N | Remodel Property: | N |
| Multi-Family Redevelopment: | N | | |
| Township: | | Section: | |
| Range: | |
Location |
| Address: | 700 NW CROSBY AVE # 165 OAK HARBOR, WA 98277 | Mapsco: | |
| Neighborhood: | Cycle 1 | Map ID: | |
| Neighborhood CD: | 1 |
Owner |
| Name: | OLSEN, REGINA M | Owner ID: | 305395 |
| Mailing Address: | 700 NW CROSBY AVE #165 OAK HARBOR, WA 98277 | % Ownership: | 100.0000000000% |
| | | Exemptions: | |
Taxes and Assessment Details
Values
| (+) Improvement Homesite Value: | + | $0 | |
| (+) Improvement Non-Homesite Value: | + | $8,850 | |
| (+) Land Homesite Value: | + | $0 | |
| (+) Land Non-Homesite Value: | + | $0 | |
| (+) Curr Use (HS): | + | $0 | $0 |
| (+) Curr Use (NHS): | + | $0 | $0 |
| | | -------------------------- | |
| (=) Market Value: | = | $8,850 | |
| (–) Productivity Loss: | – | $0 | |
| | | -------------------------- | |
| (=) Subtotal: | = | $8,850 | |
| (+) Senior Appraised Value: | + | $0 | |
| (+) Non-Senior Appraised Value: | + | $8,850 | |
| | | -------------------------- | |
| (=) Total Appraised Value: | = | $8,850 | |
| (–) Senior Exemption Loss: | – | $0 | |
| (–) Exemption Loss: | – | $0 | |
| | | -------------------------- | |
| (=) Taxable Value: | = | $8,850 | |
Taxing Jurisdiction
| Owner: | OLSEN, REGINA M | | |
| % Ownership: | 100.0000000000% | | |
| Total Value: | $8,850 | | |
| Tax Area: | 100 - APPRAISER-OH Schl Dist, in OH |
| CF | Conservation Futures | 0.0316035091 | $8,850 | $8,850 | $0.28 | | |
| CEM1 | Cemetery #1 | 0.0040320932 | $8,850 | $8,850 | $0.04 | | |
| COH | City of Oak Harbor | 2.3001546061 | $8,850 | $8,850 | $20.36 | | |
| OAKBOND | City of Oak Harbor BOND | 0.1926904192 | $8,850 | $8,850 | $1.71 | | |
| HOBOND | Hospital BOND | 0.1910887512 | $8,850 | $8,850 | $1.69 | | |
| HOGEN | Hospital GEN | 0.3902502903 | $8,850 | $8,850 | $3.45 | | |
| CE | County Current Expense | 0.3708482477 | $8,850 | $8,850 | $3.28 | | |
| ISLANDEMS | Hospital GEN (EMS) | 0.5000000000 | $8,850 | $8,850 | $4.43 | | |
| LIB | Library Sno-Isle GEN | 0.3153421757 | $8,850 | $8,850 | $2.79 | | |
| NWHIDPRMT | P & R N Whidbey GEN | 0.2004466701 | $8,850 | $8,850 | $1.77 | | |
| SCH201MO | School 201 Enrichment | 1.8559231640 | $8,850 | $8,850 | $16.42 | | |
| ST | State School | 1.3035497053 | $8,850 | $8,850 | $11.54 | | |
| ST2 | State School Part 2 | 0.8169543533 | $8,850 | $8,850 | $7.23 | | |
| | Total Tax Rate: | 8.4728839852 | | | | | |
| | | | | Taxes w/Current Exemptions: | $74.99 | | |
| | | | | Taxes w/o Exemptions: | $74.99 | | |
Improvement / Building
| Improvement #1: | MANUFACTURED HOME | State Code: | Y | 1008.0 sqft | Value: | $8,850 |
| Bathrooms: | 0 | Bedrooms: | 0 | | Ceiling: | PLASTER PAINTED | Cooling: | EVAP NO DUCT | | Exterior Wall/Cover: | VINYL | Floor Covering: | CARPET 100% | | Floor Structure: | SLAB ON GRADE | Foundation: | SLAB | | Heating: | FHA ELECTRIC | Interior Finish: | PLASTER | | Plumbing Fixture Cnt: | 1 | Roof Slope: | FLAT | | Roof Structure/Cover: | CJ ALUMINIUM HEAVY |   |   |
|
Sketch
Property Image
Land
No land segments exist for this property.
Roll Value History
| 2026 | N/A | N/A | N/A | N/A | N/A |
| 2025 | $8,850 | $0 | $0 | $8,850 | $8,850 |
| 2024 | $8,850 | $0 | $0 | $8,850 | $8,850 |
| 2023 | $6,542 | $0 | $0 | $6,542 | $6,542 |
| 2022 | $6,516 | $0 | $0 | $6,516 | $6,516 |
| 2021 | $6,181 | $0 | $0 | $6,181 | $6,181 |
| 2020 | $6,250 | $0 | $0 | $6,250 | $6,250 |
| 2019 | $5,318 | $0 | $0 | $5,318 | $5,318 |
| 2018 | $5,515 | $0 | $0 | $5,515 | $5,515 |
| 2017 | $3,395 | $0 | $0 | $3,395 | $3,395 |
| 2016 | $3,703 | $0 | $0 | $3,703 | $3,703 |
| 2015 | $3,858 | $0 | $0 | $3,858 | $3,858 |
| 2014 | $4,166 | $0 | $0 | $4,166 | $4,166 |
| 2013 | $4,321 | $0 | $0 | $4,321 | $4,321 |
| 2012 | $4,629 | $0 | $0 | $4,629 | $4,629 |
| 2011 | $8,986 | $0 | $0 | $8,986 | $8,986 |
| 2010 | $9,035 | $0 | $0 | $9,035 | $9,035 |
| 2009 | $10,757 | $0 | $0 | $10,757 | $10,757 |
| 2008 | $10,928 | $0 | $0 | $10,928 | $10,928 |
| 2007 | $11,113 | $0 | $0 | $11,113 | $11,113 |
Deed and Sales History
| 1 | 08/09/2022 | MANHOME | Manufactured Home | HUSSEY, DONYEL | OLSEN, REGINA M | | | $0.00 | 54078 | |
| 2 | 03/15/2007 | OTHER | Other - Misc. Documents | PEACH, MICHAEL W | HUSSEY, DONYEL | | | $7,250.00 | 71150 | 0 |
| 3 | 01/11/2006 | OTHER | Other - Misc. Documents | OLBRANTZ, EVANGELINE O | PEACH, MICHAEL W | | | $8,500.00 | 60130 | 0 |
| 4 | 01/31/2003 | WD | Warranty Deed | PRICE, KAREN | OLBRANTZ, EVANGELINE O | | | $8,000.00 | 30376 | 0 |
| 5 | 05/21/2001 | OTHER | Other - Misc. Documents | Unknown | STINCHCOMB, BRADLEY T | | | $8,500.00 | 11770 | 0 |
| 6 | 01/01/1997 | WD | Warranty Deed | STINCHCOMB, BRADLEY T | PRICE, KAREN | | | $6,800.00 | 70308 | 0 |
Payout Agreement
| No payout information available.. |