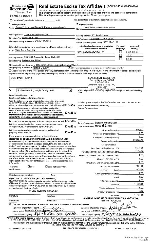
Property
Account |
| Property ID: | 747473 | Abbreviated Legal Description: | LOT 3 SP 457-95.23432.189-0270 V3 SP P122 AF#96019587 |
| Geographic ID: | R23432-156-0410 | Agent Code: | |
| Type: | Real | | |
| Tax Area: | 112 - APPRAISER-OH Schl Dist, outside OH, improved, greater than 1 acre | Land Use Code | 11 |
| Open Space: | N | DFL | N |
| Historic Property: | N | Remodel Property: | N |
| Multi-Family Redevelopment: | N | | |
| Township: | 34 | Section: | 32 |
| Range: | R2 |
Location |
| Address: | 437 CEDAR WAY OAK HARBOR, WA 98277 | Mapsco: | |
| Neighborhood: | Cycle 6 | Map ID: | 673 |
| Neighborhood CD: | 6 |
Owner |
| Name: | SEDA, LEE | Owner ID: | 184581 |
| Mailing Address: | NANCY SEDA PO BOX 1755 OAK HARBOR, WA 98277-1755 | % Ownership: | 100.0000000000% |
| | | Exemptions: | |
Taxes and Assessment Details
Values
| (+) Improvement Homesite Value: | + | $0 | |
| (+) Improvement Non-Homesite Value: | + | $407,919 | |
| (+) Land Homesite Value: | + | $0 | |
| (+) Land Non-Homesite Value: | + | $250,000 | |
| (+) Curr Use (HS): | + | $0 | $0 |
| (+) Curr Use (NHS): | + | $0 | $0 |
| | | -------------------------- | |
| (=) Market Value: | = | $657,919 | |
| (–) Productivity Loss: | – | $0 | |
| | | -------------------------- | |
| (=) Subtotal: | = | $657,919 | |
| (+) Senior Appraised Value: | + | $0 | |
| (+) Non-Senior Appraised Value: | + | $657,919 | |
| | | -------------------------- | |
| (=) Total Appraised Value: | = | $657,919 | |
| (–) Senior Exemption Loss: | – | $0 | |
| (–) Exemption Loss: | – | $0 | |
| | | -------------------------- | |
| (=) Taxable Value: | = | $657,919 | |
Taxing Jurisdiction
| Owner: | SEDA, LEE | | |
| % Ownership: | 100.0000000000% | | |
| Total Value: | $657,919 | | |
| Tax Area: | 112 - APPRAISER-OH Schl Dist, outside OH, improved, greater than 1 acre |
| CF | Conservation Futures | 0.0316035091 | $657,919 | $657,919 | $20.79 | | |
| CEM1 | Cemetery #1 | 0.0040320932 | $657,919 | $657,919 | $2.65 | | |
| FIRE2 | Fire & Rescue Dist #2 N Whidbey GEN | 0.5475949600 | $657,919 | $657,919 | $360.27 | | |
| HOBOND | Hospital BOND | 0.1910887512 | $657,919 | $657,919 | $125.72 | | |
| HOGEN | Hospital GEN | 0.3902502903 | $657,919 | $657,919 | $256.75 | | |
| CE | County Current Expense | 0.3708482477 | $657,919 | $657,919 | $243.99 | | |
| CR | County Roads | 0.4584763726 | $657,919 | $657,919 | $301.64 | | |
| ISLANDEMS | Hospital GEN (EMS) | 0.5000000000 | $657,919 | $657,919 | $328.96 | | |
| LIB | Library Sno-Isle GEN | 0.3153421757 | $657,919 | $657,919 | $207.47 | | |
| NWHIDPRMT | P & R N Whidbey GEN | 0.2004466701 | $657,919 | $657,919 | $131.88 | | |
| SCH201MO | School 201 Enrichment | 1.8559231640 | $657,919 | $657,919 | $1,221.05 | | |
| ST | State School | 1.3035497053 | $657,919 | $657,919 | $857.63 | | |
| ST2 | State School Part 2 | 0.8169543533 | $657,919 | $657,919 | $537.49 | | |
| | Total Tax Rate: | 6.9861102925 | | | | | |
| | | | | Taxes w/Current Exemptions: | $4,596.29 | | |
| | | | | Taxes w/o Exemptions: | $4,596.29 | | |
Improvement / Building
| Improvement #1: | RESIDENTIAL | State Code: | Y | 2349.9 sqft | Value: | $407,919 |
| Bathrooms: | 2.5 | Bedrooms: | 3 | | Ceiling: | DRYWALL PAINTED | Exterior Wall/Cover: | CEMENT FIBER | | Floor Covering: | HARDWOOD/CARP 20-80 | Floor Structure: | WOOD W/SUBFLOOR | | Foundation: | CONCRETE | Heating: | FHA GAS | | Interior Finish: | DRYWALL PAINT | Plumbing Fixture Cnt: | 11 | | Roof Slope: | 6" IN 12" | Roof Structure/Cover: | CJ ALUMINIUM HEAVY |
|
| | Type | Description | Class CD | Sub Class CD | Year Built | Area |
| | BAS | BASE/MAIN FLOOR | 3 | 0 | 2002 | 1422.7 |
| | AGR | ATTACHED GARAGE | 3 | 0 | 2002 | 713.6 |
| | UPS | UPPER STORY | 3 | 0 | 2002 | 927.2 |
| | OWP | OPEN WOOD PORCH W/STEPS | 3 | 0 | 2002 | 27.6 |
| | OWP | OPEN WOOD PORCH W/STEPS | 3 | 0 | 2002 | 43.2 |
| | OWP | OPEN WOOD PORCH W/STEPS | 3 | 0 | 2002 | 25.2 |
| | OWC | OPEN WOOD PORCH W/STEPS/ROOF/C | 3 | 0 | 2002 | 134.4 |
| | DGR | DETACHED GARAGE | 3 | 0 | 2002 | 336.0 |
Sketch
Property Image
Land
| 1 | 18 | AC (02.01-03.00) | 2.6400 | 114998.40 | 0.00 | 0.00 | 1.00 | $250,000 | $0 |
Roll Value History
| 2026 | N/A | N/A | N/A | N/A | N/A |
| 2025 | $407,919 | $250,000 | $0 | $657,919 | $657,919 |
| 2024 | $412,939 | $230,000 | $0 | $642,939 | $642,939 |
| 2023 | $417,960 | $220,000 | $0 | $637,960 | $637,960 |
| 2022 | $373,926 | $210,000 | $0 | $583,926 | $583,926 |
| 2021 | $329,104 | $160,000 | $0 | $489,104 | $489,104 |
| 2020 | $321,278 | $130,000 | $0 | $451,278 | $451,278 |
| 2019 | $249,016 | $200,000 | $0 | $449,016 | $449,016 |
| 2018 | $249,747 | $170,000 | $0 | $419,747 | $419,747 |
| 2017 | $251,209 | $120,000 | $0 | $371,209 | $371,209 |
| 2016 | $254,977 | $120,000 | $0 | $374,977 | $374,977 |
| 2015 | $258,802 | $100,000 | $0 | $358,802 | $358,802 |
| 2014 | $262,684 | $75,000 | $0 | $337,684 | $337,684 |
| 2013 | $266,624 | $75,000 | $0 | $341,624 | $341,624 |
| 2012 | $288,091 | $102,000 | $0 | $390,091 | $390,091 |
| 2011 | $291,329 | $120,000 | $0 | $411,329 | $411,329 |
| 2010 | $313,381 | $120,000 | $0 | $433,381 | $433,381 |
| 2009 | $326,572 | $130,000 | $0 | $456,572 | $456,572 |
| 2008 | $333,770 | $118,000 | $0 | $451,770 | $451,770 |
| 2007 | $340,821 | $89,500 | $0 | $430,321 | $430,321 |
Deed and Sales History
| 1 | 12/15/2000 | WD | Warranty Deed | BLYTHER, DAVID H | SEDA, LEE | | | $44,000.00 | 4869 | 20022525 |
| 2 | 06/01/1997 | QCD | Quit Claim Deed | BLYTHER, DAVID H | BLYTHER, DAVID H | | | $0.00 | 73676 | 97017459 |
| 3 | 01/01/1900 | OTHER | Other - Misc. Documents | Unknown | BLYTHER, DAVID H | | | $0.00 | 0 | 0 |
Payout Agreement
| No payout information available.. |