Property
Account |
| Property ID: | 747507 | Abbreviated Legal Description: | PATTONS 1ST ADD W15'OF S70' LOT 35 & S70'OF |
| Geographic ID: | S7690-01-00036-2 | Agent Code: | |
| Type: | Real | | |
| Tax Area: | 100 - APPRAISER-OH Schl Dist, in OH | Land Use Code | 11 |
| Open Space: | N | DFL | N |
| Historic Property: | N | Remodel Property: | N |
| Multi-Family Redevelopment: | N | | |
| Township: | | Section: | |
| Range: | |
Location |
| Address: | 540 SE ELY ST OAK HARBOR, WA 98277 | Mapsco: | |
| Neighborhood: | Cycle 1 | Map ID: | 88 |
| Neighborhood CD: | 1 |
Owner |
| Name: | MONTANA, BRIAN M | Owner ID: | 258750 |
| Mailing Address: | 540 SE ELY ST OAK HARBOR, WA 98277 | % Ownership: | 100.0000000000% |
| | | Exemptions: | |
Taxes and Assessment Details
Values
| (+) Improvement Homesite Value: | + | $0 | |
| (+) Improvement Non-Homesite Value: | + | $207,102 | |
| (+) Land Homesite Value: | + | $0 | |
| (+) Land Non-Homesite Value: | + | $180,000 | |
| (+) Curr Use (HS): | + | $0 | $0 |
| (+) Curr Use (NHS): | + | $0 | $0 |
| | | -------------------------- | |
| (=) Market Value: | = | $387,102 | |
| (–) Productivity Loss: | – | $0 | |
| | | -------------------------- | |
| (=) Subtotal: | = | $387,102 | |
| (+) Senior Appraised Value: | + | $0 | |
| (+) Non-Senior Appraised Value: | + | $387,102 | |
| | | -------------------------- | |
| (=) Total Appraised Value: | = | $387,102 | |
| (–) Senior Exemption Loss: | – | $0 | |
| (–) Exemption Loss: | – | $0 | |
| | | -------------------------- | |
| (=) Taxable Value: | = | $387,102 | |
Taxing Jurisdiction
| Owner: | MONTANA, BRIAN M | | |
| % Ownership: | 100.0000000000% | | |
| Total Value: | $387,102 | | |
| Tax Area: | 100 - APPRAISER-OH Schl Dist, in OH |
| CF | Conservation Futures | 0.0316035091 | $387,102 | $387,102 | $12.23 | | |
| CEM1 | Cemetery #1 | 0.0040320932 | $387,102 | $387,102 | $1.56 | | |
| COH | City of Oak Harbor | 2.3001546061 | $387,102 | $387,102 | $890.39 | | |
| OAKBOND | City of Oak Harbor BOND | 0.1926904192 | $387,102 | $387,102 | $74.59 | | |
| HOBOND | Hospital BOND | 0.1910887512 | $387,102 | $387,102 | $73.97 | | |
| HOGEN | Hospital GEN | 0.3902502903 | $387,102 | $387,102 | $151.07 | | |
| CE | County Current Expense | 0.3708482477 | $387,102 | $387,102 | $143.56 | | |
| ISLANDEMS | Hospital GEN (EMS) | 0.5000000000 | $387,102 | $387,102 | $193.55 | | |
| LIB | Library Sno-Isle GEN | 0.3153421757 | $387,102 | $387,102 | $122.07 | | |
| NWHIDPRMT | P & R N Whidbey GEN | 0.2004466701 | $387,102 | $387,102 | $77.59 | | |
| SCH201MO | School 201 Enrichment | 1.8559231640 | $387,102 | $387,102 | $718.43 | | |
| ST | State School | 1.3035497053 | $387,102 | $387,102 | $504.61 | | |
| ST2 | State School Part 2 | 0.8169543533 | $387,102 | $387,102 | $316.24 | | |
| | Total Tax Rate: | 8.4728839852 | | | | | |
| | | | | Taxes w/Current Exemptions: | $3,279.86 | | |
| | | | | Taxes w/o Exemptions: | $3,279.86 | | |
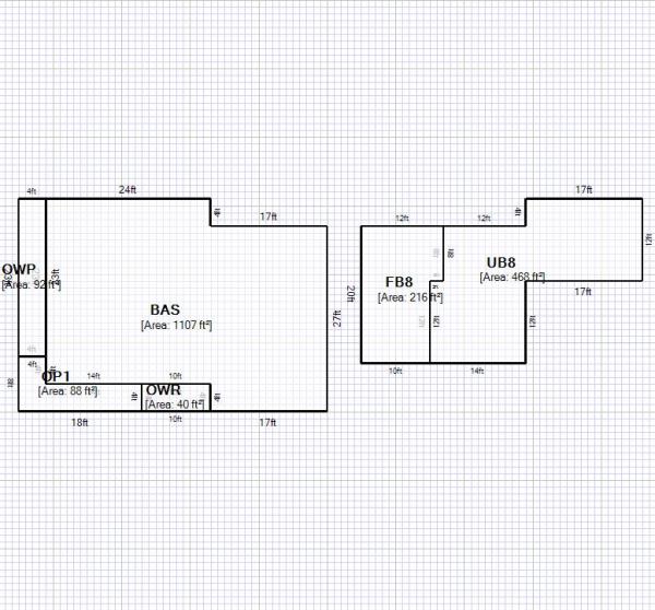
Improvement / Building
| Improvement #1: | RESIDENTIAL | State Code: | Y | 1372.0 sqft | Value: | $207,102 |
| Bathrooms: | 1.5 | Bedrooms: | 2 | | Ceiling: | DRYWALL PAINTED | Exterior Wall/Cover: | WOOD SIDING | | Floor Covering: | CARPET/VINYL 80-20 | Floor Structure: | WOOD W/SUBFLOOR | | Foundation: | CONCRETE | Heating: | BASEBOARD ELECTRIC | | Interior Finish: | DRYWALL PAINT | Plumbing Fixture Cnt: | 8 | | Roof Slope: | 5" IN 12" | Roof Structure/Cover: | CJ ASPHALT |
|
| | Type | Description | Class CD | Sub Class CD | Year Built | Area |
| | BAS | BASE/MAIN FLOOR | 3 | 0 | 1952 | 1372.0 |
| | OP1 | OPEN PORCH SLAB | 3 | 0 | 1952 | 220.0 |
| | OP1 | OPEN PORCH SLAB | 3 | 0 | 1952 | 322.0 |
| | OCP | OPEN CARPORT | 3 | 0 | 1952 | 240.0 |
| | OP4 | OPEN PORCH W/CEILING-ROOF | 3 | 0 | 1952 | 35.0 |
Sketch
Property Image
Land
| 1 | 13 | SQ (06001-08000) | 0.0000 | 0.00 | 0.00 | 0.00 | 1.00 | $180,000 | $0 |
Roll Value History
| 2026 | N/A | N/A | N/A | N/A | N/A |
| 2025 | $207,102 | $180,000 | $0 | $387,102 | $387,102 |
| 2024 | $214,360 | $170,000 | $0 | $384,360 | $384,360 |
| 2023 | $204,663 | $170,000 | $0 | $374,663 | $374,663 |
| 2022 | $187,893 | $160,000 | $0 | $347,893 | $347,893 |
| 2021 | $165,609 | $120,000 | $0 | $285,609 | $285,609 |
| 2020 | $161,628 | $100,000 | $0 | $261,628 | $261,628 |
| 2019 | $117,264 | $140,000 | $0 | $257,264 | $257,264 |
| 2018 | $117,649 | $125,000 | $0 | $242,649 | $242,649 |
| 2017 | $104,861 | $110,000 | $0 | $214,861 | $214,861 |
| 2016 | $106,359 | $90,000 | $0 | $196,359 | $196,359 |
| 2015 | $107,857 | $70,000 | $0 | $177,857 | $177,857 |
| 2014 | $109,354 | $55,000 | $0 | $164,354 | $164,354 |
| 2013 | $110,853 | $55,000 | $0 | $165,853 | $165,853 |
| 2012 | $112,351 | $60,000 | $0 | $172,351 | $172,351 |
| 2011 | $102,474 | $50,000 | $0 | $152,474 | $152,474 |
| 2010 | $110,200 | $50,000 | $0 | $160,200 | $160,200 |
| 2009 | $114,889 | $60,000 | $0 | $174,889 | $174,889 |
| 2008 | $114,889 | $72,000 | $0 | $186,889 | $186,889 |
| 2007 | $116,308 | $72,000 | $0 | $188,308 | $188,308 |
Deed and Sales History
| 1 | 07/23/2012 | WD | Warranty Deed | GALLAWAY, JEANNE B | MONTANA, BRIAN M | | | $164,500.00 | 8370 | 4320065 |
| 2 | 05/05/2003 | QCD | Quit Claim Deed | BAILEY, BLAINE E | GALLAWAY, JEANNE B | | | $0.00 | 31902 | 4057904 |
| 3 | 01/01/1900 | OTHER | Other - Misc. Documents | Unknown | BAILEY, BLAINE E | | | $0.00 | 0 | 0 |
Payout Agreement
| No payout information available.. |