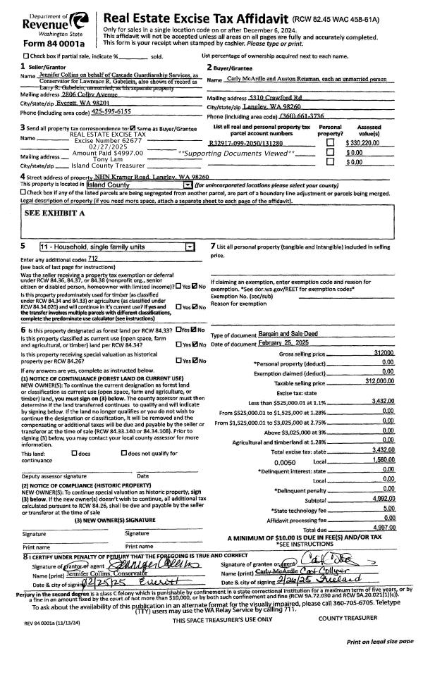
Property
Account |
| Property ID: | 747785 | Abbreviated Legal Description: | LOT 1 SP 12-93.23102.384-0690 V3 SP P125 AF#96020431 |
| Geographic ID: | R23102-384-0320 | Agent Code: | |
| Type: | Real | | |
| Tax Area: | 512 - APPRAISER-Stan/Cam Schl Dist, improved, greater than 1 acre | Land Use Code | 11 |
| Open Space: | N | DFL | N |
| Historic Property: | N | Remodel Property: | N |
| Multi-Family Redevelopment: | N | | |
| Township: | 31 | Section: | 02 |
| Range: | R2 |
Location |
| Address: | 111 S WEST CAMANO DR CAMANO ISLAND, WA 98282 | Mapsco: | |
| Neighborhood: | Cycle 5 | Map ID: | 455 |
| Neighborhood CD: | 5 |
Owner |
| Name: | CLEMS, LLC | Owner ID: | 314086 |
| Mailing Address: | PO BOX 432 SILVANA, WA 98287 | % Ownership: | 100.0000000000% |
| | | Exemptions: | |
Taxes and Assessment Details
Values
| (+) Improvement Homesite Value: | + | $0 | |
| (+) Improvement Non-Homesite Value: | + | $557,437 | |
| (+) Land Homesite Value: | + | $0 | |
| (+) Land Non-Homesite Value: | + | $330,000 | |
| (+) Curr Use (HS): | + | $0 | $0 |
| (+) Curr Use (NHS): | + | $0 | $0 |
| | | -------------------------- | |
| (=) Market Value: | = | $887,437 | |
| (–) Productivity Loss: | – | $0 | |
| | | -------------------------- | |
| (=) Subtotal: | = | $887,437 | |
| (+) Senior Appraised Value: | + | $0 | |
| (+) Non-Senior Appraised Value: | + | $887,437 | |
| | | -------------------------- | |
| (=) Total Appraised Value: | = | $887,437 | |
| (–) Senior Exemption Loss: | – | $0 | |
| (–) Exemption Loss: | – | $0 | |
| | | -------------------------- | |
| (=) Taxable Value: | = | $887,437 | |
Taxing Jurisdiction
| Owner: | CLEMS, LLC | | |
| % Ownership: | 100.0000000000% | | |
| Total Value: | $887,437 | | |
| Tax Area: | 512 - APPRAISER-Stan/Cam Schl Dist, improved, greater than 1 acre |
| CF | Conservation Futures | 0.0316035091 | $887,437 | $887,437 | $28.05 | | |
| EMS1 | Fire & Rescue Dist #1 Camano GEN (EMS) | 0.3677864386 | $887,437 | $887,437 | $326.39 | | |
| FIRE1 | Fire & Rescue Dist #1 Camano GEN | 1.2502910536 | $887,437 | $887,437 | $1,109.55 | | |
| FIRE1BOND | Fire & Rescue Dist #1 Camano BOND | 0.1570001679 | $887,437 | $887,437 | $139.33 | | |
| CE | County Current Expense | 0.3708482477 | $887,437 | $887,437 | $329.10 | | |
| CR | County Roads | 0.4584763726 | $887,437 | $887,437 | $406.87 | | |
| LCIB | Library Sno-Isle BOND (Camano Island) | 0.0396325772 | $887,437 | $887,437 | $35.17 | | |
| LIB | Library Sno-Isle GEN | 0.3153421757 | $887,437 | $887,437 | $279.85 | | |
| SCH205_401 | School 205-401 Enrichment | 1.2698420524 | $887,437 | $887,437 | $1,126.90 | | |
| SCH205BOND | School 205-401 BOND | 0.9396497583 | $887,437 | $887,437 | $833.88 | | |
| ST | State School | 1.3035497053 | $887,437 | $887,437 | $1,156.82 | | |
| ST2 | State School Part 2 | 0.8169543533 | $887,437 | $887,437 | $725.00 | | |
| | Total Tax Rate: | 7.3209764117 | | | | | |
| | | | | Taxes w/Current Exemptions: | $6,496.91 | | |
| | | | | Taxes w/o Exemptions: | $6,496.91 | | |
Improvement / Building
| Improvement #1: | RESIDENTIAL | State Code: | Y | 1988.0 sqft | Value: | $274,342 |
| Bathrooms: | 3 | Bedrooms: | 3 | | Ceiling: | DRYWALL PAINTED | Cooling: | HEAT PUMP/CONV/V | | Exterior Wall/Cover: | CONCRETE BLOCK | Floor Covering: | HARDWOOD/CARP 80-20 | | Floor Structure: | WOOD W/SUBFLOOR | Foundation: | CONCRETE | | Interior Finish: | DRYWALL PAINT | Plumbing Fixture Cnt: | 12 | | Roof Slope: | 5" IN 12" | Roof Structure/Cover: | CJ ASPHALT |
|
| | Type | Description | Class CD | Sub Class CD | Year Built | Area |
| | BAS | BASE/MAIN FLOOR | 3 | 0 | 1975 | 1988.0 |
| | OP4 | OPEN PORCH W/CEILING-ROOF | 3 | 0 | 1975 | 36.0 |
| | ENP | ENCLOSED PORCH | 3 | 0 | 1975 | 252.0 |
| Improvement #2: | RESIDENTIAL | State Code: | Y | 800.0 sqft | Value: | $165,332 |
| Bathrooms: | 1 | Bedrooms: | 1 | | Ceiling: | DRYWALL PAINTED | Exterior Wall/Cover: | PLY/HARDBOARD T-111 | | Floor Covering: | HARDWOOD/CARP 20-80 | Floor Structure: | WOOD W/SUBFLOOR | | Foundation: | CONCRETE | Heating: | BASEBOARD ELECTRIC | | Interior Finish: | DRYWALL PAINT | Plumbing Fixture Cnt: | 6 | | Roof Slope: | 5" IN 12" | Roof Structure/Cover: | CJ CONCRETE TILE |
|
| | Type | Description | Class CD | Sub Class CD | Year Built | Area |
| | BAS | BASE/MAIN FLOOR | 3 | 0 | 1975 | 800.0 |
| | BIG | BUILT IN GARAGE | 3 | 0 | 1975 | 800.0 |
| | CPD | OPEN CARPORT DIRT FLOOR | 3 | 0 | 1975 | 960.0 |
| | OWP | OPEN WOOD PORCH W/STEPS | 3 | 0 | 1975 | 88.0 |
| Improvement #3: | RESIDENTIAL | State Code: | Y | 752.0 sqft | Value: | $117,763 |
| Bathrooms: | 1 | Bedrooms: | 1 | | Ceiling: | TONGUE & GROOVE | Exterior Wall/Cover: | PLY/HARDBOARD T-111 | | Floor Covering: | CARPET/VINYL 60-40 | Floor Structure: | WOOD W/SUBFLOOR | | Foundation: | CONCRETE | Heating: | FHA ELECTRIC | | Interior Finish: | DRYWALL PAINT | Plumbing Fixture Cnt: | 6 | | Roof Slope: | 4" IN 12" | Roof Structure/Cover: | CJ ASPHALT |
|
| | Type | Description | Class CD | Sub Class CD | Year Built | Area |
| | BAS | BASE/MAIN FLOOR | 3 | 0 | 1975 | 752.0 |
| | OWR | OPEN WOOD PORCH W/STEPS/ROOF | 3 | 0 | 1975 | 54.0 |
Sketch
Property Image
Land
| 1 | 32 | AC (03.01-09.99) | 4.9000 | 0.00 | 0.00 | 0.00 | 1.00 | $330,000 | $0 |
Roll Value History
| 2026 | N/A | N/A | N/A | N/A | N/A |
| 2025 | $557,437 | $330,000 | $0 | $887,437 | $887,437 |
| 2024 | $569,071 | $300,000 | $0 | $869,071 | $869,071 |
| 2023 | $577,462 | $290,000 | $0 | $867,462 | $867,462 |
| 2022 | $530,496 | $290,000 | $0 | $820,496 | $820,496 |
| 2021 | $378,285 | $190,000 | $0 | $568,285 | $568,285 |
| 2020 | $369,378 | $160,000 | $0 | $529,378 | $529,378 |
| 2019 | $272,533 | $230,000 | $0 | $502,533 | $502,533 |
| 2018 | $273,488 | $190,000 | $0 | $463,488 | $463,488 |
| 2017 | $274,274 | $150,000 | $0 | $424,274 | $424,274 |
| 2016 | $278,077 | $150,000 | $0 | $428,077 | $428,077 |
| 2015 | $255,662 | $109,760 | $0 | $365,422 | $365,422 |
| 2014 | $259,483 | $109,760 | $0 | $369,243 | $369,243 |
| 2013 | $263,305 | $109,760 | $0 | $373,065 | $373,065 |
| 2012 | $267,128 | $109,760 | $0 | $376,888 | $376,888 |
| 2011 | $270,950 | $137,200 | $0 | $408,150 | $408,150 |
| 2010 | $295,761 | $137,200 | $0 | $432,961 | $432,961 |
| 2009 | $310,468 | $156,800 | $0 | $467,268 | $467,268 |
| 2008 | $314,791 | $210,700 | $0 | $525,491 | $525,491 |
| 2007 | $319,152 | $144,550 | $0 | $463,702 | $463,702 |
Deed and Sales History
| 1 | 09/27/2024 | QCD | Quit Claim Deed | AALMO, CODY JOHN WILLIAM | CLEMS, LLC | | | $0.00 | 61460 | 4577792 |
| 2 | 09/27/2024 | QCD | Quit Claim Deed | ESTATE OF BRUCE AALMO | AALMO, CODY JOHN WILLIAM | | | $0.00 | 61459 | 4577791 |
| 3 | 05/27/2015 | CCOMPROP | Create Community Property | AALMO, BRUCE | AALMO, BRUCE | | | $0.00 | 20188 | 4380954 |
| 4 | 05/27/2015 | PRD | Personal Representatives Deed | AALMO, JOHN | AALMO, BRUCE | | | $0.00 | 20187 | 4380953 |
| 5 | 08/27/2015 | TOD | Transfer On Death Deed | AALMO, JOHN & LOIS | AALMO, JOHN | | | | 87205 | |
| 6 | 06/01/1997 | QCD | Quit Claim Deed | AALMO, JOHN | AALMO, JOHN & | | | $0.00 | 72009 | 97009314 |
| 7 | 01/01/1900 | OTHER | Other - Misc. Documents | Unknown | AALMO, JOHN | | | $0.00 | 0 | 0 |
Payout Agreement
| No payout information available.. |