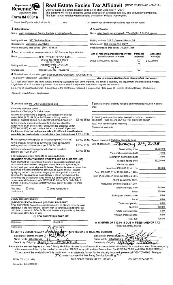
Property
Account |
| Property ID: | 74779 | Abbreviated Legal Description: | 15-1 - BG NWCR WELCHER DC S90' S4*W105' TPB S4*W60' E TO BCH OF LAGOON NWLY ALG SD BCH LN TP E OF TPB W TPB LOT 15 BLK 1 V4 SUR P84-5 FMLY TL 15 WELCHER DC PT DRAINFIELD FOR 523-3320 AF#92010852 |
| Geographic ID: | R23107-505-3300 | Agent Code: | |
| Type: | Real | | |
| Tax Area: | 310 - APPRAISER-Cpvl Schl Dist, outside Cpvl, improved & 1 acre or less | Land Use Code | 11 |
| Open Space: | N | DFL | N |
| Historic Property: | N | Remodel Property: | N |
| Multi-Family Redevelopment: | N | | |
| Township: | 31 | Section: | 07 |
| Range: | R2 |
Location |
| Address: | 417 HARRINGTON RD COUPEVILLE, WA 98239 | Mapsco: | |
| Neighborhood: | Cycle 2 | Map ID: | 465 |
| Neighborhood CD: | 2 |
Owner |
| Name: | MCCLELLAN ET AL, MEGAN RENEE | Owner ID: | 314414 |
| Mailing Address: | 6116 VISTA DR FERNDALE, WA 98248 | % Ownership: | 100.0000000000% |
| | | Exemptions: | |
Taxes and Assessment Details
Values
| (+) Improvement Homesite Value: | + | $0 | |
| (+) Improvement Non-Homesite Value: | + | $165,463 | |
| (+) Land Homesite Value: | + | $0 | |
| (+) Land Non-Homesite Value: | + | $675,000 | |
| (+) Curr Use (HS): | + | $0 | $0 |
| (+) Curr Use (NHS): | + | $0 | $0 |
| | | -------------------------- | |
| (=) Market Value: | = | $840,463 | |
| (–) Productivity Loss: | – | $0 | |
| | | -------------------------- | |
| (=) Subtotal: | = | $840,463 | |
| (+) Senior Appraised Value: | + | $0 | |
| (+) Non-Senior Appraised Value: | + | $840,463 | |
| | | -------------------------- | |
| (=) Total Appraised Value: | = | $840,463 | |
| (–) Senior Exemption Loss: | – | $0 | |
| (–) Exemption Loss: | – | $0 | |
| | | -------------------------- | |
| (=) Taxable Value: | = | $840,463 | |
Taxing Jurisdiction
| Owner: | MCCLELLAN ET AL, MEGAN RENEE | | |
| % Ownership: | 100.0000000000% | | |
| Total Value: | $840,463 | | |
| Tax Area: | 310 - APPRAISER-Cpvl Schl Dist, outside Cpvl, improved & 1 acre or less |
| CF | Conservation Futures | 0.0316035091 | $840,463 | $840,463 | $26.56 | | |
| CEM2 | Cemetery #2 | 0.0095056933 | $840,463 | $840,463 | $7.99 | | |
| FIRE5 | Fire & Rescue Dist #5 C Whidbey GEN | 1.2008080668 | $840,463 | $840,463 | $1,009.23 | | |
| FIRE5BOND | Fire & Rescue Dist #5 C Whidbey BOND | 0.1400090713 | $840,463 | $840,463 | $117.67 | | |
| HOBOND | Hospital BOND | 0.1910887512 | $840,463 | $840,463 | $160.60 | | |
| HOGEN | Hospital GEN | 0.3902502903 | $840,463 | $840,463 | $327.99 | | |
| CE | County Current Expense | 0.3708482477 | $840,463 | $840,463 | $311.68 | | |
| CR | County Roads | 0.4584763726 | $840,463 | $840,463 | $385.33 | | |
| ISLANDEMS | Hospital GEN (EMS) | 0.5000000000 | $840,463 | $840,463 | $420.23 | | |
| LIB | Library Sno-Isle GEN | 0.3153421757 | $840,463 | $840,463 | $265.03 | | |
| LIBCAP | Library Sno-Isle BOND (Cap Fac Imp Area) | 0.0543427938 | $840,463 | $840,463 | $45.67 | | |
| POCOUP | Port of Coupeville GEN | 0.1093371703 | $840,463 | $840,463 | $91.89 | | |
| POCOUPIDD | Port of Coupeville IDD | 0.3409740022 | $840,463 | $840,463 | $286.58 | | |
| COUPSDTECH | School 204 CP (TECH) | 0.7545480007 | $840,463 | $840,463 | $634.17 | | |
| SCH204MO | School 204 Enrichment | 0.6716186034 | $840,463 | $840,463 | $564.47 | | |
| ST | State School | 1.3035497053 | $840,463 | $840,463 | $1,095.59 | | |
| ST2 | State School Part 2 | 0.8169543533 | $840,463 | $840,463 | $686.62 | | |
| | Total Tax Rate: | 7.6592568070 | | | | | |
| | | | | Taxes w/Current Exemptions: | $6,437.30 | | |
| | | | | Taxes w/o Exemptions: | $6,437.30 | | |
Improvement / Building
| Improvement #1: | RESIDENTIAL | State Code: | Y | 1024.0 sqft | Value: | $165,463 |
| Bathrooms: | 1 | Bedrooms: | 2 | | Ceiling: | BEAM PAINTED | Exterior Wall/Cover: | WOOD SIDING | | Floor Covering: | CARPET 100% | Floor Structure: | WOOD W/SUBFLOOR | | Foundation: | CONCRETE BLOCKS | Heating: | FHA ELECTRIC | | Interior Finish: | DRYWALL PAINT | Plumbing Fixture Cnt: | 6 | | Roof Slope: | 3" IN 12" | Roof Structure/Cover: | BEAM ROLL COMPOSITION |
|
| | Type | Description | Class CD | Sub Class CD | Year Built | Area |
| | BAS | BASE/MAIN FLOOR | 3 | 0 | 1973 | 1024.0 |
| | DGR | DETACHED GARAGE | 3 | 0 | 1973 | 520.0 |
| | OWR | OPEN WOOD PORCH W/STEPS/ROOF | 3 | 0 | 1973 | 336.0 |
| | OWP | OPEN WOOD PORCH W/STEPS | 3 | 0 | 1973 | 340.0 |
Sketch
| No sketches available for this property. |
Property Image
Land
| 1 | LB | LOW BANK | 0.7200 | 31363.20 | 60.00 | 0.00 | 1.00 | $675,000 | $0 |
Roll Value History
| 2026 | N/A | N/A | N/A | N/A | N/A |
| 2025 | $165,463 | $675,000 | $0 | $840,463 | $840,463 |
| 2024 | $157,295 | $650,000 | $0 | $807,295 | $807,295 |
| 2023 | $159,600 | $625,000 | $0 | $784,600 | $784,600 |
| 2022 | $146,602 | $500,000 | $0 | $646,602 | $646,602 |
| 2021 | $129,293 | $475,000 | $0 | $604,293 | $604,293 |
| 2020 | $126,130 | $350,000 | $0 | $476,130 | $476,130 |
| 2019 | $89,420 | $400,000 | $0 | $489,420 | $489,420 |
| 2018 | $85,801 | $300,000 | $0 | $385,801 | $385,801 |
| 2017 | $86,358 | $250,000 | $0 | $336,358 | $336,358 |
| 2016 | $87,591 | $250,000 | $0 | $337,591 | $337,591 |
| 2015 | $88,825 | $250,000 | $0 | $338,825 | $338,825 |
| 2014 | $90,059 | $250,000 | $0 | $340,059 | $340,059 |
| 2013 | $91,291 | $241,020 | $0 | $332,311 | $332,311 |
| 2012 | $97,387 | $241,020 | $0 | $338,407 | $338,407 |
| 2011 | $98,777 | $241,020 | $0 | $339,797 | $339,797 |
| 2010 | $106,329 | $241,020 | $0 | $347,349 | $347,349 |
| 2009 | $110,945 | $265,122 | $0 | $376,067 | $376,067 |
| 2008 | $112,557 | $265,122 | $0 | $377,679 | $377,679 |
| 2007 | $114,249 | $265,122 | $0 | $379,371 | $379,371 |
Deed and Sales History
| 1 | 05/16/2024 | QCD | Quit Claim Deed | GORSEGNER, ELAINE F | MCCLELLAN, MEGAN RENEE | | | $0.00 | 60244 | 4573292 |
| 2 | 09/01/1997 | WD | Warranty Deed | GORSEGNER, ELAINE F | RACE, PHYLLIS E | | | $0.00 | 73320 | 97015632 |
| 3 | 09/01/1997 | WD | Warranty Deed | RACE, RONALD H | GORSEGNER, ELAINE F | | | $0.00 | 73321 | 97015633 |
| 4 | 10/01/1996 | QCD | Quit Claim Deed | RACE, R H | RACE, RONALD H | | | $0.00 | 63671 | 96017822 |
| 5 | 01/01/1900 | OTHER | Other - Misc. Documents | Unknown | RACE, R H | | | $0.00 | 0 | 0 |
Payout Agreement
| No payout information available.. |