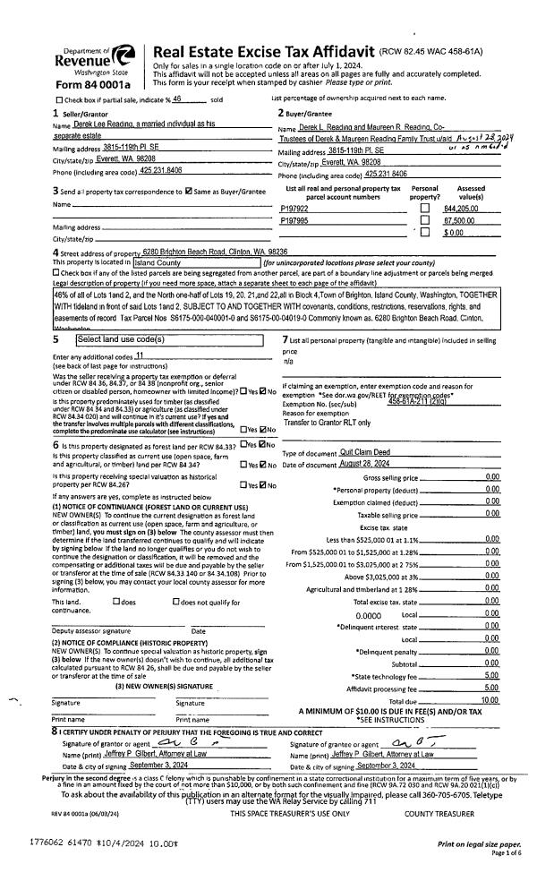
Property
Account |
| Property ID: | 748212 | Abbreviated Legal Description: | FEEKS PLAT PT LOT 3 DESC: BG NLN SD PLAT 400' ELY FR NWCR LOT 4 SLY PARA/W WLN LOT 4 410' TPB NLY PARA/W WLN LOT 4 410' ELY ALG SD NLN 228.6' TO NECR LOT 3 SLY ALG ELN LOT 3 185' SWLY ALG STRT LN 319.28' M/L TPB TGW & SUBJ TO EZ FR PT 00003-0 |
| Geographic ID: | S6625-00-00003-1 | Agent Code: | |
| Type: | Real | | |
| Tax Area: | 712 - APPRAISER-S Whid Schl Dist, outside Langley, improved, greater than 1 acre | Land Use Code | 11 |
| Open Space: | N | DFL | N |
| Historic Property: | N | Remodel Property: | N |
| Multi-Family Redevelopment: | N | | |
| Township: | | Section: | |
| Range: | |
Location |
| Address: | 6209 COLES RD LANGLEY, WA 98260 | Mapsco: | |
| Neighborhood: | Cycle 4 | Map ID: | 796 |
| Neighborhood CD: | 4 |
Owner |
| Name: | FISCHER, BRIDGET M | Owner ID: | 189268 |
| Mailing Address: | PO BOX 1527 LANGLEY, WA 98260-1527 | % Ownership: | 100.0000000000% |
| | | Exemptions: | |
Taxes and Assessment Details
Values
| (+) Improvement Homesite Value: | + | $0 | |
| (+) Improvement Non-Homesite Value: | + | $437,265 | |
| (+) Land Homesite Value: | + | $0 | |
| (+) Land Non-Homesite Value: | + | $290,000 | |
| (+) Curr Use (HS): | + | $0 | $0 |
| (+) Curr Use (NHS): | + | $0 | $0 |
| | | -------------------------- | |
| (=) Market Value: | = | $727,265 | |
| (–) Productivity Loss: | – | $0 | |
| | | -------------------------- | |
| (=) Subtotal: | = | $727,265 | |
| (+) Senior Appraised Value: | + | $0 | |
| (+) Non-Senior Appraised Value: | + | $727,265 | |
| | | -------------------------- | |
| (=) Total Appraised Value: | = | $727,265 | |
| (–) Senior Exemption Loss: | – | $0 | |
| (–) Exemption Loss: | – | $0 | |
| | | -------------------------- | |
| (=) Taxable Value: | = | $727,265 | |
Taxing Jurisdiction
| Owner: | FISCHER, BRIDGET M | | |
| % Ownership: | 100.0000000000% | | |
| Total Value: | $727,265 | | |
| Tax Area: | 712 - APPRAISER-S Whid Schl Dist, outside Langley, improved, greater than 1 acre |
| CF | Conservation Futures | 0.0316035091 | $727,265 | $727,265 | $22.98 | | |
| FIRE3 | Fire & Rescue Dist #3 S Whidbey GEN | 1.2004855531 | $727,265 | $727,265 | $873.07 | | |
| HOBOND | Hospital BOND | 0.1910887512 | $727,265 | $727,265 | $138.97 | | |
| HOGEN | Hospital GEN | 0.3902502903 | $727,265 | $727,265 | $283.82 | | |
| CE | County Current Expense | 0.3708482477 | $727,265 | $727,265 | $269.70 | | |
| CR | County Roads | 0.4584763726 | $727,265 | $727,265 | $333.43 | | |
| ISLANDEMS | Hospital GEN (EMS) | 0.5000000000 | $727,265 | $727,265 | $363.63 | | |
| LIB | Library Sno-Isle GEN | 0.3153421757 | $727,265 | $727,265 | $229.34 | | |
| PORTWHID | Port of S Whidbey GEN | 0.1094540357 | $727,265 | $727,265 | $79.60 | | |
| SCH206BOND | School 206 BOND | 0.3161759235 | $727,265 | $727,265 | $229.94 | | |
| SCH206MO | School 206 Enrichment | 0.4547169547 | $727,265 | $727,265 | $330.70 | | |
| ST | State School | 1.3035497053 | $727,265 | $727,265 | $948.03 | | |
| ST2 | State School Part 2 | 0.8169543533 | $727,265 | $727,265 | $594.14 | | |
| SWHIDPRBD | P & R S Whidbey BOND | 0.0152817568 | $727,265 | $727,265 | $11.11 | | |
| SWHIDPRBD2 | P & R S Whidbey BOND2 | 0.0138911264 | $727,265 | $727,265 | $10.10 | | |
| SWHIDPRMT | P & R S Whidbey GEN | 0.2053334452 | $727,265 | $727,265 | $149.33 | | |
| | Total Tax Rate: | 6.6934522006 | | | | | |
| | | | | Taxes w/Current Exemptions: | $4,867.89 | | |
| | | | | Taxes w/o Exemptions: | $4,867.89 | | |
Improvement / Building
| Improvement #1: | RESIDENTIAL | State Code: | Y | 2532.0 sqft | Value: | $437,265 |
| Bathrooms: | 2.5 | Bedrooms: | 3 | | Ceiling: | DRYWALL PAINTED | Cooling: | HEAT PUMP/CONV/V | | Exterior Wall/Cover: | SHINGLE | Floor Covering: | CERAMIC TILE/CPT 40-60 | | Floor Structure: | WOOD W/SUBFLOOR | Foundation: | CONCRETE | | Interior Finish: | DRYWALL PAINT | Plumbing Fixture Cnt: | 11 | | Roof Slope: | 6" IN 12" | Roof Structure/Cover: | CJ ASPHALT |
|
| | Type | Description | Class CD | Sub Class CD | Year Built | Area |
| | BAS | BASE/MAIN FLOOR | 3 | 0 | 1999 | 1014.0 |
| | BAS | BASE/MAIN FLOOR | 3 | 0 | 1999 | 1062.0 |
| | AGR | ATTACHED GARAGE | 3 | 0 | 1999 | 1068.7 |
| | OWP | OPEN WOOD PORCH W/STEPS | 3 | 0 | 1999 | 653.8 |
| | UTY | STORAGE/UTILITY | 3 | 0 | 1999 | 425.3 |
| | UPS | UPPER STORY | 3 | 0 | 1999 | 456.0 |
| | OWP | OPEN WOOD PORCH W/STEPS | 3 | 0 | 1999 | 577.7 |
| | OWC | OPEN WOOD PORCH W/STEPS/ROOF/C | 3 | 0 | 1999 | 30.0 |
| | OWC | OPEN WOOD PORCH W/STEPS/ROOF/C | 3 | 0 | 1999 | 66.0 |
| | OWR | OPEN WOOD PORCH W/STEPS/ROOF | 3 | 0 | 1999 | 32.0 |
| | OCP | OPEN CARPORT | 3 | 0 | 1999 | 280.0 |
Sketch
Property Image
Land
| 1 | 17 | AC (01.01-02.00) | 1.5600 | 67953.60 | 1.56 | 0.00 | 1.00 | $290,000 | $0 |
Roll Value History
| 2026 | N/A | N/A | N/A | N/A | N/A |
| 2025 | $437,265 | $290,000 | $0 | $727,265 | $727,265 |
| 2024 | $442,518 | $280,000 | $0 | $722,518 | $722,518 |
| 2023 | $447,770 | $260,000 | $0 | $707,770 | $707,770 |
| 2022 | $410,209 | $250,000 | $0 | $660,209 | $660,209 |
| 2021 | $360,846 | $175,000 | $0 | $535,846 | $535,846 |
| 2020 | $333,884 | $165,000 | $0 | $498,884 | $498,884 |
| 2019 | $263,102 | $200,000 | $0 | $463,102 | $463,102 |
| 2018 | $263,883 | $170,000 | $0 | $433,883 | $433,883 |
| 2017 | $265,444 | $150,000 | $0 | $415,444 | $415,444 |
| 2016 | $268,568 | $115,000 | $0 | $383,568 | $383,568 |
| 2015 | $271,691 | $100,000 | $0 | $371,691 | $371,691 |
| 2014 | $267,221 | $85,000 | $0 | $352,221 | $352,221 |
| 2013 | $270,402 | $85,000 | $0 | $355,402 | $355,402 |
| 2012 | $273,584 | $114,750 | $0 | $388,334 | $388,334 |
| 2011 | $276,765 | $135,000 | $0 | $411,765 | $411,765 |
| 2010 | $285,156 | $135,000 | $0 | $420,156 | $420,156 |
| 2009 | $298,457 | $153,750 | $0 | $452,207 | $452,207 |
| 2008 | $291,379 | $160,000 | $0 | $451,379 | $451,379 |
| 2007 | $294,533 | $160,000 | $0 | $454,533 | $454,533 |
Deed and Sales History
| 1 | 12/18/2023 | QCD | Quit Claim Deed | AGWEST FARM CREDT, FLCA | PHOENIX CAPITAL GROUP HOLDINGS, LLC | | | $0.00 | 60366 | 4573630 |
| 2 | 05/02/2007 | QCD | Quit Claim Deed | FISCHER, BRIDGET M | FISCHER, BRIDGET M | | | $0.00 | 14734 | 4357139 |
| 3 | 05/02/2007 | QCD | Quit Claim Deed | FISCHER, BRIDGET M | FISCHER, BRIDGET M | | | $0.00 | 71846 | 4203606 |
| 4 | 03/17/2004 | WD | Warranty Deed | LOKEN, MARTIN H | FISCHER, BRIDGET M | | | $385,000.00 | 41022 | 4094406 |
| 5 | 01/10/2000 | WD | Warranty Deed | SCHEUTZOW, JAN | LOKEN, MARTIN H | | | $230,000.00 | 522 | 20002779 |
| 6 | 10/31/1998 | WD | Warranty Deed | ARNOLD, MARK | SCHEUTZOW, JAN | | | $50,000.00 | 84643 | 98025353 |
| 7 | 05/13/2002 | BLA | DNU - Boundary Line Adjustment | ARNOLD, MARK & | ARNOLD, MARK | | | $0.00 | 69425 | 98009627 |
| 8 | 12/01/1996 | QCD | Quit Claim Deed | KNOWLES, ELMORE V | ARNOLD, MARK & | | | $0.00 | 171595 | 97007445 |
| 9 | 03/01/1997 | BLA | DNU - Boundary Line Adjustment | Unknown | KNOWLES, ELMORE V | | | $0.00 | 67296 | 96021010 |
Payout Agreement
| No payout information available.. |