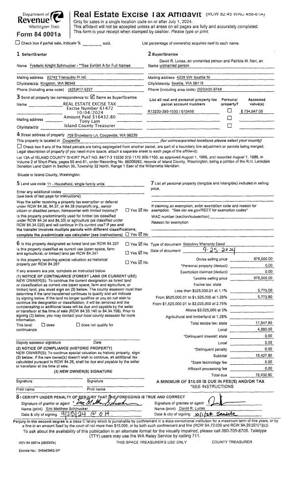
Property
Account |
| Property ID: | 748230 | Abbreviated Legal Description: | FEEKS PLAT PT LOT 4 DESC: BG WLN LOT 4 610' SLY FR NWCR LOT 4 NLY ALG SD WLN 610' TO NWCR ELY ALG NLN LOT 4 200' SLY PARA/W WLN LOT 4 545' SWLY ALG STRT LN 210' M/L TPB TGW & SUBJ TO EZ FR PT 00003-0 |
| Geographic ID: | S6625-00-00004-2 | Agent Code: | |
| Type: | Real | | |
| Tax Area: | 712 - APPRAISER-S Whid Schl Dist, outside Langley, improved, greater than 1 acre | Land Use Code | 11 |
| Open Space: | N | DFL | N |
| Historic Property: | N | Remodel Property: | N |
| Multi-Family Redevelopment: | N | | |
| Township: | | Section: | |
| Range: | |
Location |
| Address: | 6201 COLES RD LANGLEY, WA 98260 | Mapsco: | |
| Neighborhood: | Cycle 4 | Map ID: | 796 |
| Neighborhood CD: | 4 |
Owner |
| Name: | HOMA, ART | Owner ID: | 267485 |
| Mailing Address: | DIANE FIUMARA 6201 COLES RD LANGLEY, WA 98260 | % Ownership: | 100.0000000000% |
| | | Exemptions: | |
Taxes and Assessment Details
Values
| (+) Improvement Homesite Value: | + | $0 | |
| (+) Improvement Non-Homesite Value: | + | $636,419 | |
| (+) Land Homesite Value: | + | $0 | |
| (+) Land Non-Homesite Value: | + | $310,000 | |
| (+) Curr Use (HS): | + | $0 | $0 |
| (+) Curr Use (NHS): | + | $0 | $0 |
| | | -------------------------- | |
| (=) Market Value: | = | $946,419 | |
| (–) Productivity Loss: | – | $0 | |
| | | -------------------------- | |
| (=) Subtotal: | = | $946,419 | |
| (+) Senior Appraised Value: | + | $0 | |
| (+) Non-Senior Appraised Value: | + | $946,419 | |
| | | -------------------------- | |
| (=) Total Appraised Value: | = | $946,419 | |
| (–) Senior Exemption Loss: | – | $0 | |
| (–) Exemption Loss: | – | $0 | |
| | | -------------------------- | |
| (=) Taxable Value: | = | $946,419 | |
Taxing Jurisdiction
| Owner: | HOMA, ART | | |
| % Ownership: | 100.0000000000% | | |
| Total Value: | $946,419 | | |
| Tax Area: | 712 - APPRAISER-S Whid Schl Dist, outside Langley, improved, greater than 1 acre |
| CF | Conservation Futures | 0.0316035091 | $946,419 | $946,419 | $29.91 | | |
| FIRE3 | Fire & Rescue Dist #3 S Whidbey GEN | 1.2004855531 | $946,419 | $946,419 | $1,136.16 | | |
| HOBOND | Hospital BOND | 0.1910887512 | $946,419 | $946,419 | $180.85 | | |
| HOGEN | Hospital GEN | 0.3902502903 | $946,419 | $946,419 | $369.34 | | |
| CE | County Current Expense | 0.3708482477 | $946,419 | $946,419 | $350.98 | | |
| CR | County Roads | 0.4584763726 | $946,419 | $946,419 | $433.91 | | |
| ISLANDEMS | Hospital GEN (EMS) | 0.5000000000 | $946,419 | $946,419 | $473.21 | | |
| LIB | Library Sno-Isle GEN | 0.3153421757 | $946,419 | $946,419 | $298.45 | | |
| PORTWHID | Port of S Whidbey GEN | 0.1094540357 | $946,419 | $946,419 | $103.59 | | |
| SCH206BOND | School 206 BOND | 0.3161759235 | $946,419 | $946,419 | $299.23 | | |
| SCH206MO | School 206 Enrichment | 0.4547169547 | $946,419 | $946,419 | $430.35 | | |
| ST | State School | 1.3035497053 | $946,419 | $946,419 | $1,233.70 | | |
| ST2 | State School Part 2 | 0.8169543533 | $946,419 | $946,419 | $773.18 | | |
| SWHIDPRBD | P & R S Whidbey BOND | 0.0152817568 | $946,419 | $946,419 | $14.46 | | |
| SWHIDPRBD2 | P & R S Whidbey BOND2 | 0.0138911264 | $946,419 | $946,419 | $13.15 | | |
| SWHIDPRMT | P & R S Whidbey GEN | 0.2053334452 | $946,419 | $946,419 | $194.33 | | |
| | Total Tax Rate: | 6.6934522006 | | | | | |
| | | | | Taxes w/Current Exemptions: | $6,334.80 | | |
| | | | | Taxes w/o Exemptions: | $6,334.80 | | |
Improvement / Building
| Improvement #1: | RESIDENTIAL | State Code: | Y | 3019.4 sqft | Value: | $636,419 |
| Bathrooms: | 3.5 | Bedrooms: | 3 | | Ceiling: | DRYWALL PAINTED | Exterior Wall/Cover: | WOOD SIDING | | Floor Covering: | CERAMIC TILE/CPT 40-60 | Floor Structure: | WOOD W/SUBFLOOR | | Foundation: | CONCRETE | Heating: | FHA GAS | | Interior Finish: | DRYWALL PAINT | Plumbing Fixture Cnt: | 14 | | Roof Slope: | 8" IN 12" | Roof Structure/Cover: | CJ ASPHALT |
|
| | Type | Description | Class CD | Sub Class CD | Year Built | Area |
| | BAS | BASE/MAIN FLOOR | 4 | 0 | 1999 | 1869.4 |
| | DGR | DETACHED GARAGE | 4 | 0 | 1999 | 2685.2 |
| | UPS | UPPER STORY | 4 | 0 | 1999 | 660.0 |
| | OWC | OPEN WOOD PORCH W/STEPS/ROOF/C | 4 | 0 | 1999 | 126.0 |
| | UPS | UPPER STORY | 4 | 0 | 1999 | 490.0 |
Sketch
Property Image
Land
| 1 | 18 | AC (02.01-03.00) | 2.6500 | 115434.00 | 0.00 | 0.00 | 1.00 | $310,000 | $0 |
Roll Value History
| 2026 | N/A | N/A | N/A | N/A | N/A |
| 2025 | $636,419 | $310,000 | $0 | $946,419 | $946,419 |
| 2024 | $643,883 | $300,000 | $0 | $943,883 | $943,883 |
| 2023 | $651,349 | $290,000 | $0 | $941,349 | $941,349 |
| 2022 | $596,558 | $270,000 | $0 | $866,558 | $866,558 |
| 2021 | $524,622 | $175,000 | $0 | $699,622 | $699,622 |
| 2020 | $427,881 | $165,000 | $0 | $592,881 | $592,881 |
| 2019 | $342,535 | $200,000 | $0 | $542,535 | $542,535 |
| 2018 | $343,506 | $170,000 | $0 | $513,506 | $513,506 |
| 2017 | $345,409 | $150,000 | $0 | $495,409 | $495,409 |
| 2016 | $349,288 | $125,000 | $0 | $474,288 | $474,288 |
| 2015 | $353,169 | $100,000 | $0 | $453,169 | $453,169 |
| 2014 | $312,653 | $95,000 | $0 | $407,653 | $407,653 |
| 2013 | $315,616 | $95,000 | $0 | $410,616 | $410,616 |
| 2012 | $318,577 | $114,750 | $0 | $433,327 | $433,327 |
| 2011 | $321,541 | $135,000 | $0 | $456,541 | $456,541 |
| 2010 | $300,258 | $135,000 | $0 | $435,258 | $435,258 |
| 2009 | $312,193 | $155,000 | $0 | $467,193 | $467,193 |
| 2008 | $314,168 | $160,000 | $0 | $474,168 | $474,168 |
| 2007 | $318,549 | $160,000 | $0 | $478,549 | $478,549 |
Deed and Sales History
| 1 | 12/18/2023 | QCD | Quit Claim Deed | AGWEST FARM CREDT, FLCA | PHOENIX CAPITAL GROUP HOLDINGS, LLC | | | $0.00 | 60366 | 4573630 |
| 2 | 08/12/2014 | WD | Warranty Deed | LUBACH, TODD / KAREN | HOMA, ART | | | $565,000.00 | 16410 | 4363980 |
| 3 | 01/01/1998 | WD | Warranty Deed | ARNOLD, MARK & | LUBACH, TODD/KAREN | | | $37,000.00 | 80168 | 98000736 |
| 4 | 12/01/1996 | QCD | Quit Claim Deed | KNOWLES, ELMORE V | ARNOLD, MARK & | | | $0.00 | 71597 | 97007447 |
| 5 | 03/01/1997 | BLA | DNU - Boundary Line Adjustment | KNOWLES, ELMORE V | KNOWLES, ELMORE V | | | $0.00 | 67296 | 96021010 |
| 6 | 01/01/1900 | OTHER | Other - Misc. Documents | Unknown | KNOWLES, ELMORE V | | | $0.00 | 60539 | 96002875 |
Payout Agreement
| No payout information available.. |