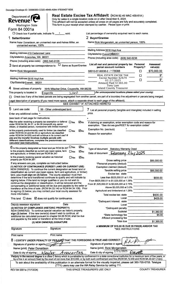
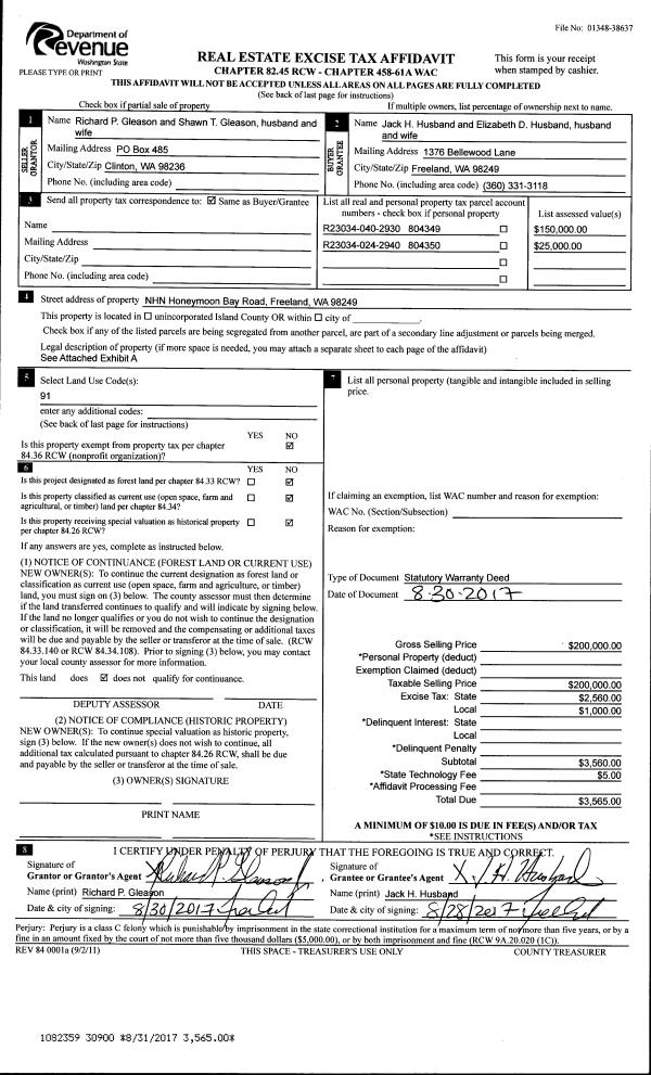
Property
Account |
| Property ID: | 748524 | Abbreviated Legal Description: | COUPEVILLE W9' OF LOT 5 EX N5' & LOT 6 EX N5' & E/2 LOT 7 EX N5' BLK 17 11/29/83 |
| Geographic ID: | S6415-00-17006-0 | Agent Code: | |
| Type: | Real | | |
| Tax Area: | 300 - APPRAISER-Cpvl Schl Dist, in Cpvl | Land Use Code | 11 |
| Open Space: | N | DFL | N |
| Historic Property: | N | Remodel Property: | N |
| Multi-Family Redevelopment: | N | | |
| Township: | | Section: | |
| Range: | |
Location |
| Address: | 304 NE 7TH ST COUPEVILLE, WA 98239 | Mapsco: | |
| Neighborhood: | Cycle 2 | Map ID: | 175 |
| Neighborhood CD: | 2 |
Owner |
| Name: | WARDER, KIMBERLY R | Owner ID: | 297975 |
| Mailing Address: | 304 NE 7TH ST COUPEVILLE, WA 98239 | % Ownership: | 100.0000000000% |
| | | Exemptions: | |
Taxes and Assessment Details
Values
| (+) Improvement Homesite Value: | + | $0 | |
| (+) Improvement Non-Homesite Value: | + | $212,685 | |
| (+) Land Homesite Value: | + | $0 | |
| (+) Land Non-Homesite Value: | + | $260,000 | |
| (+) Curr Use (HS): | + | $0 | $0 |
| (+) Curr Use (NHS): | + | $0 | $0 |
| | | -------------------------- | |
| (=) Market Value: | = | $472,685 | |
| (–) Productivity Loss: | – | $0 | |
| | | -------------------------- | |
| (=) Subtotal: | = | $472,685 | |
| (+) Senior Appraised Value: | + | $0 | |
| (+) Non-Senior Appraised Value: | + | $472,685 | |
| | | -------------------------- | |
| (=) Total Appraised Value: | = | $472,685 | |
| (–) Senior Exemption Loss: | – | $0 | |
| (–) Exemption Loss: | – | $0 | |
| | | -------------------------- | |
| (=) Taxable Value: | = | $472,685 | |
Taxing Jurisdiction
| Owner: | WARDER, KIMBERLY R | | |
| % Ownership: | 100.0000000000% | | |
| Total Value: | $472,685 | | |
| Tax Area: | 300 - APPRAISER-Cpvl Schl Dist, in Cpvl |
| CF | Conservation Futures | 0.0316035091 | $472,685 | $472,685 | $14.94 | | |
| CEM2 | Cemetery #2 | 0.0095056933 | $472,685 | $472,685 | $4.49 | | |
| COUP | City: Town of Coupeville | 0.8426414490 | $472,685 | $472,685 | $398.30 | | |
| FIRE5 | Fire & Rescue Dist #5 C Whidbey GEN | 1.2008080668 | $472,685 | $472,685 | $567.60 | | |
| FIRE5BOND | Fire & Rescue Dist #5 C Whidbey BOND | 0.1400090713 | $472,685 | $472,685 | $66.18 | | |
| HOBOND | Hospital BOND | 0.1910887512 | $472,685 | $472,685 | $90.32 | | |
| HOGEN | Hospital GEN | 0.3902502903 | $472,685 | $472,685 | $184.47 | | |
| CE | County Current Expense | 0.3708482477 | $472,685 | $472,685 | $175.29 | | |
| ISLANDEMS | Hospital GEN (EMS) | 0.5000000000 | $472,685 | $472,685 | $236.34 | | |
| LIB | Library Sno-Isle GEN | 0.3153421757 | $472,685 | $472,685 | $149.06 | | |
| LIBCAP | Library Sno-Isle BOND (Cap Fac Imp Area) | 0.0543427938 | $472,685 | $472,685 | $25.69 | | |
| POCOUP | Port of Coupeville GEN | 0.1093371703 | $472,685 | $472,685 | $51.68 | | |
| POCOUPIDD | Port of Coupeville IDD | 0.3409740022 | $472,685 | $472,685 | $161.17 | | |
| COUPSDTECH | School 204 CP (TECH) | 0.7545480007 | $472,685 | $472,685 | $356.66 | | |
| SCH204MO | School 204 Enrichment | 0.6716186034 | $472,685 | $472,685 | $317.46 | | |
| ST | State School | 1.3035497053 | $472,685 | $472,685 | $616.17 | | |
| ST2 | State School Part 2 | 0.8169543533 | $472,685 | $472,685 | $386.16 | | |
| | Total Tax Rate: | 8.0434218834 | | | | | |
| | | | | Taxes w/Current Exemptions: | $3,801.98 | | |
| | | | | Taxes w/o Exemptions: | $3,801.98 | | |
Improvement / Building
| Improvement #1: | RESIDENTIAL | State Code: | Y | 1168.0 sqft | Value: | $212,685 |
| Bathrooms: | 2 | Bedrooms: | 1 | | Ceiling: | DRYWALL PAINTED | Exterior Wall/Cover: | PLY/HARDBOARD T-111 | | Floor Covering: | VINYL 100% | Floor Structure: | WOOD W/SUBFLOOR | | Foundation: | CONCRETE | Heating: | FHA ELECTRIC | | Interior Finish: | DRYWALL PAINT | Plumbing Fixture Cnt: | 9 | | Roof Slope: | 4" IN 12" | Roof Structure/Cover: | CJ ALUMINIUM HEAVY |
|
| | Type | Description | Class CD | Sub Class CD | Year Built | Area |
| | BAS | BASE/MAIN FLOOR | 3 | 0 | 1986 | 1168.0 |
| | OP1 | OPEN PORCH SLAB | 3 | 0 | 1986 | 124.0 |
| | OP3 | OPEN PORCH W/ROOF | 3 | 0 | 1986 | 36.0 |
| | OP3 | OPEN PORCH W/ROOF | 3 | 0 | 1986 | 28.0 |
| | OCP | OPEN CARPORT | 3 | 0 | 1986 | 320.4 |
| | OWP | OPEN WOOD PORCH W/STEPS | 3 | 0 | 1986 | 458.1 |
| | ENP | ENCLOSED PORCH | 3 | 0 | 1986 | 62.3 |
Sketch
| No sketches available for this property. |
Property Image
Land
| 1 | HS | HOMESITE | 0.1832 | 7980.19 | 0.00 | 0.00 | 1.00 | $260,000 | $0 |
Roll Value History
| 2026 | N/A | N/A | N/A | N/A | N/A |
| 2025 | $212,685 | $260,000 | $0 | $472,685 | $472,685 |
| 2024 | $186,786 | $240,000 | $0 | $426,786 | $426,786 |
| 2023 | $189,523 | $240,000 | $0 | $429,523 | $429,523 |
| 2022 | $174,093 | $200,000 | $0 | $374,093 | $374,093 |
| 2021 | $153,538 | $150,000 | $0 | $303,538 | $303,538 |
| 2020 | $150,118 | $130,000 | $0 | $280,118 | $280,118 |
| 2019 | $107,878 | $170,000 | $0 | $277,878 | $277,878 |
| 2018 | $104,738 | $150,000 | $0 | $254,738 | $254,738 |
| 2017 | $105,492 | $125,000 | $0 | $230,492 | $230,492 |
| 2016 | $106,997 | $115,000 | $0 | $221,997 | $221,997 |
| 2015 | $108,505 | $90,000 | $0 | $198,505 | $198,505 |
| 2014 | $110,010 | $85,000 | $0 | $195,010 | $195,010 |
| 2013 | $111,519 | $85,000 | $0 | $196,519 | $196,519 |
| 2012 | $112,284 | $89,250 | $0 | $201,534 | $201,534 |
| 2011 | $113,768 | $105,000 | $0 | $218,768 | $218,768 |
| 2010 | $118,788 | $105,000 | $0 | $223,788 | $223,788 |
| 2009 | $123,950 | $125,000 | $0 | $248,950 | $248,950 |
| 2008 | $125,545 | $124,000 | $0 | $249,545 | $249,545 |
| 2007 | $127,139 | $105,000 | $0 | $232,139 | $232,139 |
Deed and Sales History
| 1 | 02/01/2021 | WD | Warranty Deed | KELLY, GARY | WARDER, KIMBERLY R | | | $350,000.00 | 46827 | 4510050 |
| 2 | 07/18/2017 | WD | Warranty Deed | LILIEN TRUSTEE, JACK | KELLY, GARY | | | $235,000.00 | 30248 | 4426538 |
| 3 | 08/10/2015 | GRANTD | Grant Deed | LILIEN, JACK | LILIEN TRUSTEE, JACK | | | $0.00 | 21092 | 4384836 |
| 4 | 03/07/2008 | QCD | Quit Claim Deed | LILIEN ET AL, DENISE E | LILIEN, JACK | | | $0.00 | 80813 | 4225433 |
| 5 | 08/19/2004 | 5 | DNU - Marriage License/Name Change | LILIEN ET AL, DENISE E | LILIEN ET AL, DENISE E | | | $0.00 | 44142 | 4111840 |
| 6 | 08/19/2004 | ESTSEPPROP | Establish Separate Property | LILIEN ET AL, DENISE E | LILIEN ET AL, DENISE E | | | $0.00 | 44141 | 4111839 |
| 7 | 08/21/2001 | WD | Warranty Deed | STRUTHERS, HERBERT J | LILIEN ET AL, DENISE E | | | $136,900.00 | 13267 | 20041327 |
| 8 | 10/01/1996 | WD | Warranty Deed | MECKLEY, CHARLOTTE | STRUTHERS, HERBERT J | | | $125,000.00 | 63741 | 96018105 |
| 9 | 06/01/1995 | WD | Warranty Deed | JOHNSON, TED B | MECKLEY, CHARLOTTE | | | $110,000.00 | 52179 | 95010092 |
| 10 | 04/01/1993 | WD | Warranty Deed | TRISTAD, JOHN & | JOHNSON, TED B | | | $95,000.00 | 31405 | 93007233 |
| 11 | 06/01/1991 | QCD | Quit Claim Deed | MIKKELSEN, LEO & | TRISTAD, JOHN & | | | $0.00 | 11932 | 91008230 |
| 12 | 05/01/1991 | WD | Warranty Deed | BRADT, HORACE G | MIKKELSEN, LEO & | | | $64,500.00 | 11883 | 91007990 |
| 13 | 10/01/1985 | QCD | Quit Claim Deed | BRADT, HORACE G | BRADT, HORACE G | | | $0.00 | 52873 | 85011349 |
| 14 | 09/01/1983 | QCD | Quit Claim Deed | HOFSTRAND, JOHN M | BRADT, HORACE G | | | $0.00 | 33067 | 416327 |
| 15 | 04/01/1981 | PACD | Purchaser's Assignment | TRAPP, THOMAS E | HOFSTRAND, JOHN M | | | $40,000.00 | 11148 | 381887 |
Payout Agreement
| No payout information available.. |