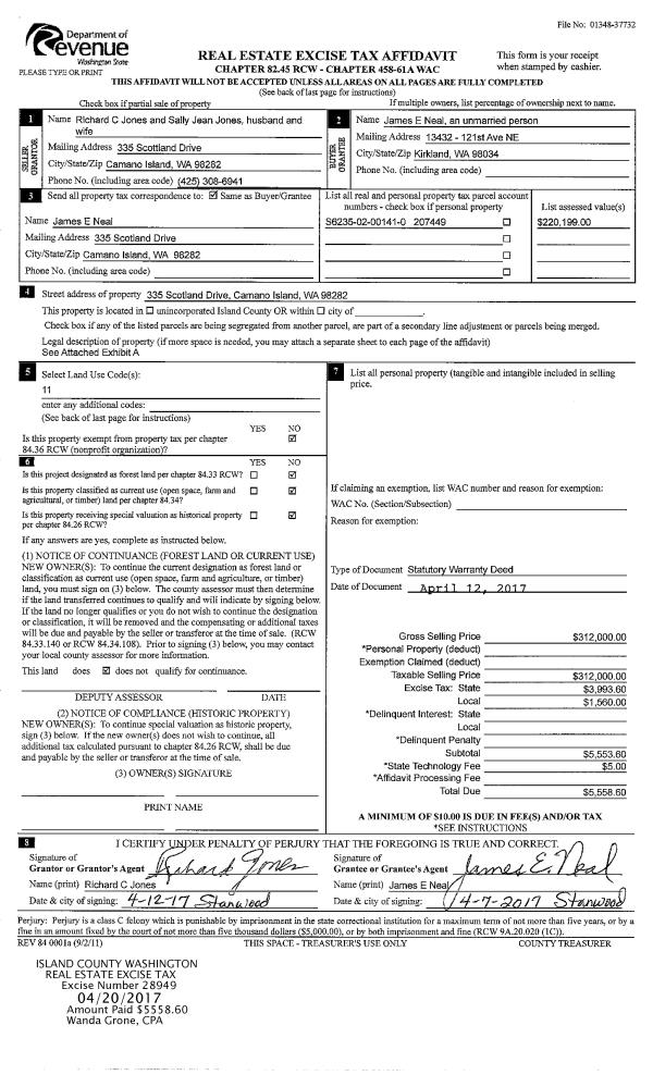
Property
Account |
| Property ID: | 748597 | Abbreviated Legal Description: | 1995 REDMAN RIDGEDALE 28X44 VIN# 11821557AB TPO %131031 |
| Geographic ID: | M905000000650 | Agent Code: | |
| Type: | Mobile Home | | |
| Tax Area: | 100 - APPRAISER-OH Schl Dist, in OH | Land Use Code | 11 |
| Open Space: | N | DFL | N |
| Historic Property: | N | Remodel Property: | N |
| Multi-Family Redevelopment: | N | | |
| Township: | | Section: | |
| Range: | |
Location |
| Address: | 1320 N OAK HARBOR ST # 65 OAK HARBOR, WA 98277 | Mapsco: | |
| Neighborhood: | Cycle 1 | Map ID: | |
| Neighborhood CD: | 1 |
Owner |
| Name: | SANDERS, EMMANUEL D | Owner ID: | 292055 |
| Mailing Address: | 1320 OAK HARBOR ST #65 OAK HARBOR, WA 98277 | % Ownership: | 100.0000000000% |
| | | Exemptions: | |
Taxes and Assessment Details
Values
| (+) Improvement Homesite Value: | + | $0 | |
| (+) Improvement Non-Homesite Value: | + | $39,325 | |
| (+) Land Homesite Value: | + | $0 | |
| (+) Land Non-Homesite Value: | + | $0 | |
| (+) Curr Use (HS): | + | $0 | $0 |
| (+) Curr Use (NHS): | + | $0 | $0 |
| | | -------------------------- | |
| (=) Market Value: | = | $39,325 | |
| (–) Productivity Loss: | – | $0 | |
| | | -------------------------- | |
| (=) Subtotal: | = | $39,325 | |
| (+) Senior Appraised Value: | + | $0 | |
| (+) Non-Senior Appraised Value: | + | $39,325 | |
| | | -------------------------- | |
| (=) Total Appraised Value: | = | $39,325 | |
| (–) Senior Exemption Loss: | – | $0 | |
| (–) Exemption Loss: | – | $0 | |
| | | -------------------------- | |
| (=) Taxable Value: | = | $39,325 | |
Taxing Jurisdiction
| Owner: | SANDERS, EMMANUEL D | | |
| % Ownership: | 100.0000000000% | | |
| Total Value: | $39,325 | | |
| Tax Area: | 100 - APPRAISER-OH Schl Dist, in OH |
| CF | Conservation Futures | 0.0316035091 | $39,325 | $39,325 | $1.24 | | |
| CEM1 | Cemetery #1 | 0.0040320932 | $39,325 | $39,325 | $0.16 | | |
| COH | City of Oak Harbor | 2.3001546061 | $39,325 | $39,325 | $90.45 | | |
| OAKBOND | City of Oak Harbor BOND | 0.1926904192 | $39,325 | $39,325 | $7.58 | | |
| HOBOND | Hospital BOND | 0.1910887512 | $39,325 | $39,325 | $7.51 | | |
| HOGEN | Hospital GEN | 0.3902502903 | $39,325 | $39,325 | $15.35 | | |
| CE | County Current Expense | 0.3708482477 | $39,325 | $39,325 | $14.58 | | |
| ISLANDEMS | Hospital GEN (EMS) | 0.5000000000 | $39,325 | $39,325 | $19.66 | | |
| LIB | Library Sno-Isle GEN | 0.3153421757 | $39,325 | $39,325 | $12.40 | | |
| NWHIDPRMT | P & R N Whidbey GEN | 0.2004466701 | $39,325 | $39,325 | $7.88 | | |
| SCH201MO | School 201 Enrichment | 1.8559231640 | $39,325 | $39,325 | $72.98 | | |
| ST | State School | 1.3035497053 | $39,325 | $39,325 | $51.26 | | |
| ST2 | State School Part 2 | 0.8169543533 | $39,325 | $39,325 | $32.13 | | |
| | Total Tax Rate: | 8.4728839852 | | | | | |
| | | | | Taxes w/Current Exemptions: | $333.18 | | |
| | | | | Taxes w/o Exemptions: | $333.18 | | |
Improvement / Building
| Improvement #1: | MANUFACTURED HOME | State Code: | Y | 1219.0 sqft | Value: | $39,325 |
| Bathrooms: | 0 | Bedrooms: | 0 | | Ceiling: | PLASTER PAINTED | Cooling: | EVAP NO DUCT | | Exterior Wall/Cover: | VINYL | Floor Covering: | CARPET 100% | | Floor Structure: | SLAB ON GRADE | Foundation: | SLAB | | Heating: | FHA ELECTRIC | Interior Finish: | PLASTER | | Plumbing Fixture Cnt: | 1 | Roof Slope: | FLAT | | Roof Structure/Cover: | CJ ALUMINIUM HEAVY |   |   |
|
Sketch
Property Image
Land
No land segments exist for this property.
Roll Value History
| 2026 | N/A | N/A | N/A | N/A | N/A |
| 2025 | $39,325 | $0 | $0 | $39,325 | $39,325 |
| 2024 | $24,520 | $0 | $0 | $24,520 | $24,520 |
| 2023 | $22,588 | $0 | $0 | $22,588 | $22,588 |
| 2022 | $21,196 | $0 | $0 | $21,196 | $21,196 |
| 2021 | $19,401 | $0 | $0 | $19,401 | $19,401 |
| 2020 | $19,464 | $0 | $0 | $19,464 | $19,464 |
| 2019 | $15,826 | $0 | $0 | $15,826 | $15,826 |
| 2018 | $16,321 | $0 | $0 | $16,321 | $16,321 |
| 2017 | $16,815 | $0 | $0 | $16,815 | $16,815 |
| 2016 | $17,310 | $0 | $0 | $17,310 | $17,310 |
| 2015 | $17,805 | $0 | $0 | $17,805 | $17,805 |
| 2014 | $18,052 | $0 | $0 | $18,052 | $18,052 |
| 2013 | $18,546 | $0 | $0 | $18,546 | $18,546 |
| 2012 | $19,041 | $0 | $0 | $19,041 | $19,041 |
| 2011 | $26,609 | $0 | $0 | $26,609 | $26,609 |
| 2010 | $27,554 | $0 | $0 | $27,554 | $27,554 |
| 2009 | $29,229 | $0 | $0 | $29,229 | $29,229 |
| 2008 | $30,106 | $0 | $0 | $30,106 | $30,106 |
| 2007 | $30,937 | $0 | $0 | $30,937 | $30,937 |
Deed and Sales History
| 1 | 09/30/2019 | MANHOME | Manufactured Home | ARROYO, FELICIA | SANDERS, EMMANUEL D | | | $25,000.00 | 40492 | |
| 2 | 05/25/2017 | MANHOME | Manufactured Home | SCOTT, ROBERT H | ARROYO, FELICIA | | | $28,500.00 | 29418 | |
| 3 | 05/29/2001 | OTHER | Other - Misc. Documents | LEWIS JR, JAN E | SCOTT, ROBERT H | | | $37,000.00 | 11895 | 0 |
| 4 | 01/14/1999 | OTHER | Other - Misc. Documents | WESSELS, GENIA | LEWIS JR, JAN E | | | $40,506.00 | 90432 | 0 |
| 5 | 10/01/1995 | OTHER | Other - Misc. Documents | Unknown | WESSELS, GENIA | | | $44,239.00 | 11111111 | 0 |
Payout Agreement
| No payout information available.. |