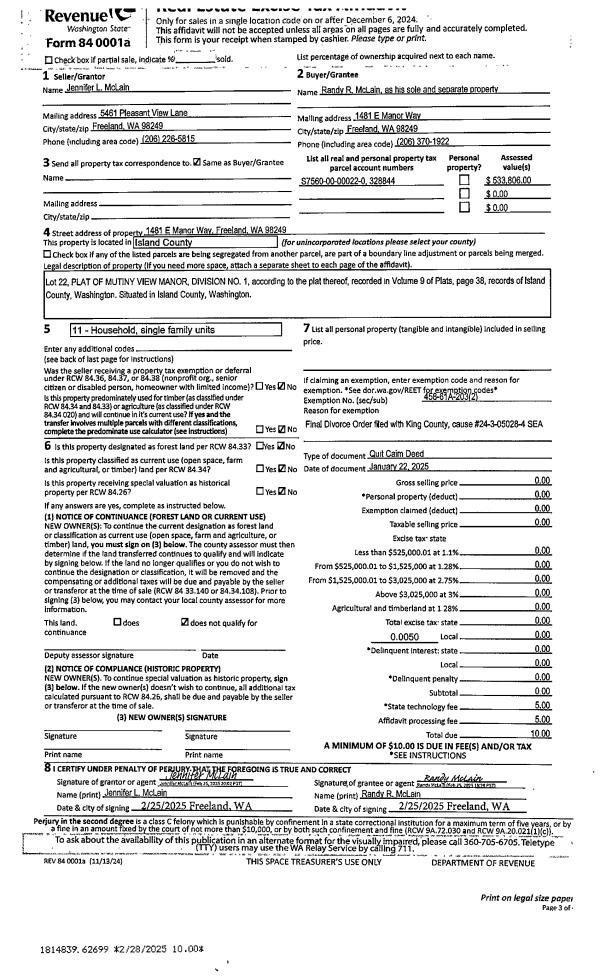
Property
Account |
| Property ID: | 74886 | Abbreviated Legal Description: | 28-1 - LOT 28 BLK 1 SURVEY VOL4 P84-85 FMLY TL28 WELCHER DC DRAINFIELD LOC ON PT 510- 3300 & PT 505-3300 AF#92010852 |
| Geographic ID: | R23107-523-3320 | Agent Code: | |
| Type: | Real | | |
| Tax Area: | 310 - APPRAISER-Cpvl Schl Dist, outside Cpvl, improved & 1 acre or less | Land Use Code | 11 |
| Open Space: | N | DFL | N |
| Historic Property: | N | Remodel Property: | N |
| Multi-Family Redevelopment: | N | | |
| Township: | 31 | Section: | 07 |
| Range: | R2 |
Location |
| Address: | 240 KINGFISHER LN COUPEVILLE, WA 98239 | Mapsco: | |
| Neighborhood: | Cycle 2 | Map ID: | 465 |
| Neighborhood CD: | 2 |
Owner |
| Name: | RANGER TRUSTEE, JAMES R | Owner ID: | 265927 |
| Mailing Address: | 240 KINGFISHER LN COUPEVILLE, WA 98239 | % Ownership: | 100.0000000000% |
| | | Exemptions: | |
Taxes and Assessment Details
Values
| (+) Improvement Homesite Value: | + | $0 | |
| (+) Improvement Non-Homesite Value: | + | $318,418 | |
| (+) Land Homesite Value: | + | $0 | |
| (+) Land Non-Homesite Value: | + | $600,000 | |
| (+) Curr Use (HS): | + | $0 | $0 |
| (+) Curr Use (NHS): | + | $0 | $0 |
| | | -------------------------- | |
| (=) Market Value: | = | $918,418 | |
| (–) Productivity Loss: | – | $0 | |
| | | -------------------------- | |
| (=) Subtotal: | = | $918,418 | |
| (+) Senior Appraised Value: | + | $0 | |
| (+) Non-Senior Appraised Value: | + | $918,418 | |
| | | -------------------------- | |
| (=) Total Appraised Value: | = | $918,418 | |
| (–) Senior Exemption Loss: | – | $0 | |
| (–) Exemption Loss: | – | $0 | |
| | | -------------------------- | |
| (=) Taxable Value: | = | $918,418 | |
Taxing Jurisdiction
| Owner: | RANGER TRUSTEE, JAMES R | | |
| % Ownership: | 100.0000000000% | | |
| Total Value: | $918,418 | | |
| Tax Area: | 310 - APPRAISER-Cpvl Schl Dist, outside Cpvl, improved & 1 acre or less |
| CF | Conservation Futures | 0.0316035091 | $918,418 | $918,418 | $29.03 | | |
| CEM2 | Cemetery #2 | 0.0095056933 | $918,418 | $918,418 | $8.73 | | |
| FIRE5 | Fire & Rescue Dist #5 C Whidbey GEN | 1.2008080668 | $918,418 | $918,418 | $1,102.84 | | |
| FIRE5BOND | Fire & Rescue Dist #5 C Whidbey BOND | 0.1400090713 | $918,418 | $918,418 | $128.59 | | |
| HOBOND | Hospital BOND | 0.1910887512 | $918,418 | $918,418 | $175.50 | | |
| HOGEN | Hospital GEN | 0.3902502903 | $918,418 | $918,418 | $358.41 | | |
| CE | County Current Expense | 0.3708482477 | $918,418 | $918,418 | $340.59 | | |
| CR | County Roads | 0.4584763726 | $918,418 | $918,418 | $421.07 | | |
| ISLANDEMS | Hospital GEN (EMS) | 0.5000000000 | $918,418 | $918,418 | $459.21 | | |
| LIB | Library Sno-Isle GEN | 0.3153421757 | $918,418 | $918,418 | $289.62 | | |
| LIBCAP | Library Sno-Isle BOND (Cap Fac Imp Area) | 0.0543427938 | $918,418 | $918,418 | $49.91 | | |
| POCOUP | Port of Coupeville GEN | 0.1093371703 | $918,418 | $918,418 | $100.42 | | |
| POCOUPIDD | Port of Coupeville IDD | 0.3409740022 | $918,418 | $918,418 | $313.16 | | |
| COUPSDTECH | School 204 CP (TECH) | 0.7545480007 | $918,418 | $918,418 | $692.99 | | |
| SCH204MO | School 204 Enrichment | 0.6716186034 | $918,418 | $918,418 | $616.83 | | |
| ST | State School | 1.3035497053 | $918,418 | $918,418 | $1,197.20 | | |
| ST2 | State School Part 2 | 0.8169543533 | $918,418 | $918,418 | $750.31 | | |
| | Total Tax Rate: | 7.6592568070 | | | | | |
| | | | | Taxes w/Current Exemptions: | $7,034.41 | | |
| | | | | Taxes w/o Exemptions: | $7,034.41 | | |
Improvement / Building
| Improvement #1: | RESIDENTIAL | State Code: | Y | 1863.5 sqft | Value: | $318,418 |
| Bathrooms: | 2 | Bedrooms: | 1 | | Ceiling: | DRYWALL PAINTED | Cooling: | HEAT PUMP/CONV/V | | Exterior Wall/Cover: | WOOD SIDING | Floor Covering: | CERAMIC TILE/CPT 40-60 | | Floor Structure: | WOOD W/SUBFLOOR | Foundation: | CONCRETE | | Interior Finish: | DRYWALL PAINT | Plumbing Fixture Cnt: | 9 | | Roof Slope: | 4" IN 12" | Roof Structure/Cover: | CJ ALUMINIUM HEAVY |
|
| | Type | Description | Class CD | Sub Class CD | Year Built | Area |
| | BAS | BASE/MAIN FLOOR | 3 | 0 | 1958 | 1863.5 |
| | UB8 | BASEMENT UNFINISHED 8" | 3 | 0 | 1958 | 288.0 |
| | OP4 | OPEN PORCH W/CEILING-ROOF | 3 | 0 | 1958 | 48.0 |
| | OWP | OPEN WOOD PORCH W/STEPS | 3 | 0 | 1958 | 560.5 |
| | oGAR | GARAGE | 3 | 0 | 1958 | 512.0 |
| | oUTI | UTILITY | 3 | 0 | 1958 | 392.0 |
Sketch
| No sketches available for this property. |
Property Image
Land
| 1 | MB | MEDIUM BANK | 0.4000 | 17424.00 | 90.00 | 0.00 | 1.00 | $600,000 | $0 |
Roll Value History
| 2026 | N/A | N/A | N/A | N/A | N/A |
| 2025 | $318,418 | $600,000 | $0 | $918,418 | $918,418 |
| 2024 | $311,787 | $575,000 | $0 | $886,787 | $886,787 |
| 2023 | $315,987 | $550,000 | $0 | $865,987 | $865,987 |
| 2022 | $289,926 | $425,000 | $0 | $714,926 | $714,926 |
| 2021 | $255,416 | $400,000 | $0 | $655,416 | $655,416 |
| 2020 | $249,617 | $325,000 | $0 | $574,617 | $574,617 |
| 2019 | $188,802 | $375,000 | $0 | $563,802 | $563,802 |
| 2018 | $177,523 | $350,000 | $0 | $527,523 | $527,523 |
| 2017 | $178,594 | $300,000 | $0 | $478,594 | $478,594 |
| 2016 | $180,781 | $300,000 | $0 | $480,781 | $480,781 |
| 2015 | $182,972 | $300,000 | $0 | $482,972 | $482,972 |
| 2014 | $185,160 | $300,000 | $0 | $485,160 | $485,160 |
| 2013 | $187,351 | $272,197 | $0 | $459,548 | $459,548 |
| 2012 | $204,717 | $272,197 | $0 | $476,914 | $476,914 |
| 2011 | $207,123 | $272,197 | $0 | $479,320 | $479,320 |
| 2010 | $212,950 | $272,197 | $0 | $485,147 | $485,147 |
| 2009 | $221,757 | $337,524 | $0 | $559,281 | $559,281 |
| 2008 | $231,977 | $337,524 | $0 | $569,501 | $569,501 |
| 2007 | $234,773 | $296,150 | $0 | $530,923 | $530,923 |
Deed and Sales History
| 1 | 03/13/2014 | WD | Warranty Deed | RANGER TRUSTEE, JAMES | RANGER TRUSTEE, JAMES R | | | $0.00 | 15215 | 4359073 |
| 2 | 05/04/2005 | PRD | Personal Representatives Deed | RANGER TRUSTEE, JAMES R | RANGER TRUSTEE, JAMES | | | $0.00 | 52099 | 4134034 |
| 3 | 07/09/2002 | QCD | Quit Claim Deed | RANGER, JAMES R | RANGER TRUSTEE, JAMES R | | | $0.00 | 22711 | 4025485 |
| 4 | 06/01/1989 | WD | Warranty Deed | BRUMM, EMIL A | RANGER, JAMES R | | | $105,000.00 | 92307 | 89007900 |
| 5 | 01/01/1900 | OTHER | Other - Misc. Documents | Unknown | BRUMM, EMIL A | | | $0.00 | 0 | 0 |
Payout Agreement
| No payout information available.. |