Property
Account |
| Property ID: | 748873 | Abbreviated Legal Description: | CROCKETT LK EST LOT 20-SL 1A: W80'LOT 20 |
| Geographic ID: | S6435-00-00020-1 | Agent Code: | |
| Type: | Real | | |
| Tax Area: | 380 - APPRAISER-Cpvl Schl Dist, Special Dist, improved & less than 1 acre | Land Use Code | 11 |
| Open Space: | N | DFL | N |
| Historic Property: | N | Remodel Property: | N |
| Multi-Family Redevelopment: | N | | |
| Township: | | Section: | |
| Range: | |
Location |
| Address: | 688 OLYMPIC VIEW DR COUPEVILLE, WA 98239 | Mapsco: | |
| Neighborhood: | Cycle 2 | Map ID: | 64 |
| Neighborhood CD: | 2 |
Owner |
| Name: | GEREND, DONALD J | Owner ID: | 309870 |
| Mailing Address: | SUSAND H GEREND 22730 SE 23RD PL SAMMAMISH, WA 98075 | % Ownership: | 100.0000000000% |
| | | Exemptions: | |
Taxes and Assessment Details
Values
| (+) Improvement Homesite Value: | + | $0 | |
| (+) Improvement Non-Homesite Value: | + | $57,424 | |
| (+) Land Homesite Value: | + | $0 | |
| (+) Land Non-Homesite Value: | + | $270,000 | |
| (+) Curr Use (HS): | + | $0 | $0 |
| (+) Curr Use (NHS): | + | $0 | $0 |
| | | -------------------------- | |
| (=) Market Value: | = | $327,424 | |
| (–) Productivity Loss: | – | $0 | |
| | | -------------------------- | |
| (=) Subtotal: | = | $327,424 | |
| (+) Senior Appraised Value: | + | $0 | |
| (+) Non-Senior Appraised Value: | + | $327,424 | |
| | | -------------------------- | |
| (=) Total Appraised Value: | = | $327,424 | |
| (–) Senior Exemption Loss: | – | $0 | |
| (–) Exemption Loss: | – | $0 | |
| | | -------------------------- | |
| (=) Taxable Value: | = | $327,424 | |
Taxing Jurisdiction
| Owner: | GEREND, DONALD J | | |
| % Ownership: | 100.0000000000% | | |
| Total Value: | $327,424 | | |
| Tax Area: | 380 - APPRAISER-Cpvl Schl Dist, Special Dist, improved & less than 1 acre |
| CF | Conservation Futures | 0.0316035091 | $327,424 | $327,424 | $10.35 | | |
| CEM2 | Cemetery #2 | 0.0095056933 | $327,424 | $327,424 | $3.11 | | |
| FIRE5 | Fire & Rescue Dist #5 C Whidbey GEN | 1.2008080668 | $327,424 | $327,424 | $393.17 | | |
| FIRE5BOND | Fire & Rescue Dist #5 C Whidbey BOND | 0.1400090713 | $327,424 | $327,424 | $45.84 | | |
| HOBOND | Hospital BOND | 0.1910887512 | $327,424 | $327,424 | $62.57 | | |
| HOGEN | Hospital GEN | 0.3902502903 | $327,424 | $327,424 | $127.78 | | |
| CE | County Current Expense | 0.3708482477 | $327,424 | $327,424 | $121.42 | | |
| CR | County Roads | 0.4584763726 | $327,424 | $327,424 | $150.12 | | |
| ISLANDEMS | Hospital GEN (EMS) | 0.5000000000 | $327,424 | $327,424 | $163.71 | | |
| LIB | Library Sno-Isle GEN | 0.3153421757 | $327,424 | $327,424 | $103.25 | | |
| LIBCAP | Library Sno-Isle BOND (Cap Fac Imp Area) | 0.0543427938 | $327,424 | $327,424 | $17.79 | | |
| POCOUP | Port of Coupeville GEN | 0.1093371703 | $327,424 | $327,424 | $35.80 | | |
| POCOUPIDD | Port of Coupeville IDD | 0.3409740022 | $327,424 | $327,424 | $111.64 | | |
| COUPSDTECH | School 204 CP (TECH) | 0.7545480007 | $327,424 | $327,424 | $247.06 | | |
| SCH204MO | School 204 Enrichment | 0.6716186034 | $327,424 | $327,424 | $219.90 | | |
| ST | State School | 1.3035497053 | $327,424 | $327,424 | $426.81 | | |
| ST2 | State School Part 2 | 0.8169543533 | $327,424 | $327,424 | $267.49 | | |
| | Total Tax Rate: | 7.6592568070 | | | | | |
| | | | | Taxes w/Current Exemptions: | $2,507.81 | | |
| | | | | Taxes w/o Exemptions: | $2,507.81 | | |
Improvement / Building
| Improvement #1: | MANUFACTURED HOME | State Code: | Y | 1431.8 sqft | Value: | $57,424 |
| Bathrooms: | 0 | Bedrooms: | 0 | | Ceiling: | PLASTER PAINTED | Cooling: | EVAP NO DUCT | | Exterior Wall/Cover: | VINYL | Floor Covering: | CARPET 100% | | Floor Structure: | SLAB ON GRADE | Foundation: | SLAB | | Heating: | FHA ELECTRIC | Interior Finish: | PLASTER | | Plumbing Fixture Cnt: | 1 | Roof Slope: | FLAT | | Roof Structure/Cover: | CJ ALUMINIUM HEAVY |   |   |
|
| | Type | Description | Class CD | Sub Class CD | Year Built | Area |
| | BAS | BASE/MAIN FLOOR | 3 | 0 | 1973 | 1431.8 |
| | OWR | OPEN WOOD PORCH W/STEPS/ROOF | 3 | 0 | 1973 | 164.2 |
| | OCP | OPEN CARPORT | 3 | 0 | 1973 | 360.0 |
| | UTY | STORAGE/UTILITY | 3 | 0 | 1973 | 288.0 |
| | UTY | STORAGE/UTILITY | 3 | 0 | 1973 | 216.0 |
Sketch
Property Image
Land
| 1 | 16 | AC (00.51-01.00) | 0.5600 | 24393.60 | 0.00 | 0.00 | 1.00 | $270,000 | $0 |
Roll Value History
| 2026 | N/A | N/A | N/A | N/A | N/A |
| 2025 | $57,424 | $270,000 | $0 | $327,424 | $327,424 |
| 2024 | $60,162 | $250,000 | $0 | $310,162 | $310,162 |
| 2023 | $48,020 | $220,000 | $0 | $268,020 | $268,020 |
| 2022 | $46,335 | $210,000 | $0 | $256,335 | $256,335 |
| 2021 | $44,049 | $140,000 | $0 | $184,049 | $184,049 |
| 2020 | $44,890 | $110,000 | $0 | $154,890 | $34,511 |
| 2019 | $38,064 | $150,000 | $0 | $188,064 | $34,511 |
| 2018 | $26,035 | $140,000 | $0 | $166,035 | $34,511 |
| 2017 | $27,396 | $120,000 | $0 | $147,396 | $34,511 |
| 2016 | $28,767 | $100,000 | $0 | $128,767 | $34,511 |
| 2015 | $30,136 | $75,000 | $0 | $105,136 | $34,511 |
| 2014 | $31,506 | $75,000 | $0 | $106,506 | $84,511 |
| 2013 | $32,876 | $75,000 | $0 | $107,876 | $84,511 |
| 2012 | $16,511 | $68,000 | $0 | $84,511 | $84,511 |
| 2011 | $17,056 | $80,000 | $0 | $97,056 | $97,056 |
| 2010 | $46,154 | $80,000 | $0 | $126,154 | $126,154 |
| 2009 | $47,860 | $80,000 | $0 | $127,860 | $127,860 |
| 2008 | $48,898 | $80,000 | $0 | $128,898 | $128,898 |
| 2007 | $50,168 | $80,000 | $0 | $130,168 | $130,168 |
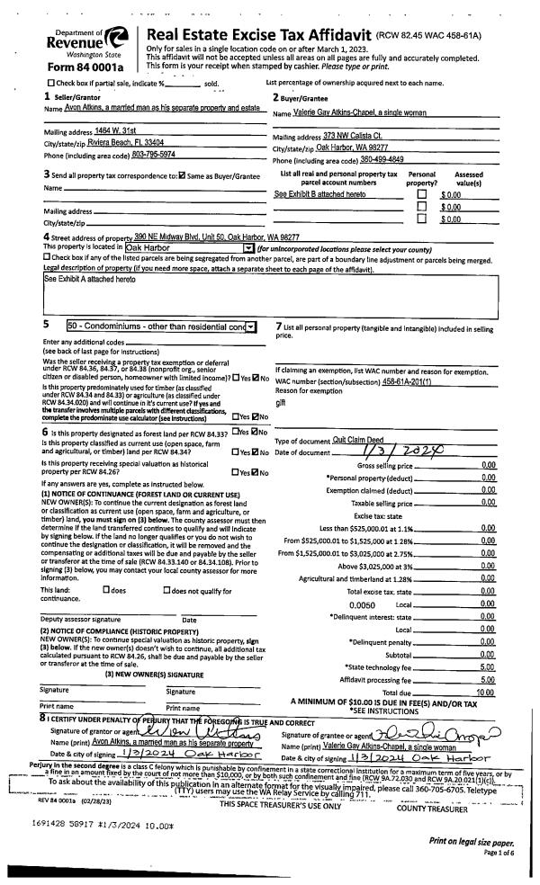
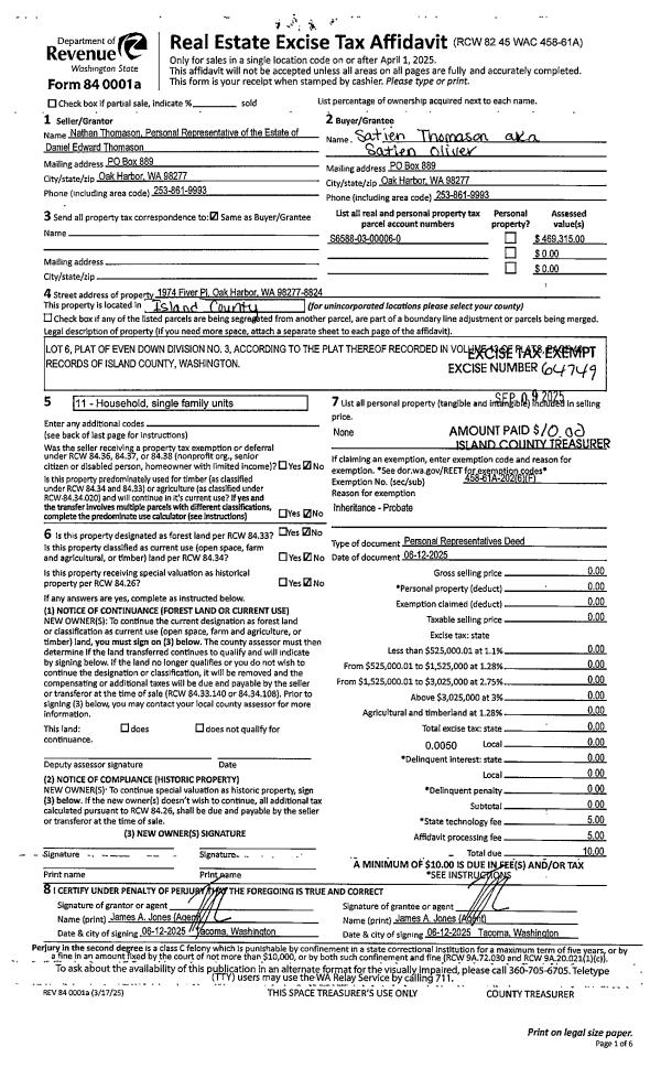
Deed and Sales History
| 1 | 08/29/2023 | WD | Warranty Deed | DAY, RON | GEREND, DONALD J | | | $374,000.00 | 57818 | 4564144 |
| 2 | 08/23/2021 | WD | Warranty Deed | MURRAY, JAMES P | DAY, RON | | | $285,000.00 | 49809 | 4527834 |
| 3 | 04/23/2021 | QCD | Quit Claim Deed | MURRAY, MARGARETE ANN | MURRAY, JAMES PATRICK | | | $0.00 | 48455 | 4520488 |
| 4 | 04/20/2010 | WD | Warranty Deed | EDWARDS, FAYE Y | MURRAY, JAMES P | | | $110,000.00 | 997 | 4272953 |
| 5 | 03/21/2008 | QCD | Quit Claim Deed | EDWARDS, ROBIN R | EDWARDS, FAYE Y | | | $0.00 | 80681 | 4224643 |
| 6 | 12/15/2005 | WD | Warranty Deed | EDWARDS, ROBIN R | EDWARDS, ROBIN R | | | $0.00 | 56260 | 4157391 |
| 7 | 12/15/2004 | 5 | DNU - Marriage License/Name Change | EDWARDS, ROBIN R | EDWARDS, ROBIN R | | | $0.00 | 70427 | 0 |
| 8 | 02/18/2000 | PRD | Personal Representatives Deed | CARTER, SIDNEY G | EDWARDS, ROBIN R | | | $86,900.00 | 601 | 20003188 |
| 9 | 01/18/2000 | OTHER | Other - Misc. Documents | Unknown | EDWARDS, ROBIN R/MAROLYN J | | | $19,842.00 | 599 | 0 |
| 10 | 01/01/1900 | OTHER | Other - Misc. Documents | EDWARDS, ROBIN R/MAROLYN J | CARTER, SIDNEY G | | | $0.00 | 0 | 0 |
Payout Agreement
| No payout information available.. |