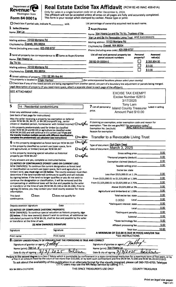
Property
Account |
| Property ID: | 749195 | Abbreviated Legal Description: | IN SE SW: W226' OF N282' OF FOLL DESC: BG ON ELN SD SUBD 678'S OF NECR SE SW NWLY ALG LN TP 104'E & 359'S OF NWCR SD SUBD SELY ALG SD LN TP 332'W OF ELN SD SUBD TPB NWLY ALG DESC LN TP 319'E FR WLN SD SUBD N TO NLN SD SUBD E ALG SD NLN TP 332'W OF NECR SE |
| Geographic ID: | R13312-112-1740 | Agent Code: | |
| Type: | Real | | |
| Tax Area: | 110 - APPRAISER-OH Schl Dist, outside OH, improved & 1 acre or less | Land Use Code | 11 |
| Open Space: | N | DFL | N |
| Historic Property: | N | Remodel Property: | N |
| Multi-Family Redevelopment: | N | | |
| Township: | 33 | Section: | 12 |
| Range: | R1 |
Location |
| Address: | 37737 SR20 OAK HARBOR, WA 98277 | Mapsco: | |
| Neighborhood: | Cycle 6 | Map ID: | 204 |
| Neighborhood CD: | 6 |
Owner |
| Name: | HAMILTON, CHARITY J | Owner ID: | 314399 |
| Mailing Address: | 37737 SR 20 OAK HARBOR, WA 98277 | % Ownership: | 100.0000000000% |
| | | Exemptions: | |
Taxes and Assessment Details
Values
| (+) Improvement Homesite Value: | + | $0 | |
| (+) Improvement Non-Homesite Value: | + | $129,586 | |
| (+) Land Homesite Value: | + | $0 | |
| (+) Land Non-Homesite Value: | + | $200,000 | |
| (+) Curr Use (HS): | + | $0 | $0 |
| (+) Curr Use (NHS): | + | $0 | $0 |
| | | -------------------------- | |
| (=) Market Value: | = | $329,586 | |
| (–) Productivity Loss: | – | $0 | |
| | | -------------------------- | |
| (=) Subtotal: | = | $329,586 | |
| (+) Senior Appraised Value: | + | $0 | |
| (+) Non-Senior Appraised Value: | + | $329,586 | |
| | | -------------------------- | |
| (=) Total Appraised Value: | = | $329,586 | |
| (–) Senior Exemption Loss: | – | $0 | |
| (–) Exemption Loss: | – | $0 | |
| | | -------------------------- | |
| (=) Taxable Value: | = | $329,586 | |
Taxing Jurisdiction
| Owner: | HAMILTON, CHARITY J | | |
| % Ownership: | 100.0000000000% | | |
| Total Value: | $329,586 | | |
| Tax Area: | 110 - APPRAISER-OH Schl Dist, outside OH, improved & 1 acre or less |
| CF | Conservation Futures | 0.0316035091 | $329,586 | $329,586 | $10.42 | | |
| CEM1 | Cemetery #1 | 0.0040320932 | $329,586 | $329,586 | $1.33 | | |
| FIRE2 | Fire & Rescue Dist #2 N Whidbey GEN | 0.5475949600 | $329,586 | $329,586 | $180.48 | | |
| HOBOND | Hospital BOND | 0.1910887512 | $329,586 | $329,586 | $62.98 | | |
| HOGEN | Hospital GEN | 0.3902502903 | $329,586 | $329,586 | $128.62 | | |
| CE | County Current Expense | 0.3708482477 | $329,586 | $329,586 | $122.23 | | |
| CR | County Roads | 0.4584763726 | $329,586 | $329,586 | $151.11 | | |
| ISLANDEMS | Hospital GEN (EMS) | 0.5000000000 | $329,586 | $329,586 | $164.79 | | |
| LIB | Library Sno-Isle GEN | 0.3153421757 | $329,586 | $329,586 | $103.93 | | |
| NWHIDPRMT | P & R N Whidbey GEN | 0.2004466701 | $329,586 | $329,586 | $66.06 | | |
| SCH201MO | School 201 Enrichment | 1.8559231640 | $329,586 | $329,586 | $611.69 | | |
| ST | State School | 1.3035497053 | $329,586 | $329,586 | $429.63 | | |
| ST2 | State School Part 2 | 0.8169543533 | $329,586 | $329,586 | $269.26 | | |
| | Total Tax Rate: | 6.9861102925 | | | | | |
| | | | | Taxes w/Current Exemptions: | $2,302.53 | | |
| | | | | Taxes w/o Exemptions: | $2,302.53 | | |
Improvement / Building
| Improvement #1: | MANUFACTURED HOME | State Code: | Y | 1500.0 sqft | Value: | $129,586 |
| Bathrooms: | 0 | Bedrooms: | 0 | | Ceiling: | PLASTER PAINTED | Exterior Wall/Cover: | VINYL | | Floor Covering: | CARPET 100% | Floor Structure: | SLAB ON GRADE | | Foundation: | SLAB | Heating: | FHA ELECTRIC | | Interior Finish: | PLASTER | Plumbing Fixture Cnt: | 1 | | Roof Slope: | FLAT | Roof Structure/Cover: | CJ ALUMINIUM HEAVY |
|
| | Type | Description | Class CD | Sub Class CD | Year Built | Area |
| | BAS | BASE/MAIN FLOOR | 4 | 0 | 1998 | 1500.0 |
| | DGR | DETACHED GARAGE | 4 | 0 | 1998 | 864.0 |
Sketch
Property Image
Land
| 1 | 16 | AC (00.51-01.00) | 0.9000 | 39204.00 | 0.00 | 0.00 | 1.00 | $200,000 | $0 |
Roll Value History
| 2026 | N/A | N/A | N/A | N/A | N/A |
| 2025 | $129,586 | $200,000 | $0 | $329,586 | $329,586 |
| 2024 | $133,398 | $190,000 | $0 | $323,398 | $323,398 |
| 2023 | $119,313 | $190,000 | $0 | $309,313 | $309,313 |
| 2022 | $95,838 | $160,000 | $0 | $255,838 | $255,838 |
| 2021 | $85,627 | $125,000 | $0 | $210,627 | $210,627 |
| 2020 | $85,347 | $110,000 | $0 | $195,347 | $195,347 |
| 2019 | $68,979 | $155,000 | $0 | $223,979 | $223,979 |
| 2018 | $70,725 | $150,000 | $0 | $220,725 | $220,725 |
| 2017 | $72,471 | $90,000 | $0 | $162,471 | $162,471 |
| 2016 | $66,454 | $75,000 | $0 | $141,454 | $141,454 |
| 2015 | $67,864 | $75,000 | $0 | $142,864 | $142,864 |
| 2014 | $54,273 | $72,250 | $0 | $126,523 | $126,523 |
| 2013 | $55,683 | $72,250 | $0 | $127,933 | $127,933 |
| 2012 | $57,093 | $72,250 | $0 | $129,343 | $129,343 |
| 2011 | $58,503 | $85,000 | $0 | $143,503 | $143,503 |
| 2010 | $64,970 | $85,000 | $0 | $149,970 | $149,970 |
| 2009 | $63,741 | $100,000 | $0 | $163,741 | $163,741 |
| 2008 | $64,551 | $104,000 | $0 | $168,551 | $168,551 |
| 2007 | $66,123 | $104,000 | $0 | $170,123 | $170,123 |
Deed and Sales History
| 1 | 10/14/2024 | QCD | Quit Claim Deed | HAMILTON, DAVID D | HAMILTON, CHARITY J | | | $0.00 | 61709 | 4578801 |
| 2 | 03/26/2013 | CCOMPROP | Create Community Property | LAFERRIERE, CHARITY | HAMILTON, DAVID D | | | $0.00 | 10958 | 4337228 |
| 3 | 04/22/2010 | TRUSTEED | Trustee's Deed | FEDERAL HOME LOAN MORTGAGE COR | LAFERRIERE, CHARITY | | | $105,500.00 | 999 | 4272948 |
| 4 | 10/16/2009 | TRUSTEED | Trustee's Deed | DEJESSA, GREG | FEDERAL HOME LOAN MORTGAGE COR | | | $118,003.00 | 92597 | 4262583 |
| 5 | 01/01/1998 | WD | Warranty Deed | Unknown | DEJESSA, GREG | | | $30,000.00 | 80121 | 98000624 |
| 6 | 04/01/1997 | BLA | DNU - Boundary Line Adjustment | DEJESSA, GREGORY C | GRAHAM, TERRY G | | | $0.00 | 67320 | 96021379 |
| 7 | 12/01/1993 | OTHER | Other - Misc. Documents | EVANS, RANDY L | DEJESSA, GREGORY C | | | $5,151.00 | 34657 | 0 |
| 8 | 12/01/1992 | OTHER | Other - Misc. Documents | CHAMBERS, JAMES | EVANS, RANDY L | | | $3,500.00 | 24983 | 0 |
| 9 | 07/01/1983 | QCD | Quit Claim Deed | Unknown | CHAMBERS, JAMES | | | $0.00 | 32753 | 415257 |
| 10 | 01/01/1900 | OTHER | Other - Misc. Documents | EVANS, RANDY L | GRAHAM, TERRY G | | | $0.00 | 67172 | 0 |
Payout Agreement
| No payout information available.. |