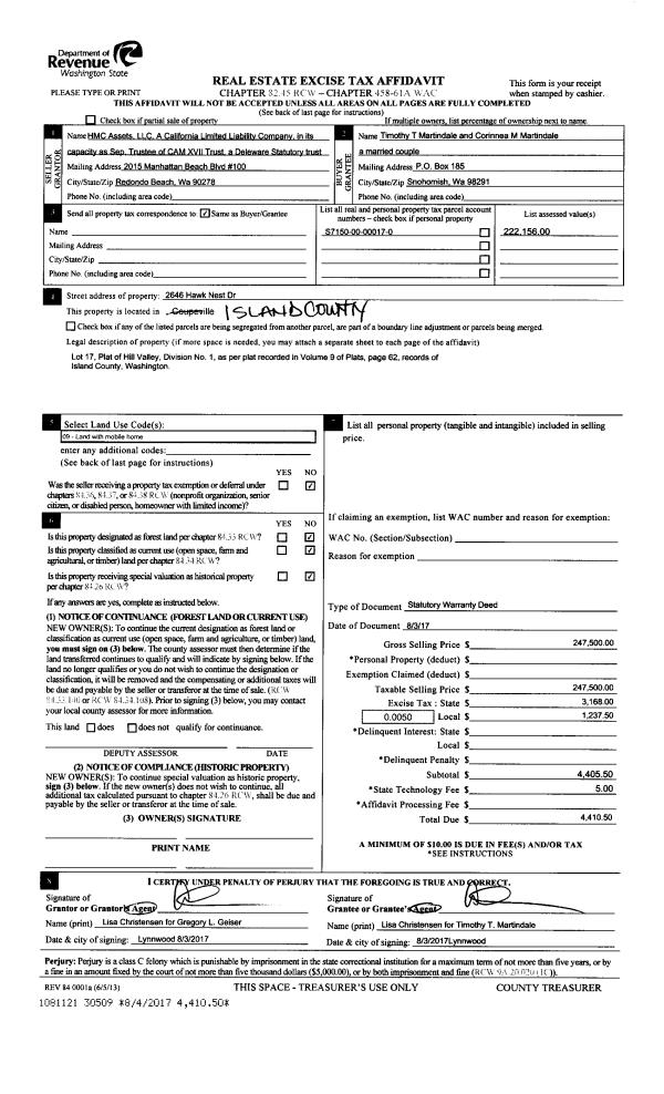
Property
Account |
| Property ID: | 749202 | Abbreviated Legal Description: | IN SE SW: BG ELN SD SUBD 678'S OF NECR SE SW NWLY ALG LN TP 104'E & 359'S OF NWCR SD SUBD SELY ALG SD LN TP 332'W OF ELN SD SUBD NWLY ALG DESC LN TP 545'E FR WLN SD SUBD TPB NWLY ALG SD LN TP 319'E FR WLN SD SUBD N TO NLN SD SUBD E226' S TPB EX N282' TG |
| Geographic ID: | R13312-095-1740 | Agent Code: | |
| Type: | Real | | |
| Tax Area: | 110 - APPRAISER-OH Schl Dist, outside OH, improved & 1 acre or less | Land Use Code | 11 |
| Open Space: | N | DFL | N |
| Historic Property: | N | Remodel Property: | N |
| Multi-Family Redevelopment: | N | | |
| Township: | 33 | Section: | 12 |
| Range: | R1 |
Location |
| Address: | 37739 SR20 OAK HARBOR, WA 98277 | Mapsco: | |
| Neighborhood: | Cycle 6 | Map ID: | 204 |
| Neighborhood CD: | 6 |
Owner |
| Name: | REED, EDGAR A | Owner ID: | 294089 |
| Mailing Address: | 37739 SR 20 OAK HARBOR, WA 98277 | % Ownership: | 100.0000000000% |
| | | Exemptions: | |
Taxes and Assessment Details
Values
| (+) Improvement Homesite Value: | + | $0 | |
| (+) Improvement Non-Homesite Value: | + | $256,469 | |
| (+) Land Homesite Value: | + | $0 | |
| (+) Land Non-Homesite Value: | + | $200,000 | |
| (+) Curr Use (HS): | + | $0 | $0 |
| (+) Curr Use (NHS): | + | $0 | $0 |
| | | -------------------------- | |
| (=) Market Value: | = | $456,469 | |
| (–) Productivity Loss: | – | $0 | |
| | | -------------------------- | |
| (=) Subtotal: | = | $456,469 | |
| (+) Senior Appraised Value: | + | $0 | |
| (+) Non-Senior Appraised Value: | + | $456,469 | |
| | | -------------------------- | |
| (=) Total Appraised Value: | = | $456,469 | |
| (–) Senior Exemption Loss: | – | $0 | |
| (–) Exemption Loss: | – | $0 | |
| | | -------------------------- | |
| (=) Taxable Value: | = | $456,469 | |
Taxing Jurisdiction
| Owner: | REED, EDGAR A | | |
| % Ownership: | 100.0000000000% | | |
| Total Value: | $456,469 | | |
| Tax Area: | 110 - APPRAISER-OH Schl Dist, outside OH, improved & 1 acre or less |
| CF | Conservation Futures | 0.0316035091 | $456,469 | $456,469 | $14.43 | | |
| CEM1 | Cemetery #1 | 0.0040320932 | $456,469 | $456,469 | $1.84 | | |
| FIRE2 | Fire & Rescue Dist #2 N Whidbey GEN | 0.5475949600 | $456,469 | $456,469 | $249.96 | | |
| HOBOND | Hospital BOND | 0.1910887512 | $456,469 | $456,469 | $87.23 | | |
| HOGEN | Hospital GEN | 0.3902502903 | $456,469 | $456,469 | $178.14 | | |
| CE | County Current Expense | 0.3708482477 | $456,469 | $456,469 | $169.28 | | |
| CR | County Roads | 0.4584763726 | $456,469 | $456,469 | $209.28 | | |
| ISLANDEMS | Hospital GEN (EMS) | 0.5000000000 | $456,469 | $456,469 | $228.23 | | |
| LIB | Library Sno-Isle GEN | 0.3153421757 | $456,469 | $456,469 | $143.94 | | |
| NWHIDPRMT | P & R N Whidbey GEN | 0.2004466701 | $456,469 | $456,469 | $91.50 | | |
| SCH201MO | School 201 Enrichment | 1.8559231640 | $456,469 | $456,469 | $847.17 | | |
| ST | State School | 1.3035497053 | $456,469 | $456,469 | $595.03 | | |
| ST2 | State School Part 2 | 0.8169543533 | $456,469 | $456,469 | $372.91 | | |
| | Total Tax Rate: | 6.9861102925 | | | | | |
| | | | | Taxes w/Current Exemptions: | $3,188.94 | | |
| | | | | Taxes w/o Exemptions: | $3,188.94 | | |
Improvement / Building
| Improvement #1: | MANUFACTURED HOME | State Code: | Y | 1372.0 sqft | Value: | $256,469 |
| Bathrooms: | 2 | Bedrooms: | 3 | | Ceiling: | PLASTER PAINTED | Cooling: | EVAP NO DUCT | | Exterior Wall/Cover: | VINYL | Floor Covering: | CARPET 100% | | Floor Structure: | SLAB ON GRADE | Foundation: | SLAB | | Heating: | FHA ELECTRIC | Interior Finish: | PLASTER | | Plumbing Fixture Cnt: | 1 | Roof Slope: | FLAT | | Roof Structure/Cover: | CJ ALUMINIUM HEAVY |   |   |
|
| | Type | Description | Class CD | Sub Class CD | Year Built | Area |
| | BAS | BASE/MAIN FLOOR | 4 | 0 | 1999 | 1372.0 |
| | OWP | OPEN WOOD PORCH W/STEPS | 4 | 0 | 1999 | 80.0 |
| | OWP | OPEN WOOD PORCH W/STEPS | 4 | 0 | 1999 | 552.0 |
Sketch
Property Image
Land
| 1 | 16 | AC (00.51-01.00) | 0.8200 | 35719.20 | 0.00 | 0.00 | 1.00 | $200,000 | $0 |
Roll Value History
| 2026 | N/A | N/A | N/A | N/A | N/A |
| 2025 | $256,469 | $200,000 | $0 | $456,469 | $456,469 |
| 2024 | $259,477 | $190,000 | $0 | $449,477 | $449,477 |
| 2023 | $262,485 | $190,000 | $0 | $452,485 | $452,485 |
| 2022 | $200,578 | $160,000 | $0 | $360,578 | $360,578 |
| 2021 | $176,385 | $125,000 | $0 | $301,385 | $301,385 |
| 2020 | $172,501 | $110,000 | $0 | $282,501 | $282,501 |
| 2019 | $52,937 | $155,000 | $0 | $207,937 | $207,937 |
| 2018 | $54,312 | $150,000 | $0 | $204,312 | $204,312 |
| 2017 | $55,687 | $90,000 | $0 | $145,687 | $145,687 |
| 2016 | $50,531 | $75,000 | $0 | $125,531 | $125,531 |
| 2015 | $51,879 | $75,000 | $0 | $126,879 | $126,879 |
| 2014 | $53,226 | $72,250 | $0 | $125,476 | $125,476 |
| 2013 | $54,574 | $72,250 | $0 | $126,824 | $126,824 |
| 2012 | $55,921 | $72,250 | $0 | $128,171 | $128,171 |
| 2011 | $57,269 | $85,000 | $0 | $142,269 | $142,269 |
| 2010 | $59,130 | $85,000 | $0 | $144,130 | $144,130 |
| 2009 | $67,616 | $100,000 | $0 | $167,616 | $167,616 |
| 2008 | $69,237 | $104,000 | $0 | $173,237 | $173,237 |
| 2007 | $70,903 | $104,000 | $0 | $174,903 | $174,903 |
Deed and Sales History
| 1 | 03/26/2020 | WD | Warranty Deed | OLLER, CODY | REED, EDGAR A | | | $300,000.00 | 42855 | 4485625 |
| 2 | 07/10/2017 | WD | Warranty Deed | SITKO, MATTHEW R | OLLER, CODY | | | $210,500.00 | 30165 | 4426155 |
| 3 | 02/13/2010 | TRUSTEED | Trustee's Deed | U S BANK, | SITKO, MATTHEW R | | | $98,000.00 | 566 | 4270215 |
| 4 | 05/22/2009 | TRUSTEED | Trustee's Deed | DEJESSA, GREG | U S BANK, | | | $97,018.00 | 91222 | 4252909 |
| 5 | 01/01/1999 | PACD | Purchaser's Assignment | Unknown | DEJESSA, GREG | | | $0.00 | 0 | 0 |
| 6 | 05/07/1998 | WD | Warranty Deed | Unknown | DEJESSA, GREG | | | $32,000.00 | 81742 | 98009293 |
| 7 | 04/01/1997 | BLA | DNU - Boundary Line Adjustment | GRAHAM, TERRY G | GRAHAM, TERRY G | | | $0.00 | 67320 | 96021379 |
| 8 | 01/01/1900 | OTHER | Other - Misc. Documents | DEJESSA, GREG | GRAHAM, TERRY G | | | $0.00 | 67172 | 0 |
Payout Agreement
| No payout information available.. |