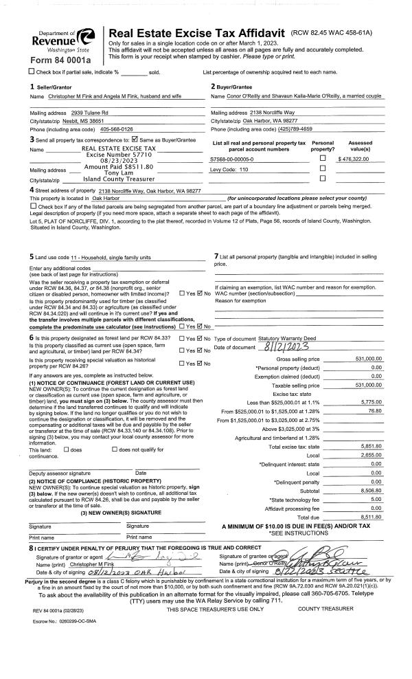
Property
Account |
| Property ID: | 749211 | Abbreviated Legal Description: | WHID PK LOT 8 |
| Geographic ID: | S8420-00-00008-0 | Agent Code: | |
| Type: | Real | | |
| Tax Area: | 112 - APPRAISER-OH Schl Dist, outside OH, improved, greater than 1 acre | Land Use Code | 11 |
| Open Space: | N | DFL | N |
| Historic Property: | N | Remodel Property: | N |
| Multi-Family Redevelopment: | N | | |
| Township: | | Section: | |
| Range: | |
Location |
| Address: | 3488 WILSON RD OAK HARBOR, WA 98277 | Mapsco: | |
| Neighborhood: | Cycle 6 | Map ID: | 610 |
| Neighborhood CD: | 6 |
Owner |
| Name: | CLEARY, SCOTTIE L | Owner ID: | 282195 |
| Mailing Address: | HEIDI M DEAN PO BOX 2718 OAK HARBOR, WA 98277-2718 | % Ownership: | 100.0000000000% |
| | | Exemptions: | |
Taxes and Assessment Details
Values
| (+) Improvement Homesite Value: | + | $0 | |
| (+) Improvement Non-Homesite Value: | + | $91,092 | |
| (+) Land Homesite Value: | + | $0 | |
| (+) Land Non-Homesite Value: | + | $300,000 | |
| (+) Curr Use (HS): | + | $0 | $0 |
| (+) Curr Use (NHS): | + | $0 | $0 |
| | | -------------------------- | |
| (=) Market Value: | = | $391,092 | |
| (–) Productivity Loss: | – | $0 | |
| | | -------------------------- | |
| (=) Subtotal: | = | $391,092 | |
| (+) Senior Appraised Value: | + | $0 | |
| (+) Non-Senior Appraised Value: | + | $391,092 | |
| | | -------------------------- | |
| (=) Total Appraised Value: | = | $391,092 | |
| (–) Senior Exemption Loss: | – | $0 | |
| (–) Exemption Loss: | – | $0 | |
| | | -------------------------- | |
| (=) Taxable Value: | = | $391,092 | |
Taxing Jurisdiction
| Owner: | CLEARY, SCOTTIE L | | |
| % Ownership: | 100.0000000000% | | |
| Total Value: | $391,092 | | |
| Tax Area: | 112 - APPRAISER-OH Schl Dist, outside OH, improved, greater than 1 acre |
| CF | Conservation Futures | 0.0316035091 | $391,092 | $391,092 | $12.36 | | |
| CEM1 | Cemetery #1 | 0.0040320932 | $391,092 | $391,092 | $1.58 | | |
| FIRE2 | Fire & Rescue Dist #2 N Whidbey GEN | 0.5475949600 | $391,092 | $391,092 | $214.16 | | |
| HOBOND | Hospital BOND | 0.1910887512 | $391,092 | $391,092 | $74.73 | | |
| HOGEN | Hospital GEN | 0.3902502903 | $391,092 | $391,092 | $152.62 | | |
| CE | County Current Expense | 0.3708482477 | $391,092 | $391,092 | $145.04 | | |
| CR | County Roads | 0.4584763726 | $391,092 | $391,092 | $179.31 | | |
| ISLANDEMS | Hospital GEN (EMS) | 0.5000000000 | $391,092 | $391,092 | $195.55 | | |
| LIB | Library Sno-Isle GEN | 0.3153421757 | $391,092 | $391,092 | $123.33 | | |
| NWHIDPRMT | P & R N Whidbey GEN | 0.2004466701 | $391,092 | $391,092 | $78.39 | | |
| SCH201MO | School 201 Enrichment | 1.8559231640 | $391,092 | $391,092 | $725.84 | | |
| ST | State School | 1.3035497053 | $391,092 | $391,092 | $509.81 | | |
| ST2 | State School Part 2 | 0.8169543533 | $391,092 | $391,092 | $319.50 | | |
| | Total Tax Rate: | 6.9861102925 | | | | | |
| | | | | Taxes w/Current Exemptions: | $2,732.22 | | |
| | | | | Taxes w/o Exemptions: | $2,732.22 | | |
Improvement / Building
| Improvement #1: | MANUFACTURED HOME | State Code: | Y | 1335.0 sqft | Value: | $91,092 |
| Bathrooms: | 2 | Bedrooms: | 2 | | Ceiling: | PLASTER PAINTED | Cooling: | EVAP NO DUCT | | Exterior Wall/Cover: | VINYL | Floor Covering: | CARPET 100% | | Floor Structure: | SLAB ON GRADE | Foundation: | SLAB | | Heating: | FHA ELECTRIC | Interior Finish: | PLASTER | | Plumbing Fixture Cnt: | 1 | Roof Slope: | FLAT | | Roof Structure/Cover: | CJ ALUMINIUM HEAVY |   |   |
|
| | Type | Description | Class CD | Sub Class CD | Year Built | Area |
| | BAS | BASE/MAIN FLOOR | 3 | 0 | 1972 | 1335.0 |
| | DGR | DETACHED GARAGE | 3 | 0 | 1972 | 480.0 |
| | OCP | OPEN CARPORT | 3 | 0 | 1972 | 252.0 |
| | OWP | OPEN WOOD PORCH W/STEPS | 3 | 0 | 1972 | 174.0 |
| | OWR | OPEN WOOD PORCH W/STEPS/ROOF | 3 | 0 | 1972 | 225.0 |
Sketch
Property Image
Land
| 1 | 32 | AC (03.01-09.99) | 5.0100 | 218235.60 | 0.00 | 0.00 | 1.00 | $300,000 | $0 |
Roll Value History
| 2026 | N/A | N/A | N/A | N/A | N/A |
| 2025 | $91,092 | $300,000 | $0 | $391,092 | $391,092 |
| 2024 | $93,938 | $300,000 | $0 | $393,938 | $393,938 |
| 2023 | $96,785 | $240,000 | $0 | $336,785 | $336,785 |
| 2022 | $90,221 | $240,000 | $0 | $330,221 | $330,221 |
| 2021 | $80,685 | $175,000 | $0 | $255,685 | $255,685 |
| 2020 | $79,421 | $150,000 | $0 | $229,421 | $229,421 |
| 2019 | $64,275 | $175,000 | $0 | $239,275 | $239,275 |
| 2018 | $65,988 | $130,000 | $0 | $195,988 | $195,988 |
| 2017 | $61,703 | $130,000 | $0 | $191,703 | $191,703 |
| 2016 | $27,173 | $130,000 | $0 | $157,173 | $49,522 |
| 2015 | $27,846 | $120,000 | $0 | $147,846 | $49,522 |
| 2014 | $29,194 | $100,000 | $0 | $129,194 | $73,806 |
| 2013 | $31,583 | $99,198 | $90,000 | $121,583 | $71,583 |
| 2012 | $33,605 | $81,162 | $81,162 | $114,767 | $64,767 |
| 2011 | $34,952 | $90,180 | $90,000 | $124,952 | $73,806 |
| 2010 | $50,516 | $90,180 | $90,000 | $140,516 | $73,806 |
| 2009 | $69,081 | $90,180 | $90,000 | $159,081 | $73,806 |
| 2008 | $71,645 | $114,291 | $114,063 | $185,708 | $73,806 |
| 2007 | $188,094 | $114,291 | $114,063 | $188,094 | $73,806 |
Deed and Sales History
| 1 | 10/05/2017 | WD | Warranty Deed | WUERTZ, MARY ANN | CLEARY, SCOTTIE L | | | $250,000.00 | 31525 | 4432165 |
| 2 | 09/12/2007 | OTHER | Other - Misc. Documents | WUERTZ, WILLIAM J | WUERTZ, MARY ANN | | | $0.00 | 80350 | 0 |
| 3 | 01/01/1900 | OTHER | Other - Misc. Documents | Unknown | WUERTZ, WILLIAM J | | | $0.00 | 0 | 0 |
Payout Agreement
| No payout information available.. |