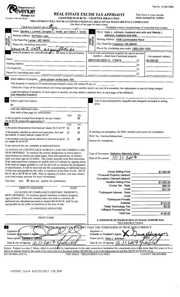
Property
Account |
| Property ID: | 749426 | Abbreviated Legal Description: | N/2 N/2 NE NE LY W OF FOLL DESC LN: BG NWCR N/2 NE NE NE S89*E51.30' TPB SD LN S9*E334.52' TO SLN OF N/2 N/2 NE NE & TERM SD LN FR PT 507-4500 |
| Geographic ID: | R23327-509-4450 | Agent Code: | |
| Type: | Real | | |
| Tax Area: | 112 - APPRAISER-OH Schl Dist, outside OH, improved, greater than 1 acre | Land Use Code | 11 |
| Open Space: | N | DFL | N |
| Historic Property: | N | Remodel Property: | N |
| Multi-Family Redevelopment: | N | | |
| Township: | 33 | Section: | 27 |
| Range: | R2 |
Location |
| Address: | 3189 GREEN RD OAK HARBOR, WA 98277 | Mapsco: | |
| Neighborhood: | Cycle 6 | Map ID: | 630 |
| Neighborhood CD: | 6 |
Owner |
| Name: | PLEASANCE, RANDALL LEE | Owner ID: | 282994 |
| Mailing Address: | 3189 GREEN RD OAK HARBOR, WA 98277 | % Ownership: | 100.0000000000% |
| | | Exemptions: | |
Taxes and Assessment Details
Values
| (+) Improvement Homesite Value: | + | $0 | |
| (+) Improvement Non-Homesite Value: | + | $580,575 | |
| (+) Land Homesite Value: | + | $0 | |
| (+) Land Non-Homesite Value: | + | $340,000 | |
| (+) Curr Use (HS): | + | $0 | $0 |
| (+) Curr Use (NHS): | + | $0 | $0 |
| | | -------------------------- | |
| (=) Market Value: | = | $920,575 | |
| (–) Productivity Loss: | – | $0 | |
| | | -------------------------- | |
| (=) Subtotal: | = | $920,575 | |
| (+) Senior Appraised Value: | + | $0 | |
| (+) Non-Senior Appraised Value: | + | $920,575 | |
| | | -------------------------- | |
| (=) Total Appraised Value: | = | $920,575 | |
| (–) Senior Exemption Loss: | – | $0 | |
| (–) Exemption Loss: | – | $0 | |
| | | -------------------------- | |
| (=) Taxable Value: | = | $920,575 | |
Taxing Jurisdiction
| Owner: | PLEASANCE, RANDALL LEE | | |
| % Ownership: | 100.0000000000% | | |
| Total Value: | $920,575 | | |
| Tax Area: | 112 - APPRAISER-OH Schl Dist, outside OH, improved, greater than 1 acre |
| CF | Conservation Futures | 0.0316035091 | $920,575 | $920,575 | $29.09 | | |
| CEM1 | Cemetery #1 | 0.0040320932 | $920,575 | $920,575 | $3.71 | | |
| FIRE2 | Fire & Rescue Dist #2 N Whidbey GEN | 0.5475949600 | $920,575 | $920,575 | $504.10 | | |
| HOBOND | Hospital BOND | 0.1910887512 | $920,575 | $920,575 | $175.91 | | |
| HOGEN | Hospital GEN | 0.3902502903 | $920,575 | $920,575 | $359.25 | | |
| CE | County Current Expense | 0.3708482477 | $920,575 | $920,575 | $341.39 | | |
| CR | County Roads | 0.4584763726 | $920,575 | $920,575 | $422.06 | | |
| ISLANDEMS | Hospital GEN (EMS) | 0.5000000000 | $920,575 | $920,575 | $460.29 | | |
| LIB | Library Sno-Isle GEN | 0.3153421757 | $920,575 | $920,575 | $290.30 | | |
| NWHIDPRMT | P & R N Whidbey GEN | 0.2004466701 | $920,575 | $920,575 | $184.53 | | |
| SCH201MO | School 201 Enrichment | 1.8559231640 | $920,575 | $920,575 | $1,708.52 | | |
| ST | State School | 1.3035497053 | $920,575 | $920,575 | $1,200.02 | | |
| ST2 | State School Part 2 | 0.8169543533 | $920,575 | $920,575 | $752.07 | | |
| | Total Tax Rate: | 6.9861102925 | | | | | |
| | | | | Taxes w/Current Exemptions: | $6,431.24 | | |
| | | | | Taxes w/o Exemptions: | $6,431.24 | | |
Improvement / Building
| Improvement #1: | RESIDENTIAL | State Code: | Y | 2575.4 sqft | Value: | $580,575 |
| Bathrooms: | 3 | Bedrooms: | 3 | | Ceiling: | DRYWALL PAINTED | Exterior Wall/Cover: | CEMENT FIBER | | Floor Covering: | CARPET/VINYL 80-20 | Floor Structure: | WOOD W/SUBFLOOR | | Foundation: | CONCRETE | Heating: | FHA GAS | | Interior Finish: | DRYWALL PAINT | Plumbing Fixture Cnt: | 15 | | Roof Slope: | 4" IN 12" | Roof Structure/Cover: | CJ ASPHALT |
|
| | Type | Description | Class CD | Sub Class CD | Year Built | Area |
| | BAS | BASE/MAIN FLOOR | 4 | 0 | 2004 | 1615.4 |
| | DWN | DOWNSTAIRS LIVING AREA | 4 | 0 | 2004 | 960.0 |
| | AGR | ATTACHED GARAGE | 4 | 0 | 2004 | 528.0 |
| | OWP | OPEN WOOD PORCH W/STEPS | 4 | 0 | 2004 | 240.0 |
| | OWC | OPEN WOOD PORCH W/STEPS/ROOF/C | 4 | 0 | 2004 | 120.6 |
| | OWC | OPEN WOOD PORCH W/STEPS/ROOF/C | 4 | 0 | 2004 | 138.0 |
| | BAW | BALCONY WOOD RAIL | 4 | 0 | 2004 | 24.0 |
| | DGR | DETACHED GARAGE | 4 | 0 | 2004 | 468.0 |
| | CPD | OPEN CARPORT DIRT FLOOR | 4 | 0 | 2004 | 1300.0 |
| | UTY | STORAGE/UTILITY | 4 | 0 | 2004 | 1440.0 |
| | ENP | ENCLOSED PORCH | 4 | 0 | 2004 | 960.0 |
| | UTY | STORAGE/UTILITY | 4 | 0 | 2004 | 624.0 |
Sketch
Property Image
Land
| 1 | 32 | AC (03.01-09.99) | 5.6400 | 245678.40 | 0.00 | 0.00 | 1.00 | $340,000 | $0 |
Roll Value History
| 2026 | N/A | N/A | N/A | N/A | N/A |
| 2025 | $580,575 | $340,000 | $0 | $920,575 | $920,575 |
| 2024 | $586,061 | $320,000 | $0 | $906,061 | $906,061 |
| 2023 | $590,174 | $320,000 | $0 | $910,174 | $910,174 |
| 2022 | $522,494 | $300,000 | $0 | $822,494 | $822,494 |
| 2021 | $486,427 | $190,000 | $0 | $676,427 | $676,427 |
| 2020 | $472,163 | $160,000 | $0 | $632,163 | $632,163 |
| 2019 | $356,807 | $220,000 | $0 | $576,807 | $576,807 |
| 2018 | $357,615 | $200,000 | $0 | $557,615 | $557,615 |
| 2017 | $359,229 | $165,000 | $0 | $524,229 | $524,229 |
| 2016 | $375,025 | $140,000 | $0 | $515,025 | $515,025 |
| 2015 | $377,046 | $120,000 | $1,708 | $400,031 | $400,031 |
| 2014 | $380,409 | $112,800 | $1,708 | $402,117 | $402,117 |
| 2013 | $383,771 | $111,672 | $1,708 | $405,279 | $405,279 |
| 2012 | $387,133 | $111,672 | $1,708 | $408,641 | $408,641 |
| 2011 | $61,000 | $92,800 | $1,708 | $62,708 | $62,708 |
| 2010 | $69,982 | $92,800 | $1,708 | $71,690 | $71,690 |
| 2009 | $71,545 | $125,280 | $1,708 | $73,253 | $73,253 |
| 2008 | $73,918 | $134,560 | $1,708 | $75,626 | $75,626 |
| 2007 | $76,226 | $91,872 | $1,708 | $77,934 | $77,934 |
Deed and Sales History
| 1 | 11/15/2017 | PRD | Personal Representatives Deed | PLEASANCE, CARROLL L | PLEASANCE, RANDALL LEE | | | $0.00 | 31983 | 4434546 |
| 2 | 07/09/2013 | PRD | Personal Representatives Deed | PLEASANCE, CARROLL L | PLEASANCE, CARROLL L | | | $0.00 | 12107 | 4344683 |
| 3 | 01/04/2006 | WD | Warranty Deed | HEISERMAN, CHAD L | PLEASANCE, CARROLL L | | | $6,600,000.00 | 60083 | 4159240 |
| 4 | 11/01/1997 | WD | Warranty Deed | BRAITHWAITE, ERNEST M | HEISERMAN, CHAD L | | | $0.00 | 73970 | 97018941 |
| 5 | 04/01/1997 | BLA | DNU - Boundary Line Adjustment | BRAITHWAITE, ERNEST M | BRAITHWAITE, ERNEST M | | | $0.00 | 67335 | 97000694 |
| 6 | 01/01/1900 | OTHER | Other - Misc. Documents | Unknown | BRAITHWAITE, ERNEST M | | | $0.00 | 70017 | 97000044 |
Payout Agreement
| No payout information available.. |